情景引例
上一节
下一节
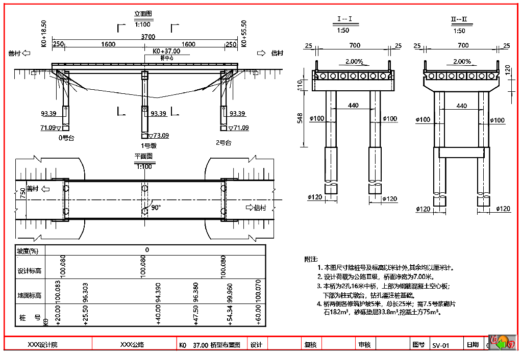
道路工程图是道路工程施工过程的重要文件。图中内容较多,图形复杂。施工图上有各种各样的线条、尺寸、数字、图框、标题栏等。
为了便于生产和技术交流,对于每种线条所代表的含义,尺寸数字的单位等,需要有统一的规定,所以《道路工程制图国家标准》GB50162-92中对图幅大小、图线的线型、尺寸标注、图例、字体等做了统一规定。


图2.1

