-
1 教学内容
-
2 教学PPT
-
3 教学视频
任务6.3涂饰、裱贴工程计量与计价案例
6.3.1任务一
1.任务要求
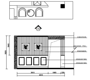
某家庭室内装修为中档装修,其中墙面装修做法如图6-9所示,顶棚石膏线条高80mm。试按照当地常用工程做法列出该墙面壁纸裱糊的清单,计算该墙面壁纸裱糊(本任务只计算立面可见墙体,且不包含图中柱面裱糊壁纸)的清单与计价工程量,参照《江苏省建筑与装饰工程计价定额》(2014)及含税市场价进行该墙面壁纸裱糊的清单综合单价报价。
图6-9立面装修图
2.任务解决
解:
(1)信息收集及做法分析
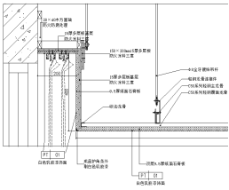
本工程为墙面裱贴墙纸。墙纸裱糊清单和定额工程量计算规则一致:按设计图示尺寸以面积计算。墙纸常用粘贴工艺:满批腻子三遍找平、基膜打底、糯米胶粘贴壁纸。构造层如图6-10所示
图6-10 墙纸裱糊构造图
墙纸裱糊采用成品腻子,当墙面基层平整度正常,每遍腻子不宜过厚,消耗量约1kg/m2。基膜消耗量约0.07L/m2,糯米胶消耗量约0.13kg/m2,具体用量需要结合施工现场情况确定,本案例材料用量按正常情况的消耗量计算。
本工程为家庭装潢,材料按含税单价报价,执行简易计税方式,参照《江苏省建筑与装饰工程计价定额》(2014),单独装饰工程管理费按42%、利润按15%计算。通过查询获取当时当地人工、材料、机械信息价、市场价格(具体价格见表6-10)。
表6-10 资源价格表
序号 | 资源名称 | 单位 | 含税市场价/元 |
1 | 一类工 | 工日 | 139 |
2 | 成品腻子 | Kg | 9.60 |
3 | 油漆溶剂油 | Kg | 15.01 |
4 | 基膜 | L | 24 |
5 | 糯米胶 | Kg | 17.50 |
6 | 壁纸 | m2 | 46.50 |
(2)分部分项工程量计算、清单编制及清单综合价计算
1清单及计价工程量计算
计算项目 | 部位 | 计量单位 | 计算式 | 工程量 |
墙纸裱糊 | 房间立面 | m2 | 2.615×(1.64-0.08<石膏线条高度>)=4.08(m2) | 4.08 |
2清单编制
项目编码 | 项目 名称 | 项目特征 | 计量 单位 | 工程量 |
011408001001 | 墙纸裱糊 | 1.基层类型:抹灰面 2.裱糊部位:墙面 3.腻子种类:成品腻子 4.腻子遍数:3 5.基层防护:基膜一遍 6.粘结材料种类:糯米胶 7.面层材料品种、规格、颜色:墙纸(详见图纸及设计要求) | m2 | 4.08 |
(3)清单综合单价计算
项目编码 | 011408001001 | 项目名称 | 墙纸裱糊 | 计量 单位 | m2 | 工程量 | 4.08 | |||||||||
清单综合单价组成明细 | ||||||||||||||||
定额编号 | 定额项目名称 | 定额单位 | 数量 | 单价 | 综合价 | |||||||||||
人工费 | 材 料 费 | 机械费 | 管理费 和利润 | 人工费 | 材料费 | 机械费 | 管理费 和利润 | |||||||||
17-164换 | 抹灰面满批腻子两遍 | 10 m2 | 0.1 | 95.91 | 196.65 | - | 54.68 | 9.95 | 19.67 | - | 5.47 | |||||
17-165换 | 抹灰面满批腻子每增减一遍 | 10 m2 | 0.1 | 51.15 | 97.80 | - | 29.16 | 5.12 | 9.78 | - | 2.92 | |||||
17-240换 | 墙面贴墙纸对花 | 10 m2 | 0.1 | 234.98 | 556.25 | - | 133.94 | 23.50 | 55.63 | - | 13.39 | |||||
小计 | 38.57 | 85.08 | - | 21.78 | ||||||||||||
清单项目综合单价 | 145.43 | |||||||||||||||
各定额单价费用组成计算如下:
定17-164换
人工费:139×1.15<根据规定:家庭装饰执行江苏省建筑与装饰工程计价定额(2014)时,人工乘以系数1.15>×0.60=95.91(元)
材料费:定额中配腻子、底层处理的材料(羧甲基纤维素、钛白粉、滑石粉、白水泥、酚醛清漆、901胶)用成品腻子替换。
成品腻子:9.60×20<按1kg/m2腻子消耗量计算的10m2刮腻子两遍的消耗量>=192(元)
油漆溶剂油:15.01×0.07=1.05(元)
其他材料费:3.60元
合计:192+1.05+3.60=196.65(元)
管理费和利润:95.91×57%<管理费按42%、利润率按15%计算>=54.68(元)
定17-165换
人工费:139×1.15<定额中规定:家庭装饰执行江苏省建筑与装饰工程计价定额(2014)时,人工乘以系数1.15>×0.32=51.15(元)
材料费:定额中配腻子的材料(羧甲基纤维素、钛白粉、滑石粉、白水泥、901胶)用成品腻子替换。
成品腻子:9.60×10<按1kg/m2腻子消耗量计算的10m2刮腻子一遍的消耗量>=96(元)
其他材料费:1.80元
合计:96+1.8=97.80(元)
管理费和利润:51.15×57%<管理费按42%、利润率按15%计算>=29.16(元)
定17-240换
人工费:139×1.15(定额中规定:家庭装饰执行江苏省建筑与装饰工程计价定额(2014)时,人工乘以系数1.15)×1.47=234.98(元)
材料费:定额中基层处理配腻子的材料(羧甲基纤维素、钛白粉、聚醋酸乙烯乳液)用基膜替换。
墙纸:46.50×11.58=538.47(元)
基膜:24×0.7=16.80(元)
其他材料费:0.98元
合计:538.47+16.80+0.98=556.25(元)
管理费和利润:234.98×57%<管理费按42%、利润率按15%计算>=133.94(元)
6.3.2任务二
1.任务要求
某办公室吊顶平面图和节点图如图6-11~图6-13所示,按照《江苏省建筑与装饰工程计价定额》(2014)中相关规定计算涂刷防火涂料、乳胶漆的工程量和综合单价(不考虑市场价因素,按简易计税方式报价)。
图6-11 某办公室吊顶平面图
图6-12 某办公室窗帘盒节点详图
图6-13 某办公室灯槽节点详图
2.任务解决
(1)识读图纸
本房间内墙间开间净长5.10m、进深净长4.80m,灯槽下部以10×10凹槽外边线为标注起止点的长、宽分别为3.30m、3.10m。窗帘盒和灯槽处节点构造如图6-14~图6-15所示。
(a)构造图示1 (b)构造图示2
图6-14 窗帘盒节点构造图
(a)构造图示1 (b)构造图示2
图6.15 灯槽节点三维图
2.信息收集及做法分析
(1)施工工艺:根据吊顶龙骨安装要求,吊杆距离龙骨端部距离不得超过300mm,本工程设定为200mm;无主龙骨时,吊件间距800~1000mm,本工程吊件间距设定为不大于1000mm。多层板双面涂刷防火涂料三遍。天棚石膏板面白色乳胶漆饰面做法通常为901胶白水泥腻子批、刷乳胶漆各三遍。
在石膏板面刷乳胶漆一般需要先进行钉眼涂防锈漆,并在石膏板缝间贴自粘胶带,需要分别计价,本案例暂不计算。
(2)计量规则:天棚、墙、柱、梁面的喷(刷)涂料和抹灰面乳胶漆,工程量按实喷(刷)面积计算,但不扣除0.3m2以内的孔洞面积。天棚龙骨喷(刷)涂料按其水平投影面积计算,本案例窗帘盒龙骨喷(刷)涂料参照天棚龙骨喷(刷)涂料计量。
3.工程量计算
计算 项目 | 计算部位 | 计量单位 | 计算式 | 工程量 |
木构件喷刷防火涂料 | 窗帘盒木龙骨 | m2 | (0.2<窗帘盒净宽>+0.0095<单层9.5mm纸面石膏板厚>+0.015<15mm多层板厚>)×5.1<窗帘盒长>=1.145(m2) | 1.15 |
窗帘盒基层 (15厚多层板) | m2 | 15厚多层板单面面积: (0.2<窗帘盒净宽>+0.0095<单层9.5mm纸面石膏板厚>)×5.1+(0.4<窗帘盒净高>+0.015<15mm多层板厚>)×5.1<窗帘盒长>=3.185(m2) 15厚多层板双面面积: 3.185×2=6.370(m2) | 20.24 | |
回光灯槽基层(15厚多层板) | m2 | 水平15厚多层板单面面积: (0.101+0.0095)<灯槽水平方向15mm多层板宽>×((3.3+3.1)×2<灯槽处10×10凹槽外边线周长>+0.004<灯槽处10×10凹槽外边线到灯槽水平方向15mm多层板中心线距离>×8)=1.418(m2) 15厚多层板双面面积: 1.418×2=2.836 (m2) | ||
回光灯槽基层 (9厚多层板) | m2 | 灯槽吊筋处9mm多层板面积: 0.30<9mm多层板高度>×((3.3+3.1)×2+0.064<灯槽处10×10凹槽外边线到9mm多层板中心线距离>×8)=3.994 (m2) 灯槽翻边处9mm多层板面积: 0.07<9mm多层板高度>×((3.3+3.1)×2-0.0555<灯槽处10×10凹槽外边线到多层板中心线距离>×8)=0.865 (m2) 灯槽吊筋处、翻边处9厚多层板双面面积: (3.994+0.865)×2=9.718 (m2) | ||
吊筋连接处(150mm×200mm15厚多层板) | m2 | 窗帘盒吊筋根数: (5100-200×2<距离端部200开始布置吊筋>)/1000+1=6(根) 回光灯槽吊筋根数: (3300-200<距离端部200开始布置吊筋>×2)/1000+1=4(根) (3100-200<距离端部200开始布置吊筋>×2)/1000+1=4(根) 150 mm×200mm15厚多层板块数(每根吊筋处连接一块150 mm×200mm15厚多层板):6+4×2+4×2=22(块) 150 mm×200mm15厚多层板双面面积: 0.15×0.20×22×2=1.32 (m2) | ||
乳胶漆 | 吊顶平面 | m2 | 水平投影面积: (4.8-0.2<窗帘盒净宽>)×5.1=23.46(m2) 标高3.1m处10×10凹槽线侧边增加面积: ((3.3+3.1)×2-0.235<灯槽处10×10凹槽外边线到吊顶处凹槽中心线距离>×8)×0.01×2=0.218(m2) | 33.24 |
窗帘盒 | m2 | (0.2+0.4)×5.1=3.06(m2) | ||
回光灯槽 | m2 | 回光灯槽水平投影面积(从吊杆处垂直石膏板朝向灯槽一侧的边线开始计算,宽度130mm): (0.101+0.029)×((3.3+3.1)×2-0.014<灯槽处10×10凹槽外边线到水平投影面中心线距离>×8)=1.649(m2) 回光灯槽内侧石膏板垂直面面积: (0.21+0.07-0.015)<石膏板净高>×((3.3+3.1)×2+0.0505<灯槽处10×10凹槽外边线到石膏板表面距离>×8)=3.499(m2) 回光灯槽翻边石膏板外侧垂直面面积: 0.02×((3.3+3.1)×2-0.06<灯槽处10×10凹槽外边线到灯槽凹角处垂直面距离>×8)+0.07×((3.3+3.1)×2-0.079<灯槽处10×10凹槽外边线到灯槽翻边垂直面距离>×8)=1.098(m2) 灯槽下方标高2.8m处10×10凹槽线侧边增加面积: ((3.3+3.1)×2-0.005<灯槽处10×10凹槽外边线到中心线距离>×8)×0.01×2=0.255(m2) |
4.综合单价计算
(1)窗帘盒龙骨涂刷防火涂料三遍借用天棚方木骨架涂刷防火漆定额,定17-109+定17-111,管理费和利润增加(33.58+16.12+13.18+6.32)×(57%-37%)<单独装饰工程管理费(42%)和利润(15%)与定额中建筑三类工程(25%)和利润(12%)之差>=13.84(元)
综合单价为245.04+102.96+13.84=361.84(元/ m2);
(2)多层板面涂刷防火涂料三遍套用其他木材面刷防火涂料定额,定17-92+定17-93,管理费和利润增加(27.84+13.36+6.38+3.06)×(57%-37%)=10.13(元)
综合单价为189.95+52.34+10.13=252.42(元/ m2);
(3)本任务天棚石膏板面乳胶漆涂刷不在同一平面的层面有三个以上,饰面执行定额17-179天棚复杂面901胶白水泥腻子批、刷乳胶漆各三遍。人工系数为增加0.15。
人工费增加161.50×0.15=24.23(元)
管理费和利润增加(40.38+19.38)×(57%-37%)+24.23×57%=25.76(元)
综合单价为296.83+24.23+25.76=346.82(元)
6.3.3 任务实践
某办公室吊顶平面、吊顶节点详图分别如图6-16、图6-17所示,吊顶面层装饰为白色乳胶漆,请结合本书中的计价定额、当地当时市场价格、工程实践经验等因素,计算该吊顶面层装饰、石膏线条刷乳胶漆的工程量,编制相应的清单并计算清单综合价。

图6-16 某办公室吊顶平面图 图6-17 某办公室吊顶灯槽节点详图

