-
1 墙柱面工程计量与...
-
2 教学PPT
-
3 教学视频
3.1.1装饰工程墙柱面简介
墙、柱面工程是在墙柱结构上进行表层装饰的工程,墙面装修按材料和施工方法不同分为抹灰、贴面、涂刷和裱糊四类。抹灰分为一般抹灰和装饰抹灰。在《全国统一建筑装饰装修工程消耗量定额》中,墙柱面工程主要包括(墙面、柱面、零星)抹灰、镶贴块料、墙饰面;柱(梁)饰面、隔断、隔墙、幕墙等工程。
1.抹灰工程
抹灰类饰面是指采用水泥砂浆、混合砂浆、石膏砂浆或水泥石渣浆等做成的各种饰面抹灰层。
一般抹灰通常采用分层的构造做法,普通抹灰由底层、中层、面层组成;高级抹灰由底层、数层中层和面层组成。如图3-1所示。
图3-1抹灰类墙面示意图
(1)水泥砂浆:底层采用水泥砂浆或水泥石灰混合砂浆,中层和面层为水泥砂浆的抹灰种类。
(2)混合砂浆:即底、面层均采用混合砂浆抹灰的种类。
(3)石灰砂浆:底层砂浆种类可以是石灰砂浆、石灰草筋浆、石灰麻刀浆、混合砂浆。
中层砂浆种类可以是石灰砂浆、石灰麻刀浆、混合砂浆等。
面层砂浆种类可以是纸筋灰浆或石膏浆。中层和面层为水泥砂浆的抹灰种类。
(4)其他砂浆:包括石膏砂浆、TC胶砂浆、水泥珍珠岩砂浆以及石英砂浆搓沙墙面等。
(5)水刷石:用1∶2.5水泥砂浆找平,上抹1∶1.5~1∶2水泥白石子浆,待达到一定强度后,用人工或机械将表面的浮水泥浆刷掉,使白石子外露1mm左右。
(6)干粘石:在1∶2.5水泥砂浆找平上抹水泥浆2~3mm,再将洗净的白石子粘上。
(7)剁假石:用1∶2.5水泥砂浆找平,上抹1∶1.5水泥白石子浆(或1∶1.25水泥石屑浆),待达到一定强度后,用斧沿垂直方向斩剁修整。
(8)水磨石:用1∶3水泥砂浆找平,上抹1∶1.5~1∶2.5水泥白石子浆,待达到一定强度后,用人工或机械磨光,然后清洗、打蜡、擦光。
(9)拉毛:拉毛分为水泥浆拉毛和石灰浆拉毛两种。
①水泥浆拉毛:用水泥石灰砂浆找平,上抹1∶1∶2水泥石灰砂浆,随即用棕刷蘸上砂浆往墙上垂直拍拉,或用铁抹子贴在墙面上立即抽回,如此往复抽拉,就可在表面拉出像山峰形的水泥毛刺儿。
②石灰浆拉毛:也是用水泥石灰砂浆找平,再用麻刀石灰浆罩面拉毛。
2.喷涂、辊涂、弹涂
(1)喷涂:用挤压式砂浆泵或喷斗将砂浆或涂料、油漆喷成雾状涂在墙体表面、木材面和金属面上形成装饰层。
(2)辊涂:先将砂浆抹或喷在墙体表面,然后用辊子滚出花纹,再喷罩甲基硅酸钠疏水剂。
(3)弹涂:利用弹涂器将不同色彩的聚合物、水泥浆,弹在已涂刷的水泥涂层上或水泥砂浆基层上,形成3~5mm扁花点的施工工艺。
3.镶贴块料面层
镶贴块料面层就是将各种块体饰面材料用胶粘剂,依照设计图纸镶贴在各种基层上。用于镶贴的块体饰面材料很多,主要有大理石、花岗石、各种面砖及陶瓷锦砖等;所用胶粘剂主要有水泥浆、聚酯类水泥浆及各种特殊胶粘剂等。
(1)大理石 大理石板材是由大理石岩经开采、机械加工而成的建筑装饰材料,应用极为广泛。大理石有各种颜色,但硬度不大,抗风化性差,主要用于室内装修。
①挂贴大理石板。挂贴法(如图3-2所示)又称为镶贴法,先在墙柱基面上预埋铁件,固定钢筋网,同时在石板的上下部位钻孔打眼,穿上铜丝与钢筋网扎结。用木楔调节石板与基面之间的缝隙宽度,待一排石板的石面调整平整并固定好后,用1∶2或1∶2.5水泥砂浆分层灌缝,待面层全部挂贴完成后,用白水泥浆嵌缝,最后洁面、打蜡、抛光。
![]()
图3-2 挂贴大理石板示意图 | ![]()
图3-3 干挂大理石板示意图 |
②粘贴大理石板 粘贴法是在清洁基面后用1:3水泥砂浆打底,然后抹1:2.5水泥砂浆中层,再用胶粘剂涂刷大理石背面,按设计分块要求将其镶贴到砂浆面上,整平洁面,最后用白水泥嵌缝,去污、打蜡、抛光。
③干挂大理石板 干挂法(如图3-3所示)不用水泥砂浆,而是在基层墙面上按设计要求设置膨胀螺栓,将不锈钢角钢固定在基面上,然后用不锈钢连接螺栓和插棍将打有空洞的石板和角钢连接起来进行固定,整平面板后,洁面、嵌缝、抛光即成。这种方法多用于大型板材。
(2)花岗石 花岗石是由花岗岩经开采、加工而成的装饰材料。由于其耐冻性、耐磨性均较好,具有良好的抗风化性能,因此,常用于建筑物的勒脚及墙身部位,磨光的花岗石板材常用于室内外墙面、地面的装饰。
(3)建筑陶瓷 凡用于装饰墙面、铺设地面、安装上下水管、装备卫生间等的各种陶瓷材料与制品,均称为建筑陶瓷。常用的有:
①瓷砖 瓷砖适用于建筑物室内装饰。常用于室内墙面,主要有浴室、厨房、实验室、医院、精密仪器车间等的墙面及工作台、墙裙等处,也可用来砌筑水池、水槽、卫生设施等。它是用颜色洁白的瓷土或耐火黏土经焙烧而成,表面光洁平整,不易粘污,耐水性、耐湿性好。
②陶瓷锦砖 陶瓷锦砖又叫马赛克、纸皮砖。主要用于墙面及地面。品种有挂釉和不挂釉两种,目前常用不挂釉产品。这种砖质地坚硬、经久耐用、色泽多样、耐酸、耐碱、耐火、耐磨、不渗水、易清洗。陶瓷锦砖是由不同形状小块,拼成一定要求的图案,单块形状有矩形、方形、菱形、不规则多边形等。
③面砖 面砖采用品质均匀而耐火度较高的黏土制成,砖的表面有平滑的、粗糙的、带线条或图案的,正面有上釉与不上釉的,背面多带有凹凸不平的条纹,便于与砂浆牢固粘贴。常用于大型公共建筑,如展览馆、宾馆、饭店、影剧院以及商店等饰面。
4.饰面
饰面是指以金属或木质材料为骨架或框架,在其表面用装饰面板所形成的墙面和柱面。它与以砖墙柱和混凝土墙柱为基层进行的表面装饰有所区别。
(1)不锈钢饰面 不锈钢饰面是指将不锈钢板研压、抛光、蚀刻而成的装饰薄板。不锈钢板根据其反光率的大小分为镜面板、亚光板和浮雕板三种。
①圆柱不锈钢饰面。
a.木龙骨圆柱 这种圆柱是用不易变形的木方做成柱骨架,用三合板做柱面基层,整平光面后,在其上安装不锈钢面板。
b.钢龙骨圆柱 用角钢做立杆,用扁钢做横撑焊接成圆形骨架,将不锈钢饰面板用螺钉与其连接而成。
②方柱圆形面不锈钢饰面 这种饰面以木龙骨做柱芯,再在其上用支撑和龙骨固定为圆柱面而成。如图3-4所示。

图3-4 方柱圆形面不锈钢饰面示意图
(2)铝合金玻璃幕墙 玻璃幕墙是以玻璃板片做墙面板材,与金属构件组成大面积玻璃维护墙体,连接固定在建筑物主体结构上,形成一种特殊的外墙装饰墙面。它除具有光亮、华丽的装饰效果外,还具有隔声、隔热、保温、气密、防火等性能。
铝合金玻璃幕墙是以铝合金型材为骨架,框内镶以功能性玻璃,以此作为建筑物的饰面及维护墙体的整体构造。玻璃幕墙按外观形式可分为明框式、隐框式和半隐框式三种。明框式是指玻璃安装好后,骨架外露。隐框式是指玻璃直接与骨架连接,即用高强胶粘剂将玻璃粘到铝合金封框上,而不是镶嵌在凹槽内,骨架不外露,这种类型的玻璃幕墙在立面上看不见骨架和窗框,使玻璃幕墙外观更显得简洁、明快。半隐框式分竖隐横不隐(玻璃安放在横档的玻璃镶嵌槽内,槽外加铝合金压板)和横隐竖不隐(玻璃安放在立柱镶嵌槽内,外加铝合金压板)。
(3)硬木板条墙面及硬木条吸声墙面
①硬木板条墙面是以硬木薄板作为饰面板镶拼而成。
②硬木条吸声墙面,其也称为灰板条钢板网隔声墙面,它是用宽度20~40mm,厚度为5~10mm的木板条间隔8~12mm铺钉在木龙骨上(内衬油毡和玻璃棉)然后将钢板网片铺钉在木板条上,经整平固紧后抹1∶1∶4混合砂浆。
③石膏板隔声墙面,其实际上是一种镶嵌石膏板的墙面,它是在基层墙(一般为砖墙)面上剔洞埋木砖,按照石膏板宽做成木框架与木砖连接,然后在木框架上嵌以石膏板钉上木压条而成。
(4)丝绒饰面与胶合板饰面
①丝绒饰面 丝绒饰面是指用纺织物品(平绒、墙毡等)包饰的墙面。它是在基层墙面上预埋木砖,经粘贴油毡防潮处理后钉上木骨架,在骨架上满铺胶合板并嵌好拼接缝,然后用压条包铺好丝绒布而成。
②胶合板饰面墙 胶合板饰面墙是轻质薄层木饰面板的一种最简单的墙面装饰。它是在基层墙面上剔洞埋木砖,粘贴油毡,装订木骨架,铺钉胶合板,并安装压顶条和踢脚板而成。
(5)镜面玻璃和镭射玻璃墙面 这两种墙面均可安装在木基层面上或者粘贴在砂浆层面上
①木基层安装法是在砖基层上剔洞埋木砖,粘贴油毡,安装木骨架,钉装胶合板,然后用不锈钢压条将玻璃饰面钉压在木骨架上并用玻璃胶嵌缝收边而成。
②砂浆面粘贴法是将基面打扫干净后,涂刷108胶素水泥浆一道,接着抹20mm厚1∶2.5水泥砂浆罩面;待水泥砂浆罩面干燥后,用双面强力弹性胶带将玻璃饰面沿周边粘贴到砂浆面上,随即将铝合金压条涂上XY-508胶紧压住饰面边框,使之粘贴在砂浆面上,并在交角处铺钉钢钉以加强紧固。
此外,还有镁铝曲板柱面、电化铝板和铝合金装饰板墙面、石膏板隔墙以及玻璃砖隔断等。
3.1.2墙柱面工程识图
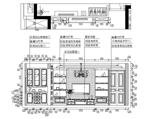
墙柱面工程计量计价的图纸依据主要是装饰施工图中的墙柱面立面图(如图3-5所示)、节点详图(如图3-6所示)。墙柱面饰面图纸识读应通过设计说明、墙柱面立面图、节点详图、材料表并结合原始建筑平面图获取以下必要的内容:
(1)结构墙、柱等构件尺寸、墙面标高;
(2)墙面装饰的造型形式、构造方式、墙面所用材料名称以及规格;
(3)施工工艺和详图尺寸、装修要求等文字说明。
|
图3-5 客厅电视背景墙立面 | |
|
(a) | ![]() (b) 图3-6 木饰面墙节点图 |





