夯基强技之——创建斜拉桥模型

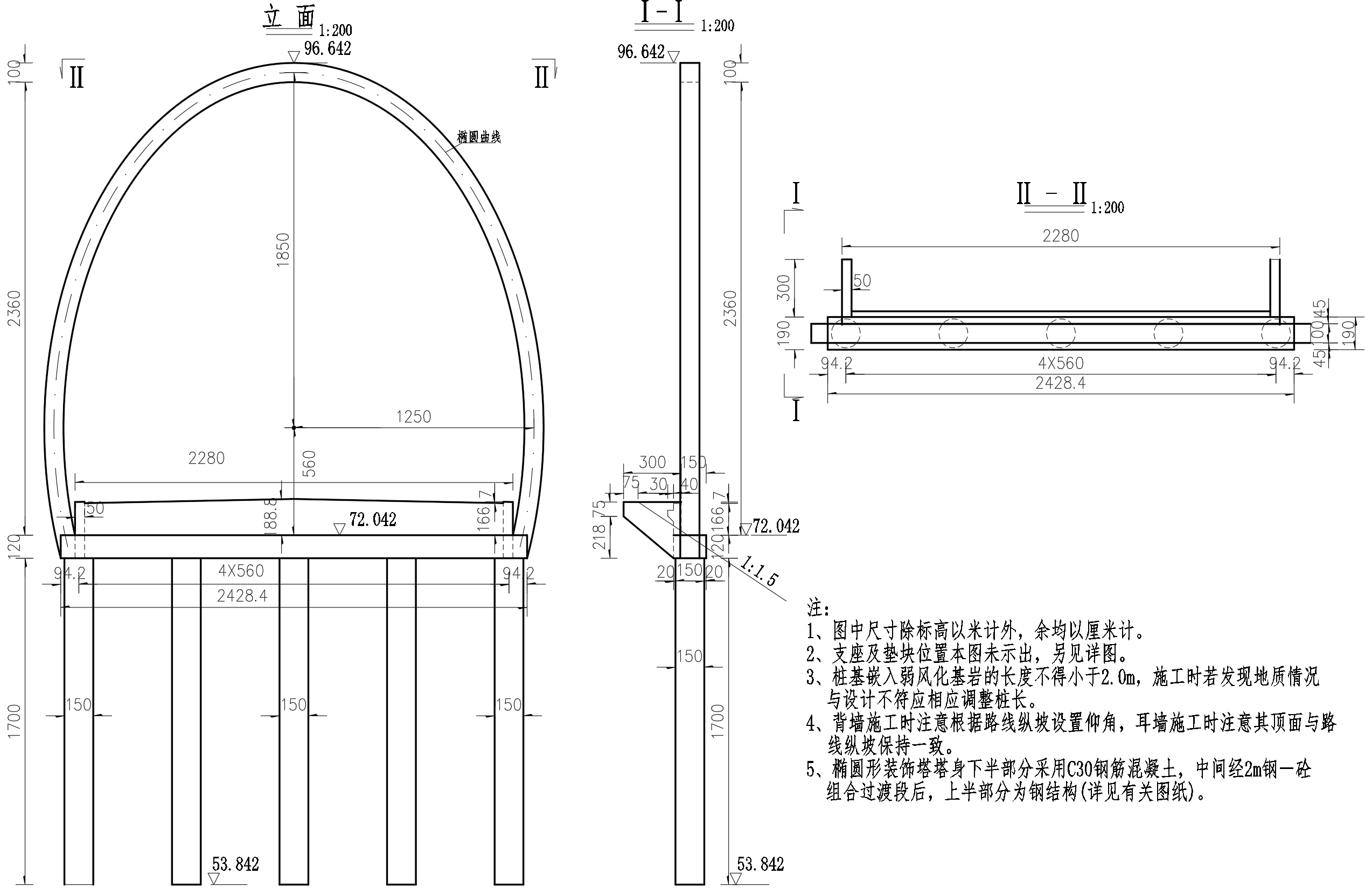
桥型 布置图



说明:
1、本图尺寸高程以米计,其余均以厘米计,高程为黄海高程系统。
2、本桥桥面宽11.1米, 其中机动车道宽7.5米,人行道宽2X1.8米。
3、斜拉桥索塔采用钢箱砼结构,主梁为预应力混凝土结构, .基础为钻孔灌注桩。
主梁构造图









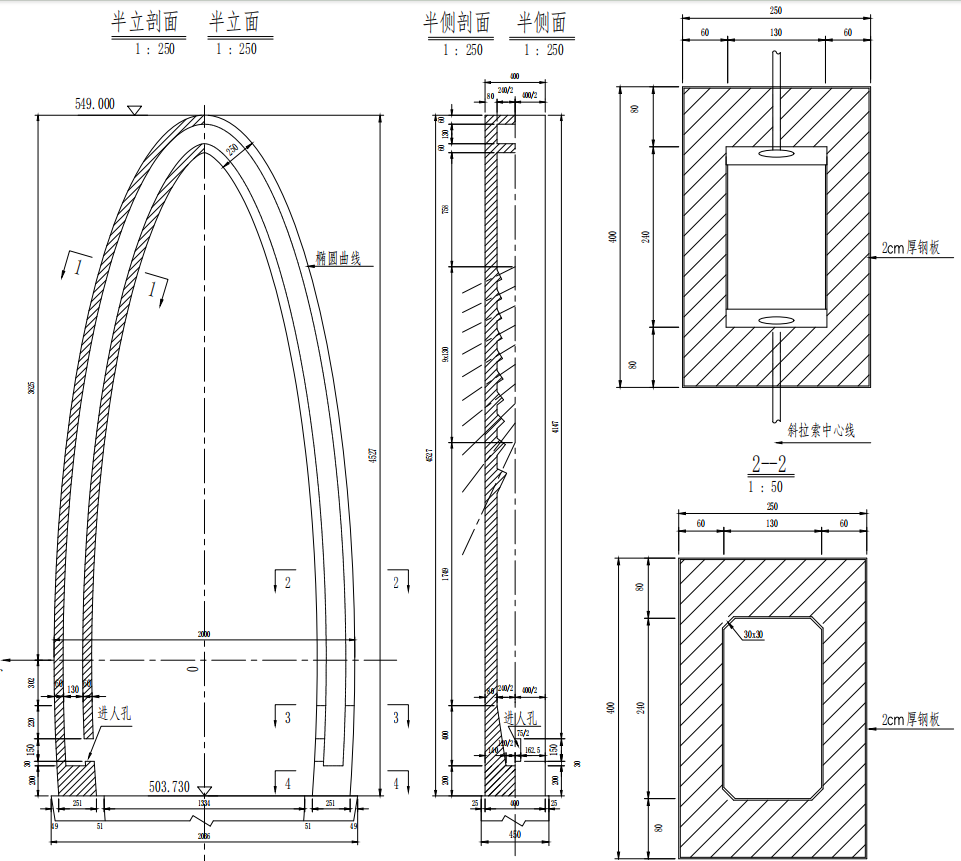
主塔结构图


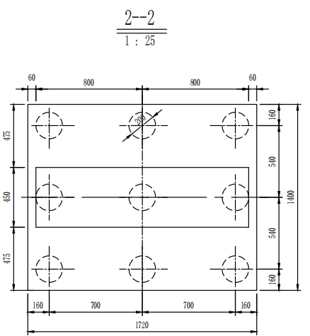
斜拉索主梁锚固构造及预埋结构件图

30mT梁横断面图


30mT梁一般构造图


0#桥台一般构造图


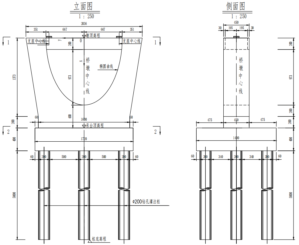
1#桥墩构造图



2#桥墩一般构造图



3#桥墩一般构造图



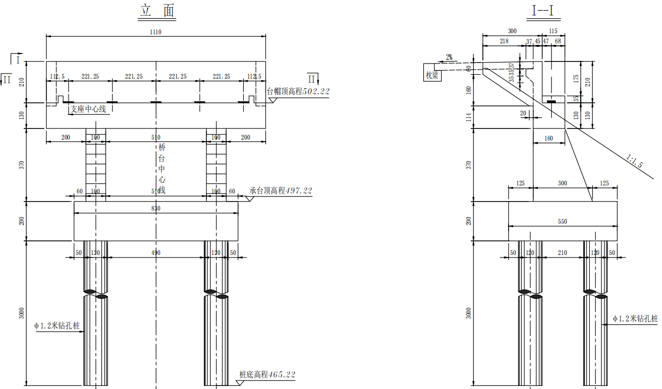
4#桥台一般构造图


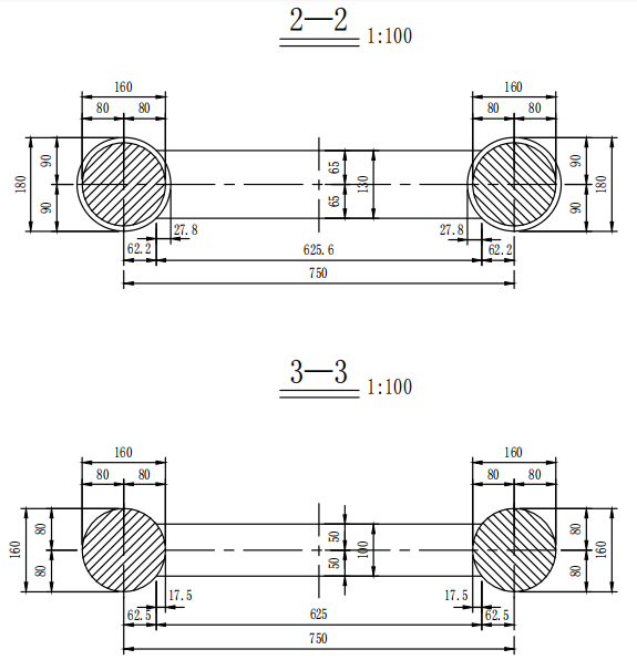
5.栏杆构造图






链接与导入
主要讲解Revit软件中如何链接、导入外部文件,以及在创建模型时相关族的载入方式方法,对于基础建模而言这是很重要的一步。插入设置时必须特别注意单位的设置,否则造成项目失真或者匹配错误。
通过学习,理解手动绘图和CAD链接的区别,掌握链接、导入的方法,链接文件操作步骤;了解链接和导入文件的区别,熟悉链接管理方法、载入方法;掌握对齐命令,尤其是在链接CAD的翻模过程中。要特别注意先后关系,先点击被对齐的图元线条,再点击要移动的图元。
一、链接Revit模型
Revit软件对Revit文件支持链接一种模式参照利用,将多个Revit文件进行整合。通过链接可以将外部独立文件应用到新的文件中,当外部文件发生变化时,通过更新链接后的文件会与之同步。

【执行方式】
“插入”选项卡→“链接”面板→“链接Revit”按钮
1)单击“插入”选项卡——“链接Revit”。弹出“导入/链接Rvt”对话框,选择需要链接的对象文件。
2)设置链接选项
在“定位”下拉列表中,选择项目的定位方式,
自动:以“自动中心到中心”为例,指Revit以自动方式将链接模型中心放置到当前项目模型的中心,在当前视图中可能看不到此中心点。“自动-原点到原点”指以自动方式将链接模型原点放置在当前项目的原点上。
手动:“手动-原点”指用手动方式以链接模型原点为放置点将文件放置在指定位置。“手动-基点”指以手动方式以链接文件基点为放置点将文件放置在指定位置,仅用于带有已定义基点的AutoCAD文件。
3)单击打开 将Revit文件链接进入项目中。
二、链接CAD文件
Revit软件对CAD文件支持链接和导入两种模式参照利用。通过链接DWG文件,可以将已有的DWG文件引用到项目中,在二维平面的基础上进行三维模型的搭建,以达到提高建模效率的目的。
【执行方式】
“插入”选项卡→“链接”面板→“链接CAD”按钮
1)单击“插入”选项卡——“导入CAD”或者“链接CAD”。弹出“链接CAD格式”对话框,如图2-2-3所示。找到并选择需要的CAD文件。
2)设置导入或链接选项
仅当前视图:勾选后,链接的CAD文件只显示在此次导入的视图中,其他视图不可见。
颜色:包含保留、反选、黑白三种选项,指链接进来的CAD线条颜色的显示。
图层|标高:包含全部、可见、指定三种选项,通过此选项筛选需要导入的对象。
导入单位:导入单位须与导入的文件单位一致,根据我国制图规范一般选择mm。
定向到视图:该选项默认处于选择状态,例如,将当前视图设置为“正北”,而“正北”已转离“项目北”,则清除此选项可将CAD文件与“正北”对齐。如果选择此选项,则CAD文件将与“项目北”对齐,不考虑视图的方向。
纠正稍微偏离轴的线:对导入文件进行纠偏操作。
三、链接管理
链接文件为外部参照的形式,与源文件有关联关系,所以需保留源文件的路径。导入文件为载入参照模式,与源文件部存在关联关系。
链接到项目中的Revit文件、CAD文件等,都将在链接管理器中统一管理,可以在链接管理器中对当前项目中链接的文件进行相关设置和处理。
【执行方式】
功能区:“插入”选项卡→“链接”面板→“管理链接”按钮
【操作步骤】
点击“管理链接”按钮,打开管理链接对话框。项目中所有链接文件均显示在“链接名称”中。单击某一链接文件,激活对话框下面的功能按钮,就可以对文件进行重新载入、卸载、删除等操作,单击确定完成链接管理。
四、导入
可以将外部创建好的DWG文件导入到项目中,用于辅助建模,提高建模效率。与链接方式不同,导入图元在导入后与源文件失去关联。链接CAD相当于借用CAD文件,如果在外部CAD移动位置或者删除,Revit中的cad也会随之消失。导入CAD相当于直接把CAD文件变为Revit本身的文件,外部的CAD变化不会对Revit中的CAD产生影响,但是CAD文件会占用项目的大小。
创建栏杆族——

族样板为结构框架-梁与支撑(拉伸命令和放样命令)

创建类型目录参数表。
