
介绍高架桥真实桥梁的建模流程,将理论用于实践,进一步提升学生BIM建模能力。
课程思政元素融入点——培养理论联系实际,提高技能,引导学生胸怀祖国,放眼世界,勇于肩负起时代赋予的责任和使命,为实现中华民族伟大复兴的中国梦忘我学习、砥砺前行。

石大路高架桥15跨,边跨为15m,其他跨均为30m,下部结构为桩柱式桥墩,桩柱式桥台,其他6、7号桥墩立柱为异型柱,上部结构为箱梁,根据1-1-1系列图纸,完成高架桥的建模。




高架桥:https://720yun.com/vr/a0125w8vwcn
高架桥效果图
1.侧视图-夜间

2.侧视图-白天

3.俯视图-白天

4.俯视图-夜间

4.俯视图-雨天

5.正视图-白天

建模思路——
在完成高架桥的标高轴网后,载入高架桥各构件,逐一将各构件进行组拼,完成高架桥的创建。



桥型布置图







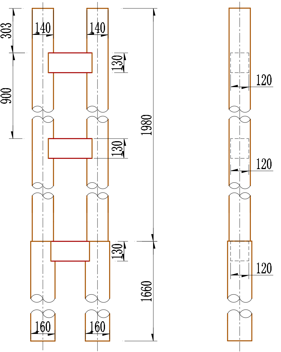
桥墩构造图


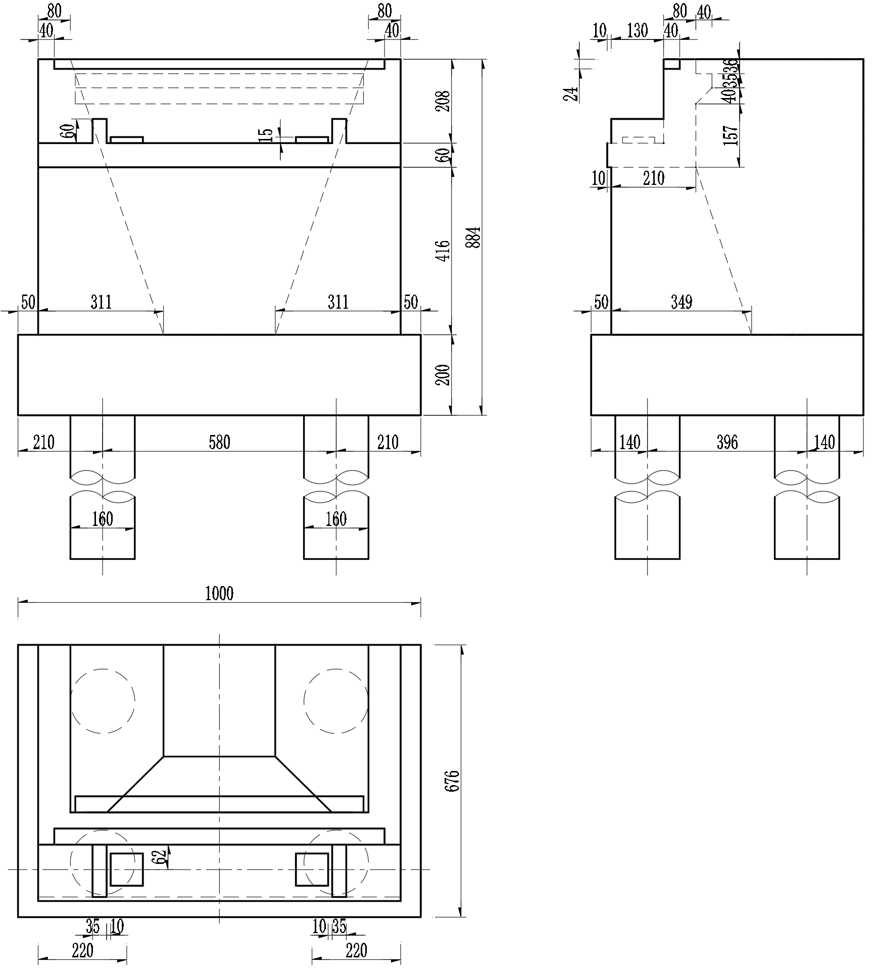
箱梁一般构造图(中)






箱梁一般构造图(边跨)

高架桥项目文件
高架桥族文件


知识目标
1.识读桥梁总体布置图
2.轴网与标高
3.项目基点
4. Revit有关建模标准
5.掌握根据CAD图纸创建异型立柱、箱梁族
能力与素质目标
1.正确识读桥梁整体布置图,明确桥墩桥台的定位。
2.掌握轴网与标高来定位桥梁的基准
3.掌握建模标准之项目初始设置。
4.掌握高架桥下部结构各构件的拼装
5.掌握高架桥上部结构箱梁以及墩顶横隔梁的拼装
6.明确桥梁建模精度对于桥梁的重要性,培养学生严谨务实的精神。

夯基强技之——根据图纸,创建桥梁模型









1.创建标高
把0#桥台位置桥面标高为0标高

2.设置轴网
根据立面图绘制轴网及参照平面定位桩基、桥面板的宽度尺寸。

3.绘制桩基




4.创建桥台、墩柱与系梁






5.创建箱梁、栏杆


关于工作集
“工作集”是Revit提供给用户的另外一种协同操作方式.工作集与链接模型的不同之处在于:链接
模型中各个模型是独立的,当模型在编辑时,其他人无法改动:而工作集是多人共同编辑一个存在于局
部网上的“中心文件”,每个操作人员有各自的权限,只能修改自己的权限内的内容,一旦需要编辑权限
外的部分,需得到临时授予的“权限”才能进行操作,
工作集应用展示,
Revit工作集设置步骤如下 :
打开中央模型的本地副本,单击“协作”选项卡“管理协作”面板中的“工作集”。
在“工作集”对话框中,点击“新建”。
在“新工作集”对话框中,输入新工作集的名称。若希望工作集显示在所有项目视图中,勾选“在所有视图中可见”;若只想让其显示在特意打开可见性的视图中,则不勾选此选项。
点击“确定”,新工作集会显示在工作集列表中,且“拥有者”会显示当前用户名。
若要为每个工作集指定拥有者,每个团队成员需打开中央模型的本地副本,在“工作集”对话框中选取工作集,然后在“可编辑的”栏中选择“是”。
完成建立工作集后,点击“确定”关闭“工作集”对话框。若已加入新工作集,Revit会提示启动新工作集,根据需要点击“是”或“否”。
Revit工作集划分的标准命名规则通常需要遵循一定的原则,以确保团队成员能够清晰理解工作集的内容和归属,提高协同工作效率。以下是一些常见的命名规则:
1.包含专业信息:工作集名称应首先明确所属专业,如“建筑”“结构”“机电”等,方便各专业人员快速识别和定位自己负责的部分。例如,“建筑-1号楼-F1层-墙体”“结构-2号楼-B1层-框架柱”。
2.体现项目子项:如果项目包含多个子项,如不同的楼栋、区域等,应在工作集名称中体现出来,便于按子项进行管理和协作。例如,“商业楼-机电-给排水系统”“住宅楼-结构-基础部分”。
3.标注楼层信息:对于按楼层划分的工作集,要明确标注楼层编号,且楼层编号应全专业统一。如“F1层-建筑门窗”“F3层-结构梁”。
4.说明构件类别:工作集名称中应包含所涉及的构件大类,如“柱”“梁”“墙”“管道”“风管”等,使团队成员一目了然工作集内的主要构件类型。例如,“结构-1号楼-F1层-柱-cz”“机电-2号楼-F2层-风管-fg”。
5.添加创建人标识:可以在工作集名称末尾添加创建人或负责人的拼音首字母缩写,以便明确工作集的归属和责任。例如,“建筑-1号楼-F1层-墙体-ll”。
6.对于特殊系统或功能:对于机电等专业的特殊系统或功能,应在名称中详细说明。例如,“机电-给排水-生活热水系统”“机电-电气-照明系统”。
Revit工作集的标准命名规则示例:
1.建筑专业:“建筑-1号楼-F2层-墙体”“建筑-2号楼-屋顶-屋面防水”“建筑-裙楼-幕墙-玻璃幕墙”。
2.结构专业:“结构-1号楼-F1层-柱-cz”“结构-2号楼-F3层-梁-ls”“结构-地下室-基础-独立基础”。
3.机电专业:“机电-给排水-1号楼-F4层-给水管网”“机电-电气-2号楼-F5层-照明系统”“机电-暖通-裙楼-空调风管”。
4.链接文件工作集:“z-link-建筑-1号楼-方案设计”“z-link-结构-2号楼-初步设计”“z-link-cad-场地平面图”。