目录

  • 1 项目一:园林史总论
    • 1.1 园林的生成期
    • 1.2 园林的转折期
    • 1.3 园林的全盛期
    • 1.4 园林成熟期(一)
    • 1.5 园林成熟期(二)
    • 1.6 园林成熟期(三)
    • 1.7 皇家园林
    • 1.8 私家园林
    • 1.9 单元测试
    • 1.10 思政驿站:勿忘国职,激发使命
  • 2 项目二:山石文化
    • 2.1 何为掇山叠石
    • 2.2 山石在各个时期发展特点(一)
    • 2.3 山石在各个时期发展特点(二)
    • 2.4 古典园林假山石石品
    • 2.5 因山石而闻名的园林
    • 2.6 单元测试
    • 2.7 思政驿站:品名人作品,增文化自信
  • 3 项目三:理水文化
    • 3.1 水体及其类型(一)
    • 3.2 水体及其类型(二)
    • 3.3 理水艺术的历史演变(一)
    • 3.4 理水艺术的历史演变(二)
    • 3.5 单元测试
    • 3.6 思政驿站:陶冶情操,提高审美
  • 4 项目四:植物文化
    • 4.1 植物文化的发展脉络
    • 4.2 花中四君子-梅兰竹菊
    • 4.3 中国传统十大名花(一)
    • 4.4 中国传统十大名花(二)
    • 4.5 植物景观的意境营造
    • 4.6 植物香景的营造
    • 4.7 单元测试
    • 4.8 思政驿站:汲取古人智慧,创造优秀作品。
  • 5 项目五:建筑文化
    • 5.1 中国古典园林建筑的类型
    • 5.2 中国特有建筑结构-斗拱
    • 5.3 中国古典园林建筑亭及类型
    • 5.4 中国古典园林建筑廊及其类型
    • 5.5 单元测试
    • 5.6 思政驿站:坚定文化自信,提升国家认同感
  • 6 项目六:古典园林作品赏析
    • 6.1 江南园林
    • 6.2 巴蜀园林
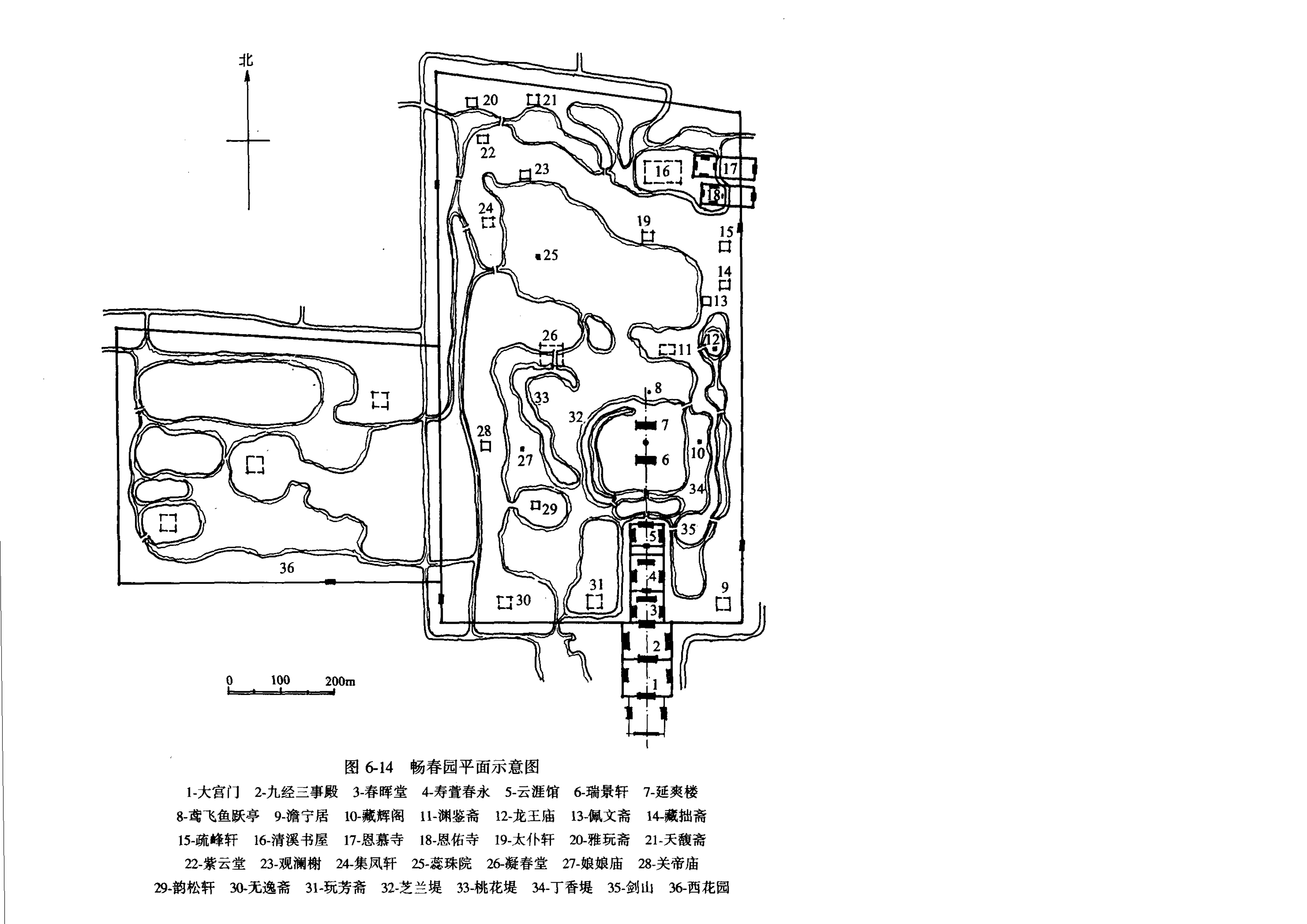
    • 6.3 北方园林
    • 6.4 岭南园林
    • 6.5 单元测试
    • 6.6 思政驿站:提炼精华,古为今用
  • 7 项目七:继承与发展
    • 7.1 继承与发展的案例
    • 7.2 新中式园林
    • 7.3 单元测试
    • 7.4 思政驿站:关注现实、继承创新
水体及其类型(一)
  • 1 视频
  • 2 课件
  • 3 随堂测试