知识目标:
1、能描述精密台虎钳各零部件的结构特点及特征。
2、能说出工程制图的主要步骤和图纸页的主要内容。
3、能说明基本视图、剖视图、尺寸标注、注释工具的功能和操作步骤。
技能目标:
1、能根据精密台虎钳图纸和实物图片准确分析产品结构特征。
2、能使用草图、拉伸、旋转、螺纹、阵列特征等特征工具完成精密台虎钳各零部件的创建。
3、能使用组件添加、装配约束完成精密台虎钳的整体装配及爆炸图,并进行真实着色渲染。
4、能使用图纸页、基本视图、剖视图、尺寸标注、注释、零件明细表工具完成精密台虎钳各零件及装配图的工程图制作与编辑。
思政目标:
1、能根据工作任务要求进行任务分析,养成细致分析的职业习惯。
2、能制定合理工作计划,相互协作、相互帮助,坚持完成自己所承担的工作任务。
3、能分享交流精密台虎钳不同标准的功能区别,感悟严格标准的工匠精神。

任务背景:
台虎钳,又称虎钳,是用来夹持工件的通用夹具,其起源可以追溯到19世纪初,当时英国发明家约瑟夫·布拉马(Joseph Bramah)发明了一种用于固定工件的机械装置,这便是台虎钳的雏形。随着工业革命的推进,台虎钳逐渐发展成为一种广泛应用于机械加工、木工、金属加工等领域的工具。20世纪初,随着精密加工技术的发展,精密台虎钳应运而生,为各种高精度加工提供了有力支持。
1、精密台虎钳的类型
机械式精密台虎钳:通过手动或气动、液压等方式驱动螺杆,实现对工件的夹紧和松开。这种类型的台虎钳结构简单,操作方便,但夹紧力和精度受到一定限制。
液压式精密台虎钳:利用液压系统提供夹紧力,具有较大的夹紧力和较高的精度。液压式精密台虎钳广泛应用于重型加工和高精度加工领域。
2、精密台虎钳的功能
精密台虎钳的主要功能是对工件进行精密装夹和固定,以保证加工过程中的精度和稳定性。此外,精密台虎钳还具有以下功能:
图1 机械式及液压式精密台虎钳
可调式夹紧力:根据不同工件的材料和加工要求,精密台虎钳可以调整夹紧力,以防止工件变形或损坏。
可调式夹紧范围:精密台虎钳通常具有可调节的夹紧范围,以适应不同尺寸的工件。
3、精密台虎钳零部件结构特点
工作台虎钳的精密夹紧和固定功能与其组件的几何结构和形状特征密切相关,精密台虎钳的主要零部件包括螺杆、螺母、滑块、底座、活动钳口等。这些零部件的几何结构形状特点与其精密装夹、固定功能之间存在密切联系:
螺杆和螺母:螺杆和螺母的螺纹形状决定了夹紧力的传递方式和精度。高精度的螺纹设计可以提高夹紧力的传递效率,降低摩擦损失,从而提高夹紧精度。
滑块:滑块在螺杆的驱动下实现活动钳口的移动。滑块的结构设计应保证其在运动过程中的平稳性和精度,以确保工件的稳定装夹。
固定座和活动钳口:固定座和活动钳口的形状设计应保证其与工件的良好接触,以实现精确的定位和夹紧。此外,钳口的材质和表面处理也会影响夹紧效果,如硬度、耐磨性等。
图2 精密台虎钳结构组成
引导问题1:
请结合任务背景和相关材料,写出和精密台虎钳功能特点相关的精神蕴意?
引导问题2:
通过对任务背景及任务书的分析,你认为该产品有哪些零部件?每个零部件结构特征及相互之间的约束关系是什么?(可以用思维导图进行分析)

根据以上分析,你认为该产品的三维建模需要哪些步骤?请把你的计划写出来。
引导问题3:
通过对产品图纸的分析,你认为该产品需要制作哪些零件的工程图?每个零件需要哪些视图?尺寸标注及注释的基本流程是什么?(可以用思维导图进行分析)

根据以上分析,你认为该产品的制图需要哪些步骤?请把你的计划写出来。
在做完计划之后,请严格执行工作计划,主动完成任务。在任务实施过程中,做好每个步骤的记录可以随时检查出现的问题,请根据你的实施过程填写下表。
在学习过程中可先按照工作过程的示范性操作进行训练,也可在操作过程中根据自己的具体情况参考关键步骤的做法。
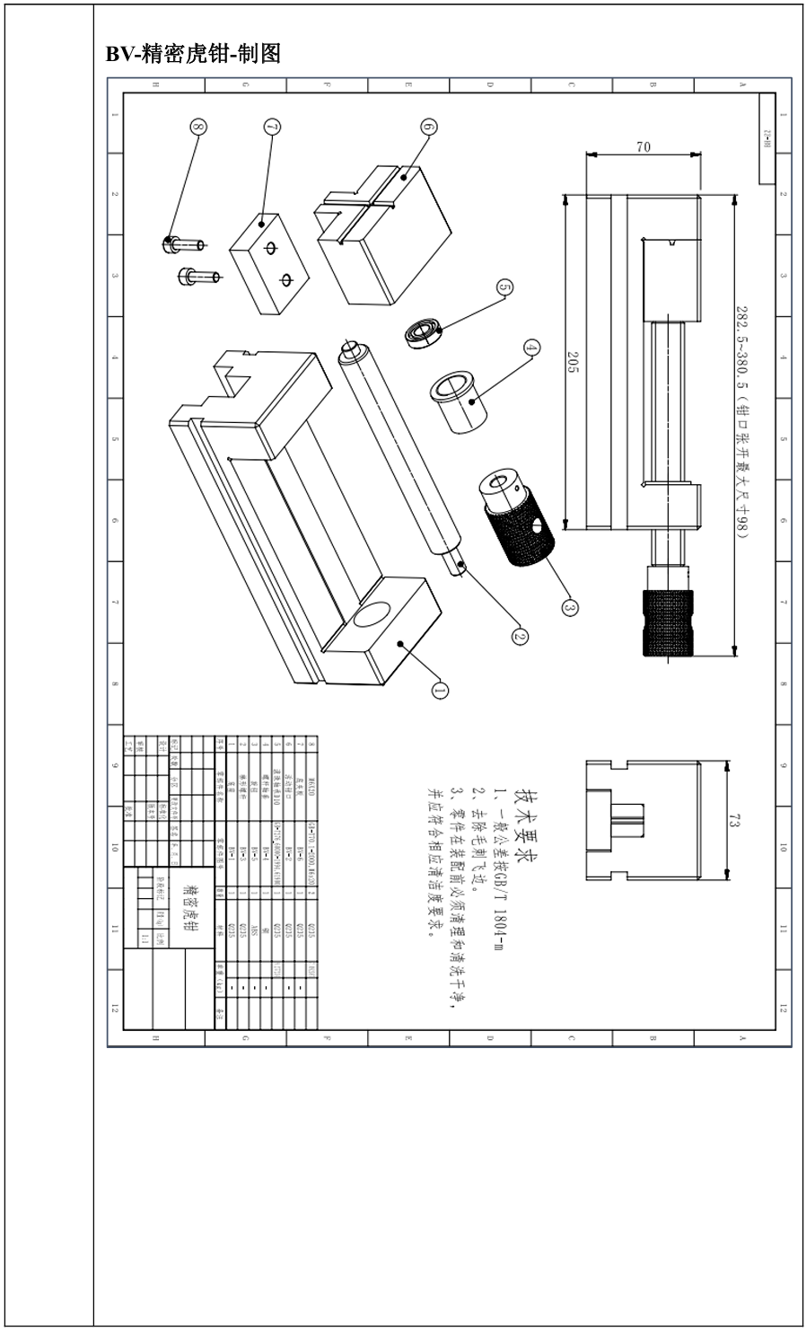
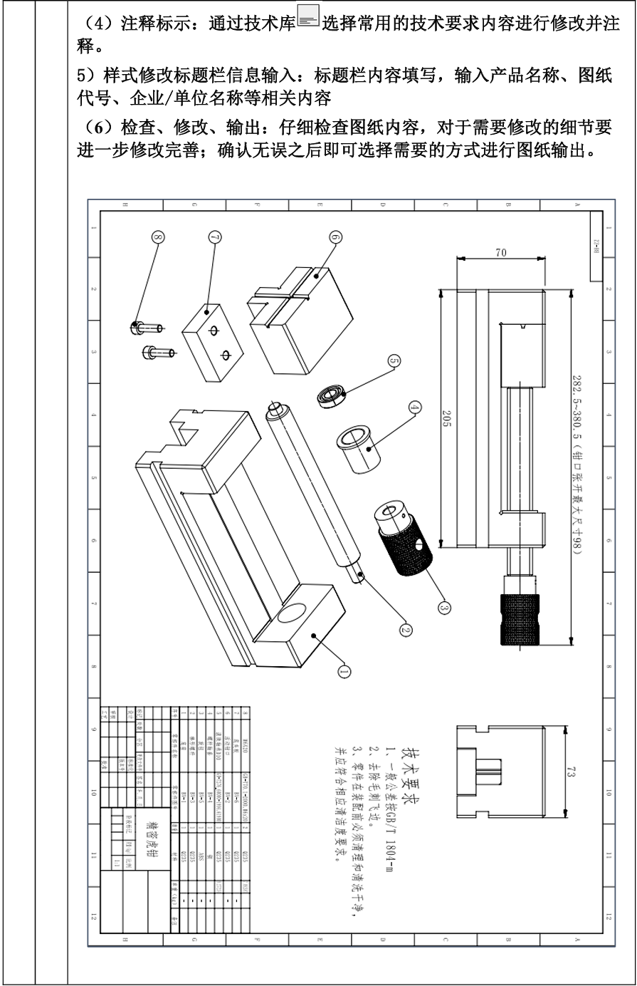
表2 任务操作流程示范




































知识点1:局部放大图
(1)局部放大图功能与要求
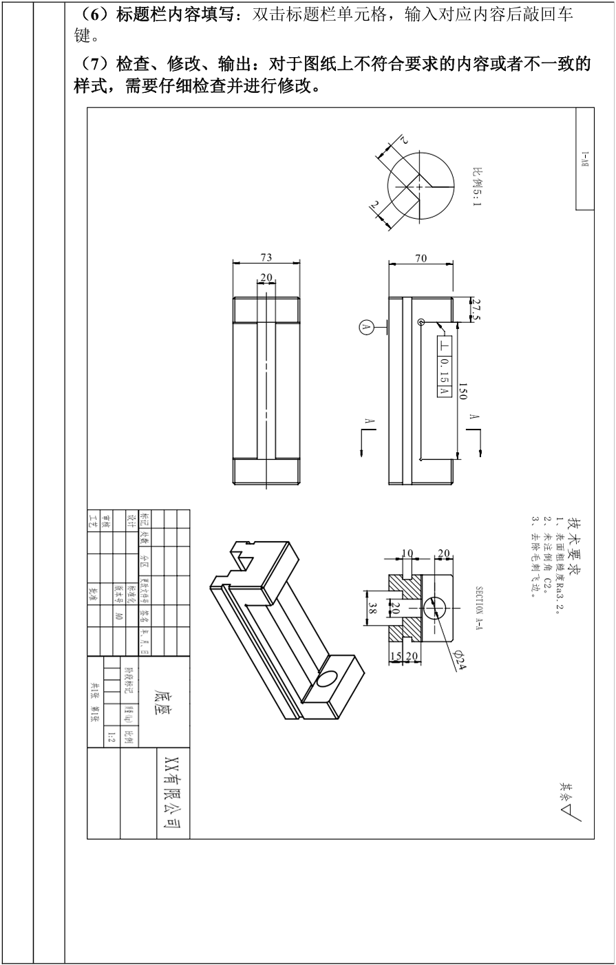
局部放大图(或称为局部详图)通常用于展示图纸中某一特定区域的详细信息,以便更清晰地传达设计意图、结构细节或尺寸标注。在制图国家标准(GB/T 4458.1-2002)规定:局部放大图是用大于原图形所采用的比例画出的图形,局部放大图可画成视图,也可画成剖视图、断面图,它与被放大部分的表示方法无关;局部放大图应尽量配置在被放大部位的附近。另外,当零件上被放大的部分仅一个时,在局部放大图上方只需注明所采用的比例,而当同一零件上有几个被放大的部分时,应用罗马数字依次标明被放大的部位,并在局部放大图的上方标注出相应的罗马数字和所采用的比例,如下图所示。

图3 局部放大图画法实例(GB/T4458.1-2002)
(2)局部放大图工具
NX制图为用户提供了
工具,可快速创建所需的局部放大图类型和样式,一般使用步骤为:选择局部放大图类型(默认圆形)→指定放大边界(例如圆形的中心和边界点)→设置放大比例(可直接选取列表中的常用比例值,也可选择比率和表达式输入)→设置放大图标签→预览并用鼠标左键点选放置位置→关闭。

图4 局部放大图操作步骤
对于NX默认的局部放大图不符合国标的要求,我们可以先将其隐藏,然后通过注释工具
自定义符合国标要求的数字标题和比例,如下图所示。

图5 通过注释自定义局部放大图标签
知识点2:局部剖视图
与全剖视图功能类型,局部剖视图也用来展示复杂结构或内部细节,但剖视图局部剖视图仅展示物体的特定部分,因此需要定义视图边界,再设置其他剖切参数。
NX制图为用户提供了
工具,可根据用户定义的视图边界和剖切位置创建所需的剖视图,因此其操作步骤可分为两部分:
(1)局部剖视图边界创建
局部剖视图边界需要在对于视图上利用草图样条曲线工具进行绘制,在普通视图状态无法直接绘制草图,因此需要先通过右键激活对应视图的草绘编辑状态(活动草图视图状态下被选视图的蓝色虚线框显示),再进行具体边界线的绘制(例如艺术样条曲线工具),注意边界必须是封闭曲线,绘制过程如下图所示。

图6 局部剖视图边界曲线创建
(2)局部剖视图创建
局部剖视图创建的条件包括四个:视图对象、剖切点、剖切后视图方向、剖切边界线,
一般使用步骤为:选择创建局部剖视图的视图对象(注意选择完成之后对应的视图边界为高亮橙色)→指定剖切点(一般选择相邻视图上能定位剖切平面的位置点)→设置剖切后视图方向(一般默认方向即可)→选择视图边界线→应用,检查局部剖视图创建结果→关闭。

图7 局部剖视图创建步骤
知识点3:断开视图
断开视图常用于展示那些因为图纸尺寸限制(视图超出图纸页边界)或其他原因无法在正常视图比例下清晰表达的部件,例如较长的零件件(轴、杆、型材、连杆等),其形状特点是沿长度方向的形状一致或按一定规律变化,需要标注的尺寸较少而视图尺寸太长,为节省视图空间,可以通过绘制断开视图,从而减少图纸上的拥挤,使得图纸更加清晰易读。断开视图的断裂边界一般可用波浪线、双折线或细双点画线进行绘制。
NX制图为用户提供了
工具,可快捷的创建符合国标的断开视图以便进行后续标注,一般使用步骤为:选择创建断开视图的视图对象(注意选择完成之后对应的视图边界为高亮橙色)→指定断开的方向→选择断裂线1的位置→选择断裂线2的位置(可通过偏置调整相对位置)→设置断裂线的间隙和样式及对应的参数→确定或应用,检查断开视图创建结果(如果需要修改断裂线样式可直接双击断开视图上的断裂线即可进入设置窗口。

图8 断开视图创建步骤
“一份耕耘、一分收获!”,相信你在前面的工作实施中付出的诸多努力,会带来丰富的收获,当然你也遇到了许多考验,请你根据下面的任务报告书呈现你的工作成果,并对工作过程中困扰你的问题(如:产品分析问题、特征操作错误等)进行总结,为下次更好的完成任务做好准备。

专业技能、职业素养和思政素质是一个人职业生涯成败的关键因素,本次工作任务的评价按照学习任务综合评价表的内容进行,请你按照表中的评价条目及标准客观地完成对自己和其他同学的任务评价。
“评价不是为了证明,而是为了改进”,希望你能通过评价发现自己的优劣势,在以后的工作中不断改进,成为“更好的自己”。

任务总结:
阵列特征
本次建模任务的产品对象为精密台虎钳,其外形结构基本都为板式结构,要先创建其主要特征,再创建其他特征。
项目技能导图
你的经验总结(可在下面增加你的总结内容)
拓展任务:
“学无止境,挑战自我”,请根据本次所学知识和技能,完成以下拓展任务。
为满足市场潜在用户的需求,精密台虎钳厂家需要设计制作标准系列化的台虎钳产品,通过不同尺寸规格的零件组合能满足不同的使用场景需要(加持工件尺寸、工作范围等不同需求),请结合本次项目任务的经验,参考下面提供的资料(产品样式和规格标准),合理制定计划,分工协作完成某个型号的精密台虎钳的三维建模、装配与制图工作,并提交设计资料(包括三维模型、渲染效果图、零件图及装配图、相关设计说明等)。
