任务二 启动机的拆卸、安装及常见故障分析
任务目标
1.知道启动机在维修过程中的一般注意事项;
2.能够正确地把启动机从汽车上拆卸下来和安装上去;
3.能够对启动系的常见故障进行分析并排除。
必备知识
1.启动机的使用与维护
1)启动机的使用注意事项
(1)启动机是按短时间工作要求设计的,且工作时电流很大,因此每次接通启动机的时间不应超过5秒,重复启动时应停止2分钟;
(2)冬季和低温地区冷车启动时,应先预热发动机,然后再使用启动机;
(3)启动发动机时,应踩下离合器踏板或将变速杆置于空挡,严禁挂挡启动;
(4)启动后应立即松开点火开关,使启动机停止工作,以减小单向离合器不必要的磨损。
(5)发动机工作时,严禁启动机投入工作;
(6)发动机启动后,如启动机不能停止,应立即关闭电源总开关,或拆除蓄电池搭铁线,查找故障。
2)启动机的维护要点
(1)经常检查启动电路各导线连接是否牢靠;绝缘是否良好;
(2)经常保持启动机机体和各部件的清洁干燥。汽车每行驶3000km后应检查清洁换向器;
(3)汽车每行驶5000~6000km后应检查电刷的磨损程度和电刷的弹簧压力;
(4)经常检查传动机构和控制装置的活动部件,并按规定加以润滑;
(5)启动机一般每年应进行一次维护性检修,可视实际情况做适当的缩短或延长。
2.启动电路故障的分析与检查
1)启动系统故障通常分为四大类
(1)不能启动;
(2)启动无力;
(3)启动机旋转但带不动发动机;
(4)启动系统发出异常噪声。
2)启动机主要故障与排除方法(如表9-1所示)
表9-1 启动机主要故障与排除方法

任务实施
1.考核标准

2.相关设备
(1)桑塔纳2000型汽车。
(2)蓄电池卡子拉拔器。
(3)常用工具。
3.注意事项
(1)参考维修手册中有关分离开蓄电池的正确操作规程,某些带有车上计算机的汽车必须配备辅助电源;
(2)在断开启动电路的任何导线时或拆卸启动机之前,应拆下蓄电池搭铁电缆;
(3)一定要将汽车正确地放置在汽车举升器或安全支座上;
(4)在进行任何启动检测前,确认汽车是在驻车挡或空挡并且施加了驻车制动;
(5)按照制造厂的说明书使点火系统不起作用;
(6)确认检测导线与任何旋转的发动机部件不发生干涉;
(7)切勿用溶剂或汽油清洁任何电器部件,应使用压缩空气,变性酒精进行清洗,或只用擦布擦净。
4.实施步骤
1)启动机的拆卸
(1)拆下蓄电池负极电缆,将启动系统与蓄电池分离开;
拆下蓄电池负极电缆后,应用胶布缠上电缆卡子,这样可防止它与蓄电池电极柱接触;
(2)举升汽车,以便于接近启动机,举升之前,分离开那些可能触及发动机舱顶的线束、紧固件等;
汽车升离地十几厘米之后,检查顶在大梁接触处的法兰是否适当,晃动汽车,如果有任何不正常的噪声或汽车移动,则降低汽车,然后重新安装法兰;
(3)分开接到电磁开关的导线,为了防止混淆,好习惯是用一块胶带标明不同的导线,如图9-42所示;

1—玫瑰红色线束夹头2—黑色线束夹头3—屏蔽板
图9-42 启动机电线的走向
(4)在有些车上必须拆下排气系统才能拆下启动机,在排气系统紧固件上喷洒渗透性油有助于拆卸。松开启动机固定螺栓只保留一个螺栓,其余都卸下。托处启动机,拆下最后那颗螺栓,然后拆下启动机。
启动机很重,拆下最后一颗螺栓时一定要注意安全。
2)启动机的安装
(1)按拆卸相反的步骤组装启动机,确认所有的电器连接都牢靠,如果安装一台新的或翻新的启动机,应除去可能妨碍良好搭铁连接的漆皮;
小心不要让启动机坠落,要确信已经稳当的托住了它。
(2)用20N·m的力矩旋紧螺栓和螺母把支架1套在启动机上,然后装上垫片,弹簧垫圈和螺母(M5),并用力旋紧,把这个支架连同启动机一起装在发动机上,检查启动机马达的两个外壳螺栓(M5)是否能在槽壳中活动,必要时用锉刀加工(到足以保证安装时有活动余地),最后紧固螺母,如图9-43所示。
(3)启动机安装后,应检查小齿轮与飞轮齿间的间隙,如果间隙过大,启动发动机时会产生高节拍的摩擦声,如果间隙太小,也会产生高节拍的摩擦声如图9-44所示。

图9-43 启动机的安装

图9-44 检查小齿轮与飞轮间隙之间的间隔
维修提示:驱动端盖断裂的主要原因是由于小齿轮与飞轮齿圈之间的间隙太小,间隙宁可大些而不希望小些。
间隙大小的调整通常通过插垫片来实现,如图9-45所示。

一片0.015in英寸薄垫片将增加大约0.005in英寸的间隙
图9-45 启动机插垫片来调整小齿轮与飞轮齿之间的间隙
3)启动机故障
(1)启动马达不转
测试条件
①电磁继电器上的电线接头与发动机与车身之间必须紧固,而且不能氧化;
②蓄电池里面充满电。说明:使用伏特表测试蓄电池端电压。

(2)启动机转得太慢,不能启动发动机
检查条件:
①在冬季使用的发动机机油要与外界温度相适应;
②三角皮带的张力正常。

(3)电磁开关实物图(如图9-46所示)

1—接线柱30(接蓄电池);2—接线柱50(接点火开关);3—励磁线圈接线柱。
图9-46 电磁开关实物图
说明:注意电路图中50线的走向。
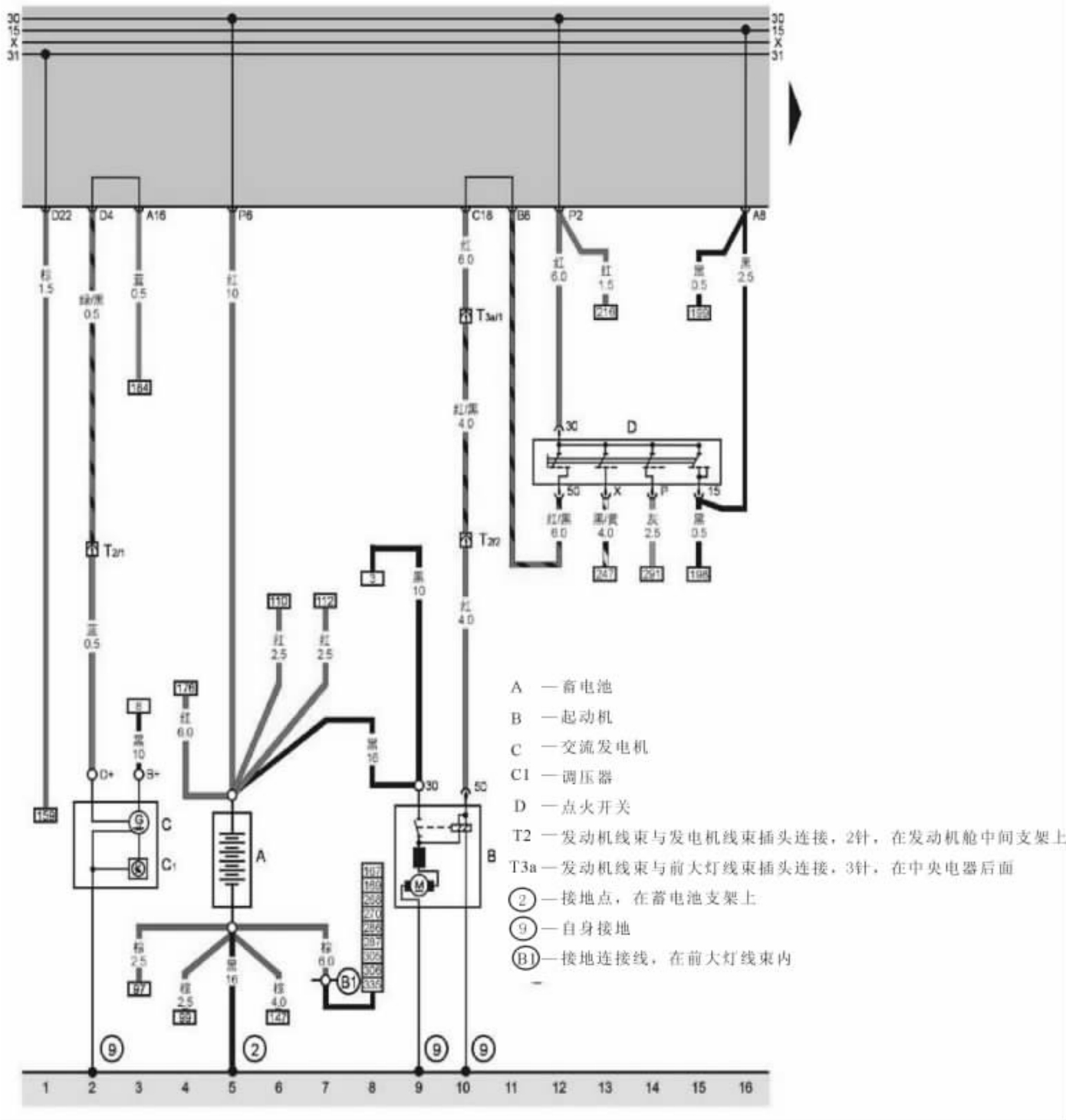
(4)桑塔纳2000型汽车启动系电路图(如图9-47所示)

图9-47 桑塔纳2000型汽车启动系电路图
任务报告
理论习题
1.简述启动机的使用注意事项。
2.简述启动机的维护要点。
实训报告
1.请根据本次实验的学习内容,将下表填写完整。

2.若启动马达不转,请根据本次实验的学习内容,将故障诊断流程表填写完整。
测试条件
(1)_______________________________________;
(2)_______________________________________。





3.若启动机转的太慢,不能启动发动机,请根据本次实验的学习内容,将故障诊断流程表填写完整。
检查条件:
(1)_______________________________________;
(2)_______________________________________。


任务评价

教师签名:__________学生签名:__________
日期:__________