1
建筑构造与识图
1.15.7 §11.7 景观栏杆

§11.7 景观栏杆

栏杆在绿地中起分隔、导向的作用,使绿地边界明确清晰,设计好的栏杆,很具装饰意义,就像衣服的花边一样,栏杆不是主要的园林景观构成,但是量大、长向的建筑小品,对园林的造价和景色有不少影响,要仔细斟酌推敲才能落笔生辉。

11.7.1 栏杆的高度

低栏0.2~0.3m,中栏0.8~0.9m,高栏1.1~1.3m,要因地按需而择。随着社会的进步,人民的精神、物质水平提高,更需要的是造型优美,导向性栏杆、生态型间隔。切不要以栏杆的高度来代替管理,使绿地空间截然被分开来。相反,在能用自然的、空间的办法,达到分隔的目的时,少用栏杆。如用绿篱、水面、山石、自然地形变化等。

一般来讲,草坪、花坛边缘用低栏,明确边界,也是一种很好的装饰和点缀,在限制入内的空间、人流拥挤的大门、游乐场等用中栏;强调导向;在高低悬殊的地面、动物笼舍、外围墙等,用高栏,起分隔作用。

11.7.2 栏杆的构图

栏杆是一种长形的、连续的构筑物,因为设计和施工的要求,常按单元来划分制造。栏杆的构图要单元好看;更要整体美观,在长距离内连续的重复,产生韵律美感,因此某些具体的图案、标志,例如动物的形象、文字往往不如抽象的几何线条组成给人感受强烈。

栏杆的构图还要服从环境的要求。例如桥栏,平曲桥的栏杆有时仅是二道横线,与水的平桥造型呼应,而拱桥的栏杆,是循着桥身呈拱形的。栏杆色彩的隐现选择,也是同样的道理,绝不可喧宾夺主。

栏杆的构图除了美观,也和造价关系密切,要疏密相间、用料恰当,每单元节约一点,总体相当可观。

11.7.3 栏杆的设计要求

低栏要防坐防踏,因此低栏的外形有时做成波浪形的,有时直杆朝上,只要造型好看,构造牢固,杆件之间的距离大些无妨,这样既省造价又易养护;中栏在须防钻的地方,净空不宜超过14cm在不须防钻的地方,构图的优美是关键,但这不适于有危险、临空的地方,尤要注意儿童的安全问题,此外;中栏的上槛要考虑作为扶手使用,凭栏遥望,也是一种享受;高栏要防爬,因此下面不要有太多的横向杆件。

11.7.4 栏杆的用料

石、木、竹、混凝土、铁、钢、不锈钢都有,现最常用的是型钢与铸铁、铸铝的组合。竹木栏干自然、质朴、价廉,但是使用期不长,如有强调这种意境的地方,真材实料要经防腐处理,或者采取“仿”真的办法。砼栏杆构件较为拙笨,使用不多;有时作栏杆柱,但无论什么栏杆,总离不了用钢筋混凝土作基础材料。铸铁、铸铝可以做出各种花型构件;美观通透,缺点是性脆;断了不易修复,因此常常用型钢作为框架,取两者的优点而用之;还有一种锻铁制品;杆件的外型和截面可以有多种变化,做工也精致,优雅美观,只是价格不菲,可在局部或室内使用。

11.7.5 栏杆的构件

除了构图的需要,栏杆杆件本身的选材、栏杆的构造也要注意以下方面:

1.充分利用杆件的截面高度,提高强度又利于施工。

2.杆件的形状要合理,例如二点之间,直线距离最近,杆件也最稳定,多几个曲折,就要放大杆件的尺寸,才能获得同样的强度。

3.栏杆受力传递的方向要直接明确。

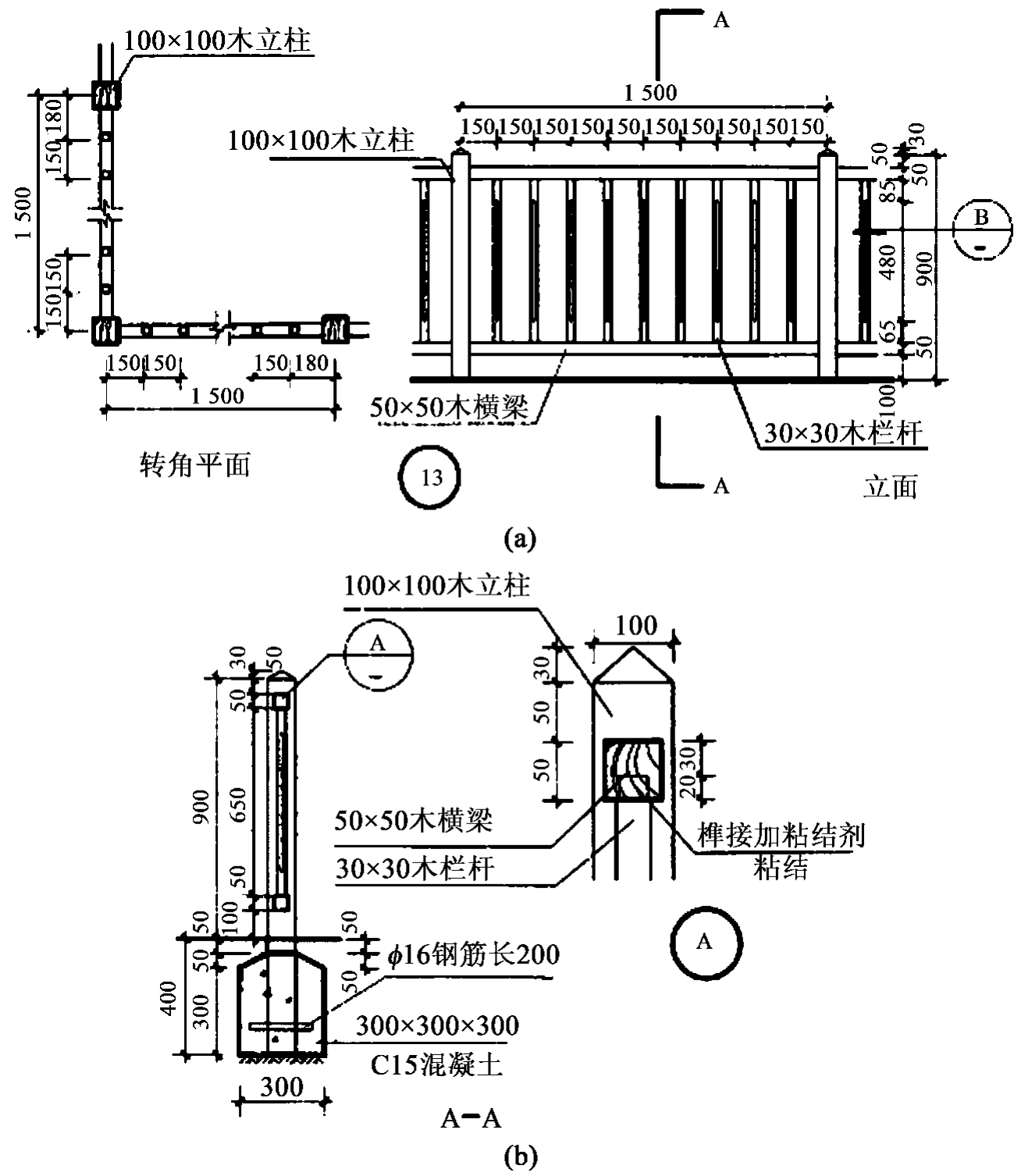
只有了解一些力学知识,才能在设计中把艺术和技术统一起来,设计出好看、耐用又便宜的栏杆来。如图11-21所示为木制栏杆构造。

img410

图11-21 栏杆构造示意图(单位:mm)