§6.2 窗的种类与构造
6.2.1 窗的分类
按窗的框料材质分为铝合金窗、塑钢窗、彩板窗、木窗、钢窗等。按窗的层数分为单层窗和双层窗。按窗扇的开启方式分为固定窗、平开窗、悬窗、立转窗、推拉窗、百叶窗等,如图6-1所示。

图6-1 窗的开启形式示意图
1.固定窗
固定窗是指将玻璃直接镶嵌在窗框上,不设可活动的窗扇。一般用于只要求有采光、眺望功能的窗,如走道的采光窗和一般窗的固定部分。
2.平开窗
平开窗是指窗扇一侧用铰链与窗框相连接,窗扇可以向外或向内水平开启。平开窗构造简单,开关灵活,制作与维修方便,在一般建筑物中采用较多。
3.悬窗
悬窗是指窗扇绕水平轴转动的窗。按照旋转轴的位置可以分为上悬窗、中悬窗和下悬窗,上悬窗和中悬窗的防雨、通风效果好,常用做门上的亮子和不方便手动开启的高侧窗。
4.立转窗
立转窗是指窗扇绕垂直中轴转动的窗。这种窗通风效果好,但不严密,不宜用于寒冷地区和多风沙的地区。
5.推拉窗
推拉窗是指窗扇沿着导轨或滑槽推拉开启的窗,有水平推拉窗和垂直推拉窗两种。推拉窗开启后不占室内空间,窗扇的受力状态好,适宜安装大玻璃,但通风面积受限制。
6.百叶窗
百叶窗是指窗扇一般用塑料、金属或木材等制成小板材,与两侧框料相连接的窗,有固定式百叶窗和活动式百叶窗两种。百叶窗的采光效率低,主要用于遮阳、防雨及通风。
6.2.2 窗的尺度与组成
1.窗的尺度
窗的尺度应根据采光、通风的需要来确定,同时兼顾建筑物的造型和《建筑模数协调统一标准》(GBJ2—86)等的要求。首先根据房屋的使用形状确定其采光等级,再根据采光等级,确定窗与地面面积比(窗洞面积与地面面积的比值),最后根据窗的样式及采光百分率、建筑立面效果、窗的设置数量以及相关模数规定,确定单窗的具体尺寸。根据模数,窗的基本尺寸一般以300mm为模数,由于建筑物的层高为100mm的模数,故窗的高度一般在1200~2100mm。从构造上讲,一般平开窗的窗扇宽度为400~600mm,腰头上的气窗高度为300~600mm。上、下悬窗的窗扇高度为300~600mm;中悬窗窗扇高度不大于1200mm,其宽度不大于1000mm;推拉窗的高、宽均不宜大于1500mm。
2.窗的组成
窗一般由窗框、窗扇和五金零件组成,如图6-2所示。

图6-2 窗的组成示意图
窗框是窗与墙体的连接部分,由上框、下框、边框、中横框和中竖框组成。
窗扇是窗的主体部分,分为活动窗扇和固定窗扇两种,一般由上冒头、下冒头、边梃和窗芯(又称为窗棂)组成骨架,中间固定玻璃、窗纱或百叶。
五金零件包括铰链、插销、风钩等。
6.2.3 平开木窗的构造
1.窗在墙洞中的位置
窗在墙洞中的位置主要根据房间的使用要求和墙体的厚度来确定。一般有三种形式:窗框内平,窗框外平,窗框居中,如图6-3所示。

图6-3 窗框在墙洞中的位置示意图
2.窗框的安装
平开木窗窗框的安装有立口和塞口两种方式。
(1)立口。
立口也称为立樘子。施工时,先将窗框立好,再砌窗间墙。为加强窗框与墙体的联系,在窗框上、下档均留出120mm长的端头伸入墙内。在边框外侧,每隔500~700mm,设一木拉砖或铁脚砌入墙身。木拉砖一般是用鸽尾榫与窗框拉接,如图6-4所示。这种做法能使窗框与墙体连接紧密牢固,但安装窗框和砌墙两种工序相互交叉进行,会影响施工进度,并且容易对窗造成损坏。
(2)塞口。
塞口又称为塞樘子。是在砌墙时先留窗洞,再安装窗框。在砌墙洞时,在洞口两侧,每隔500~700mm,砌入一块半砖大小的防腐木砖(每边不应少于两块),安装窗框时,用长钉或螺钉将窗框钉在木砖上。这种做法不影响砌墙进度,但为了安装,窗框外围尺寸长度方向均缩小20mm左右,致使窗框四周缝隙较大,如图6-5所示,这种方法一般用于次要窗或成品窗的安装。
3.窗框与窗扇的防水措施
平开木窗的窗框与窗扇之间,除要求开启方便、关闭紧密外,特别应注意防雨水渗透问题。常在内开窗下部和外开窗中横框处设置披水板、滴水槽和裁口,以防雨水内渗,并在窗台处做排水孔和积水槽,排除渗入的雨水,如图6-6所示。
4.窗扇
(1)窗扇的组成及断面尺寸。
窗扇由上、下冒头,左、右边梃和窗芯组成,如图6-7所示。这些构件的厚度均应一致,一般为35~42mm,下冒头和边梃宽度一般为50~60mm,冒头加做披水板时,可以较上冒头加宽10~25mm,窗芯宽度为27~35mm。为满足镶嵌玻璃的要求,在冒头、边梃和窗芯上,做8~12mm宽的铲口,铲口深度一般为12~15mm,且不应超过窗扇的
。铲口的内侧可以做装饰性线脚,既美观又可以减少挡光,如图6-8所示。

图6-4 窗框立口构造示意图

图6-5 窗框塞口构造示意图

图6-6 平开木窗的防水构造示意图
两扇窗接缝处为防止透风雨,一般做高低缝的盖口,为了加强密闭性,可以在一面或两面加钉盖缝条。
(2)玻璃的选择。

图6-7 窗扇的组成和断面尺寸(单位:mm)

图6-8 窗扇装饰线脚示意图(单位:mm)
建筑用玻璃按其性能有:普通平板玻璃、磨砂玻璃(压花玻璃)、装饰玻璃、吸热玻璃、反射玻璃、中空玻璃、钢化玻璃、夹层玻璃等。平板玻璃制作工艺简单,价格最便宜,在大量民用建筑工程中广泛应用。为了遮挡视线的需要,也选用磨砂玻璃或压花玻璃。对其他几种玻璃,则多用于有特殊要求的建筑工程中。玻璃的厚薄与窗扇分格大小有关,普通窗均用无色透明的3mm厚的平板玻璃。当窗框面积较大时,可以采用较厚的玻璃。
(3)五金零件。
平开窗上装设的五金零件,主要是为窗扇活动服务的,一般可以分为启闭时转动、启闭时定位及推拉执手三类。平开窗转动五金为铰链,为窗的拆卸方便可以采用抽心铰链或铁摇梗;为开启后能贴平墙身以及便于擦窗,常采用开启后可以离开樘子有一段距离的方铰链、长脚铰链或平移式铰链。推拉用执手一般为拉手,简易的可以省去拉手而以插销代替。
6.2.4 铝合金窗和塑钢窗的构造
1.铝合金窗的构造
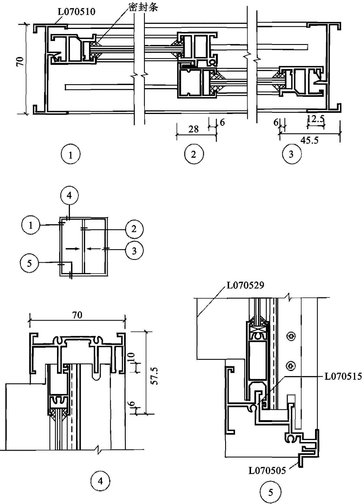
铝合金窗的种类很多,其称谓也是以窗料的系列来称呼的。如70系列铝合金推拉窗是指窗框厚度构造尺寸为70mm,另外常用的还有50系列的铝合金平开窗。
铝合金窗所采用的玻璃根据需要可以选择普通平板玻璃、浮法玻璃、夹层玻璃、钢化玻璃及中空玻璃等。铝合金窗常见形式有固定窗、平开窗、滑轴窗、推拉窗、立轴窗和悬窗等,一般铝合金窗多采用水平推拉式的开启方式,窗扇在窗框的轨道上滑动开启。窗扇与窗框之间用尼龙密封条进行密封,以避免金属材料之间相互摩擦。玻璃卡在铝合金窗框料的凹槽内,并用橡胶压条固定,如图6-9所示。

图6-9 铝合金窗构造示意图(单位:mm)
铝合金窗一般采用塞口的方法安装,在结束土木建筑工程、粉刷墙面前进行。窗框的固定方式是将镀锌锚固板的一端固定在门框外侧,另一端与墙体中的预埋铁件焊接或锚固在一起,再填以矿棉毡、泡沫塑料条、聚氨酯发泡剂等软质保温材料,填实处用水泥砂浆抹好,留6mm深的弧形槽,槽内用密封胶封实。玻璃是嵌固在铝合金窗料的凹槽内,并加密封条。其连接方法有:采用射钉固定;采用墙上预埋铁件连接;采用金属膨胀螺栓连接;墙上预留孔洞埋入燕尾铁角连接,如图6-10所示。铝合金窗安装节点处缝隙处理构造如图6-11所示。

图6-10 铝合金窗框与墙体的固定方式示意图

图6-11 铝合金窗安装节点处缝隙处理示意图
2.塑钢窗的构造
钢窗是以PVC(聚氯乙烯)为主要原料制成空腹多腔异型材,中间设置薄壁加强型钢,经加热焊接而成窗框料。塑钢窗线条清晰、挺拔、造型美观,表面光洁细腻,不但具有良好的装饰性,而且具有良好的抗风压强度、阻燃、耐候性、密闭性,且抗腐蚀、使用寿命长、防潮、隔热、耐低温、色泽优美、自重轻和造价适宜等优点,故得到了广泛的应用。
塑钢窗的开启方式及安装构造与铝合金窗基本相同。塑钢窗按其开启方式分为平开窗、推拉窗、上提窗、悬窗等多种形式;按其构造层次分为单层玻璃窗、双层玻璃窗、纱窗等。塑钢推拉窗的构造如图6-12所示。

图6-12 塑钢窗构造示意图
塑钢窗的安装用塞口法。窗框与墙体的连接固定方法一般有以下两种。
(1)连接铁件固定法。窗框通过固定铁件与墙体连接,将固定铁件的一端用自攻螺钉安装在窗框上,固定铁件的另一端用射钉或塑料膨胀螺钉固定在墙体上,如图6-13所示。
为了确保塑钢窗正常使用的稳定性,需给窗框热胀冷缩留有余地,为此要求塑钢窗与墙体之间的连接必须是弹性连接,因此在窗框和墙体之间的缝隙处分层填入毛毡卷或泡沫塑料等,再用1∶2水泥砂浆嵌入抹平,用嵌缝膏进行密封处理。
(2)直接固定法。用木螺钉直接穿过窗框型材与墙体内预埋木砖相连接,如图6-14所示,或者用塑料膨胀螺钉直接穿过窗框将其固定在墙体上。

图6-13 塑钢窗框与墙体连接—连接件法

图6-14 塑钢窗框与墙体连接—直接连接法