1
房屋建筑学
1.7.8.2.4 13.2.4 窗的构造

13.2.4 窗的构造

1.铝合金窗的构造

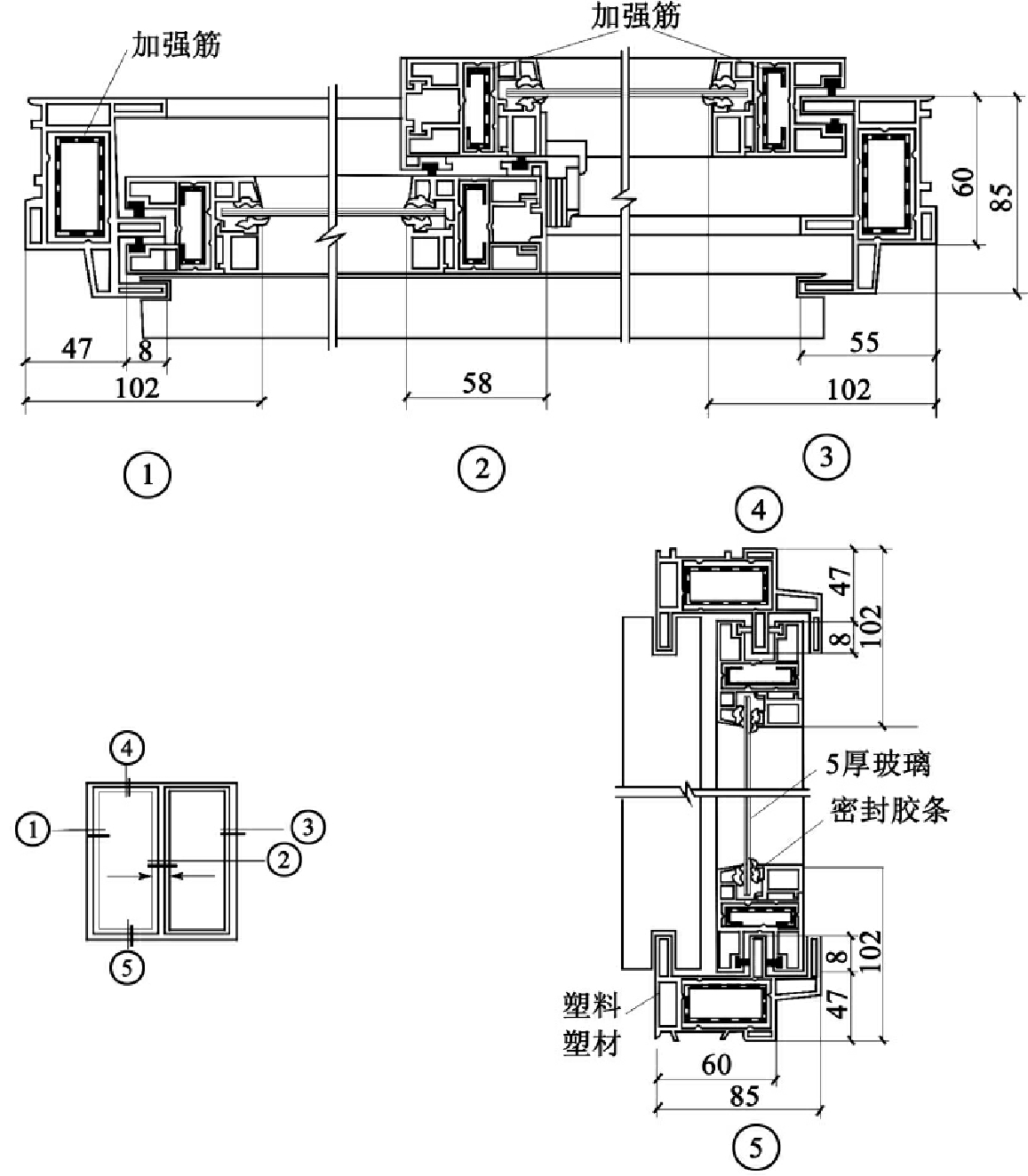
铝合金窗多采用水平推拉式的开启方式,窗扇在窗框的轨道上滑动开启。窗扇与窗框之间用尼龙密封条进行密封,以避免金属材料之间相互摩擦。玻璃卡在铝合金窗框架的凹槽内,并用橡胶压条固定,如图13-4所示。

img426

图13-4 铝合金窗构造实例图(单位:mm)

铝合金窗一般采用塞口的方法安装,固定时,窗框与墙体之间采用预埋铁件、燕尾铁脚、膨胀螺栓、射钉固定等方式连接,如图13-5所示。

img427

图13-5 铝合金窗框与墙体的固定方式示意图

img428

图13-6 塑钢窗构造示意图

2.塑钢窗的构造

塑钢窗是以PVC为主要原料制成空腹多腔异型材,中间设置薄壁加强型钢,经加热焊接而成的窗框架。

塑钢窗的导热系数低,耐弱酸碱,无需油漆并具有良好的气密性、水密性、隔声性等优点,其构造如图13-6所示。塑钢窗的开启方式及安装构造与铝合金窗基本相同。