任务10 空调系统的检查及保养
【学习目标】
通过本任务的学习,学会检查车辆的空调系统并对其进行必要的检查、保养操作。
【工作场景】
车辆进入维修场地后,拉起手制动,将前后车轮垫上三角木,打开发动机舱盖,准备好局部照明设备。
【基础知识】
一、汽车空调系统的组成、原理
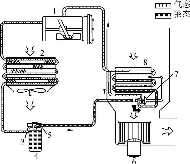
汽车空调系统按其功能可分为制冷系统、加热系统、通风与空气净化系统以及控制系统等几个主要组成部分。其制冷系统的组成如图3-59所示,制冷循环原理如图3-60所示。

图3-59 空调制冷系统的组成
1—压缩机;2—冷凝器;3—低压开关;4—储液干燥罐;5—高压阀;6—蒸发器;7—热控开关;8—膨胀阀

图3-60 制冷循环原理图
1—压缩机;2—冷凝器;3—高压阀;4—储液干燥罐;5—低压开关;6—鼓风机;7—膨胀阀;8—蒸发器
二、空调系统各部分的功用
1.制冷系统
采用蒸汽压缩式制冷原理,对车内空气或由外部进入车内的新鲜空气进行冷却或除湿,使车内空气变得凉爽舒适。
2.加热系统
采用热水式加热装置,利用发动机冷却水给车内空气或由外部进入车内的新鲜空气加热,以达到取暖、除湿的目的。在冬天还可以给前风挡玻璃除霜、除雾。
3.通风装置
离心式鼓风机将外部新鲜空气吸进车内,对车内空气进行置换,以达到制冷、加热及通风的作用。通风装置除鼓风机外,还有滤清器、进风口、风道及出风口等。
4.空气净化系统
除去车内空气中的尘埃臭味,使空气清洁,简单的方法是在通风口处加装灰尘滤清器。高档轿车上还装有空气质量传感器,当空气质量不良时,使初步过滤的气流再通过活性炭阀门,进一步净化。
5.加湿装置
在气温较冷时,对车内空气加湿,使车内空气相对湿度达到40%~50%。
6.控制系统
该系统主要由电气元件、真空机构和操纵机构组成。一方面对制冷系统、加热系统的温度和压力进行控制并进行安全保护。另一方面对车内空气温度、风量及出风方向进行控制。自动空调系统就是指控制系统自动化。
【技能训练】
一、制冷剂量的检查
(1)启动发动机,以2 000r/min的转速运行5min,预热到正常工作温度。
(2)将温度调节开关置于制冷位置,打开空调开关,保持发动机以1 500r/min的转速运转,扳动出风量调节开关,感觉室内制冷情况。
(3)待出风口持续稳定地送来冷空气后,打开发动机室罩盖,擦净储液干燥罐上的观察窗口(有的车型在制冷循环管路上),观察窗口内液体情况。可能会有如图3-61所示的几种情况,可根据实际情况判断制冷剂量的多少。

图3-61 制冷剂观察窗口的几种情况
①如图3-61(a)所示,不透明,没有气泡生成,能看见雾状气体,表明制冷剂量过多或完全没有制冷剂(若完全没有制冷剂,出风口不会有冷风)。
②如图3-61(b)所示,几乎透明,有少量气泡生成,但随着发动机转速升高而逐渐消失,属于正常情况。
③如图3-61(c)所示,不太透明,有大量气泡生成且流动,表明系统中制冷剂量不足。
④若观察孔变得浑浊,表明干燥剂脱落或系统中有水分。
二、更换空调滤芯
(1)打开手套箱,取出里面的杂物,拆下两边的两个旋钮(或是在外侧的两个挂钩)如图3-62所示。

图3-62 打开手套箱
(2)放下手套箱,露出里面的空调滤清器外壳,如图3-63所示,用双手分别解除两侧的锁销,像拉抽屉一样把它拉出。

图3-63 空调滤清器外壳
(3)用高压气体清理滤芯后或换成新的滤芯,按拆下的相反顺序装回即可。
【相关拓展】
冷冻机油主要用于润滑制冷压缩机中需要润滑的部位。
一、冷冻机油的性能与选用
1.冷冻机油的性能
冷冻机油用于润滑制冷压缩机的各摩擦副,它是压缩机能够长期高速有效运行的关键。在工作时,有一部分冷冻机油通过制冷压缩机的汽缸随制冷剂一道进入冷凝器、膨胀阀和蒸发器,这就要求冷冻机油不仅具备一般润滑剂的特性,而且还应适应制冷系统的特殊要求,对制冷系统不应产生不良影响。为了确保制冷系统的正常运行,冷冻机油必须具备优良的与制冷剂共存时的化学稳定性、有极好的与制冷剂的互溶性、良好的润滑性、优良的低温流动性、无蜡状物絮状分离、不含水、不含机械杂质和优良的绝缘性能。可见,对冷冻机油的性能要求不仅很全面而且很严格。因此,冷冻机油是制冷系统专用的一种润滑油,绝不能用普通润滑油来替代。
2.制冷系统部件对冷冻机油的性能要求
(1)压缩机对冷冻机油的要求:①与制冷剂共存时具有优良的化学稳定性;②有良好的润滑性;③有极好的与制冷剂的互溶性;④对绝缘材料和密封材料具有优良的适应性;⑤不含机械杂质;⑥有良好的抗泡沫性。
(2)冷凝器对冷冻机油的要求:与制冷剂有优良的相溶性。
(3)膨胀阀对冷冻机油的要求:①无蜡状物絮状分离;②不含水;③不含机械杂质。
(4)蒸发器对冷冻机油的要求:①有优良的低温流动性;②无蜡状物絮状分离;③不含水;④与制冷剂有极好的互溶性。
二、冷冻机油主要质量指标
冷冻机油的规格品种很多,为了保证制冷压缩机的正常运行,必须了解冷冻机油的性能,并能正确选用。冷冻机油的性能可由很多指标来决定,以下简要介绍其主要质量指标。
1.黏度
压缩机的转速越高,使用冷冻机油的黏度应越大。实际使用中一般低速立式双缸压缩机可使用L-DRA15号冷冻油,中速和高速多缸压缩机应使用L-DRA22号或L-DRA32号冷冻油,某些高速重载压缩机的发热量大,油温高,气温也高,最好使用L-DRA46号或L-DJRA68号冷冻油。
2.热稳定性
热稳定性一般用冷冻机油的闪点来衡量。闪点是指冷冻机油的蒸汽遇火后发生闪火的温度。冷冻机油的闪点必须高于压缩机的排气温度,如R717、R12、R22压缩机使用的冷冻机油闪点应在160℃以上。
3.流动性
冷冻机油应有良好的低温下的流动性。在蒸发器内,因温度低、油的黏度大,流动性差,当达到一定温度时冷冻机油停止流动,此时的温度称为油的凝固点。制冷机的冷冻机油要求凝固点要低,特别是低温制冷机对油的凝固点要求很重要,否则流动性降低,既影响蒸发器的传热又影响机器的润滑。
各种冷冻油的凝固点都在-40℃以下,能够满足一般用途的制冷机的使用需要。蒸发温度再低时,可使用精密仪器油,其凝固点一般不高于-60℃。
4.溶解性
各种制冷剂与冷冻机油相溶是不相同的,大致分3大类:相互不溶解的、相互无限溶解的和介于上述二者中间的。
5.浊点
冷冻机油开始析出石蜡(油变混浊)时的温度称为浊点,当有制冷剂存在时,冷冻机油的浊点会下降。
6.击穿电压
全封闭和半封闭制冷机对冷冻机油的电击穿电压有一定的要求,一般要求在25kV以上。
三、冷冻机油变质的原因
当冷冻机油变坏时,其颜色会变深,将油滴在白色吸墨水纸上,若油滴的中央有黑色斑点,说明冷冻机油已经开始变坏。当油中含有水分时,其透明度要降低。这种经验方法,对冷冻机油中混入较多的水分、杂质时,是可以察觉的,但却不能明确地掌握冷冻机油变质的程度和原因。
冷冻机油变质的原因主要有如下几个。
(1)混入水分。由于制冷系统中渗入空气,空气中的水分与冷冻机油接触后混合进去;制冷剂中含水量较多时,也会使水分混入冷冻机油。冷冻机油中混入水分后,黏度降低,对金属造成腐蚀。在氟利昂制冷系统中,还会引起“冰塞”现象。
(2)氧化。冷冻机油在使用过程中,当压缩机的排气温度较高时,就有可能引起氧化变质,特别是化学稳定性差的冷冻机油,更易变质,经过一段时间,冷冻机油中会形成残渣,使轴承等处的润滑变坏。有机填料、机械杂质等混入冷冻机油中也会加速它的老化或氧化。
(3)冷冻机油混用。几种不同牌号的冷冻机油混合使用时,会造成冷冻机油的黏度降低,甚至会破坏油膜的形成,使轴承受到损害;如果两种冷冻机油中,含有不同性质的抗氧化添加剂,混合在一起时,就有可能产生化学变化,形成沉淀物,使压缩机的润滑受到影响,故使用时要注意。
(4)冷冻机油中有杂质。
【复习延伸】
1.查阅相关资料,比较客车空调、轿车空调、家用空调机、电冰箱等的共同点和不同点。
2.查阅相关资料,比较制冷剂氟利昂R-12和R-134a的热力学特性和化学性质,说明现在的制冷剂为什么要用R-134a代替氟利昂R-12。