10.1 平面立体零件图的识读和展开
例10-1 土簸箕图的识读与画展开图。
(1)读形状
土簸箕的所有面均为投影面平行面,见图10-1。在图中各面的真实形状和大小均已表达了出来,例如前后两面的实形在主视图上表达,底面的实形在俯视图上表达;侧面的大小是200×80。既然围成土簸箕各表面的形状和大小都已知道,它的展开图就不难画出了。
(2)画展开图
如图10-2所示,画图步骤如下:
①下料460×380;
②画弯折线Ⅰ,距前边缘80;
③画弯折线Ⅱ,距后边缘80;
④画弯折线Ⅲ,距右边缘80;
⑤画40°轮廓线(两处)。

图10-1 土簸箕

图10-2 土簸箕展开图

图10-3 底面有圆角的容器
例10-2 有圆角容器图的识读和画展开图。
(1)读形状
该容器用两个基本视图表达,主视图反映容器的长和高,并且反映容器前、后面的实形;俯视图反映容器的长和宽,并且反映容器底面的实形。由主、俯视图可以想象出左、右侧面的实形是200×60的薄板,见图10-3。
(2)画展开图
如图10-4所示,画图步骤如下:
①下料420×320;
②依据容器高画出折线Ⅰ;

图10-4 底面有圆角的容器展开图
③依据容器高,画出折线Ⅱ;
④依据容器高画出折线Ⅲ、Ⅳ;
⑤在四条折线相交成的矩形内画四个R15圆角。
画45°斜线处即为须剪除部分。
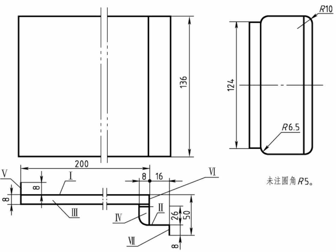
例10-3 铁屑槽的识读和画展开图。
(1)读形状
铁屑槽用三个基本视图表达,反映其形状特征的是俯视图,见图10-5。由该图可以看

图10-5 铁屑槽零件图
出铁屑槽弯折状况。铁屑槽的主要表面均为投影面平行面,例如Ⅰ、Ⅱ面是正平面,它们的正面投影反映实形;Ⅲ、Ⅳ面是水平面,它的水平投影反映实形;Ⅴ、Ⅵ、Ⅶ面是侧平面,它的侧面投影反映实形,可根据反映实形的投影画出它的展开图。
(2)画展开图(自左至右展开)
如图10-6所示,画图步骤如下:

图10-6 铁屑槽展开图
①画一垂线作为展开图最左边的轮廓线a;
②画弯折线1∥a,距离a为8;
③画弯折线2∥1,距离1为200;
④画切口线3∥2,距离2为8;
⑤画弯折线4∥3,距离3为26;
⑥画弯折线5∥4,距离4为16;
⑦画展开图的最右轮廓线b,距离5为8;
⑧画最上轮廓线c;
⑨画弯折线6,距离c为8;
⑩画124的上、下轮廓线;

图10-7 铁屑槽轴测图
画弯折线7,保证136;
画最下轮廓线,保证152;
依次画出圆角R5、R6.5和R10。
铁屑槽的轴测图见图10-7。
例10-4 正五棱柱金属盒的识读和画表面展开图。
(1)读形状
正五棱柱用两个基本视图(主视图和俯视图)表达。它共由七个表面组成:五个全等的侧面和两个全等的上、下底面,见图10-8。

图10-8 正五棱柱金属盒
五个全相等侧面当中有一平面ⅠⅡⅢⅣ的正面投影1′2′3′4′反映它的实形,另四个侧面和四边形ⅠⅡⅢⅣ全等。上、下底面是水平面,水平投影反映它的真实形状和大小。故七个表面形状大小全知,相对位置在视图上已经表示了出来,所以能画出它的展开图。
(2)展开图画法
如图10-9所示,画图步骤如下:
①画最左轮廓线AB;
②过点A作AB的垂线AC,截AC=5×30=150;过点B作AB的垂线BB,截BB=5×30=150,连接点C、B;
③截AD=DE=EF=FG=GC=30;
④过点D、E、F、G作AB的平行线,交BB于点D、E、F、G;
⑤连弯折线DD、EE、FF、GG;
⑥由零件图可量取各线段长画出正五边形。如果视图是放大或缩小的,则将量取的线段按相反比例缩小或放大后截取。
⑦连EH、HJ、JK、KE即为所求;
⑧依次类推,可以画出下面的正五边形。

图10-9 正五棱柱金属盒展开图
例10-5 四棱锥的识读和画展开图。
(1)读形状
四棱锥用主、辅两个基本视图表达。四棱锥共由五个面组成,底面是水平面,它的水平投影反映底面的真实形状和大小。四个侧面都是等腰三角形,前后两个三角形全等,左右两个三角形全等。三角形底边的实长已知(底面的一个边),另两边相等,只要知道其中一边就等于知道四个等腰三角形的大小。但它们在主、俯视图上的投影均不反映其实长。怎样根据已知线段的投影求出其实长就成了解决全部问题的关键,见图10-10。

图10-10 正四棱锥
和三个投影面都倾斜的直线叫投影面倾斜线,它在三个投影面上的投影均为斜线,都小于线段的实长,四棱锥的四个棱都是这种线段。求一般位置直线的实长有三种方法:直角三角形法、直角梯形法和旋转法。直角三角形法见图10-11。
把四棱锥置于V-H面组成的投影面体系中,棱边SA向V面投影得s′a′,向H面投影得sa。
在直角三角形SAB中,斜边SA是棱的实长,直角边SB=s′b′=zS-zA(点S的OZ轴坐标值减去点A的OZ轴坐标值),它能根据SA的投影s′a′直接求出。另一直角边AB=sa(SA在H面上的投影)是已知的,因此可以根据SA的已知两面投影画出一直角三角形,该直角三角形的斜边即为投影面倾斜线的实长。由此可以得出求投影面倾斜线实长的方法是:以线段的某一面投影为一直角边,以线段的两端对该投影面的坐标差为另一直角边,画出的直角三角形斜边即为该线段的实长。

图10-11 用直角三角形法求投影面倾斜线的实长
(2)展开图画法
如图10-12所示,画图步骤如下:

图10-12 正四棱锥展开图画法
①以点S为圆心,以SA的实长为半径画圆弧;
②在圆弧上截取DA=ba、AB=ac、BC=cd、CD=db,分别等于四边形(底面)的一边长,连SD、SA、SB、SC即为四棱锥棱面的展开图;
③依照底面的大小画出其展开图。