-
1.1内容简介
-
1.2前言
-
1.3二维码目录
-
1.4目录
-
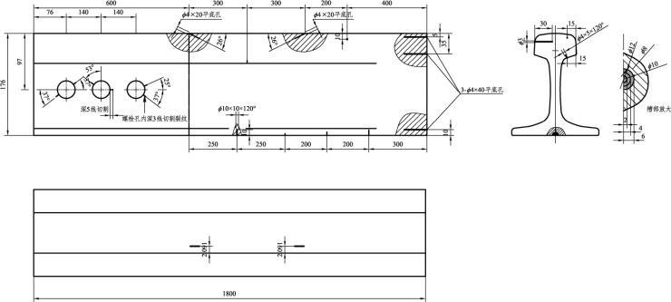
1.5项目一 钢轨探伤基础实操
-
1.5.1任务一 钢轨探伤仪基础操作(一)
-
1.5.2任务二 钢轨探伤仪基础操作(二)
-
1.5.3任务三 钢轨探伤仪基础操作(三)
-
1.5.4任务四 特殊功能键操作
-
1.5.5任务五 探伤准备工作与探伤操作
-
1.5.6任务六 钢轨探伤仪0°探头识别与操作
-
1.5.7任务七 钢轨探伤仪37°探头识别与操作
-
1.5.8任务八 钢轨探伤仪70°探头识别与操作
-
1.5.9任务九 钢轨探伤仪探头灵敏度和灵敏度余量的测试
-
1.5.10任务十 下道及文件的导出、删除与回放
-
1.5.11任务十一 钢轨探伤仪B显与数据回放
-
1.5.12任务十二 钢轨探伤仪的保养与维护
-
1.6项目二 焊缝探伤基础实操
-
1.6.1任务一 焊缝探伤仪基础操作
-
1.6.2任务二 焊缝探伤仪基础操作
-
1.6.3任务三 斜探头入射点和折射角的测试
-
1.6.4任务四 焊缝探伤仪水平线性与保护膜衰减值测试
-
1.6.5任务五 焊缝探伤仪探头标定——GHT-1试块
-
1.6.6任务六 焊缝探伤仪探头标定——GHT-5试块
-
1.6.7任务七 焊缝探伤仪现场灵敏度调试
-
1.6.8任务八 焊缝探伤仪数据存储、导出与删除
-
1.6.9任务九 焊缝探伤仪数据回放
-
1.6.10任务十 焊缝探伤仪维护
-
1.7项目三 手工检查基础实操
-
1.7.1任务一 手工操作基本操作
-
1.7.2任务二 道岔手工检查
-
1.8项目四 钢轨探伤上道作业标准
-
1.9项目五 钢轨探伤技能鉴定
-
1.9.1任务一 钢轨探伤工初级操作技能考核
-
1.9.2任务二 钢轨探伤工中级操作技能考核
-
1.9.3任务三 钢轨探伤工高级操作技能考核
-
1.10参考文献

