任务3.1.1 液压缸的选用与维护
液压缸又称为油缸,它是液压系统中的一种执行元件,其功能就是将液压能转变成直线往复式的机械运动(也可以是摆动运动)。液压缸按其结构不同分为活塞缸、柱塞缸和摆动缸三类。按作用方式可分为双作用式液压缸和单作用式液压缸。双作用式液压缸的两个方向的运动都由压力控制实现。单作用式液压缸只能使活塞单方向运动,其反方向必须靠外力实现。
一、液压缸的类型及图形符号
常见液压缸的类型及图形符号见表3-1。
表3-1 常见液压缸的类型及图形符号

续表

二、液压缸的工作原理和结构
1.活塞式液压缸的工作原理和结构
活塞缸用以实现直线运动,输出推力和速度。活塞两端有一根直径相等的活塞杆伸出的液压缸称为双杆式活塞缸,它一般由缸体、缸盖、活塞、活塞杆和密封件等零件构成。根据安装方式不同可分为缸筒固定式和活塞杆固定式两种。
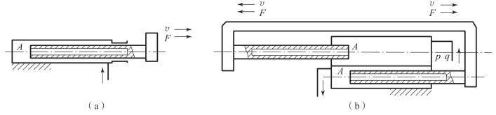
1)双杆活塞式液压缸
图3-1(a)所示为缸筒固定式双杆活塞缸。它的进、出口布置在缸筒两端,活塞通过活塞杆带动工作台移动,当活塞的有效行程为l时,整个工作台的运动范围为3l,所以机床占地面积大,一般适用于小型机床,当工作台行程要求较长时,可采用图3-1(b)所示的活塞杆固定式,缸体与工作台相连,活塞杆通过支架固定在机床上,动力由缸体传出。这种安装形式中,工作台的移动范围只等于液压缸有效行程的2倍,占地面积小。进出油口可以设置在固定不动的空心的活塞杆的两端,但必须使用软管连接。

图3-1 双杆活塞式液压缸
(a)缸筒固定式;(b)活塞杆固定式
由于双杆活塞缸两端的活塞杆直径通常是相等的,因此它左、右两腔的有效面积也相等,当分别向左、右腔输入相同压力和相同流量的油液时,液压缸左、右两个方向的推力和速度相等。当活塞的有效工作面积为A,活塞直径为D,活塞杆的直径为d,液压缸进、出油腔的压力为p1和p2,输入流量为q时,双杆活塞缸的推力F和速度v为

2)单杆活塞式液压缸
活塞杆仅从某一侧伸出的液压缸称为单杆活塞式液压缸。如图3-2和图3-3所示,单活塞式液压缸按作用方式的不同,可分为单作用式液压缸,其液压或气动只控制缸体内活塞单向运动,反向回程要靠重力、弹簧力或负载实现,可应用在只要求液压力在单个方向上做功的场合;双作用单杆活塞式液压缸,其伸出和缩回均由液压推动实现。

图3-2 弹簧复位单杆活塞式液压缸
(a)实物;(b)符号;(c)结构原理图
单杆液压缸也有缸体固定和活塞杆固定两种形式,但它们的工作台移动范围都是活塞有效行程的2倍。
单杆液压缸仅一端有活塞杆。由于液压缸两腔的有效工作面积不等,当输入液压缸两个腔的压力和流量相等时,活塞或缸体在两个方向上的输出推力和速度均不等。
单杆液压缸有3种连接方式:如图3-4(a)所示的无杆腔进油,有杆腔回油的连接方式;如图3-4(b)所示的有杆腔进油,无杆腔回油的连接方式;如图3-4(c)所示的两腔同时进油方式(差动连接)。这3种不同连接方式下,活塞运动速度v和推力F各不相同。单杆液压缸活塞的推力与运动速度见表3-2。

图3-3 双作用单杆活塞式液压缸
(a)实物;(b)符号;(c)结构原理图

图3-4 单杆式活塞缸的3种连接方式
(a)无杆腔进油,有杆腔回油;(b)有杆腔进油,无杆腔回油;(c)差动连接
表3-2 单杆液压缸活塞的推力与运动速度

由表3-2可知,当v1<v2,F1>F2时,即无杆腔进油时推力大,速度低;有杆腔进油时推力小,速度高。因此,单杆液压缸常用于一个方向上有较大负载但运动速度较低、在另一个方向上空载快速退回的设备,如金属切削机床、压力机、注塑机、起重机。
由表3-2还可知,当v3>v1,F3<F1时,说明差动连接时能使运动部件获得较高的速度和较小的推力。因此,单杆液压缸还常用于需要实现“快进(差动连接)→工进(无杆腔进油)→快退(有杆腔进油)”工作循环的组合机床等设备的液压系统中。这时,通常要求“快进”和“快退”速度相等,则d=D/
≈0.707D。
2.柱塞式液压缸的工作原理和结构
如图3-5(a)所示,它只能实现一个方向的液压传动,反向运动要靠外力。若需要实现双向运动,则必须成对使用,如图3-5(b)所示。
柱塞式液压缸中的柱塞和缸筒不接触,运动时由缸盖上的导向套来导向,

柱塞式液压缸的工作原理

图3-5 柱塞式液压缸
(a)单向运动;(b)双向运动
因此缸筒的内壁不需精加工,因此,柱塞式液压缸结构简单,制造容易,特别适用于行程较长的导轨磨床、龙门刨床等液压设备中。柱塞式液压缸一般不宜水平安装,因为柱塞缸较粗,水平放置会导致柱塞因自重而下垂,造成导向套和密封圈单向磨损,所以柱塞可以做成空心的。
柱塞缸输出的推力和速度各为

3.摆动式液压缸的工作原理和结构
摆动式液压缸也称摆动液压马达。当它通入压力油时,它的主轴能输出小于360°的往复摆动运动,常用于工夹具夹紧装置、送料装置、转位装置以及需要周期性进给的系统中。
图3-6(a)所示为单叶片式摆动液压缸。若从油口通入高压油,叶片1做顺时针摆动,低压力从油口排出。单叶片式摆动缸的工作压力小于10MPa,摆动角度一般不超过300°。

图3-6 摆动式液压缸的结构示意图及图形符号
(a)单叶片式摆动液压缸;(b)双叶片式摆动液压缸;(c)摆动缸实物;(d)图形符号p—工作压力;q—输入流量;
1—叶片;2—摆动轴;3—定子块;4—缸体
图3-6(b)所示为双叶片式摆动液压缸。在径向尺寸和工作压力相同的条件下,分别是单叶片式摆动液压缸输出转矩的2倍,双叶片式摆动液压缸的回转角度一般小于150°。
摆动式液压缸结构紧凑,输出转矩大,但密封困难,常用于机床的送料装置、间歇进给机构、回转夹具、工业机器人手臂和手腕的回转装置及工程机械回转机构等的液压系统中。
4.其他液压缸的工作原理
1)增压液压缸
增压液压缸又称增压器,在液压系统中,整个系统需要低压,而局部需要高压,为节省一个高压缸常用增加式液压缸与低压大流量泵配合作用,使输出油压变为高压,因此可减少功率损失。
单作用增压式液压缸的工作原理如图3-7所示,当输入活塞缸的液体压力为p1,活塞直径为D,小柱塞直径为d,推动面积为A1的大活塞向右移动时,从面积为A2的右侧放出的压力为p2,则

图3-7 单作用增压式液压缸的工作原理

式中,D/d称为增压比。活塞直径D与柱塞直径d相差越大,增压p2就越大。
因为增压缸只能间断地将高压端输出的油通入其他液压缸,获取大的推力,但其本身不能作执行元件,所以安装时应尽量靠近执行元件,以减少压力损失。增压缸常用于压铸机、造型机等设备的液压系统中。
2)伸缩式液压缸(简称伸缩缸)
伸缩缸由两个或多个活塞缸套装而成,前一级活塞缸的活塞杆内孔是后一级活塞缸的缸筒,伸出时可获得很长的工作行程,缩回时可保持很小的结构尺寸,伸缩缸被广泛用于起重运输车辆上。
如图3-8所示,伸缩缸的外伸动作是逐级进行的。首先是最大直径的缸筒以最低的油液压力开始外伸,当到达行程终点后,稍小直径的缸筒开始外伸,直径最小的末级最后伸出。随着工作级数变大,外伸缸筒直径越来越小,工作油液压力随之升高,工作速度变快。

图3-8 伸缩缸的结构及实物图
(a)结构;(b)实物图
1—活塞;2,4—缸筒;3—O形密封圈;5—缸盖
伸缩缸也有单作用式与双作用式之分,前者靠外力回程,后者靠液压回程。其特点是:伸出时行程大,收缩后结构紧凑。
3)齿轮缸
它由两个柱塞缸和一套齿条传动装置组成,如图3-9所示。柱塞的移动经齿轮齿条传动装置变成齿轮的传动,用于实现工作部件的往复摆动或间歇进给运动。齿条活塞缸常用于机械手、回转工作台、回转夹具、磨床进给系统等转位机械的驱动。

图3-9 齿轮缸结构示意图
三、液压缸的结构组成和常见故障及排除方法
1.液压缸的结构组成
液压缸的典型结构如图3-10所示,由缸筒、缸盖、活塞、活塞杆、密封装置等主要零件组成。其结构主要包括缸体组件、活塞组件、密封装置、缓冲装置和排气装置五部分。

图3-10 液压缸的典型结构
1—缸底;2—弹簧挡圈;3—套环;4—卡环;5—活塞;6—O形密封圈;7—支承环;8—挡圈;9—Y形密封圈;10—缸筒;11—管接头;12—导向套;13—缸盖;14—防尘圈;15—活塞杆;16—定位螺钉;17—耳环
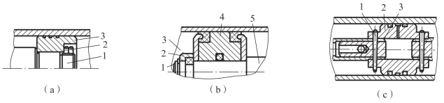
1)缸体组件
缸体组件主要包括缸筒、缸盖和一些连接零件。缸筒可以用铸铁(低压时)和无缝钢管(高压时)制成。缸筒和缸盖的常见连接方式如图3-11所示,法兰连接[图3-11(a)],加工和拆装都很方便,只是外形尺寸大些;半环连接[图3-11(b)],要求缸筒有足够的壁厚;螺纹连接[图3-11(d)],外形尺寸小,拆装不方便,要有专用工具;拉杆式连接[图3-11(c)],拆装容易,但外形尺寸大;焊接连接[图3-11(e)],结构简单,尺寸小,但可能会因焊接有一些变形。

图3-11 缸筒和缸盖的常见连接方式
(a)法兰连接;(b)半环连接;(c)拉杆式连接;(d)螺纹连接;(e)焊接连接
1—缸盖;2—缸筒;3—压板;4—半环;5—防松螺母;6—拉杆
2)活塞组件
由活塞和活塞杆组成,其连接方式有螺纹连接、半环连接、径向销连接等,如图3-12所示。

图3-12 常见的活塞组件结构形式
(a)螺纹连接
1—活塞;2—螺母;3—活塞杆
(b)半环连接
1—弹簧卡;2—轴套;3—半环;4—活塞;5—活塞杆
(c)径向销连接
1—锥销;2—活塞;3—活塞杆
3)密封装置
液压缸中的密封是指活塞、活塞杆和缸盖等处的密封。它是用来防止液压缸内部和外部的泄漏。液压缸中密封设计的好坏,对液压缸的性能有着重要影响。根据密封位置不同,密封装置有:
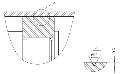
间隙密封:如图3-13所示,在活塞上开出若干道深0.3~0.5mm的环形槽,可以增大油液从高压腔向低压腔泄漏的阻力,从而减少泄漏。间隙密封是一种最简单的密封形式,常用在活塞直径较小、工作压力较低的液压缸中。
活塞环密封:如图3-14所示,通过在活塞外表面的环形槽中放置切了口的金属环实现密封。金属环靠弹性变形贴在缸筒内表面上,在高温、高压和高速运动场合有很好的密封性能。其缺点是制造工艺比较复杂。

图3-14 活塞环密封

图3-13 间隙密封
密封圈密封(O、V、Y形密封圈):如图3-15(a)所示,采用了Y形橡胶圈,使两唇面向油压,以便在压力油作用下使两唇张开。V形和Y形密封圈在安装时都须将两唇面向油压。
如图3-15(b)所示,使用了O形橡胶圈。该种密封磨损后能自动补偿且密封性能会随着压力的加大而提高,结构简单、应用广泛。
4)缓冲装置

图3-15 密封圈密封
(a)Y形橡胶圈;(b)O形橡胶圈
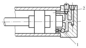
为了避免活塞运动到终点时撞击缸盖,产生噪声、影响活塞运动的精度甚至损坏机件,常在液压缸两端设置缓冲装置。缸盖常见的缓冲装置是应用节流原理来实现缓冲的。活塞端部圆柱塞进入到端盖圆孔时回油口被堵,无杆腔回油只能通过节流阀2回油,调节节流阀的开度,可以控制回油量,从而控制活塞的缓冲速度,如图3-16所示。

图3-16 带可调缓冲装置的液压缸
1—单向阀;2—节流阀
5)排气装置
由于液体中混有空气或液压缸停止使用时空气侵入,在液压缸的最高部位常会聚积空气。若不排除就会使缸的运动不平稳,引起爬行和振动,严重时会使液体氧化腐蚀液压元件。排气塞[图3-17(a)]和排气阀都要安装在液压缸的最高部位。对于要求不高的液压缸往往不设专门的排气装置,而是将通油口布置在缸筒两端的最高处,使缸中的空气随油液的流动而排走。如图3-17(b)所示,对于速度稳定性要求高的液压缸和大型液压缸,则需在其最高部位设置排气孔并用管道与排气阀相连排气。

图3-17 排气装置
(a)排气塞;(b)排气阀
2.液压缸的常见故障及排除方法
液压缸的常见故障及排除方法如表3-3所示。
表3-3 液压缸的常见故障及排除方法
