移步红楼
-
1.1前折页
-
1.2目录
-
1.3引子
-
1.4诗礼簪缨 宁荣府邸
-
1.4.1甲第面长街,朱门赫嵯峨
-
1.4.2四合生威仪
-
1.4.3帷房栖凤,也从容
-
1.4.4绣阁繁华歇,忍见可卿风月
-
1.5花锦繁华 园林大观
-
1.5.1红尘仙境大观园
-
1.5.2红断香销竹里馆
-
1.5.3清桐剪风秋爽斋
-
1.5.4芳魂暗锁缀锦楼
-
1.5.5暖香坞中冷心人
-
1.5.6村舍稻香静掩扃
-
1.5.7蘅芷清芬苑在山
-
1.5.8桂殿兰宫妃子家
-
1.5.9栊翠庵里槛外人
-
1.5.10锦簇花团怡红院
-
1.5.11花祵寒塘见湘云
-
1.6曲径通幽 红楼探微
-
1.6.1山石多妩媚
-
1.6.2载不动许多愁
-
1.6.3园中无处不飞花
-
1.6.4门和窗的故事
-
1.6.5帘帏背后的风景
-
1.6.6炕上舒卷有闲在
-
1.6.7秋冬时节暖玉温香
-
1.6.8筵宴陈设里的风华
-
1.7附录:图解红楼
-
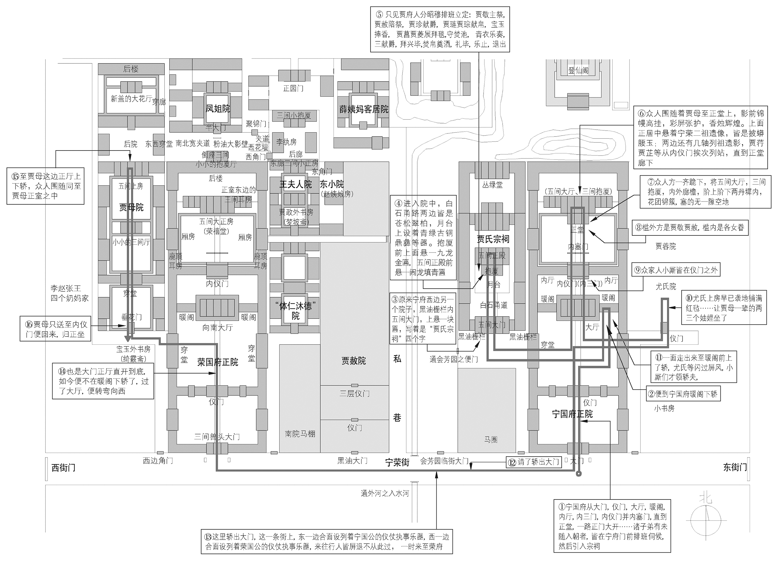
1.7.1贾府路线图
-
1.7.2大观园路线图