1
土力学与地基基础
1.11.5.2 8.5.2 竖向承载力设计
8.5.2 竖向承载力设计

1.群桩中单桩桩顶竖向力计算

1)轴心竖向力作用下

式中 Qk——相应于荷载效应标准组合轴心竖向力作用下任一单桩的竖向力(kN);

Fk——相应于荷载效应标准组合时,作用于桩基承台顶面的竖向力(kN);

Gk——桩基承台自重加承台上填土自重标准值(kN);

n ——桩基中的桩数。

2)偏心竖向力作用下

式中 Qik——相应于荷载效应标准组合偏心竖向力作用下第i根桩的竖向力(kN);

Mxk,Myk——相应于荷载效应标准组合作用于承台底面通过桩群形心的x、y轴的力矩(kN·m);

xi,yi——桩i至桩群形心的y、x轴线的距离(m)。

2.单桩承载力计算

1)轴心竖向力作用下

2)偏心竖向力作用下

除满足公式(8.29)外,尚应满足下列要求:

式中 aR——单桩竖向承载力特征值(kN)。

3.设计步骤

(1)收集勘测设计资料。

这些资料包括:建筑物类型、荷载、场地和地基的工程勘测成果、桩基础材料来源和施工设备情况,以及当地的设计、施工和运行经验等。

(2)选择持力层,初定承台底面高程,确定桩的类型、桩长和断面。

根据地基剖面和荷载大小,将桩端置于承载力较高的土层中并进入持力层1~3倍桩身直径的深度。嵌岩灌注桩嵌入完整和较完整的未风化、微风化、中风化硬质岩体的最小深度,不宜小于0.5 m。承台底面高程的确定原则和浅基础相同,其底面埋深也不应小于0.5 m。由承台的最小厚度不小于300 mm,再考虑到桩顶嵌入承台内的长度不宜小于50 mm,可确定桩的长度。桩的类型,如预制或灌注,可根据当地设备和施工条件以及环境制约因素(噪声、振动等)确定,并初选桩的断面尺寸。

(3)确定单桩竖向承载力特征值aR(参见8.3节)。

(4)确定桩数n、承台底面和桩的布置。

根据桩的中心距规定(例如摩擦型桩的中心距不宜小于3d)、边桩中心至承台边缘的距离不宜小于桩的直径或边长,且桩的外边缘至承台边缘的距离不小于150 mm,以及承台的宽度不应小于500 mm等规定和平面布桩的经验,确定承台底面尺寸和桩的排列。

(5)桩基础的验算。

确定承台底面尺寸和桩的排列后应验算群桩的承载力和每根桩的承载力,如验算结果不满足要求,必须修改设计直至满足为止。

下面先用一个例题说明上述设计步骤,然后再介绍承台的验算,并在8.7节介绍桩基沉降验算。其他需验算的内容还有:按桩顶荷载验算桩身强度;对位于坡地岸边的桩基进行稳定性验算等。

【例题8.4】参见例题8.2和图8.25,由上部结构传至承台顶面的竖向力Fk=3800kN,传至承台底面的力矩Myk=300kN∙m,试设计这个柱下钢筋混凝土预制桩基础。

【解】

(1)收集勘测设计资料如题义。

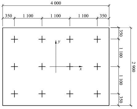
(2)选择持力层,初定承台底面高程见图8.25,预制桩长10 m、直径300 mm。

(3)单桩竖向承载力特征值aR=350 kN。

(4)确定桩数n,初定承台底面尺寸为2.9 m×4.0 m,在初步设计中,桩基承台自重加承台上填土自重标准值Gk可用承台和土的平均容重γG=20kN/m3计算,据式(8.27)和(8.28)得:取n=12,桩和承台的平面布置如图8.25所示。

图8.25 例题8.4桩和承台的平面布置(单位:mm)

(5)桩基础的验算。

由式(8.27)~(8.30)得:

取承台的厚度为500 mm,并应进行承台的承载力验算。

4.桩基承台的抗冲切、抗剪切、抗弯承载力验算

现以柱下桩基承台为例,介绍抗弯承载力、抗冲切、抗剪切的验算原理,详见《地基基础规范》。

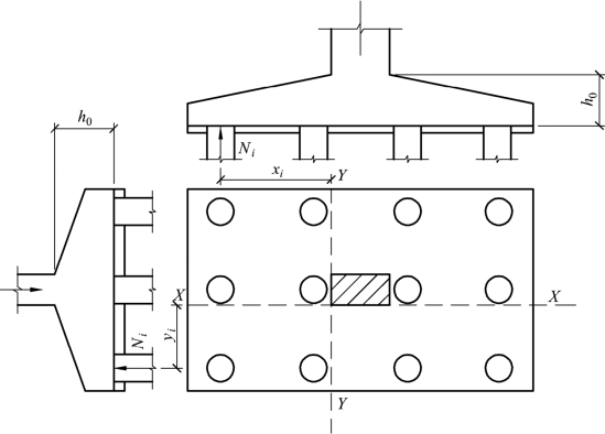
1)柱下桩基承台弯矩的简化计算方法

以图8.26所示多桩矩形承台为例,计算弯矩的截面取在柱边Y—Y和X—X,对阶梯形承台,计算截面还应选在承台高度变化处。

式中 Mx,My——垂直y轴和x轴方向计算截面处的弯矩设计值(kN·m);

xi,yi——垂直y轴和z轴方向自桩轴线到相应计算截面的距离(m);

Ni——扣除承台和其上填±自重后相应于荷载效应基本组合时的第i桩竖向力设计值(kN)。

图8.26 柱下多桩矩形承台的弯矩计算

根据计算截面处的弯矩设计值进行承台钢筋混凝土的抗弯承载力验算。

2)柱下桩基础独立承台受冲切承载力的验算

柱对承台的冲切锥体可选在承台高度变化处,如图8.27中的虚线所示,要求锥体的冲切面(4个锥面)与承台底面的夹角不小于45°。

图8.27 柱下桩基础独立承台的冲切锥体

冲切面上冲切力设计值由式(8.33)计算:

式中 Fl——扣除承台及其上填土自重,作用在冲切破坏锥体上相应于荷载效应基本组合的冲切力设计值(kN);

F——柱根部轴力设计值(kN);

——冲切破坏锥体范围内各桩的净反力设计值之和(kN)。

验算要求Fl小于冲切面上的抗冲切力设计值,而抗冲切力设计值取决于冲切面的面积、冲切面与底面的夹角,以及混凝土的抗拉强度设计值。

此外,承台下的角桩也对承台产生冲切作用,冲切力为每个角桩的净反力设计值,冲切面由两个相同的锥面组成,每个锥面的底边为角桩内侧面与承台底面的交线,锥面与承台底面的夹角不小于45°。

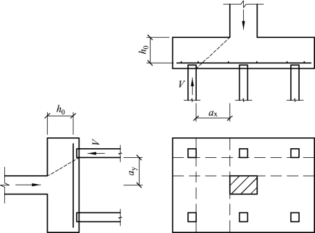
3)柱下桩基独立承台的受剪计算

剪切面为柱边和桩边形成的斜截面或变阶处和桩边联线形成的斜截面(图8.28中虚线),当柱边外有多排桩形成多个剪切斜截面时,尚应对每个斜截面进行验算。

图8.28 承台斜截面受剪计算

斜截面上的剪切力V等于斜截面范围内各边桩的净反力设计值之和,验算要求V小于斜截面上的抗剪切力设计值,而抗剪切力设计值取决于斜截面的面积、斜截面与底面的夹角,以及混凝土的抗拉强度设计值。

当承台的混凝土强度等级低于柱或桩的混凝土强度等级时,尚应验算柱下或桩上承台的局部受压承载力。