1
土力学与地基基础
1.5.5 2.5 地基的非均匀性与各向异性对附加应力的影响
2.5 地基的非均匀性与各向异性对附加应力的影响

以上介绍的地基附加应力计算都是考虑柔性荷载和均质各向同性土体的情况,而实际上往往并非如此,如地基中土的变形模量常随深度而增大,有的地基土具有较明显的薄交互层状构造,有的则是由不同压缩性土层组成的成层地基等。对于这样一些问题的考虑是比较复杂的,目前也未得到完全的解答。但从一些简单情况的解答中可以知道:把非均质或各向异性地基与均质各向同性地基相比较,其对地基竖向正应力σz的影响,不外乎两种情况:一种是发生应力集中现象,另一种则是发生应力扩散现象。

1.变形模量随深度而增大的非均质地基

在天然地基中,土层在自重应力作用下已压缩稳定,自重应力的分布随深度增大而增大,因而土的变形模量E0也常随地基深度增大而增大,在砂土中这种情况最明显。与通常假定的均质地基比较,沿荷载中心线下,前者的地基中附加应力σz将发生应力集中现象。这种现象在现场测试和理论上都得到了证明。

2.各向异性地基

由于土层在生成过程中,各个时期沉积物成分上的变化,土层会出现水平薄交互层现象,这种层理构造对很多土来说都很明显,往往导致土层沿铅直方向的变形模量时,出现应力集中现象;当水平方向的变形模量小于铅直方向的变形模量时,出现应力扩散现象。

3.双层地基

天然形成的地基有两种情况,一种是岩层上覆盖着不太厚的可压缩土层,另一种则是上层坚硬、下层软弱的双层地基。前者将发生应力集中现象,而后者将发生应力扩散现象。

思考题

2.1 何谓土的自重应力?它沿深度分布有何特点?为什么在自重应力作用下土体只产生竖向变形?

2.2 刚性基础与柔性基础的基底接触压力为何不同?刚性基础接触压力分布图有哪些形状?计算时作了哪些简化?

2.3 地基土的非均质性和各向异性对土中应力分布有何影响?双层地基通常指哪两种情况?其应力分布有何特点?如不考虑这些特点,对地基变形、强度的估计是偏于安全还是危险?

习题

2.1 一墙下条形基础底宽1 m,埋深1 m承重墙传来的相应于荷载效应标准组合时,作用于基础顶面的竖向压力为150 kN/m,则基底压力为( )kPa。

A.140 B.150 C.160 D.170

2.2 已知某基础形心受到上部结构传来的相应于荷载效应标准组合时上部结构传至基础顶面的竖向压力为400kN,则基底压力为( )kPa。

A.66.7 B.96.7

C.230 D.200

2.3 已知基底基础面积(图2.18)3 m×2 m,基底中心处的偏心力矩M=147 kN·m,上部结构传来的相应于荷载效应标准组合时上部结构传至基础顶面的竖向压力为490 kN,则基底压力为( )kPa。

图2.18 习题2.3图

A.155.17,8.17 B.130.67,32.67

C.163.33,0 D.141.76,30.31

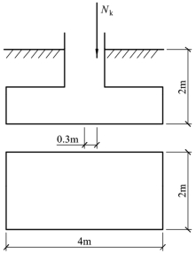
2.4 已知基底基础面积(图2.19)4 m×2 m,基础底面处作用有上部结构传来的相应于荷载效应标准组合时上部结构传至基础顶面的竖向压力为700 kN,合力的偏心距0.3 m,则基底压力为( )kPa。

图2.19 习题2.4图

A.206.25,48.75 B.115.06,59.93

C.126.88,48.13 D.142.63,32.38

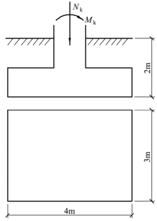
2.5 已知基底基础面积(图2.20)4 m×3 m,基底中心处的偏心力矩M=150 kN·m,上部结构传来的相应于荷载效应标准组合时上部结构传至基础顶面的竖向压力为500 kN,基础埋深2 m,则基底压力为( )kPa。

图2.20 习题2.5图

A.51.32,32.10 B.60.80,22.53

C.119.17,44.17 D.100.42,362.92

2.6 某土层及其物理性质指标如图2.21所示,地下水位在地表下1.0 m,计算土中自重应力并绘出分布图。

图2.21 习题2.6图