1
土力学与地基基础
1.5.2 2.2 土中自重应力计算
2.2 土中自重应力计算

土中自重应力是在修建建筑物以前,地基中由土体本身的有效重量而产生的应力。土的自重应力一般是始终存在于土中的。地面以下深度z处的土体因自身重量产生的应力可取该水平截面上单位面积的土柱体的重力,对于均匀土自重应力与深度成正比,对于成层土可通过各层土的自重应力求和得到。

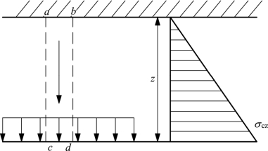
1.均质土中自重应力(图2.1)

在均质土中距地表深度为z处的竖向自重应为σcz等于该处单位面积上的土粒重量,即

式中 γ——土的重度(kN/m3);

z——所求应力平面距地表距离;

A——土柱体的水平截面积。

土柱体abdc在竖直面上还作用有侧向自重应力,根据弹性理论有:

式中 K0——土的静止侧压力系数,详见第6章。

图2.1 均质土体的自重应力

式(2.1)是计算均质土体中任一点自重应力的公式。实际工程中地基中常有地下水,在地下水位以下的土体,土中气体被完全排走,成为饱和土体。根据有效应力原理,地下水位以下土层中土粒产生的自重应力等于土的浮重度乘以相应的土层厚度,所以土中任一点的自重应力实际上是土体的有效自重应力。只有有效应力才会引起土体变形,使土体具有一定的强度,而孔隙水压力对土粒的压缩是可以忽略的。式(2.1)中γ用γ′代替。

2.成层土中自重应力(图2.2)

对于由不同天然重度组成的成层土,任意深度z处的自重应力可用下式计算:

若有地下水存在,则地下水位以下各层土的重度应取浮重度代替。若地下水位以下存在不透水层,在不透水层顶面处的自重应力等于全部上覆的水、土总重。

图2.2 成层土中自重应力

【例题2.1】某地基的地质剖面图如图2.3所示,试计算地面下深度为1 m、3.2 m、5.8 m和9 m处的自重应力,并绘出分布图。

【解】如图2.3所示。

图2.3 例题2.1图

3.地下水位升降时土中自重应力(图2.4)

图2.4 地下水位升降对土中自重应力的影响

地下水位升降,使地基土中自重应力也相应发生变化。如在软土地区,因大量抽取地下水,导致地下水位降低,使地基中土体的有效自重应力增加,从而引起地面沉降。如果地下水位上升,会引起地基承载力的降低,以及湿陷性土的塌陷。

【例题2.2】地基的地质剖面图同例题2.1(图2.3),当地下水位降至淤泥层顶面时,计算地基中的自重应力,并绘出分布图。

【解】粉质黏土层顶面处:σcz=16×1=16 kPa

粉土层顶面处:σce=16+17.5×2.2=54.56 kPa

淤泥层顶面处:σcz=54.5+18.9×2.6=103.64 kPa

不透水层层面处:σcz=103.64+7×3.2+10×3.2=158.04 kPa

当地下水位下降时,该地基中的有效自重应力增量为图2.5中阴影线部分表示。

图2.5 例题2.2图

从例题2.1、2.2的计算结果和自重应力分布图形可知,自重应力随深度增加而增大。成层土层分层面处和地下水位处自重应力呈折线形变化。当地下水位下降时,会引起地基中有效自重应力的增加,增加的这部分自重应力会引起地基的变形,这一点应引起重视。

一般土层在自重作用下的压缩变形早已完结,只有成土年代不久的新填土或地下水位的升降才会引起地基的变形,对于遇水后发生湿陷现象的地基,也必须引起注意。