1
纺织机械设计基础
1.10.1 第一节 管道内的气力输送
第一节 管道内的气力输送

气力输送是由封闭管道内的气流来承载和输送物料的一种技术。在纺纱机械中,它可以用来输送纤维、棉丛、落棉、尘杂等,使它们从机器的某个部位转移到另一部位,或从一台机器转送到另一台机器,以实现生产过程中的连续化和自动化,并可改善劳动环境,减轻劳动强度,提高生产效率。

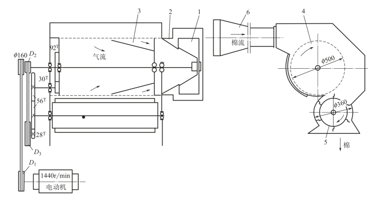
气力输送的设备通常包括离心风机、封闭管道、聚料器和空气滤尘器等。以开清棉联合机上的气力输棉设备为例,如图7-1 所示,离心风机是产生管道内空气流动的动力源,对于吸送式气力输送系统,风机的进风口与凝棉器相衔接,其外壳与输棉管道连接。当风机高速回转时,输棉管道另一端便从后方机台一定部位吸进空气和棉丛,形成管道内棉丛流,输送到前方机台上方凝棉器的尘笼表面上。尘笼和其下方皮翼打手作异向接触回转,附在尘笼表面的棉丛不断地被打手刮落下来,落入下方的棉箱内待加工。空气则从尘笼的网孔进入笼内而流向风机,穿过风机后再由风机出口被送到滤尘器,经净化后回归大气。滤尘器所附着的短绒尘杂也需连续除去。气力输棉设备便将棉丛从后方机器输送到前方机器。

此外,细纱机上断头吸棉装置、精梳机上落棉排除装置、梳棉机和并条机上吸尘装置,以及转杯纺纱机上气流输棉喂给装置都属于吸送式气力输送设备,其设备组成和物料输送原理基本相同。

以开清梳联合机上气力输棉设备为例说明吸吹式气力输送系统组成。如图7-2 所示,离心风机的进风和出风口都与管道衔接,当风机高速回转时,左方的吸棉管道就从后方机台出棉部位将空气和棉丛吸进,从风机出口再被吹送到各台喂棉箱的上箱内,上箱的壁上开有一孔,常以滤网遮蔽,其作用是将空气和棉丛分离,棉丛掉落箱内而空气从网孔逸出,进入另一回风管经净化排入大气。这里,为便于棉丛和空气穿越风机叶轮,叶轮采用径向式(或称直叶式)。

图7-1 吸送式气力输送系统

1—叶轮 2—进风口 3—喇叭口 4—尘笼 5—皮翼打手 6—进棉管

图7-2 吸吹式气力输棉系统

1—风机 2—凝棉器 3—开棉机 4—喂棉箱

气力输送技术具有下列特点。

(1)设备简单,安装和看管方便,占地小,适于长距离输送。

(2)物料在封闭管道内输送无损耗,不污染环境。

(3)在输送棉丝的同时可吸除短绒尘杂,有利于清棉。

(4)因物料的运行速度不均一,凝集后的物料将失去原有的均匀连续分布状态。