1
纺织机械设计基础
1.8.1 第一节 圈条机构的原理
第一节 圈条机构的原理

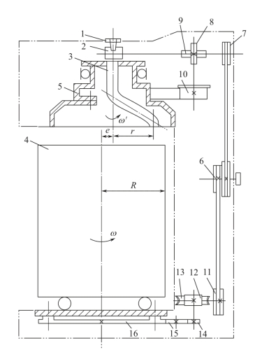
梳棉机、并条机加工的棉条制品,一般都是通过圈条机构使棉条呈摆线轨迹存放在条筒内。典型的梳棉机圈条机构如图5-1 所示,棉条经过一对回转的小压辊2 牵引、紧压后进入圈条盘的斜管3 输出,导入棉条筒内,使条子呈摆线轨迹存放在棉条筒内。

当圈条盘自传一周时条筒就接受一圈条子,相应地条筒须自转一个角度θ,以便接受下一圈条。盘和筒的转向相同或相反均可,但条筒中心相对于圈条盘中心应保持偏距e,以充分利用条筒容量。由图5-1 可求得:

式中:R 为条筒半径;r 为圈条半径;c 为单侧间隙;r0为棉条的一般宽度(压扁时)。

圈条形式有大圈条和小圈条两种。大圈条如图5-2(a)所示,圈条直径大于条筒半径,故条圈越出条筒中心。小圈条如图5-2(b)所示,圈条直径小于条筒半径,故条圈不越出条筒中心。

无论哪一种圈条形式,在条筒中央都保留一个气孔。当条筒直径相同时,当然以小圈条的圈条盘直径为小,故其轴承直径也较小。以前低产梳棉机上,由于条筒直径小到350mm 以下,往往采用大圈条形式。现今在中、高产梳棉机上条筒直径已增大到600~1200mm 或更大,因而大都采用小圈条形式,这样有利于圈条盘轴承的制造。目前的圈条机构都配有自动换筒装置,以减少人工换筒劳动和换筒停机时间。

由于大卷装的棉条筒随回转底盘回转的动力消耗大,新型高产梳棉机多采用行星式圈条器,行星式圈条器没有回转底盘,棉条筒放在地面上静止不动,圈条盘在绕自身轴线自转的同时还绕条筒中心轴公转。当圈条盘自转一周时,条筒就接受一圈条子,相应地圈条盘须同时公转—个角度θ,以便铺放下—圈条子。行星式圈条器节省动力消耗,但设计和制造的要求较高。

图5-1 圈条器示意图

1—喇叭口 2—小压辊 3—斜管 4—棉条筒 5—圈条盘 6,7,11—皮带轮 8,9—螺旋齿轮 10—同步带轮 12,13—蜗杆、蜗轮 14,15,16—齿轮

图5-2 圈条形式