1
机械设计课程设计手册 第2版
1.7.2.1 22.1 轴系部件设计任务书
22.1 轴系部件设计任务书

机械设计大作业任务书No.2

学生姓名______________学号______________专业______________指导教师______________

题目A.一级直齿圆柱齿轮减速器输出轴的轴系部件设计

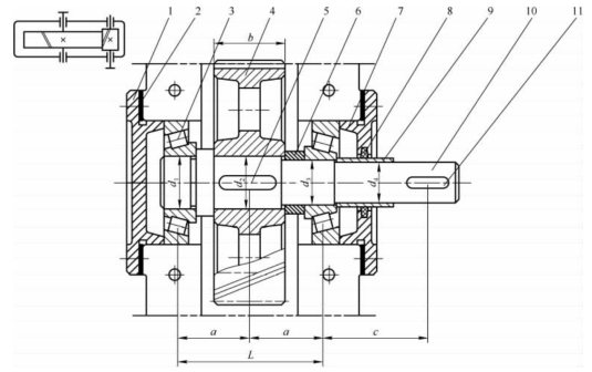
1.设计项目:直齿圆柱齿轮传动输出轴的轴系部件设计。其轴系部件的结构如图22-1所示,滚动轴承用脂润滑。

2.原始数据:由指导教师按表22-1选定。

图22-1 直齿圆柱齿轮传动输出轴的轴系结构

1—输出轴;2—密封圈;3—轴承透盖;4—深沟球轴承; 5、8—封油环;6—键;7—输出大齿轮;9—调整垫片;10—轴承闷盖

3.设计任务:

(1)绘制直齿圆柱齿轮传动输出轴的轴系部件装配工作图1张(A2幅面),比例为1∶1。

(2)撰写设计计算说明书1份,主要包括输出轴的设计计算,轴承类型选择和寿命计算以及键连接的校核计算等。

4.设计期限:___________年______月_______日至__________年_________月_______日

表22-1 直齿圆柱齿轮传动输出轴的轴系部件主要设计参数

注:滚动轴承的寿命为10 000h,工作温度小于120℃,有轻微冲击。

机械设计大作业任务书No.3

学生姓名______________学号______________专业______________指导教师______________

题目B.一级斜齿圆柱齿轮减速器输出轴的轴系部件设计

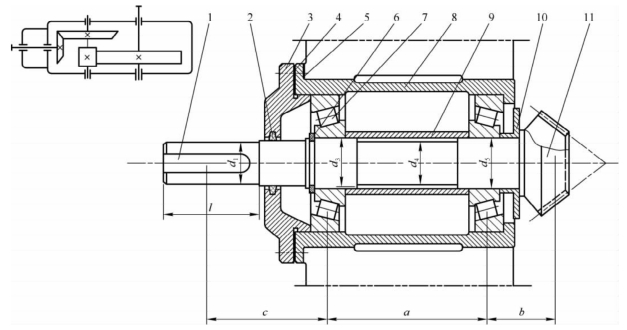
1.设计项目:斜齿圆柱齿轮传动输出轴的轴系部件设计。其轴系部件的结构如图22-2所示,滚动轴承用油润滑。

2.原始数据:由指导教师按表22-2选定。

图22-2 斜齿圆柱齿轮传动输出轴的轴系结构

1—轴承闷盖;2—调整垫片;3—圆锥滚子轴承;4—输出大齿轮;5、11—键;6—套筒;7—轴承透盖;8—密封圈;9—定位套;10—输出轴

表22-2 斜齿圆柱齿轮传动输出轴的轴系部件主要设计参数

注:滚动轴承的寿命为10 000h,工作温度小于120℃,有轻微冲击。

3.设计任务:

(1)绘制斜齿圆柱齿轮传动输出轴的轴系部件装配工作图1张(A2幅面),比例为1∶1。

(2)撰写设计计算说明书1份,主要包括输出轴的设计计算,轴承类型选择和寿命计算以及键连接的校核计算等。

4.设计期限:__________年______月_______日至__________年______月_______日

机械设计大作业任务书No.4

学生姓名______________学号______________专业______________指导教师______________

题目C.圆锥-圆柱齿轮减速器小锥齿轮输入轴的轴系部件设计

1.设计项目:锥齿轮传动输入轴轴系部件设计。轴系部件结构见图22-3,滚动轴承用脂润滑。

图22-3 锥齿轮传动输入轴的轴系结构

1—键;2—密封圈;3—轴承透盖;4、5—调整垫片;6—轴用弹性挡圈;7—圆锥滚子轴承;8—套杯;9—定位套;10—封油环;11—锥齿轮轴

2.原始数据:由指导教师按表22-3选定。

表22-3 锥齿轮传动输入轴的轴系部件主要设计参数

注:滚动轴承的寿命为10 000h,工作温度小于120℃,有轻微冲击。

3.设计任务:

(1)绘制锥齿轮传动输入轴的轴系部件装配工作图1张(A2幅面),比例为1∶1。

(2)撰写设计计算说明书1份,主要包括输入轴的设计计算,轴承类型选择和寿命计算以及键连接的校核计算等。

4.设计期限:__________年______月_______日至__________年______月_______日