1
机械制图与计算机绘图
1.10.2.4 四、箱体类零件
四、箱体类零件

1.结构特点

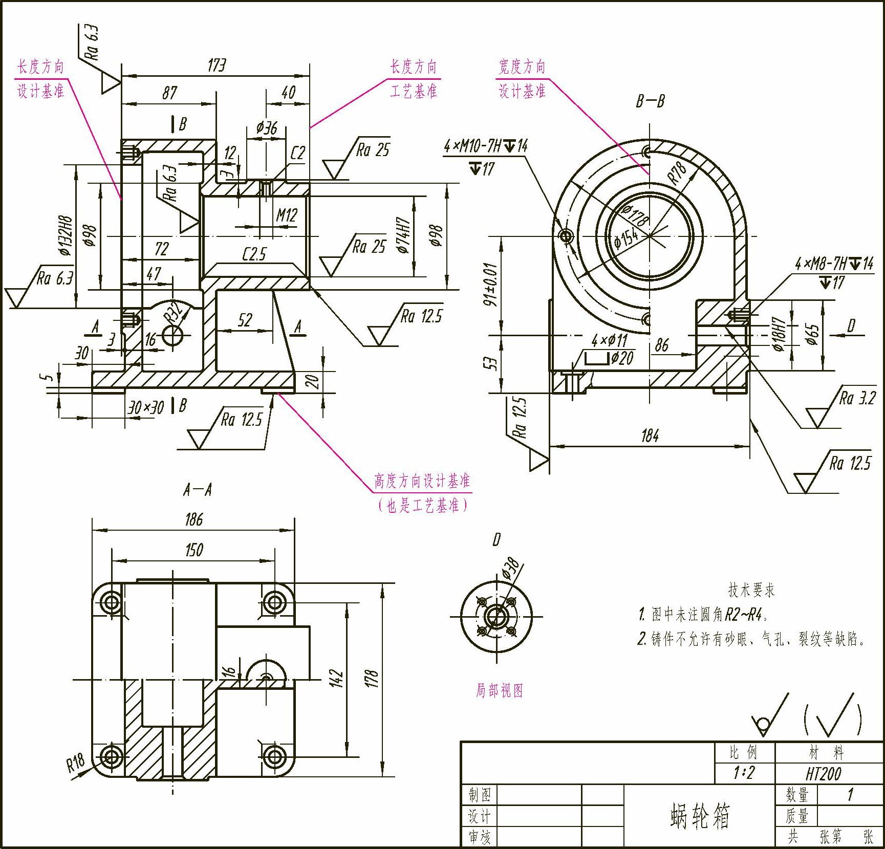
箱体类零件主要用来支承和包容其他零件,其内外结构都比较复杂,一般为铸件,如图7-7所示。泵体、阀体和减速器的箱体等都属于这类零件。

2.常用的表达方法

由于箱体类零件形状复杂,加工工序较多,加工位置不尽相同,但箱体在机器中上工作位置是固定的。因此,箱体的主视图常常按工作位置及形状特征来选择,为了清晰地表达内部结构,常采用剖视的方法。

978-7-111-38957-6-Chapter08-8.jpg

图7-8 蜗轮箱零件图

图7-8是蜗轮箱零件图,采用了三个基本视图。主视图采用全剖视,重点表达其内部结构;左视图内外兼顾,采用了半剖视,并采用局部剖视表达了底板上安装孔的结构;而B-B半剖视图既表达了底板的形状,又反映了蜗轮箱下部的断面形状和外形,显然比画出俯视图的表达效果要好。