四
、民用建筑的配合土建
随着人类社会的进步和物质文明的提高,民用电器越来越多,用电容量日趋增加,电路也走向复杂化,功能增多。除了照明以外,通信、广播、电缆电视、火灾报警及自动消防、防盗报警、电梯、炊事机具、空调及通风、电力驱动、微机联网管理及监控等电气系统已渗透在现代民用建筑之中。这样给施工安装带来了一定的难度,同时对安装行业及其电气设计部门都是一个极好机遇和挑战,也是和国际安装业接轨的前奏。尤其高层建筑的迅速发展,更使这个问题突出。
本节将要讲述普通民用住宅和高层建筑的配合土建施工。
(一)普通民用住宅的配合土建
普通民用住宅的电气设施主要有照明、单相动力、电话、电缆电视以及电源管线、开关箱等。普通民用住宅是以户单独计取电费的,因此,配管时的区域性很强,各户之间的管路不得混淆,这是必须注意的。现以某六层住宅楼为例,电气布置图如图9-51a所示,讲述配合土建的工艺方法。本图采用一室一路电源,如一户采用两路电源(插座一路、照明一路)时,则应照其分开设置,如图9-51b所示。
1)地下室砌墙到楼板下-0.3m时下各室拉线开关盒及由照明箱通至地下室的总接线盒,且总线盒应敷管向上通往照明开关箱的下皮,管长为(0.3+1.4+2×0.005+楼板厚度+室内外高差)。
2)地下室楼板施工时将地下各室的灯盒及管、走道灯及管下好,并把管连通后送至总接线盒,同时把走道灯盒用管送到入口处并使该管上翻至室外标高1.40m处,砖砌到这里时再预埋一只开关盒。
3)墙砌至室内标高0.30m时,预埋插座盒并敷管,图中插座、开关、灯具画在一起的管通至顶下-0.3m处,这里有一只接线盒;只和灯具画在一起的通至标高1.85m处,这里有一只壁灯盒。

图9-51 某住宅照明平面图1∶100
同时在0.3m处敷设电缆电视用户插座盒,且敷管垂直通至二楼该处的0.3m处。
4)墙砌至室内0.80m时,下电话插座盒,且敷管垂直通至二楼该处的0.8m处。
5)墙砌至室内1.40m时,下手动开关盒,且敷管垂直通至屋顶下-0.2m处。同时将总照明开关箱的外壳置于引入地下室电源管的上口;待砖砌至闸箱上皮时,从闸箱上皮敲落孔敷5根管,分别通至屋顶下-0.2m处,其中3根是通往本层三户的电源管,1根是市电供电的总电源管(该管只一层顶有),另一根是通往二层的电源管。因为这里有一只楼道灯,其电源是从这根通往二层电源管的接线盒取得的。
6)墙砌至1.85m标高时,下壁灯盒,并敷管至顶-0.2m处,墙砌至屋顶下-0.2m时,将该标高处的所有接线盒下好。
7)一层楼板施工时,按图9-51将各室灯盒、管敷好,并把管的另端和墙上-0.2m处的盒点焊好;同时将市电电源引入管室外端套好丝,然后置于墙中间,室内端插入墙上闸箱上方板下的-0.2m处的接线盒,室外出墙800mm;最后将通往上层的电源管插入门庭的接线盒垂直送至第二层的标高1.40m处。
至此,第一层的管路和盒全部下好,从第二层起各层的敷设与第一层基本相同,下面讲述不同点。
8)第二层电话插座盒敷设时,首先是用一管将①室的盒引入室外,并做一个防水弯,出墙不大于600mm,同时在出口处预埋一块T形铁,作为电话室外线盒的固定点。然后用两根管将①室和②室、①室和③室的电话盒经地板分别连接起来。第二层设有市电电源管,闸相向上引4根管,一直到第六层。
9)层高到第六层时,0.8m处电话盒不再向上送管,因在二楼已连通;电缆电视继续向上送管至顶板下-0.2m处,电源也向上送管至顶下-0.2m处,作为电缆电视放大器的电源。
10)标高至顶层板下-0.2m时,将图中板下-0.2m处的引上管设接线盒。
11)楼顶板施工时,将10中的盒用管引自天线处的电缆电视小间处,上翻0.8m,全部套丝;在小间侧(按设计测定场强的方位处)预埋天线底座,天线底座如图9-52所示。现浇楼板应和钢筋绑扎好,预制楼板时,此处应改为现浇。同时应将天线的缆风绳地锚预埋好,如图9-53所示,方法同底座。在绑扎屋沿钢筋时,应每隔1m预埋一扁铁,如图9-54a所示或一圆钢,如图9-54b所示,作为屋顶防雷线的支撑物。

图9-52 天线底座预埋示意图

图9-53 拉线底座示意图

图9-54 屋顶防雷线支撑预埋示意图
12)关于防雷引线的作法说明。
防雷引线的做法应由设计标注而定,采用屋架柱体内主钢筋作为引线时,应在室外地坪标高1.0m处,在模板内预埋一T形铁,并使其露出柱面,T形铁则和主筋电焊焊好,然后每次主钢筋连接时,必须用电焊将接头部位双面焊好,焊缝长度大于100mm,直到楼顶下一0.8m处,再预埋一块T形铁,同样电焊焊好。第一块T形铁作为和接地极引线连接的部位,第二块T形铁作为和屋顶防雷线连接的部位;当采用墙外敷设防雷引线时,则应在下引部位的墙上每隔1.50m预埋一块T形铁,直至屋顶,作为支撑防雷引线的支撑物的连接点。防雷引线的敷设部位和根数由设计标注。
至此,六层民用住宅楼的配合土建作业全部结束。然后按图样彻底检查一遍,有漏掉的在没有内装修前补设完。补设的办法通常采用在墙上或地面上刨出一深80mm的沟,将管置于其内,线盒处应按盒刨一规则的坑,将盒置于其内,并用电焊点好。
这里需要说明一下,室内配管如采用软塑管,则应采用塑料盒。而由墙上引至屋顶的管则在板下-0.2m处,不设线盒,先把软管团在这里,盖板或浇注时直接引自灯盒或开关盒内。但为了安全,民用建筑不提倡用软塑管,住户因为往墙上钉钉子、在地面上开凿小沟,为之发生触电的事故已发生不只屡次。这是电气工作者在从事设计和安装时万万不可忽略的。
13)在多层、高层或大面积平面内配合土建施工,在电气管路超施工验收规定的长度时,中间应加装接线盒或拉线盒,其位置应便于穿线。
垂直敷设的管路时,装设接线盒、拉线盒的距离应按表9-4中的数值设置。
表9-4 垂直管路拉线盒距离表


图9-55 伸缩缝处接线管示意图
14)配合土建时,应使电气管路避开热力管道及其他管道,其最小距离应符合表9-5的规定,这也是熟悉其他专业图样的必要性。
15)预埋管路遇建筑物伸缩缝沉降缝时的处理办法。一般是在该处两侧各预埋一个特制的方形接线管,如图9-55所示。两边的管路只将管口进入接线管、用电焊点焊牢固。穿线时,导线在该管内内留有充分的裕量,有时也可在该管内套上较粗的金属软管。通常分两种情况穿越。
① 管路在楼板上敷设。管路进墙后沿中线上翻到室内地坪0.3m处,将方形接线箱置于墙上,箱口朝外,并使管路的管口进入管内5mm,如图9-56所示。
② 管路在墙上敷设时,将箱做成L形,平放在伸缩缝处,如图9-57所示。

图9-56 伸缩缝处管路在楼板内时与接线箱的连接

图9-57 伸缩缝处管路在墙内时与接线箱的连接
(二)高层建筑的配合土建
高层建筑的电气设施很多,几乎包罗了所有现代电器。高层建筑的标志之一就是功能的电气化和自动化,现在以某36层综合大厦为例,详细讲述配合土建的工艺方法。
1.工程概况
1)该项工程从功能上区分有4个部分,即商场、办公写字楼、民用住宅及其配套附属工程。地下两层,地上34层,现浇混凝土框架结构,外形如图9-58、图9-59所示。
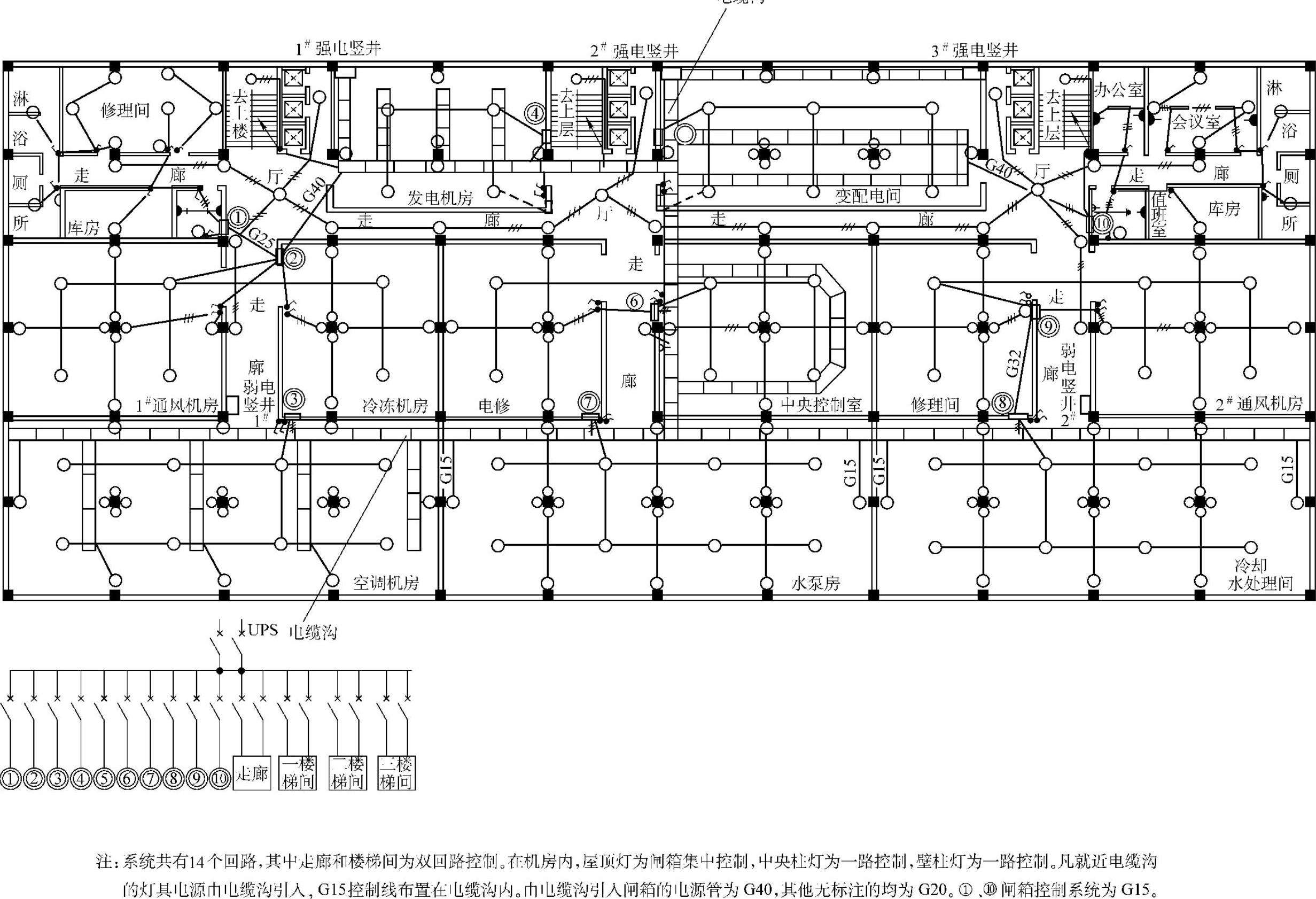
2)地下二层为空调机房、消防泵房、给水泵房、修理间、自备发电机组、通风机房、冷冻机房、3×1000kVA变配电间、冷却水处理系统等,也称做第一设备层,设备层层高6m,平面布置如图9-60~图9-63所示。
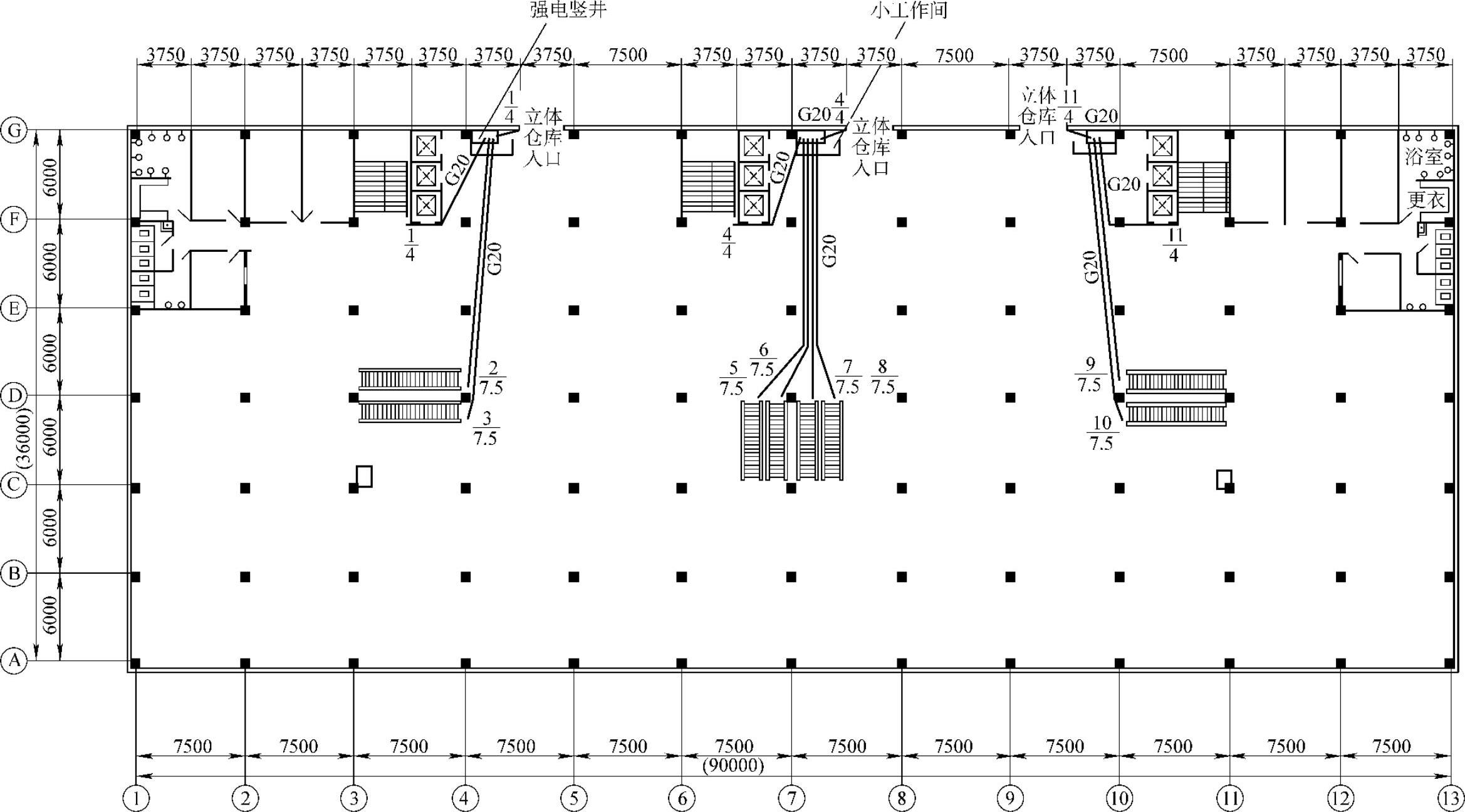
3)地下一层至地上四层为商业中心,除卫生淋浴间外全部吊顶,直梯6部(从地下二~九层)、每层有扶梯8部,消防梯3部,首层有电动卷帘,全部为电动门,除照明(包括装饰照明)外,有火灾报警及自动消防系统、闭路电视及防盗保安系统、个别部位有电缆电视系统、通信广播系统、空调系统、微机管理的监测系统等,层高6m。平面布置如图9-60~图9-68所示。消防中心和防盗保安中心设在一层。
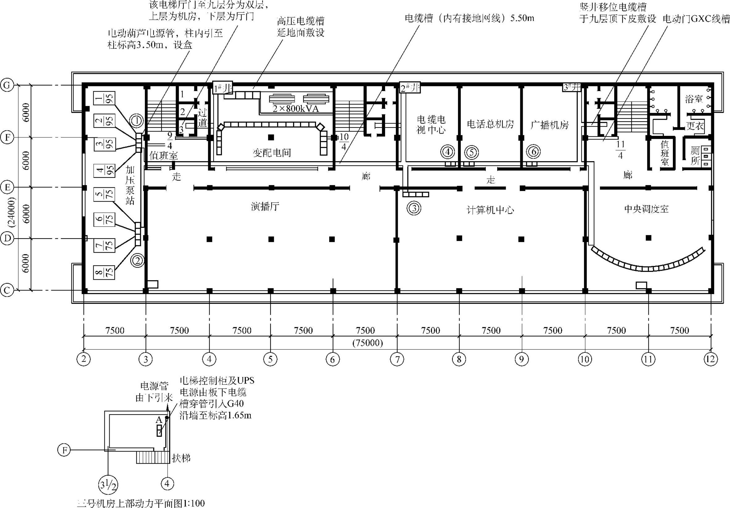
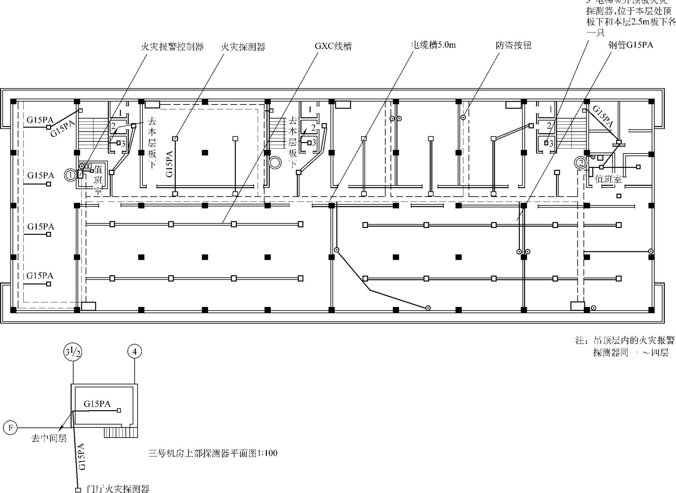
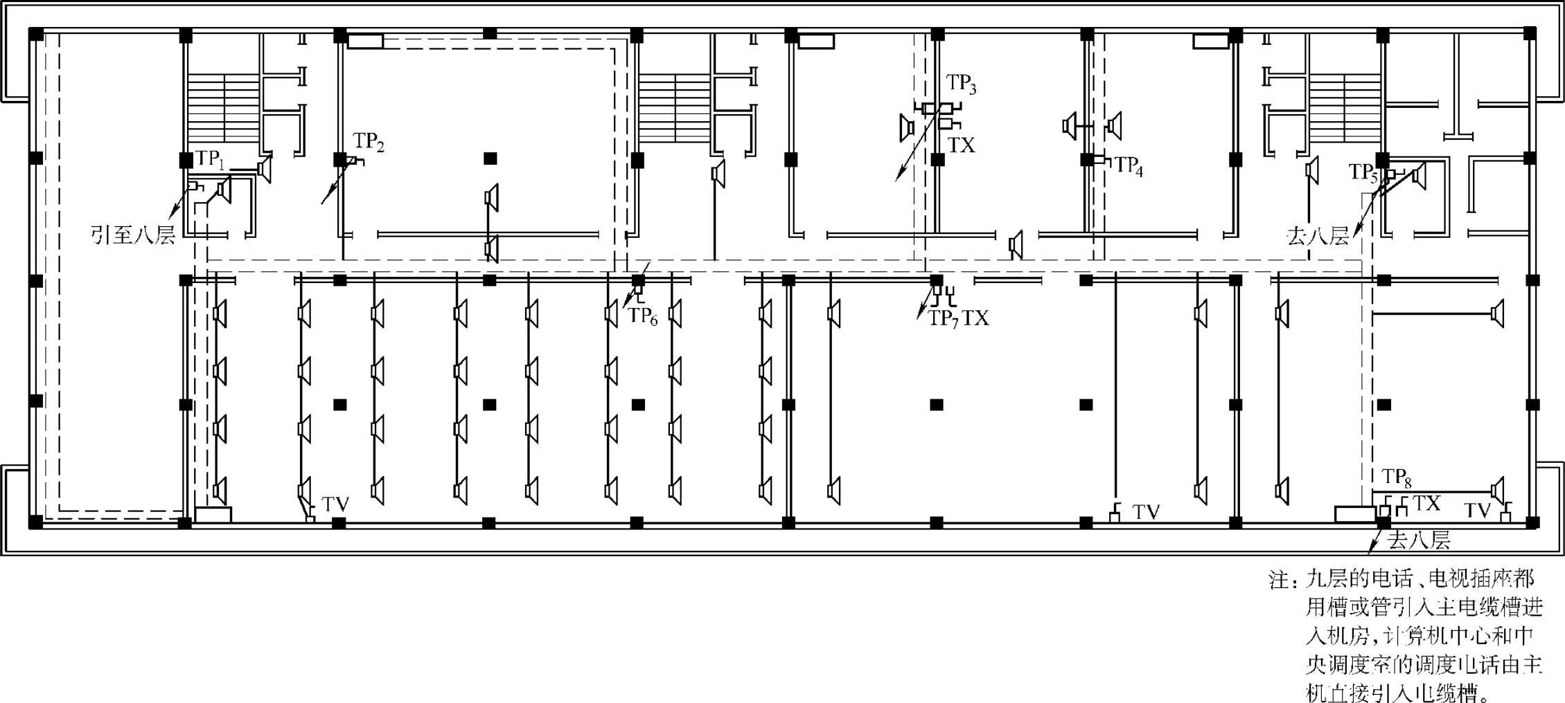
4)地上五层到九层为办公管理中心,除泵站、变电间、卫生淋浴外全部吊顶,有照明、电话、通信、广播、电动空调机、现代办公设备、火灾自动报警及消防系统、局部有电缆电视。微机管理控制中心、电梯中转站(地下二~九层的电梯机房)、电话总机房、通信广播总机房、电缆电视机房及演播厅、会议厅、加压泵站(包括消防泵)、2×800kVA变电间设在九层为第二设备层,九层层高6m,其余净高3.30m,楼梯间门为电动门。如图9-69~图9-76所示。

图9-58 某36层综合大厦南立面及地下层外形示意图
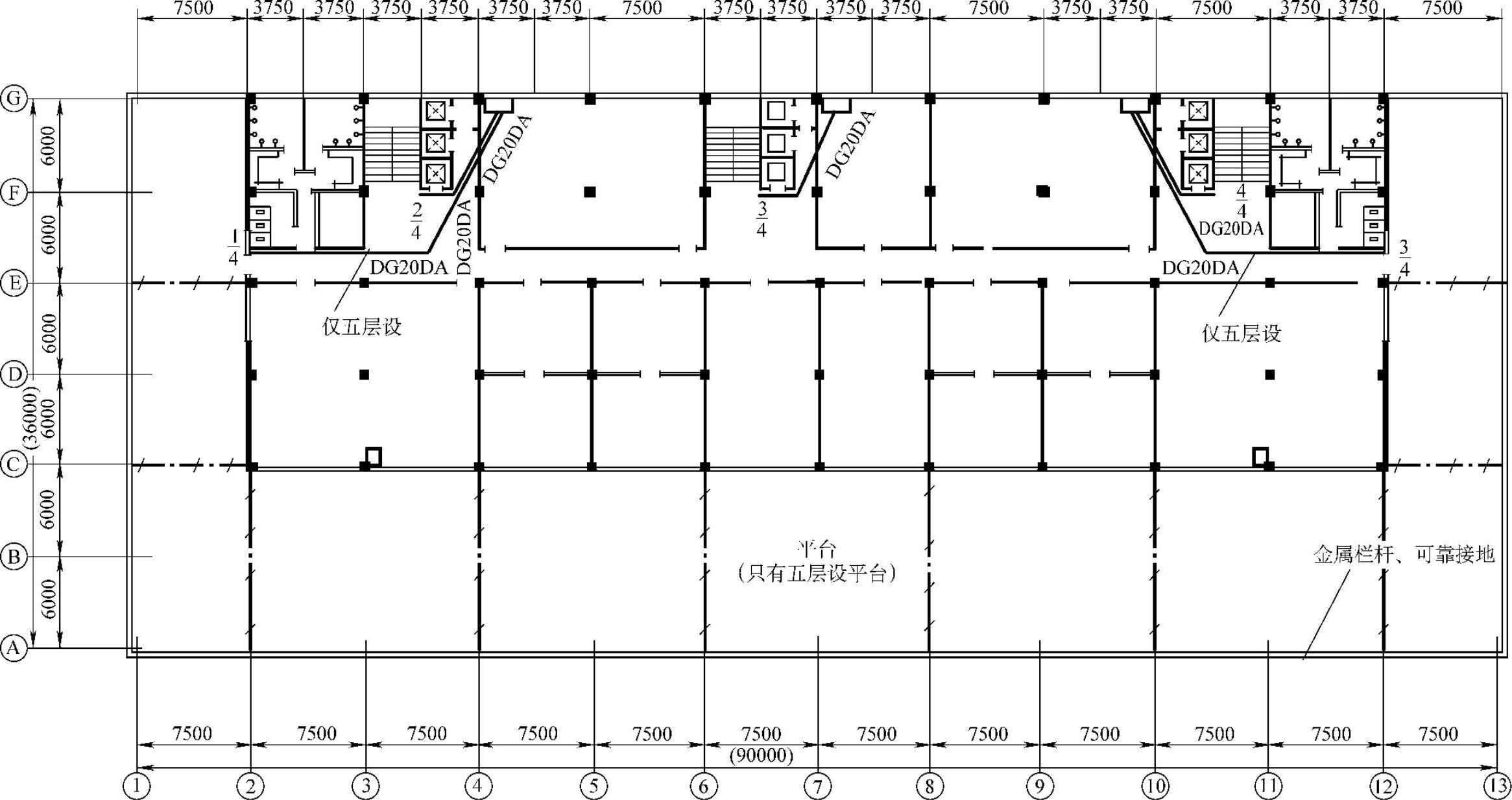
5)十层到三十六层为居民住宅,有照明、电缆电视、电话、火灾报警系统、电梯、可视—对讲—电门锁防盗保安系统等现代家庭设备。共3个单元,一、三单元每层5户,二单元每层7户、层高2.80m。如图9-77~图9-79所示。
表9-5 配线与管道间最小距离

注:1.表内有括号者为在管道下边的数据。
2.在达不到表中距离时,应采取下列措施:
1)蒸汽管——在管外包隔热层后,上下平行净距可减至200mm。交叉距离须考虑便于维修,但管线周围温度应经常在35℃以下;
2)暖、热水管——包隔热层;
3)裸导线——在裸导线处加装保护网。
3.裸导线应敷设在管道的上面。

图9-59 某36层综合大厦东立面及地下层外形示意图
6)楼顶有电梯机房、卫星抛物面天线、电视共用天线、无线寻呼电话天线塔、防雷设施、航空障碍灯等。如图9-80~图9-82所示。
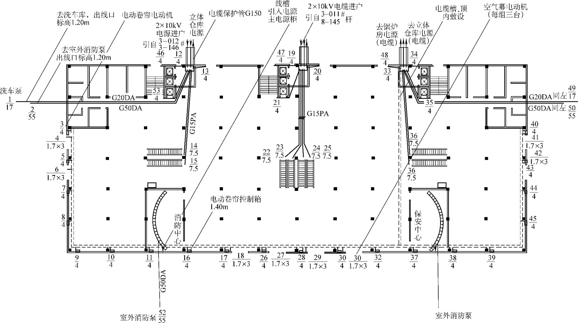
7)楼前和两侧为停车场,有立面投光照明、广场照明、水下喷泉照明等。楼后为地下一层、地上四层的立体仓库,(图上没有标出)有货梯8部,消防梯2部,配有照明、火灾自动报警及消防系统、防盗报警保安系统、电动门、电话,层高和主楼对应相等。并有锅炉房(图中没有标出)住宅入口的通道及自行车棚等设施。
8)电气竖井分强电竖井3个,弱电竖井两个,变压器采用环氧树脂干式变压器;在客梯机房、电话机房、电视中心、广播机房、消防中心、保安中心、消防电梯机房、调度中心、计算机中心和变电间分别配有不间断电源(UPS)。
9)本建筑物是一模拟建筑物,主要是为了讲述高层建筑的配合土建施工和电气安装,如有与土建结构或机械设备有矛盾或冲突之处,应以土建结构设计及设备专业图样为准。
10)需要说明的地方是,前述内容中讲述过的工艺方法不再详细说明,只列出不同标高位置应预埋的管盒,没有讲述过的内容则详细说明。
2.管路布置的总体设计及要求
高层建筑的电气设备及装置种类繁多,配线管路纵横交错复杂,都给安装工作带来了一定的难度。因此,在配合土建施工时应根据设计要求,进行管路布置的总体设计,原则上要尽量减少楼板中水平敷设的管路,以保证设计思想的实现。
1)每层的照明、小型动力、火灾探测器应在楼板上设置管路及线盒,而广播音响、防盗保安装置及微机监控系统的各类传感器应尽量在墙上设置,然后由本层引入到相应的竖井或电缆槽内。凡有吊顶的房间则应将上述装置的管路及线盒敷设在吊顶之内并引入电缆槽内。大型动力或动力较多时应采用电缆槽敷设。
2)楼梯间、安全通道的照明、诱导灯、火灾探测器应从底层竖直向上布置管路,一至通至顶层。然后由底层引至相应的竖井之内。
3)电话、卫星有线电缆电视的管路应从机房的弱电电缆槽(吊顶内水平敷设)引出,经柱或墙上翻(引自九层以上)或下翻(引自九层以下)各房间的同一部位,一直到顶层或底层。凡在中途隔断时,也就是途经房间没有装置电话、电视,或者由于房间开间的改变,其电话、电视插座的位置发生了改变时,则应在发生改变的下一层(或上一层),水平敷设管路(吊顶内可装设线槽)将下一层(或上一层)的电话电视线槽引入下一层(或上一层)的弱电电缆槽中。如果某一机房设于顶层,则由顶层水平送至各个支路下翻至于各个房间,中途变化时则采用上述的方法。
4)设备层设在最底层,动力管路应敷设在室内地平以下,设备层设在中间层,动力管路可设在地平以上并设置保护盖板或活动地板夹层保护。微机监控线路则由线槽沿墙或顶板、地板敷设,再引入竖井或电缆槽。
5)竖井之间的连通一般采用电缆于底层电缆沟、电缆穿管于楼板内敷设或线槽沿墙敷设的方法,楼板内敷设只限于不大于ϕ32mm的管。如竖井间有吊顶,则应经吊顶内电缆槽直接引入连通。
6)引入电缆竖井的管路应有统一的编号,并且与图纸一一对应。
7)电缆竖井在每层都应开门,实际是一个暗装的开关控制柜,开门的大小由该层的设备多少而定,必要时还应从侧面开门,以便能进入竖井内进行安装、维修、检查。门高一般为2m。
8)高层建筑配合土建时,必须从基础施工时设置接地体,其接地体就是基础的主筋,详见本章的“多层工业厂房配合土建”中基础接地网的设置和图9-118。

图9-60 地下一层(地上二~四层)动力平面图

图9-61 地下二层(第一设备层)动力及设备平面布置图

图9-62 地下二层(第一设备层)照明平面图

图9-63 地下二层(第一设备层)弱电平面图

图9-64 地下一层(地上二-四层)照明及管路布置平面图

图9-65 地下一层(地上二~四层)弱电管线布置平面图

图9-66 地上一层动力平面图

图9-67 地上一层、大门照明平面管路布置图

图9-68 地下^一层弱电管线布置平面图

图9-69 地上五~八层动力及防雷平面布置图

图9-70 地上五~八层照明管路平面布置图

图9-71 地上五~八层广播、电话、有线电视管路平面布置图

图9-72 地上五~八层火灾自动报警、防盗报警管路平面布置图

图9-73 九层(第二设备层)动力平面布置图

图9-74 几层(第二设备层)照明管路平面布置图

图9-75 九层(第二设备层)火灾报警、防盗报警管路平面布置图1:200

图9-76 几层(第二设备层)广播、电话、有线电视管路平面布置图

图9-77 十~三十六层照明进户管路平面布置图

图9-78 十~三十六层照明及管路平面布置图

图9-79 十~三十六层弱电系统管路布置平面图

图9-80 屋顶电梯机房动力管路平面布置图

图9-81 屋顶特殊照明及电梯机房照明平面布置图

图9-82 屋顶、电梯机房弱电管路平面布置图
9)总体要求。凡框架结构的建筑物,其电气工程的配合土建大致都分4个阶段,一是混凝土框架浇注时的配合,二是砌筑墙体时的配合,再是土建做地面时的配合,最后是内装修及吊顶时的配合。第一阶段所预埋的“悬空”管尽量要短,要管口朝下,做到最大限度的保护,避免碰歪撞断及水平交叉;第二阶段的盒箱要掌握好出墙的距离和在墙上的水平和竖直,杜绝遗漏及太深或太浅;第三阶段要仔细检查有否漏项,应及时采取补救办法,为安装创造条件;第四阶段要整修美观、整齐有艺术性。
3.混凝土框架浇注时的配合土建施工
1)地下二层柱子支模绑筋时,在地室内地坪0.30m处预埋接地引线的T形铁;从电缆沟引管到有柱灯的柱子的2.00m处预埋盒,并在1.30m和3.80m处预埋T形铁。3.80m处的T形铁如图9-63所示,凡有电缆桥架的柱子应预埋。这里要注意,如果一根柱子上有多个灯盒,其线盒的标高应分别错开,尽量不占用柱子的同一标高的截面积,且引上管应为一根,在灯盒处再用短管连通,安装灯具时再用圆木或灯座找平。柱灯和柱灯之间的管路应在-0.30m预埋倒π形管路来连接。
在柱子上标有电话插座的,则应在0.80m处下盒,并将此盒用管引上至上层柱子的该位置,同时在其他位置或房间内如标有电话插座,则应在有电话插座的柱子与该房间位置电话插座处的途径中所有的柱子的0.80m处,预埋一根水平方向的短节套管,如图9-83所示其管应在柱子的中心部位,两端出柱面不大于5mm。而在墙上标有电话处的上方顶板或梁上预埋套管,以便砌墙时穿管,如图9-63所示的A、B点。
在基础配合土建时,应按多层工业厂房的配合土建中基础接地网的设置要求,进行接地网的配合土建,如图9-118所示。同时应按设计要求,在土建基础垫层之下,埋设镀锌扁钢网格式接地网,网格不大于5m×5m,网格应可靠焊接,并与铺底主筋、柱内主筋、圈梁或地梁主筋可靠焊接。
2)电梯井道支模绑筋时,按设计标注的标高位置在井道内壁上预埋导轨架、电缆支架、导线槽、井道照明管路的T形铁以及呼梯按钮、楼层指示器的线盒。
① 导轨架的T形铁用≥15mm厚的钢板及≥ϕ16mm的圆钢焊接而成,其规格应符合表9-6的规定;第一块T形铁距底坑地坪不大于1000mm,然后每隔2500mm预埋一块T形铁;T形铁的位置应按图样标注的位置预埋,各个标高上同一位置的T形铁,其中心应在同一条直线上,这条直线应垂直于地面。导轨分轿厢导轨和配重导轨两种,因此,同一标高上T形铁的块数应和导轨根数对应,不要漏掉。

图9-83 柱子上电话盒及短节套管的预埋
表9-6 电梯预埋件规格表 (单位:mm)

② 其他T形铁的预埋,从底坑地平起每隔1500mm预埋一块,位置应按图样标注,同一用途的T形铁,其中心连线应在同一条直线上。T形铁在井道内的位置如图9-84所示,其规格应符合表9-6的规定。
③ 按钮盒、指示灯盒的预埋位置应按图9-85中所示,预埋应将盒底的敲落孔敲落一个,并在这个位置的井道上横置一根ϕ25mm的圆木棍,将盒与井道连通。安装时,将此棍敲落即留下一洞,可穿入金属软管敷线。往上层层按此预埋,直至机房下层。
3)地下二层的顶板(包括楼梯间顶板)支模绑筋时,应按图样标注位置预埋顶板上的灯盒及管路,手动开关翻下至室内地坪1.40m处暂悬空。一般每一个照明回路、一个功能单元(如水泵间、锅炉间等)应从照明闸箱上方的框架梁上翻下一短管头,准备下翻至闸箱。而每一个照明回路的闸箱都应从电缆沟内引出电源管,经地面上翻至闸箱的下皮,标高1.40m,见图9-62地下二层(第一设备层)照明平面图,如能在做地面时预埋的管路可暂不预埋。
同时按图9-63地下二层(第一设备层)弱电平面图预埋顶板上的火灾探测器盒及管路,方法同照明电路。这里要注意探测器盒与灯盒应有一定的距离,至少应大于500mm。同样引至手动报警按钮及区域报警控制器的管路应从图中标注位置引下悬空,标高按图中标注或习惯做法。
图9-63中,在水泵房和中央控制室都布有电缆桥架,则应在顶板上,按标注位置或参见设备安装图样预埋T形铁件,方法如图9-48所示。其他沿柱布置的桥架已在柱子上3.80m处预埋了铁件,但和设备安装图样有冲突时,应绕开设备,在顶板上预埋铁件便于使桥架拐弯,一般为直角弯或斜坡弯,如图9-114所示。

图9-84 T形铁件在井道预埋示意图

图9-85 箱盒在井道中的位置

图9-86 楼梯间、安全通道预埋管盒示意图
4)在楼梯间、安全通道里的照明回路和探测器回路里凡有穿越主梁和次梁的管路则应在穿越处预先在支模绑筋时预埋短节套管。以图9-86为例说明楼梯间照明回路的管盒敷设。在楼梯间支模绑筋时,在图中A位置装盒一个并敷管使之通至旁侧的小梁上下翻出梁-0.20m处,这里在砌筑维护墙时有一只接线盒,准备与B盒连通,同时在D处预埋一只开关盒,并敷管通至上层该标高处,下口为电源引入管或与下层该标高处盒连通。假如D处是维护墙,则应在其垂直上方的梁上预埋短节套管。C盒是另一墙上的开关盒,在维护墙上与B盒直接用管连通。如果采用壁灯,则只在B点装一盒即可。C和D是在下半层支模时用倒π形管连通的,以便完成楼梯间灯的两地控制。
5)安全通道诱导灯或踢脚灯的管盒预埋是在楼梯间或安全通道的角处沿柱或墙垂直上下引入一管,并在E处(0.1m标高)有一线盒,如图9-87所示。在图9-62中没有标出诱导灯。
楼梯间灯及安全通道灯的管与盒,往上随标高增加,层层按此处方法预埋,直至顶层。楼梯间照明若采用配电室集中控制,将大大简化管路的预埋。
6)地下一层柱及顶板支模绑筋时,有以下预埋作业:
① 在柱体上,室内地坪0.3m处预埋插座盒及连通管路、2.30m预埋柱灯盒、4.0m预埋插座(广告、备用),并用同一根管引至顶板下皮的盒内,安装时再用金属软管引入荧光灯带的线槽,示意图如图9-88所示。

图9-87 楼梯间诱导灯安装示意图

图9-88 柱体上管盒预埋示意图
同时预埋A轴、G轴、1轴、13轴柱子0.30m处的插座,并用倒π形管连接起来,引至柱灯柱子的0.30m处的插座。
② 按设计图9-63,在柱体0.80m处预埋电话、电视插座盒,并用管引至上一层同一标高处;在2轴、3轴、12轴办公间墙上电话电传插座处的垂直上方的梁上及板上预埋短节套管,以便该位置上电话电传管路的穿过。
③ 按图9-60由强电竖井引出管路经顶板引至扶梯高端电源引入位置,且翻下顶板300mm,扶梯电源引入位置如图9-89所示。
④ 同样按图9-60由强电竖井引出管路经顶板引至电动门电源引入位置,且翻下顶板300mm;应按电动门执行器实际位置敷设。
⑤ 在图9-65标注的柱子1.40m标高处预埋一按钮盒,并敷管至楼顶板下-0.3m处的接线盒,安装时经吊顶内管路或线槽再引入2#弱电竖井,做为手动报警按钮,见示意图9-88。

图9-89 电动扶梯立面示意图
⑥ 在室外地坪0.8m时(见图9-66),由三个强电竖井的位置分别向室外预埋电源进户保护管路,出墙距离应超过散水,进入竖井的长度不大于50mm,两端做喇叭口,做为电源进户和室外照明控制电缆的保护管,如图9-90所示。

图9-90 电源引入管的预埋
同时预埋由强电竖井通往室外的动力(洗车泵、消防泵)和照明(立体照明投光灯)的管路,位置如图9-66~图9-67所示。因室内地坪高于室外地坪,通常要在墙上预埋一只防水接线盒,室外管口要用钢板点焊牢固,如图9-91所示,以防异物落入。
⑦ 屋顶灯饰、火灾自动报警探测器、广播音响、防盗摄像头、微机系统的传感器、信号采集器等以及它的管路将在土建工程内装修时置于吊顶之内。但卫生间、淋浴间顶板的灯盒及管路应预埋,并将通至手动开关的管引至顶板下-0.30m处为短节悬空,位置在墙体西侧,如图9-64A点。
⑧ 应该注意到,图中注明了吊顶内的火灾探测器的布置,则应在顶板上四柱对角线中心预埋管及盒,并在电缆槽位置的垂直上方的板上预埋一接线盒。其管路的预埋则和吊顶上的GXC线槽一样,把每一行的盒连接起来,引入电缆槽。
⑨ 关于电缆槽的设置,则是在吊顶内C轴和2轴、12轴的部分柱子的距吊顶150mm的位置上预埋一T形铁,其位置的方向如图9-65所示。电缆槽的开口则应是外侧,而不是顶部。安装槽时,其上顶应与吊顶板贴紧。

图9-91 室内外室外引出管路示意图
7)地上一层柱及顶板支模绑筋时,有以下预埋作业。
由图9-66~图9-67可知配合作业项目基本包括地下一层的项目,此外还有几点:
① 室外柱子上的灯饰应在2.80m标高处埋盒、并用管引至吊顶线上150mm处并埋设线盒,再用管或线槽引入相应的雨篷灯上。
② 室外雨蓬灯饰的作法同吊顶上装灯。
③ 橱窗灯饰插座则在柱体2.00m处埋盒并敷管引至吊顶线内150mm处。
④ 敷设电缆槽的T形铁的预埋。
由图9-66~图9-67可知,该层有两个电缆线槽,一个是延A轴、1轴、10轴和13轴的强电电缆槽,则应在这些轴的柱体吊顶线内0.80m处预埋T形铁;另一个是延C轴及1轴、2轴、4轴、7轴、10轴、12轴、13轴部分柱体的弱电线槽,则应在这些轴的柱体吊顶线内150mm处预埋T形铁,其中4、7、10轴要引至公寓入口处的雨篷吊顶内,这样才能在下段配合时,预埋防盗对讲机的管路,如图9-92所示。
8)地上二~四层柱及顶板支模绑筋时的配合作业。二~四层基本同地下一层。此处在四层的顶板上应预埋五层平台上庭院柱灯的管路,见图9-70。从五层C轴、2轴、12轴的柱子室内标高0.3m处敷管至柱灯处,并上翻顶板300mm,做成倒π形,两个管口先用铁板盖好,电焊点焊牢固,管路敷设如图9-93所示。同时预埋立面投光灯的管路,如图9-70所示,采用倒π形管路从标注的庭院灯引出,堵好管口。作管路预埋时,还应预埋庭院柱灯和投光灯底座的地脚螺栓,其尺寸应按实物或说明书要求,通常采用M12~14的机制螺栓,并做好必要的保护。

图9-92 住宅入口处对讲机盘面管路示意图

图9-93 庭院灯管路示意图
按图9-66在四层顶板上预埋五层电动门的动力管路和平台上的接地线。其中接地线可用铺筋的主筋代替,但必须焊接可靠,顶板边缘处应上翻100mm;以便安装时应避雷网焊接。
地上五层配合时,先将0.30m处的庭院灯管口预埋一只接线盒,同时用短节套管延C轴引出柱外5mm,并敷管向上引至室外标高2.30m处,再下一个室外柱灯盒,做法如图9-93所示,然后由7轴柱灯盒引管至吊顶线内150m处,以便在吊顶安装段配合时引入2#强电竖井,其中短节套管是为连接室外柱灯预埋的。
9)地上五层顶板及柱支模绑筋时,有以下预埋作业:
① 0.80m时预埋柱上电话电传及电视插座,其中有的是由楼下引来的,有的则是从此层开始预埋,并敷管到楼上的0.80m处;注意值班室的电话管应引至四层,在浇柱上0.80m处预埋一节短管套管,如图9-71B、C点。
② 2.30m时预埋会议室、文艺厅柱灯,并敷管引到吊顶线以上0.30m处,并在该处装盒。
③ 吊顶线以上0.30m处,在有火灾手动报警钮和防盗保安手动报警钮处,凡通往电缆槽的途径中的柱上水平预埋短节套管;
④ 在吊顶线以上0.150m处,在有电缆槽经过的柱面上预埋T形铁件,如图9-72所示。
⑤ 屋顶预埋不吊顶房间照明的管路及灯盒,手动开关管的下口下翻至门口开门侧的室内地坪1.40m处,并距门口200mm。
⑥ 墙上装电话电传或电视插座处的垂直上方的梁上预埋短节套管,位置要精确,上下层要在同一垂线上,一直到八层。
⑦ 预埋吊顶内的火灾探测器的管与盒,并在电缆槽垂直上方的顶板上预埋一盒,以便把管路引入电缆槽;同时预埋淋浴、卫生间值班室的探测器的管与盒,并在3、6、11轴的楼梯间的梁上由顶板的盒内引下一悬空管至顶下0.80m处;值班室控制器的管路由梁引下至标高1.60m处悬空放置。
⑧ 墙上装扬声器音箱处(共6处)则应装管路由四层顶板穿梁上翻悬空引至标高0.8m处,另端引入弱电竖井;值班室的喇叭暂不预埋,应在吊顶时敷设,但火灾探测器的管路预埋则完全是为了安装上的方便。
⑨ 预埋六层电动门的动力管路,如图9-69所示。
⑩ 均压环的预埋。在结构圈梁的外侧四周预埋一根25mm×5mm的扁钢,与柱内竖直上的主钢筋焊接好,并每隔6m与楼板内的主筋焊接,形成环型水平均压环,也称避雷带。以后每隔三层预埋一道均压环,一直到楼顶。同时,在四周外墙的窗口处用镀锌扁钢与均压环垂直焊接,引至窗口处,一般为1.2m,作为金属窗口的接地点。
10)六~八层的配合土建同五层,但应在八层的地板上,将八层4轴墙上的电话插座(这里的盒将在砌筑框架维护墙时预埋),用倒π字型管连接起来,送至地板上,并在电缆槽上方预埋一盒或直接引下(虚线)如图9-94所示。
11)九层为第二设备层、除变电间、淋浴卫生间、加压泵站和电梯中转站外全部吊顶。
① 变电间预埋作业。
a.八层顶板应预埋高低压柜体槽钢底座的地脚螺栓,出地坪不大于100mm,并做好防护工作;变压器基础梁上预埋垫铁或导轨;
b.从柱子主筋上引入接地引线至变压器、高压柜、低压柜处,引出地坪不大于500mm;
c.柱灯、吊灯、火灾探测器、电话、广播、传感器等管盒及手动开关、照明闸箱和壁灯的管路及悬空管的预埋;

图9-94 电话盒与弱电线槽的连接
d.电缆槽T形铁件的预埋(包括整个九层),电缆槽在九层有两种,一种是强电电缆槽,如图9-73所示,是延E轴与F轴中线和3轴、4轴、7轴、10轴、G轴部分设置的,除G轴是延地面敷设外(在地面预埋螺栓)其余均延柱5.50m处敷设,因此只在途径中柱子标高5.50m处预埋T形铁。但要注意3#电梯竖井位置上,竖井移位电缆槽是延九层顶板下皮敷设的(它的作用一个是将三个强电竖井移位到十层及以上层的门庭处,这完全是为了十层及以上住宅的方便,因为十层及以上没有3#电梯,这个位置变成了强电竖井的位置,以至使住宅内增加了面积并便于共用;再一个作用是用以送3#电梯机房的动力电源),因此应在该处顶板上预埋T形铁件。另一种是弱电电缆槽,如图9-75所示,是延E轴和2轴及3轴、6轴、8轴、9轴、11轴、G轴C轴部分敷设的,因此在途径中柱中标高5.0m处预埋T形铁。这样,在强电和弱电竖井交叉的部位就有距离上的隔离,避免了凹字型的位移敷设,因此敷设T形铁件时要注意标高及强电弱电的区分。用同样的办法在九层板下将弱电竖井移位到十层值班室的地板下,如图9-79所示。
② 加压泵站的预埋作业。
a.八层顶板预埋控制柜地脚螺栓、接地引线;
b.吊灯及引至闸箱的悬空管,探测器及管路(管路另端应做成L形直接引入电缆槽,如图9-95所示)及引至楼梯间墙上探测器的悬空管;
c.电动葫芦电源管的预埋,如图9-73和图9-96所示。

图9-95 将悬空管引至线槽

图9-96 电葫芦电源管的预埋示意图
③ 吊顶房间顶板和柱子上的预埋基本同前,但中央调度室、计算机中心、电缆电视中心、电话总机房、广播机房应预埋各类屏柜的地脚栓。连同演播厅、以上各房间均有木质地板,设备及电气管路布置图中没有给出,地板内的线路应在装地板时从地板下通过,再度配合。
④ 电梯中转站的预埋作业。由图9-73~图9-75可知,九层的3#电梯竖井已分为两层,上层层高3.5m,下层层高2.5m,上层为3#电梯的机房,下层为第九层的门厅,我们称作为电梯中转站,因此在配合土建上要注意。一般有两个配合,一是第九层的厅门及井道,二是九层的机房。
a.井道的配合同前。
b.浇注中间地板时,应按机房平面布置图(见土建图样)预留电梯钢丝绳孔洞;在中间地板的板下预埋3#井道火灾探测器盒及管、并使该管上翻引至九层顶板下-0.3m处悬空;在板上预埋控制柜、UPS、选层器地脚螺栓(选层的位置应见设备图样),预埋控制柜到电动机的管路,出线口标高由设备定,预埋控制柜到选层器的管路等;同时在A点(见图9-70)预埋一短节套管,作为动力电源的通路。在机房设计标注的位置上将承重钢安装在高出楼板600mm的基础上,见图9-97。承重工字梁平面的水平度应小于0.5‰,相互的平行偏差不大于6mm。
同时在垂直于变配电间A点插座壁灯处预埋一短节套管,作为引上照明电源的引入点,并预埋过道灯及管悬空至地坪1.40m处,如图9-98、图9-75所示没有标出这个灯。
c.浇注上层顶板时,应预埋顶板灯盒及管路,其中手动开关和引到闸箱的管路应悬空下翻至中间层室内地坪1.40m,但到闸箱的管应和中间层地板上短节套管垂直,如图9-74和图9-98所示。
同时在机房按图9-75预埋火灾探测器的盒及管,并使该管和中间层引上的管在井道墙上的顶板下一0.3m处汇合,在该处预埋一接线盒,然后从该盒引管至门厅探测器处再引入线槽,如图9-99所示。

图9-97 将工字梁安装在楼板的基础上

图9-98 立体示意图(照明)

图9-99 立面示意图(防火警)
12)十~三十六层的配合土建基本同普通民用多层住宅相同,现将不同之处说明如下:
① 竖直向上向下的线路除电话、电视插座、防盗报警钮、电动门磁卡孔和对讲机插座外均在强电竖井或弱电竖井内敷设。
② 通向各户的强电电源则由强电竖井引出经楼板通至各户的第一个接线点,如图9-77所示,接线点为入口处手动开关盒的上方梁下的接线盒、门厅灯盒等。
③ 从十层每户各门厅及值班室电话插座、电视插座、防盗报警钮、电动门磁卡孔、对讲机插座处的上方梁上或板上预埋短节套管,往上向各层同一位置预埋短节套管,一直到三十六层,同时将十层的上述盒处用倒π字线管经十层地板引至十层弱电线槽,如图9-79所示。而火灾探测器的管路、火灾手动报警钮的管路则由本层引入顶板下的电缆线槽。
④ 按图9-79的位置于顶板下0.15m处预埋T形铁,作为电缆线槽支架的焊接点。
13)楼顶的配合有以下作业:
① 电梯机房同九层的电梯机房,但应在顶上预埋电源管,将电源按图9-80的位置沿墙皮引至1.65m处悬空;地板下预埋T形铁件,作为敷设线槽的吊点,如图9-92所示,其中电梯机房的弱电线槽是由板下三十六层顶部电缆槽引入的,这里要注意,应在控制柜端A点留洞,以便使电线槽上翻到柜内;电话处应从板下弱电竖井预埋管路,上引至墙上0.80m处悬空;由弱电竖井沿地板按图9-82的位置敷管,并上翻至标高1.40m处悬空,做为无线寻呼和电视信号电缆的引入管;沿地板由强电竖井敷管,并上翻至墙中心到1.40m处悬空,做为电动门管;按设备位置和土建基础图预埋无线寻呼发射塔和电视天线塔或卫星天线塔基础上的螺栓;按图9-81由强电竖井位置预埋航空障碍灯电源、引出屋顶0.80m,暂用铁板焊接将管口堵好,悬空放置,同时预埋障碍灯支架的地脚螺栓;按图9-81预埋机房照明闸箱电源管和屋顶节日灯电源管,分别悬空引至墙体1.45m和0.3m处,在节日灯的管口处有一线盒,准备向上引管;两管均由强电竖井位置引出;再由强电竖井沿屋顶预埋机房屋顶航空障碍灯的电源管,通常上翻至墙体0.30m处,这里将有一只接线盒。同样方法由3#机房强电竖井引出卫星电视天线的电源管。
电梯机房屋顶照明节日灯及火灾报警方法同前,引至闸箱和开关的管要悬空。其中火灾报警探测器的管路要经墙引入楼板下线槽,因此在B点(见图9-82)要预埋一短节套管。
② 防雷设施同普通民用住宅,并将无线寻呼塔架,卫星天线或共用天线架,电梯机房处用ϕ16mm圆钢或5×50扁钢引出屋顶500mm,另一端引至柱体主筋,并电焊焊接牢固可靠。这里要提醒注意,楼顶作业时应设置临时避雷针或避雷带,特别是在雷雨季节。
另外,屋顶配合时要将电缆竖井的位置测量准确,因为要从这里引出很多管路,图9-81中已用虚线画出了竖井的位置。所有引出竖井的管路,在竖井顶板下露出长度不超过200mm应一致。
此至,混凝土框架浇注时的配合土建已经结束,应组织三人检查小组逐点检查,有漏有误或质量不妥之处要详细记录层号、房号、单元号及内容,以便在下段配合时补救。这里需要指出的是,凡吊顶房间顶上若有单体重量大于3kg的灯具或使用ϕ25mm以上的钢管或线槽时,应在顶板预埋T形铁件,以便安装时使用。
4.砌筑框架维护墙时的配合土建施工
砌筑框架维护墙时的配合作业很多,主要有竖井内支架预埋、设备层部分动力管路及开关控制箱,解决悬空管的接管和短节套管的穿管,墙上支撑及T形铁件等,这样配合施工时应对照前段的预埋作业。
高层建筑的维护墙砌筑,往往是几层同时砌筑,这样在配合时应同时派出几个小组分别对应土建的施工进行配合。
(1)地下二层的配合作业项目(见图9-61~图9-63)
1)从电缆沟位置引管经地坪-0.3m至墙上1.40m处的照明开关箱,安装箱体,并敷管向上和梁下及引来的照明回路板下-0.2m处的短节管口用接线盒连接,完成每个照明回路的电源管敷设。如果是悬空引下的长管,应直接进箱,把多余部分锯掉;在短节管口和向上敷管的连接上也可采用套管连接,并用电焊焊严焊好。无论哪种连接,都应用煨弯器或气焊将翻下的短节管口矫正,使之垂直朝下。
同时在值班室和中央控制室墙体1.40m处预埋火灾区域报警控制器的箱体外壳,用上述方法,完成每个探测回路。
2)0.30m时预埋办公室、会议室、值班室的插座盒并敷管上引自2.00m壁灯处或上引自顶板下-0.20m的引下短管口处接好。
3)0.80m处预埋办公室、会议室、修理间墙上电话插座盒并敷管经A、B点短节套管穿过,引至上层同一标高处。
4)1.40m处预埋照明手动开关盒并敷管和由上引来的悬空管或短管口连接,完成每个控制回路。但在图9-62中③、⑦、⑧和⑨号照明闸箱旁标注的照明开关是直接由闸管引入的,因此应在闸箱侧面开孔(或用敲落孔),用短管连接好,这里要注意闸箱和开关的下皮标高是一致的。同时还要看到发电机房、变配电间的开关箱④、⑤电源的引入是由电缆沟敷管引入的,因此应在-0.30m处下管引至墙体1.40m处,图中这样做完全是为了讲述管路的敷设类型。图9-62中虚线敷管是将手动开关装设在门的入口处,在开关箱的旁侧也是可以的。
卫生间出口处的插座是电热烘手器的电源,标高和开关相同1.40m,用管墙体中连接。
图9-63墙体上标有手动火灾报警钮和防盗手动报警钮处,应预埋线盒,其中火灾钮和由上引来的悬空管(或短管口)连接,而防盗钮则敷管上引至3.80m处,并直接进入电缆线槽,其直接引入的长度因测量不准可偏长一点,安装线槽时再锯掉多余部分。
5)2.00m处预埋墙上壁灯盒,并敷管和由上引来的悬空管或短管口连接。
6)3.80m处应在有电缆桥架穿过的墙体上预留孔洞,一般应按桥架的实际截面积预留,如一时不知其实际尺寸则应留大一点,但无论怎样其标高必须一致。同时应注意桥架的拐弯和由于设备障碍的原因而升高时预孔洞的位置及尺寸。
7)完成楼梯间、安全通道的管与盒的预埋,具体做法可参见前面图9-86,管由梁上预埋好的短节套管中穿过,至上一层的盒处,一直做到顶层。
8)完成电缆竖井内电缆支架的预埋及预留孔,间距1m,入墙不小于150mm,支架应按敷设电缆、线槽的规格及数量预先开孔,支架的预埋如图9-100所示。支架的长度、每层的根数则由线槽及电缆的数量而定,预埋一直到顶层。同时应在每层预埋配电小间门框和地脚螺栓,门框应垂直,且不凸出墙面,如图9-100所示。
竖井砌筑到吊顶层后,则应在高于吊顶层标高100mm处预留孔洞,做为本层管路引出的出口;砌筑到室外地坪-800mm处,则在外侧预留孔洞,做为高压进户电缆及引至立体仓库等电源的进出口,和本节(三)、6)⑥预埋管交圈。
9)按照各类传感器或信号数据采集元件及其线槽布置的位置,在墙上预埋T形铁,预埋至标高3.80m处,准备将其引入电缆线槽。

图9-100 电缆竖井配电小间平面示意图
(2)地下一层的配合作业项目
因为从地下一层到地上九层几乎全部吊顶,所以在配合土建上将有所不同,这里要提请读者注意。
1)完成办公室、洽谈室、会议室、值班室电源插座盒、照明手动开关盒、烘手器盒开关控制箱外壳、壁灯盒及其管路的预埋,并将竖直方向的管路引到吊顶线内150mm处,在这里预埋或装设一接线盒,作为电源的引入处,如图9-101所示。卫生淋浴间同地下二层。
2)完成火灾区域报警器箱体外壳的预埋,并敷管引至吊顶线内150mm处装盒,按图9-62可在此处敷管三根,其中一根G20的管作为卫生间办公间的引入,其中两根G50的管做为营业大厅所有探测器的引入。这里的盒要根据现场制作一个大盒,这个大盒还要和主电缆槽衔接,因此盒的尺寸应和电缆槽一致,其一侧和电缆槽连接,另一侧为活动的插盖,可打开进行接线,如图9-102所示。

图9-101 示意图

图9-102 示意图
3)完成办公室和会议室电话、电传盒的预埋,并敷管引至上层同一标高处,直至四层。
4)完成值班室火灾手动报警钮和防盗手动报警钮盒管的预埋,并将管引至吊顶线内150mm处,做法同上。
地上二~四层的配合作业和地下一层基本相同,现把不同之处列出:
由图9-64可知,应在B点吊顶线之上100m处预埋一短节套管,以便室外广告电源管的穿出;
由图9-65可知在四层中①轴、Ⓐ轴、(13)轴及图中C点处的电话、电传、电视插座不再向上引管,而是在该层将竖直向上管路引到吊顶线内150mm即可,同时装盒,以便引入电缆槽。
(3)地上一层的配合作业项目
地上一层的配合作业项目包括地下一层的所有项目,此外还有以下几点:
1)完成门卫值班室、住宅入口处插座及照明开关盒的预埋,并将管路引入吊顶线内;
2)完成消防中心、保安中心插座、壁灯、照明开关的预埋,并将管路引入吊顶线内;
3)按图9-66,在1.40m处预埋橱窗电动卷帘控制箱外壳,并敷管两根,其中一根引至吊顶线内150mm处,做为电源,另一根穿墙引至电动卷帘电动机处,标高5.30m,但应和设备图样对应。
4)预埋门卫值班室电话盒,防盗手动盒并敷管引至吊顶线内150mm处,消防中心预埋防盗手动盒;预埋办公公寓入口处对讲机管路,做法示意图如图9-89所示。
(4)地上五~八层的配合作业项目(见图9-70~图9-72)
1)完成办公间、文艺厅、走廊、值班室墙上电源插座、手动照明开关、壁灯盒的预埋,并敷管上引至吊顶线内150mm处;完成卫生淋浴间手动照明开关,烘手器盒的预埋,并敷管与从板上引下的悬空管或短节管口连接。0.30m时用管穿过室外柱灯下的接线盒并穿C轴柱上的短节套管,完成柱灯的连接。
2)火灾报警系统和手动防盗报警系统同地上一~四层。
3)五层0.80m时预埋室外平台低音扬声器箱的外壳,其管路已在地板中预好。应先将管口处的堵板取掉,把管口用锉修整好,再引入箱内。室外扬声器箱仅五层设置。
4)从五层开始预埋墙体上0.80m处A点、B点的电话、电传、电视插座盒,如图9-71所示,同时敷管引至上层,直到九层,其中A1点引至八层即可。同时在B点和C点间用一根G15的管穿过柱上套管(前段预埋),将下引管引至C点,和由四层引来的管用线盒连接好。
(5)地上九层的配合作业项目
1)完成演播厅、计算机中心、中央调度室、电视中心机房、电话总机房、广播机房、走廊、值班室电源插座、照明开关、照明闸箱、壁灯盒的预埋,并敷管上引至吊顶线内150mm处;完成变配电间、加压泵站、卫生淋浴间照明开关、闸箱、干手器盒的预埋,并敷管上引至顶板下和由板上引下的短节管口连接;3#电梯机房的照明及弱电同前述。
2)火灾报警系统,防盗报警系统同一~四层。
3)完成墙上电话电传盒的预埋,并敷管引至吊顶线内150mm处。
(6)十~三十六层配合作业项目
1)完成每户各个房间和值班室电源插座、照明开关、壁灯盒的预埋,并敷管上引和由板下引来的短节管口用线盒或套管连接好;
2)按图9-79标注的位置及标高预埋电话、电视、防盗钮、电动门磁卡孔、对讲机插座盒,并敷管上引至上层同一位置及标高处,一直到三十六层,梁上或顶板上已预埋短节套管。
3)值班室1.40m处预埋火灾报警装置的外壳,并敷管水平引入弱电竖井。
(7)楼顶的配合作业项目
1)完成电梯机房照明开关、照明控制箱的预埋及管路的上下连接;
2)完成电话插座盒的预埋;完成电动门按钮盒的预埋;
3)在图9-82中B点处穿过预埋好短节套管预埋一根管,将板下线槽和梁下的短节管口连接起来。
至此,第二阶段的配合工作已结束,同样应派人检查有无贻误及质量不妥之处,及时修补,并认真总结前两段的配合工作。
5.地面抹灰时的配合作业
地面抹灰时配合作业主要有两个设备层、地上一层、楼顶机房和第十层。地面抹灰土建上可能多层同时作业,要及时了解土建的进度,以免贻误。
1)第一设备层的配合作业项目主要有电缆沟及支架预埋、开关控制柜地脚螺栓、动力管路、接地引线、变压器基础及其他埋地管路等,做法参见本章第一节和第二节。
2)第二设备层的配合作业项目主要开关控制柜地脚螺栓、高压电缆槽地脚螺栓,这些已在浇注楼板时完成,抹灰时要检查和纠正;地面动力管路(G32及以上)的通常是在安装阶段进行明设,沿地面部分用槽钢或木槽保护或采用线槽沿地面明设并用木槽保护。
3)地上一层主要是消防中心和保安中心柜体地脚螺栓。因一层有G50的管路,通常应加厚一层地面的抹灰厚度,要和土建协商解决。
4)楼顶机房有柜体的地脚螺栓,管路如明设同第二设备设层。
5)第十层因地面管路较多且有G25管,因此要加厚地面抹灰厚度。
6.内装修及吊顶施工时的配合土建
1)内装修及吊顶施工的配合土建是和安装一并进行的,有关接线方法、电气性能的测试、电缆敷设或穿线方法、安装工艺等电气技术请读者参见新版《电气工程安装及调试技术手册》第二部分各章节,这里只讲述和土建配合的一些内容。
① 墙壁装饰物上安装的电气元件(如灯具、开关、按钮、探测器、插座、传感器、音箱或喇叭、开关控制器或箱、烘手器、线槽、路标灯、钟表、指示器等),其在装饰物(板)表面上的开孔必须按照开孔图纸标注的尺寸或实物开孔。开孔必须方正、横平竖直,圆孔其圆心应对准中心。开孔位置必须和墙壁上预埋好的接线盒对正,以便导线或电缆的引出,同时应将元件放于接线盒的那部分放入孔内,以孔代盒,然后直接用螺钉将元件固定在装饰物上或装饰板上,同样要求元件固定后要方正,横平竖直或圆心对准开孔中心。
装饰物上电气元件的安装是和土建装修同时进行的,必须向土建人员讲明开孔的位置和尺寸,必要时应自己动手或示范。
② 吊顶安装时的配合作业一般有两种内容,一是将管路、线槽与盒装设在吊顶之内并加以固定,再是在吊顶装饰板上开孔,并将电气元件(主要有灯具、探测器、传感器、喇叭或音箱、摄像头等)安装在吊顶的装饰板上。
吊顶上安装电气元件除了电气要求之外,主要要求是具有美观、大方等艺术性,这里既有和土建配合问题,又有电气技术人员的技术素质及审美观念问题,这也是我们在电气安装工程中强调的问题。
a.吊顶之前由土建技术人员和电气技术人员一起按吊顶的面积及电气元件在吊顶上的安装尺寸,用比例详细画出每个元件在吊顶上的安装位置,并按此尺寸在吊顶上开孔。开孔的面积尽量用实物比示,避免差错。同类元件在吊顶上的位置应一致,组成的图形应为规则的几何图形。
b.ϕ25mm及以下管路或线槽则应根据元件的排列敷设在吊顶的龙骨上或吊筋上,并专用卡子或螺钉固定,距灯具最近处应设一线盒,盒与管电焊点牢,管路尽量不交叉。回路较多的可用线槽敷设,从线槽的引出可用金属软管,大于ϕ25mm的管和槽应单独埋设吊筋,不与吊顶共用。所有敷设导线的使用材料(管、盒)不得使用可燃性材料,如图9-103、图9-104所示。
c.应根据管路的多少、灯具元件的重量向土建技术人员提供吊顶内的总重量和密度最大处的每平方米的负载,经土建技术人员核算可行后,才能安装。

图9-103 吊顶内钢管敷设方法(一)

图9-104 吊顶内钢管敷设方法(二)
d.土建人员先安装龙骨,并在安装元件处和引下线槽处,按图留出位置。
e.土建人员安装一段龙骨,即可在龙骨内敷设管盒或线槽。为了后段安装上的方便和等待土建的进度,可将导线穿入管内或线槽内,其具体方法参见新版《电气工程安装及调试技术手册》第二部分有关章节。
f.土建人员安装吊顶装饰板时(也叫做拼板)即可进行元件的安装,条件可能时最好将线接好,其具体方法参见新版《电气工程安装及调试技术手册》第二部分有关章节。有引下线槽的部位,其吊顶装饰板的开孔应等于线槽的截面积。
g.引入或引出电缆竖井的管或槽应经预留的孔洞,入井的长度不大于100mm,本层的管槽敷设完后,应用灰浆和砖将孔洞堵好。
h.同类元件在吊顶上的排列,应整齐、纵横成线,给人一种美感。
i.吊顶内管路的敷设要注意和热力管道的距离,并应符合表5-50的规定。
j.吊顶内安装时要和通风、管道、空调等专业的人员配合好,搞好协作,互相理解,互相支援。
③ 土建工程进行内装修及吊顶时,应尽可能地利用土建的脚手架、卷扬机、升降机等运输装置,将电气设备、电气材料、施工机具运到有关层次的房间,并做好必要安全防护措施,这对后段的安装进度、节约资金、降低工程的成本都是有很大意义的。
至此,配合土建施工已全部结束,还有两件工作必须及时做好。一是应根据图样按层次、房号一一检查有无漏埋或错埋的地方,如有应立即进行处理。这个工作应在内装修前进行,否则将影响装修的进度。二是在施工过程或检查的过程中,凡是因为配合作业而损坏了的土建设施或建筑物的某个部分,无论大小都应及时修补,或者与土建人员协商妥善解决,做好建筑和安装的成品保护,同样对后段的安装会有很深远的影响和意义。
前三节中已经详细地讲述了配合土建的施工方法及注意事项,这些是按国家的标准规范进行的。但是目前建筑安装市场上,流行了一种简易的配合土建的方法,虽未被国家有关部门明确认可,但已被许多安装企业采用,这里只作简单介绍。
1)混凝土现浇板。在浇注时按前述方法将管盒下好,翻下-0.3m处于墙上,墙上的管盒不预埋。土建砌筑工程完毕后,在墙上开槽,再将管,盒安装上去,开槽深度一般不超过50mm;需要穿过楼板的再在楼板上用钻孔机钻孔,将管路引上或引下;混凝土柱体上的管路按前述方法预埋;其他同前述方法。
2)预制板屋顶,在土建砌筑工程全部完毕后,则在墙上开槽,板上钻孔,进行管路的敷设。
上述方法,一般使用开槽机和钻孔机进行,但也有用手工的;这种施工方法,只适用于一般的砖混结构中部分不重要的、层数在六层及以下的民用建筑中,凡有破坏建筑结构的任何一点都不会被建设单位接受的。
3)柱体或墙上的预埋。有些厅、室将柱子或墙进行装潢,如是有吊顶,这样管路则可以不预埋在柱体或墙体内,可将其敷设在装潢板后面,但必须穿钢管敷设,不得将护套线,塑料线直接敷在板后。这种方法,对防火要求高的场所是不能采用的,只用于一般场所,但管路及盒应涂防火漆。
管路的预埋,不能只考虑省工,必须按图样要求进行,不但要考虑美观、实用、持久,还要考虑防火、方便换线以及运行方面的各种因素,保证电气设备及系统的正常运行。
这里将电气竖井内桥架安装、线槽安装以及与配电箱连接、穿墙防火等标准图样给出,供读者在配合土建施工中参考,如图9-105~图9-118所示。
(三)宾馆饭店娱乐场所的配合土建
宾馆饭店娱乐场所配合土建与前述基本相同,应遵守本章前述的相关规定,但有其特点和特殊性。一般的宾馆饭店娱乐场所,在内装修上比较讲究,不同于一般的建筑,因此,对其内装修配合土建就有了更高的要求。除了按第四节“二”的要求外必须做到以下几点:
1)装修层内或吊顶层内必须布置管路,严禁将导线直径敷压装修层内或吊顶层内。
2)电气元件的安装位置应由建设单位提供详细图纸或说明,增加电气元件时应有图样。在装修层外开孔时应与原配合土建时预埋的箱、盒位置尽力越近越好。其开孔面积能满足安装越小越好。相同元件的开孔标高应一致。
3)增加电气元件时,原设计的开关、导线、箱柜回路应满足增加负荷的要求。
4)装修层内管路直径应比正常条件下的管径大两个规格(如Dg20的管应改为Dg32),以满足散热的要求。
5)装修层内的管路应采用绝缘阻燃管,管路设置应有固定装置,管路应远离热源1m以外,必须靠近时应有隔热措施。
6)装修层内或吊顶层内布置管路完毕后装修板安装前必须由监理工程师验收合格,才能进行装修板的安装。
7)作业时必须与兄弟单位、其他工种、建设单位、设计单位、监理单位搞好协作,避免冲突或发生意外。
(四)特殊环境的配合土建
特殊环境一般条件下均采用明装管线,因此在配合土建时与前述内容不大相同,其主要工作是在建筑物上留眼留洞、预埋铁件、预埋套管等。
特殊环境配合土建应做到以下几点:
1)熟悉图样,掌握管路走向,元件安装位置、标高,同时了解土建图样,掌握其土建结构。
2)掌握土建工程进度,超前预埋或留洞。
3)墙、柱、梁为混凝土结构时,应在管路元件安装位置预埋铁件,管路穿越楼板或墙壁、柱处应预埋大一个规格的套管,套管应上下出其100mm,并与其内钢筋焊接焊牢。柱上套管直径一般不大于50mm,否则应与设计沟通。
4)主体为砖混结构时,砖墙、砖柱上应在管路元件安装位置预埋质地坚硬的梯形木砖,其厚度应大于砖厚,预埋时大头在里,小头在外,木砖防腐处理,预埋处混凝土灰应加大强度,并用镀锌铁线将其与周围其他砖缠结紧固。管路穿越墙壁时应预留一个孔洞,截面不大于10cm×10cm,穿越砖柱时不大于5cm×5cm。
5)预埋件,木砖的位置标高应在原图标注并有记录。预埋件、木砖的间距见表9-7。
表9-7 预埋件,木砖最大间距

6)砖混结构管路直径大于50mm时应预埋铁件。
7)与土建搞好协作,避免冲突或发生意外。
电气工程中,建筑物、构筑物中1kV及以下动力、照明用钢管、塑料管敷设其质量标准及检验方法见表9-8。
表9-8 管路敷设


图9-105 电气竖井内电缆桥架的垂直安装(一)

图9-106 电气竖井内电缆桥架的垂直安装(二)

图9-107 电气竖井内封闭式母线与配备箱的安装

图9-108 电气竖井内金属线槽与配电箱的安装

图9-109 电气竖井内钢管与配电箱的安装

图9-110 金属线槽穿墙防火安装方法

图9-111 电缆桥架穿墙防火安装方法(一)

图9-112 电缆桥架穿墙防火安装方法(二)

图9-113 金属线槽常用安装方法

图9-114 金属线槽安装示意图

图9-115 电缆桥架引至设备的常用引出装置示意图

图9-116 电缆桥架支架、托臂安装方法(一)

图9-117 电缆桥架支架、托臂安装方法(二)

图9-1l8 基础接地平面图