二
、单层变配电间的配合土建预埋管路
变配电间的配合土建主要依据是设备平面布置图、照明平面图、照明系统图、电缆清册和熟悉图样时编制的标高表。下面从最低布设管路的标高开始,按标高(实际是土建的进度)逐步说明配合土建时,各类管路和箱、盒的安装方法及工艺要求。配电室平面布置和照明平面图9-1。
(一)电缆引入管的敷设
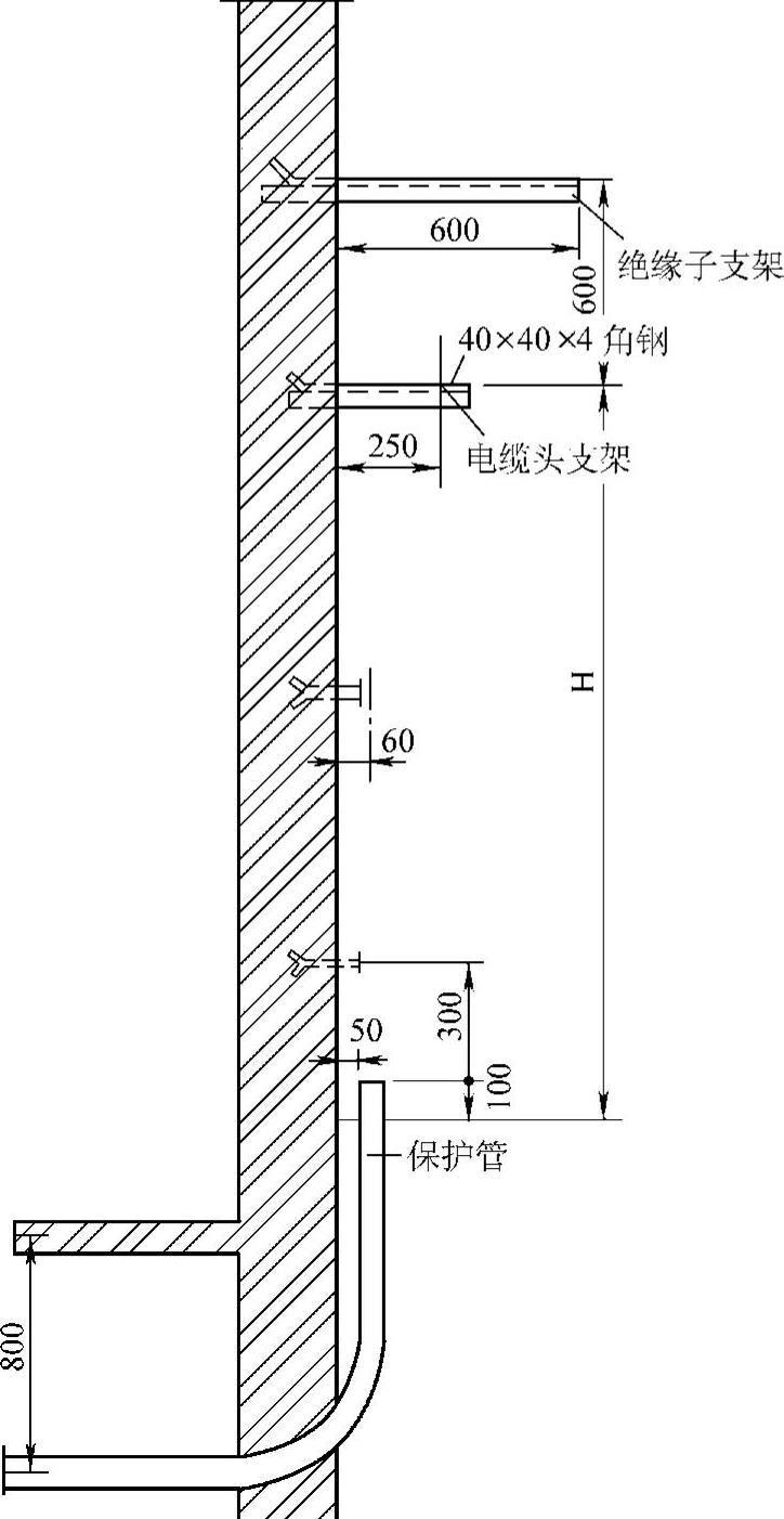
1)电缆引入管敷设的标高一般在平面图所标注的进户位置的-0.8m处,先弄清引入电缆的根数和规格,并从加工好的电缆管中按编号取来电缆引入管。通常电缆保护管的内径不应小于电缆外径的2倍,电缆引入管的长度应为墙厚+建筑物散水宽+300mm。现场制作必须按新版《电气工程安装及调试技术手册》第八章预制加工中金属管路的预加工的要求进行,主要是调直、除锈和防腐处理。

图9-1 变电室平面布置和照明平面图
a)平面布置图 b)照明平面图
2)下管工艺方法及要求。基础或墙砌到标高-0.8m时,在已确定的电源进户管的位置上,由室外垂直基础或墙划一条直线,并按线刨一条深0.8m的沟,沟宽由管的根数而定,长度为散水宽+500mm;然后将电缆引入管置于沟内,多根时应并排放置,墙内应出墙100mm,且偏高一点,坡度为2%;引入管落在基础或墙的部分要用防水砂浆灌满,使其严实。墙外部分先用水泥袋、塑料布堵好管口,然后填土并夯实。室内的管口也应堵好,以免异物进入。电缆引入管的敷设如图9-2、图9-3所示。

图9-2 电缆引入管的敷设方式(剖面图)
a)一式剖面 b)二式剖面 c)三式剖面

图9-3 电缆引入管的敷设平面图
(二)电缆(导线)引出管的敷设
电缆(导线)引出管的敷设标高、方法、要求与引入管相同,但有几点不同:
1)引出管的位置和引入管的位置一般不同,见图9-1。
如果高压电缆引入后,直接到墙上高压负荷开关的上闸口,其电缆引入管应伸出地平至少100mm,如图9-4所示,这样电缆引入管应有一个90°的直角弯。因此要求管口距离墙不应大于50mm,位置要准确。
2)引出管的根数多,一个回路一根管,大型配电中心(室、间)引出管有时不在同一个位置,而是从两个或三个位置引出,这是由平面图决定的。
(三)接地引线的敷设
接地引线的敷设是和引入(出)管同时进行的,标高、位置一致,方法也基本相同,下面说明一下不同点。
1)出墙长度不同,一般墙内预留为1m,墙外预留3~5m。墙外预留长度应根据接地系统平面图,看其接地极位置距基础或墙的距离是3m还是5m,预留时应再附加100~200mm,留出焊接的长度。
2)接地引线位置和组数可能和引出(入)管的位置和组数相同,也可能不同。相同时可一并敷设,不同时则应按上述方法测位—刨沟—敷设—灌浆—填土夯实进行。
(四)照明开关箱和维修开关箱电源管的敷设

图9-4 电缆引入管的敷设

图9-5 从电缆沟引至照明闸箱的管路
基础或墙砌到标高-0.3m时,从低压电缆沟到照明开关箱②和维修闸箱①的位置之间各预埋一根ϕ15的钢管。(通至开关箱的管因是由电缆沟垂直向上引入,图中用符号
表示)。途径地面部分先用土埋好,墙内敷设部分先用木杆三角架支起,管口用塑料布或牛皮纸包扎严实,以免异物入内,发生堵塞。埋入墙或混凝土内的管子,距墙表面的净距离不得小于15mm。照明开关箱电源管的敷设见示意图9-5。其中出电缆沟长度一般为20mm,进箱一般为10mm;水平距离的长度是用钢卷尺按现场实际距离测量出来的;垂直部分的高度是按闸箱标高(1.4m或1.2m)决定的;灯叉弯的有无及角度的大小是由箱体结构和墙的厚度决定的,主要看闸箱底部敲落孔的位置及距后底的距离,箱体的结构和外形如图9-6所示。必须把箱体在墙上的位置确定好,才能下管。管的总长度为水平长度+垂直高度+进箱长度+进电缆沟长度+灯叉弯和直角弯的弯曲余量。进入电缆沟的管口应先做成喇叭口,然后用锉去除毛刺,再焊接一条ϕ6mm的螺钉,作为接地用。进入箱体的管口应用锉清除毛刺。

图9-6 箱体结构外形及在墙中预埋外壳的位置
开关箱经地面通往室内外别处的负荷管,在下电源管的同时,也要将其预埋好,入墙部分的尺寸、角度应力求一致,和电源管并列成一排,其间距为敲落孔的孔距,不得交叉,然后在两端用ϕ6mm的钢筋棍电焊连接好。按图9-1中设计布置可知,有两根管是从电源箱经地面引出,其中一根是2路和3路壁灯公共使用的电源管,(通往S2的管)另一根是4路壁灯的电源管(通往S4的管);一端进箱,另一端进手动开关盒,标高1.20m或1.40m,按设计标注确定。管煨制好的形式见示意图9-7,埋地、封口、三角架支起,方法同前。
在-0.3m处还有六根管需预埋,一根是从电缆沟内到模拟信号盘的信号管2×ϕ50mm,做法和电缆沟到开关箱的电源管的做法相同。另两根是手动照明开关S1下面的分线盒到S5和S5到闸箱的电源管,做法如图9-7所示。再一根是1回路4~5号壁灯的负荷管,还有一根是从电缆沟到电动卷帘网的负荷管,标高至5.00m处的电动机(见图9-1),做法同上,只是标高不同,要丈量管的总长度,应该总长度≥2×5mm+2×300mm+安装高度及弯曲裕量+水平实测距离,如图9-7所示。最后一根管是休息室电话插座TP1到值班室TP2的电话管,方法同上。
埋地管因为是在没有砌墙时敷设的,除了上述的要求以外,埋地部分必须先夯实,竖直部分的位置必须在墙基的中心附近,尽量避免歪斜。这里顺便提一下,如果是明装,沿墙敷设这几根出地坪的立管,必须使其尺寸、角度一致,齐刷刷地排成一排,并且和地面垂直。煨弯工艺见下面的第五条。

图9-7 煨制好的管的形式示意图
a)管口标高不一致 b)管口标高一致
在-0.3m标高处,直接控制设备应对应其出线的位置在墙上留出孔洞,其截面积一般为200mm×200mm,如果是电缆沟,则按土建图样预留孔洞。
(五)插座盒及管路的预埋
为了方便,一般在配电间、变电室、修理间、休息室、值班室等处都装有低压插座,插座的标高一般设在0.3m处。
1.插座盒的安装
当砖墙砌到0.3m时,按照明平面图中插座设置的位置,将插座盒置于墙上,同时应将盒子通往左侧、右侧及上方向管下好;通往左侧、右侧管子的下料尺寸,如图9-8b所示,是由相邻盒子的边距+进盒5mm+灯叉弯折角的余量决定的;通往上方的管子的下料尺寸,如图9-8b所示,是由上方盒子和该盒的上下边距+进盒5mm+灯叉弯折弯的余量决定的;盒在墙上的位置应使敞口侧凸出墙面10mm,最大不超过15mm,如图9-8a所示。具体的出墙距离应通过土建人员,或从土建图样上了解墙壁抹灰厚度,另外还和墙的不平度有关。盒应垂直放置,不得歪斜。管进盒的长度不得大于5mm,并用电焊点焊牢固。管和盒的安装示意图如图9-8所示。管盒放置好后,竖管用三角木架支持固定好,暗盒和水平管即时砌入墙内,灰浆应饱满牢固。

图9-8 盒在墙中的位置及管路布置示意图
图9-1中有三路插座,一路是休息室和值班室的对应插座,其在墙上安装平面示意图如图9-9所示。只有其中一只有竖直管,到1.8m或2.0m的壁灯处(由设计标注定);另一路是配电间A轴上的两个插座、其电源是从壁灯下0.30m标高处的分线盒取得的,如图9-10所示。再一路是B轴上的三个插座(其中两个为对应安装),形式和A轴相同,电源也是从壁灯下0.30m标高处的接线盒取得的,但是这个盒是为插座单设的,而A轴的分线盒是因为土建结构的关系而为壁灯设置的,这就是为什么要掌握土建结构的原因。这里还要注意⑧轴高压变电室有一插座,预埋盒后竖管通至1.8m壁灯处,可以见到,A轴壁灯的电源管,因窗户口的关系,一般应用图9-10的方法,但这样应在每一壁灯竖管下装一分线盒,分线盒要求同插座盒,管路同前。这样每只分线盒都有一根竖直向上的管,其中1#、5#盒通至标高1.20m或1.40m开关盒处,另外三个盒通至标高1.80m或2.00m壁灯处。同时该分线盒可作为插座盒。

图9-9 对应插座示意图
a)立面 b)平面

图9-10 窗口下分线盒与壁灯盒的位置示意图
2.钢管的连接
1)暗设钢管的连接一般采用套管连接,套管连接就是在连接处套上内径为被连接管外径钢管短节,长度为被连接管外径的1.5~3倍,小管取1.5,大管取3。连接管的对口处应在套管的中心位置,连接管的管口应齐平,并用锉去掉毛刺,管子的割断必须用锯或切管机,管口用圆锉锉平,严禁用气割。将管和套管放在平整的地方,最好是平台,插好找正后用电焊将套管两端管口和连接管管壁沿外圆周焊好焊牢,如图9-11所示。

图9-11 钢管的套管连接示意图
2)钢管明设,电线管明设应采用丝扣连接 丝扣连接就将被连接管的管口套上丝扣,然后再拧入管箍的内螺纹中。套螺纹的工具有电动套螺纹机和手工套螺纹器(俗称带丝),每个套螺纹机或套螺纹器都有三副板牙,以适合套三种不同规格的管子。先将板牙按管子的规格选好,上在套螺纹器上,然后把管子固定在有压力钳的案子上,同时用锉把管口外圆锉成稍有锥形。调整套螺纹器上的活动度盘,使牙与牙之间有适合管子需要的距离,一般应小于管外径,然后用固定螺钉固定好。双手握住套丝器的两只手柄将其套在管子上,并用调节手柄使套螺纹器后面的三个支持脚贴紧管子,保证丝扣不乱。这时用双手推套螺纹器(与管子垂直)并顺时针转动,如图9-12所示,就可在管子上套出螺纹来。套完后,把套螺纹器取下,并再次调整板牙间距,使之小于第一次的间距一点,再套一次。一般2~3次即可套出合乎要求的螺纹。套螺纹时应充分注油,一般使用菜籽油。套螺纹的长度应大于1/2管接头的长度。

图9-12 手工套螺纹操作示意图
电动套螺纹机套螺纹与手工套螺纹基本相同,主要区别是电动机械代替了人力,提高了效率,可参照手工套螺纹和电动切管机的操作方法即可。
套好丝后用相应规格的管接头(管箍、有内螺纹)连接,连接时应用管钳子将管和接头拧紧,管插入接前应在螺纹处包扎生料带,保证连接的严密性。连接拧紧后应焊接跨接线,如图9-13所示。
管路的连接一般不得用焊接法连接,以免焊碴将导线的绝缘滑伤。
3.金属管路的弯曲处理

图9-13 钢管的套螺纹连接
(1)弯曲弧长的计算 如图9-14所示。弯曲半径R按管外径ϕ的6倍计算,则有
R=6ϕ弧长
有
图中直角弯曲时管子的总长度L′为
L′=AC+BD+6ϕ+6ϕ=AC+BD+12ϕ
圆弧弯曲后管子的实际总长度L为
由计算可知,圆弧弯曲的管子长度比直角弯曲的管子长度少2ϕ,按L长度下料,并在A、B两点做好标记。

图9-14 钢管弯曲弧长的计算
但是在实际安装过程中,管子的下料尺寸一般不按计算尺寸下料;而是选择比计算尺寸长的整料,把一端的尺寸卡好,并标出煨弯的标记,如在管上量出AC的长度,并把A点和B点标出,AB的长度为10ϕ;然后从A点开始煨弯,弯曲半径按6ϕ,直至煨到B点,重新丈量尺寸后,把BD侧多余部分锯掉。这样就保证了管的实际安装尺寸。有时为了准确,在没有锯掉多余部分前,先将其拿到安装的实际位置比试,然后按实际尺寸再锯掉多余部分。锯掉部分的管子,如果不能作为再次煨弯的管子,一般和其他管子接起来再用。由此可见,计算长度可作为选料的标准,而不做为下料的尺寸。
(2)用弯管器弯管 如图9-15所示。把弯曲部分放入弯管器的口内,A点在前,B点在后,B点为支点,用脚踩住管子,手往下扳动弯管器的手柄,缓慢使管子弯曲,并将支点逐点向A方向移,边移边扳动手柄,用力不得过猛,避免扳脱,直到移到A点完成90°圆弧的弯曲。煨好后可用角尺检查角度是否准确,或在地面上划出两条垂线,并把管放在上面检查,过煨和欠煨应进行处理,偏差一般不应大于1/5管外径。

图9-15 弯管器的使用方法
用弯管器弯管,管子的外径一般不应超过25mm,最大不超过32mm;弯管器的规格通常也有大、中、小三种规格。煨弯管径稍大的管子时,可两人扳动手柄,一人在前扳起AC部,三人配合默契、步调一致,通常可把管子煨得很好。手工弯管器体积小、重量轻,便于携带,且可在高空作业,是配管时必备而不可少的工具。
(3)机械弯管 机械弯管可分为手动弯管机和电动弯管机,如图9-16所示。使用时,按照管子的规格,选择合适的轮子,并将管子放在两个轮子之间,将B点放在定轮和动轮的起始点上,扳动手柄或开动电机,使动轮转动,直到A点形成90°。如果煨制大于90°的灯叉弯,应随时掌握角度,不要过煨。
用弯管机弯管,最大可煨制直径是100mm的管子。弯管机一般设在比较固定的地方,是现场制作的必备工具。
(4)火煨法弯管 当管径超过100mm时,往往不能进行冷煨,在现场常采用火煨法,具体方法见新版《电气工程安装及调试技术手册》第八章预制加工第一节。
(5)焊接弯头法 一般大于80mm直径的管的弯曲可以采用焊接弯头法。弯头可用电动煨弯机或中频煨弯机加工好的直角弯头,或从市场购置弯头,但其弯曲半径必须符合本章的规定,并且两端至少有100mm长的直管段。

图9-16 弯管机示意图 a)手动 b)电动
使用前先丈量好尺寸,如图9-17所示。其中AC段、BD段应用锯将料下好,将其按图在焊接平台上或是平整的地上摆成L形或π形;其管口必需平整无毛刺,否则应进行修整,使其对好后严密且成90°,应用方尺测量,然后再进行焊接。
焊接者必须是经考试合格焊工,具有单面焊单面成型且管内不透瘤的技术,必要时可割开抽查,否则管内有瘤将会滑伤导线或电缆。电焊时,先点焊好,测其角度合适后再正式施焊,应将整个圆周焊满焊严。然后好应用钢刷扫管,清除余瘤残渣。

图9-17 焊接弯头钢管的连接
有时也采用套管连接法焊接弯头,这样可准确无误地保证管内无焊瘤,具体方法见本节钢管的连接。
弯头焊接法给高空作业配管带来了很大方便。
(六)电话插座盒的预埋
当墙砌到0.8m时,按照图中所标的位置,在值班室和休息室预埋电话插座盒,方法同前。所不同的是TP1上翻竖直的管应送到墙外,送出标高3.0m,并做好防水弯和喇叭口,如图9-18所示,其中埋地管已预埋好。

图9-18 电话插座及管路的预埋
(七)负荷开关操作手柄构架的预埋
800kVA以下的小型变电室,高压常采用墙上负荷开关控制,低压总开关常采用墙上空气开关控制,这样在工程造价上将有很大的节约。采用这种方式时,其操作手柄的标高为1.0m。
当砖墙砌到1.0m时,按照设备平面布置图中的位置,将操作手柄的角钢构架鱼尾部分置于墙上,入墙部分的净距离不得小于150mm,左右要水平,上下要垂直,在瓦工的配合下,用砖和500#水泥砂浆浇注灌严,如图9-19所示。图9-1因采用开关柜控制变压器,故没有操作手柄构架的预埋。
(八)照明手动开关盒的预埋
照明手动开关包括扳把开关、按键开关、翘板式开关等,一般设在1.20m或1.40m的标高处。当墙砌到图中标注的标高时,按照照明平面图中的开关位置(常设在开门侧),将开关盒及丈量好尺寸并煨制好的管置于墙内,一般为ϕ15的管。配管时,要注意开关和被控灯的位置和顺序必须对应,在同一建筑物中所有的开关盒标高必须一致。
开关盒通往屋顶的管,应通至屋顶下0.3m即可,这个尺寸要卡好,并且所有通往屋顶的管的管口其标高应一致,因为这里有一只接线盒。这里要说明一点,如果采用软质塑料管配管,在屋顶下0.3m处则不要这只接线盒,可把管通至屋顶上的总长度测量精确即可。
照明开关盒的安装,涉及竖直向上的管和由闸箱经埋地引来的电源管,是连接电源和灯具的枢纽。

图9-19 角钢构架预埋示意图
图9-1中共有翘板式开关12只,其中S1、S2、S4、S5的电源管已从开关箱经埋地送到标注的标高(1.20m或1.40m)且灯叉弯都已做好,即可将盒套入管口,出墙距离同插座盒,找平找正,用电焊点焊好即可。然后配竖直向上的管,其中S1、S2、S4向上的管都是通至壁灯盒标高处(1.80~2.00m);而S5的竖直向上管则是通至屋顶下-0.3m处,作为屋顶荧光灯的电源。S3和S2对称安装,可采用图9-9的形式,然后将S3向上的管引至壁灯盒的标高处。S6S7和S8S9是双联手动翘板式开关,只有向上的竖管,通至屋顶下-0.3m处,按上述要求配好即可。S10~12有竖直向上的管,应将管路引至雨篷标高下-0.2m处。其中S11上有壁灯盒,壁灯盒预埋好后,再引至雨篷标高下-0.2m处。
竖直向上的管必须用三角木架支好,并随时观察其在墙中的位置,如有偏移应随时纠正,避免墙砌高后返工处理,这里面有一个和土建瓦工配合、协作的过程,必须处理好。
(九)照明开关箱和维修开关箱箱体的预埋
箱体下皮距地的高度一般为1.20m或1.40m,当墙砌到图中标注的高度时,这时闸箱的电源管、从闸箱通往各处1.20m或1.40m标高以下的管及其他1.20m或1.40m标高以下的墙上的管都已砌在墙内。将箱体的外壳(不包括门)下底的敲落孔的堵板取掉和电源管或排管根数相同的个数,并根据箱体在图中标注的位置,置于管口上方,并将管口插入敲落孔内。这时要注意箱体的中线对应的敲落孔应和排管中间的那根对应。如果配管和箱体配合的好,这时箱体前侧应凸出墙面15~20mm,这就需要在下管前应测量敲落孔的位置和了解土建抹灰厚度,以便决定竖管在墙中的位置和尺寸;如果配合不好,就得现场重新开孔,会使箱体变形损伤,或者给施工带来不便。现场开孔必须按“预制加工”中的方法,严禁用气割。箱体和建筑物接触的部分,应刷防腐漆两道,并随着墙体的增高,按标注的高度把通往左右他处的管下好。图9-1中无通往左右的管路。进入箱的管口应用电焊和箱体用电焊点焊好,并用包扎物将所有管口包扎严实。箱体在墙上的安装见示意图9-6。当砖砌至照明开关箱上顶时,应敷一根管,通至屋顶下-0.3m处,做为值班室的电源。
(十)壁灯盒的预埋
墙砌到标高1.80~2.00m时(由设计而定),按平面图中壁灯的位置将壁灯盒及管预埋好,要求和开关盒相同。
图9-1中,1回路壁灯1-1#~1-5#的管已经下好,将壁灯盒插入管口,找正找平电焊点焊即可;同时在图中1-6#灯的位置装一只壁灯盒,1-6#和1-5#盒都有一根竖直向上管,其高度由门口高度决定,高于门口过梁之上便可,当砖砌到这个高度时,各装一只分线盒,并用管连接起来,跨过门口(见图9-20)。同时从分线盒预埋一管到雨篷灯盒处。
2~4路在壁灯处装盒,然后按图将盒连接起来即可,其中2-1#、3-1#、4-1#壁灯盒应插入由下引来的竖直管口上,有插座盒处则应将其插入通往插座盒的管口上,用电焊将全部管口与盒点焊好。这里要注意,在B轴上的壁灯是采用对应安装的。
休息室、值班室的壁灯盒应对应安装,参见其插座盒安装形式。同时在值班室壁灯盒上接一竖直管通至屋顶下-0.3m处。

图9-20 过门口管路敷设示意图
(十一)低压母线支架的预埋
墙砌到2.10~2.20m标高时(按设计标注),应按设备平面图中低压穿墙隔板的位置,将低压母线的π形支架预埋的墙上,方法同高压负荷开关操作手柄的预埋。鱼尾入墙部分不小于150mm,位置要精确,架子要水平,中心位置要和窗口中心位置对正,预埋要牢固坚实。有时在此处预埋两块T形铁,安装时再将π形支架焊接在上面,T形铁如图9-36所示。T形铁应位于π形架的开口侧,预埋要求同π形架。
(十二)低压侧墙上总开关(断路器)架的预埋
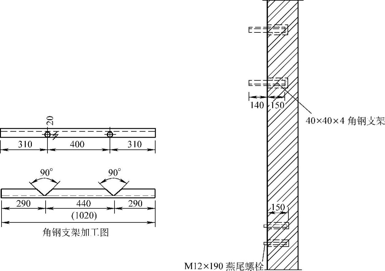
墙砌到2.50m时(按设计标注)在和低压母线架对正的位置上,将墙上总开关的两个π形架预埋一个,待墙砌到3.00m时再预埋一个,两个π架要平行,其中心都应和低压母线架、窗口、进线柜的中心对正。作法和要求同高压负荷开关操作手柄。具体如图9-21所示。

图9-21 角钢支架的制作和预埋
(十三)室内高压负荷开关固定螺栓的预埋
墙砌到3.00m时(按设计标注)应开始预埋高压负荷开关固定螺栓。固定螺栓的预埋必须测量准确实物的螺孔距离,一般按照图样标注的尺寸预埋经常有误。因此有经验的人往往是在进行安装的时候,比照开关本身的尺寸,埋铸螺栓。但这样做需在墙上凿洞,再用水泥砂浆把螺栓铸入孔内,比较费工;如果采用膨胀螺栓固定,造价则偏高。因此螺栓的预埋则根据实际情况进行。如果在配合土建施工时、能测量到该负荷开关的螺孔距离,最好是将螺栓预埋,否则只有凿洞埋铸或膨胀螺栓固定。无论哪种方法,其要求是相同的。如图9-22所示。

图9-22 墙上负荷开关固定螺栓预埋示意图
1)从水平上看三行不同标高上螺栓的轴线应平行,从竖直上看两列螺栓应垂直于地坪;
2)中心竖直轴线应和上面的高压穿墙套管窗口的中心对正,并和下面的变压器高压侧中相对正;
3)应用500#水泥砂浆且不宜稀的硬浆浇铸,同时砂浆应加大水泥的比例,一般为1∶1,必须牢固坚实;入墙净距不得小于150mm且有鱼尾,螺栓应和墙的铅垂直面垂直。必要时应用木棍捣铸水泥。
(十四)低压母线穿墙隔板框架的预埋
墙砌到标高3.30m时(按设计标注)将口字型的穿墙隔板的角钢架预埋在窗口内,框架的中心(也就是窗口的中心)应和墙上空气开关、母线支架的中心对正;框架在墙上的位置应居中,且框架所成的平面应和墙的铅垂面平行,如图9-23所示。这里要说明一点,如果没有低压墙上总开关,低压母线穿墙隔板框架(也就是窗口)标高在2.80m处(按设计标注),而不在3.30m标高处。
(十五)10kV架空线路进户装置金工件的预埋
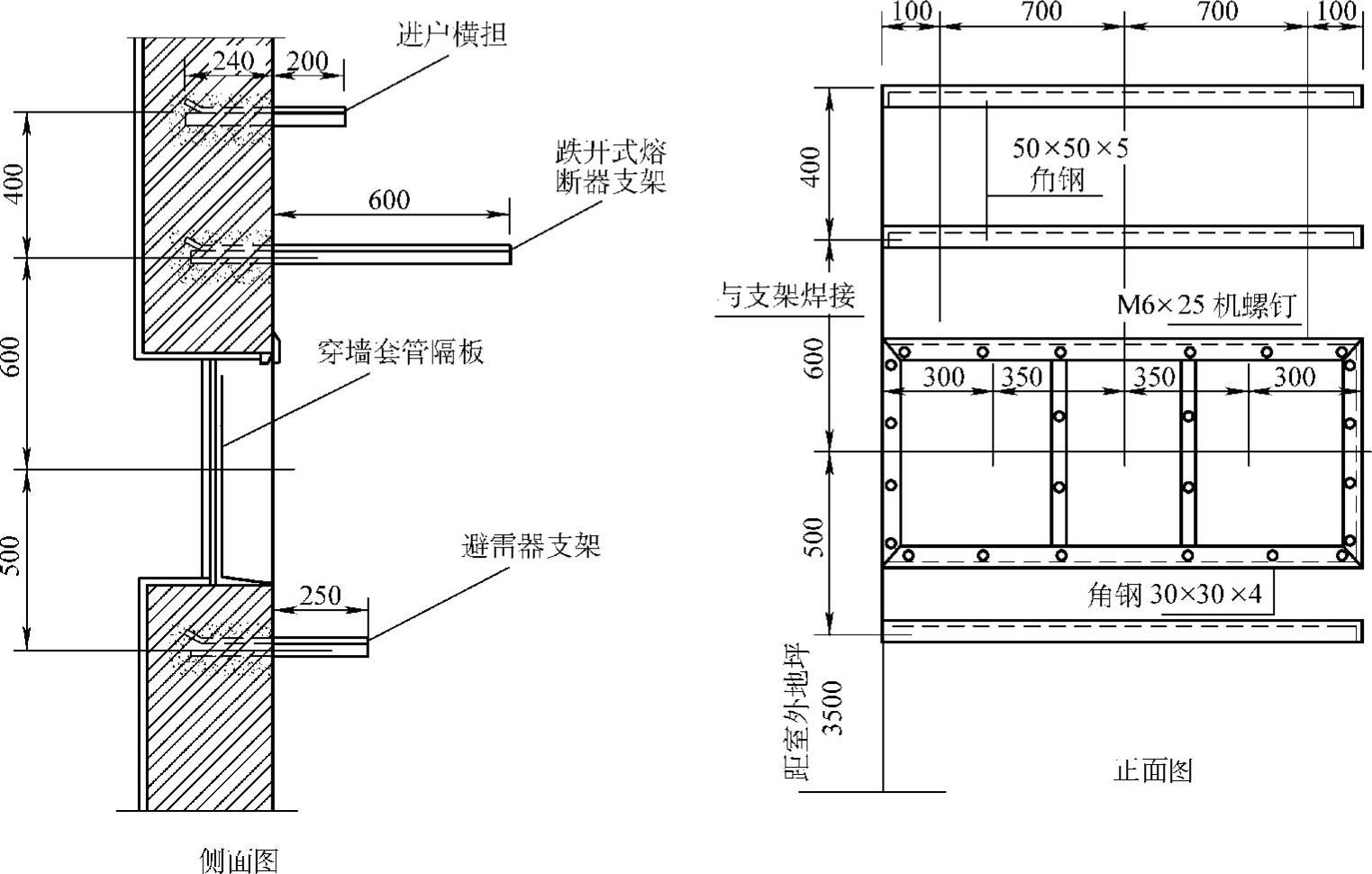
1)当墙砌到室内地坪3.5m时,在室外电源进户处,将避雷器的π形角钢架预埋在进户处,其鱼尾入墙距离至少在240mm,π形架应和室外地坪平行,中心应和高压窗口中心对正,预埋灌铸方法同前。
2)室内地坪3.75m时,在高压窗口处,预埋高压穿墙套管穿墙板口字型架,方法和要求同低压穿墙隔板框架。
3)室内地坪4.6m时,将跌落式熔断器的π形角钢架预埋在进户处,方法和要求同避雷器的π形架。
4)室内地坪5.0m处,将进户悬式绝缘子的π形角钢架预埋在进户处,方法和要求同避雷器的π形架。
上述四种金工件的中心必须和高压窗口对正,水平方向上和地坪平行,灌铸要坚固牢靠。其窗口的中心应和高压柜的中相对正,或和室内墙上高压负荷开关的中相对正。
通常为了保证预埋的质量,避免在安装后遭到各种外力的损坏或丢失,凡是伸出砖墙外的角钢支架,如母线支架、开关支架、电气元件支架等都在安装前再进行埋铸。因此,在配合土建施工中,只需在其入墙部分预留下100mm×100mm×(规定深度+5)mm的孔洞,位置必须准确,水平方向上的必须平行于地坪,竖直方向上的必须垂直于地坪。

图9-23 低压母线穿墙隔板框架预埋示意图
进入安装阶段后,应复测一下孔洞的位置、标高,无误后然后用高标号水泥和干净的砂子按1∶1的比例活成颗粒状砂浆,再将构件置于孔内,入墙深度同上,找平找正后把颗粒状的砂浆放入孔洞内,边放边用铁棍捣固,最后将孔洞口抹平即可,半日后即可负重安装。
在现场加工制作的构架,必须遵照预制加工一章中的规定进行,其用料规格和加工尺寸可按图9-24进行选择。
(十六)屋顶灯具的金工件、接线盒及管路的预埋
屋顶灯具的金工件、接线盒及管路的预埋,是根据屋顶结构的不同而分别采用不同的预埋方法,配电间的屋顶一般采用混凝土现浇板和预制混凝土板两种。
1.屋顶为混凝土现浇板
墙砌到即将封顶标高时,即屋顶板下-0.3m时,在由下通至屋顶管的管口处,预埋一只分线盒,方法和要求同前。再往上砌砖时则将这个盒的上方部位留下不砌,形成一个洞。图9-1中共有5根管通至屋顶,也就是要下五个盒。
当土建工程进行到屋顶绑扎钢筋时,将灯具的接线盒放在平面图标注的位置上(模板上),这个位置应预先按墙内壁测量好。图中标注的是荧光灯,因此每只灯应预埋两只盒,一只盒接线、吊灯,另一只盒只起吊灯的作用。
先在土建工程支好的模板上,划出休息室、值班室和配电间的中心轴线a1、b1、c1,如图9-25所示,然后在轴线上标出每只灯的两个线盒的位置,按照线盒间的距离加上灯叉弯及进盒的5mm将钢管锯断并煨制好,把a1、b1、c1三条轴线上的盒连接起来,管口与盒用电焊点好。再测量竖直引上管的分线盒和接线灯盒的距离,将图中a、b、c、d、e五根管煨制好,一端进灯接线盒、另一端由小洞进引上管的分线盒,分别用电焊点好。最后用同样方法将a1b1轴的连接管f做好。

图9-24 10kV架空线路进户装置预埋示意图

图9-25 屋顶模板上预埋管盒布置平面图

图9-26 现浇注钢筋混凝土楼板上灯盒预埋示意图
按照测量的位置,将灯的每对盒内堵满水泥袋纸或其他容易撕下废旧物,然后紧贴模板面将盒紧紧固定在模板上,盒内不得有空隙,与模板面尽量无间隙,避免水泥浆液进入盒内,具体作法如图9-26所示。
这里要注意几点:
1)和钢筋工、混凝土工、瓦工、木工必须配合好,因为这时是混合交叉同时作业,管要穿入钢筋的套子里,盒又要固定在模板上,又要在墙上留洞,稍有偏差就要给安装带来不便。因此在浇注混凝土时,必须电工在场,随时纠正由于土建施工而造成的管路、线盒的不妥之处。
2)木模板时固定盒较容易,一般是用细铁丝和钉子在木模板上固定;钢模板时,则是在灯盒处可采用一块木模板,或者将铁盒与钢筋电焊点焊牢固。

图9-27 在盒内插入一根钢筋棍

图9-28 混凝土预制楼板上灯盒安置示意图
3)假如是灯具较重,则应在盒内预先插入一根ϕ6~ϕ10mm的钢筋,插入时利用敲落孔,一般出盒不超20mm,这根钢筋的两端最后将浇铸在混凝土内,如图9-27所示。
4)同一型号的灯具,其线盒间的距离应相等。
2.屋顶为混凝土预制板
土建工程进行到把预制板吊放在屋顶固定后,先测量灯具位置,然后在确定的位置上将预制板凿一个洞,洞的大小由进入管的数量和盒的大小而定,一般不超过36cm2,最大不超过50cm2。凿洞应使用电动凿孔机,也有用手工凿洞的。电动凿孔机使用时应注意施加压力不宜过大,应按其自然往下转动,再是要注意安全。将钢管煨好后一端进入洞内,另一端进入另一个灯具的洞内或墙上屋顶下-0.3m处的分线盒内,如图9-28所示。管口一般应在板厚的中间和盒焊好,其他和现浇混凝土板预埋相同。土建抹灰时,一般是先把洞用砂浆填平,然后抹灰即可。土建抹地面时,凡是露出砼板的管路,不得悬空放置,必须先用硬灰将管下充填严实且无上下的晃动才能抹灰,否则完工后此处会裂开。
至此,墙上、屋顶配合土建已完,当土建进行室内地面工程时,应继续配合土建施工。因此,要及时向土建负责人了解地面施工的精确时间。
(十七)电缆沟内电缆支架的预埋
沟内电缆支架,由角钢制成一字形、尾部开鱼尾,前端应翘起,见图9-29,入墙部分不小于150mm,角钢的规格由被支电缆外径决定,入墙部分用高标号水泥砂浆浇铸。支架应水平放置。电缆支架预埋时,应遵守以下规定:
1)角钢支架应平直,无明显扭曲,长度误直在5mm以内,切口处无卷毛刺;焊接部位应牢固无变形;先涂防腐底漆才能预埋,漆应均匀。
2)电缆支架横档至沟顶、楼板或沟底的距离,应符合表9-1的规定。

图9-29 沟内电缆支架预埋示意图
表9-1 电缆支架横档至沟顶、楼板或沟底的距离 (单位:mm)

3)电缆支架层间最小允许垂直净距离,应符合表9-2的规定。
表9-2 电缆支架的层间允许最小距离值

注:h表示槽盒外壳高度。
4)电缆支架水平方向及垂直方向上的间隔距离应符合表9-3中的规定。
表9-3 电缆各支持点间的距离 (单位:mm)

注:全塑型电力电缆水平敷设沿支架能把电缆固定时,支持点间的距离允许为800mm。
(十八)开关柜、控制柜等柜体底座地脚螺栓的预埋
地脚螺栓用M12×170螺栓制成,并将埋入端割成鱼尾,埋入深度120mm。地脚螺栓是在土建浇注电缆沟沿的时候预先埋入的,如图9-30所示。

图9-30 地脚螺栓预埋示意图
(十九)配电室直接控制设备负荷管的埋设
有些设计常把大中型电动机的控制柜设在配电室,在配电室做地面前应将其负荷管埋设。笼型电动机一根负荷管,绕线转子电动机两根管(定子一根,转子一根),另外还有一根操作按钮二次控制线管,有时还有一根电动机运行反馈信号线管。埋设标高-0.3m,进入电缆沟部分小于100mm,并做成喇叭口;到设备端直角弯竖起至电动机接线盒处,高度由设计给定或按电动机接线盒高度定,管口套丝,焊接地螺钉;二次线管出地坪1.40m,进入按钮盒,管路不得交叉;埋设应和该车间的配合土建施工协同进行。如图9-31所示。
(二十)变压器垫铁或导轨的预埋
土建浇注变压器基础梁时,应把垫铁或导轨预埋在基础梁上。垫铁或导轨应平整,下部焊有J形铁钩,和基础的钢筋扎好,垫铁或导轨的上平面不得高出基础水泥抹面1mm,如图9-32所示。

图9-31 配电室直接控制设备负荷管路的预埋
(二十一)室内接地体的敷设
用ϕ12mm镀锌圆钢或-4×40镀锌扁钢将进户的接地引线连接起来引至电缆沟内的两端、变压器及电动机基础旁、墙上开关右侧的下方,分别出地坪500mm,埋设标高-0.3m,连接处用电焊焊好并刷沥青漆。面积较大的变配电间,可在室内增设几组接地极,引成一个接地网。

图9-32 变压器基础垫铁或导轨预埋示意图