1
建筑施工技术
1.5.1.2.1 一、基础的类型和特点
一、基础的类型和特点

如果地基土层较好,可以直接将基础做在该土层上,这种地基称为“天然地基”,如图2.1(a)所示;如果地基土层不好,需要进行加固提高承载力后才能施工基础的时候,通常称该地基为人工地基,如图2.1(b)所示。根据基础的埋置深度差异和采用的施工方法不同,学术上通常将地基基础分为两类:浅基础和深基础。

图2.1 地基基础的类型

(一)浅基础

位于天然地基上,埋置深度小于5m的一般基础,指桩基或墙基;或者埋置深度超过5m,但小于基础宽度的大尺寸基础,指箱形基础:两者统称为天然地基上的浅基础。

浅基础根据结构形式可分为扩展基础、联合基础、柱下条形基础、柱下交叉条形基础、筏形基础、箱形基础和壳体基础等。根据基础所用材料的性能又可分为无筋基础(刚性基础)与钢筋混凝土基础。墙下条形基础和柱下独立基础(单独基础)统称为扩展基础。扩展基础的作用是把墙或柱的荷载侧向扩展到土中,使之满足地基承载力以及变形的要求。扩展基础包括无筋扩展基础和钢筋混凝土扩展基础。

1.无筋扩展基础

无筋扩展基础是指由砖、毛石、混凝土或毛石混凝土、灰土和三合土等材料组成的无钢筋的墙下条形基础或柱下独立基础(图2.2)。无筋基础的材料都具有较好的抗压性能,但抗拉、抗剪强度都不高,为了使基础内产生的拉应力和剪应力不超过相应的材料强度设计值,设计时需要加大基础的高度。因此,这种基础发生挠曲变形的可能性很小,也因此称为刚性基础。无筋扩展基础适用于多层民用建筑和轻型厂房。

图2.2 无筋扩展基础

d—柱中纵向钢筋直径

2.钢筋混凝土扩展基础

钢筋混凝土扩展基础又分为墙下钢筋混凝土条形基础和柱下钢筋混凝土独立基础。由于采用了钢筋混凝土结构,基础的抗弯等可通过配置钢筋来承担,基础的扩展宽度不受高宽比限制,比无筋扩展基础的扩展宽度大很多,特别适用于“宽基浅埋”的情况。如图2.3、2.4所示。

图2.3 柱下扩展条形基础

图2.4 柱下独立基础

3.钢筋混凝土梁板基础

钢筋混凝土梁板基础分为柱下条形基础、柱下十字交叉基础、筏形基础和箱形基础。

(1)柱下钢筋混凝土条形基础

图2.5 柱下单向条形基础

如果上部结构荷载较大、地基较软弱时,仍然采用柱下单独基础,基底面积可能很大以至于互相接近时,可以把同一排的柱基础做成连通的柱下钢筋混凝土条形基础,如图2.5所示。

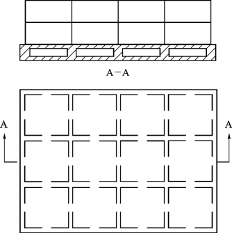
(2)柱下十字交叉基础

如果上部荷载较大、地基土质较差,再采用条形基础就不能满足地基承载力的要求,或者需要增加基础的整体刚度来减少地基基础的不均匀沉降时,可以在柱网下设置纵横两个方向的钢筋混凝土条形基础,就形成了如图2.6所示的十字交叉基础。

图2.6 柱下十字交叉基础

(3)筏板基础

如果基础上部荷载大、地基特别软弱或有地下室时,可以采用钢筋混凝土筏板基础。该种基础像一个倒置的无梁楼盖,它能很好地适应上部结构荷载和调整地基的不均匀沉降,整体刚度较好。按构造的不同,筏板基础还可分为平板式和梁板式两类。

平板式筏板基础是柱子直接支承在钢筋混凝土底板上,像是倒置的无梁楼盖。平板式筏板基础是一厚度达1~3m的钢筋混凝土平板,施工方便,建造速度快,但是混凝土用量较大,在国外高层建筑的基础中较为多见。按梁板的位置不同,梁板式可分为上梁式和下梁式,其中下梁式底板表面平整,可作为建筑物底层地面使用。梁板式基础的刚度较大,能承受更大的弯矩。当地质条件均匀和土质较软时,因为筏板基础减少了地基附加压力,埋深较浅,效果较为理想。但柱下筏板基础因为柱荷载为集中荷载,基底压力的分布受筏板厚度及柱间距离的影响,同时还要满足抗冲切要求,因此筏板厚度有时可达3m。为了减少筏板厚度,就出现了加肋的筏板基础,如图2.7所示。

图2.7 加肋的筏板基础

(4)箱型基础

当地基特别软弱、荷载又很大时,可采用箱型基础。这种基础是由钢筋混凝土整片底板、顶板和纵横交叉的隔板所组成,如图2.8所示。板的厚度由计算决定,箱型基础具有很大的刚性,因此整体性较好,不会因地基不均匀变形使上部结构产生较大的弯曲而造成开裂。箱基的高度一般为3~5m,可根据具体设计而定,如果高度不能满足要求时,还可做成多层箱基。高层建筑的箱基往往与地下室结合考虑,它的地下空间可做人防、设备间、库房、商店以及污水处理等用途使用。

图2.8 箱型基础

在地下水位较高的地区,箱基的施工受到一定的影响。降水是关键。其次还须对深基坑周围进行挡土支护,从而工程造价就会提高。再就是对于这种条件的箱型基础,防水问题较为困难,即便做好了防水,还会因地下土温低于室内温度而产生结露现象,使地下室过于潮湿而无法使用。由此可见,箱基设计将底层用作隔潮层,在边墙内设非承重内墙是非常必要的,这样对解决结露或渗漏现象也是行之有效的。箱型基础造价较高,设计时需要考虑地下空间的有效利用,方能取得较为理想的经济效果。

(二)深基础

1.桩基础

桩基础是目前国内应用较为广泛的—种深基础形式,特别在软土地区,高层建筑几乎都采用桩基础。随着钢筋混凝土材料的出现和机械设备性能的提高,桩基的类型有很多,常见的有钢筋混凝土预制桩和灌注桩,其他还有钢管桩,由于其造价较高,很少在工程中使用。根据桩的受力与工作性能可分为群桩及单桩两类,如图2.9所示。单桩承载力由桩土间的摩擦力和桩尖阻力两部分组成,最大直径可达2m以上。

图2.9 群桩及单桩示意

2.沉井和沉箱基础

沉井和沉箱为圆形、方形或矩形的格形结构,依靠自身重量,用边开挖边下沉的方法施工,沉到设计高程后再灌注混凝土。沉井和沉箱都属于深基础,沉井是开口的,依靠人工或机械将井筒内土挖出。而沉箱则属于闭口的,利用气压排除箱底水后再进行挖土,因此又称气压沉箱,如图2.10所示。

图2.10 沉井和沉箱

3.墩基础

墩是通过在地基中成孔后灌注混凝土形成的大口径深基础,墩基主要以混凝土及钢材作为主要材料。墩的断面形状一般为圆形,其直径大于等于80cm。墩的类型较多,按受力状况可分为端承墩及摩擦墩两种,如图2.11所示。

图2.11 墩基分类

qb—墩端阻力;q1—墩身摩擦力

墩基的优点有:一是上部结构传来的荷载较大而集中井要求基础面积较小时,一个单墩即可代替群桩及承台;二是在密实砂层及卵石层地基中,打桩十分困难,而做墩基则较易于施工;三是桩基施工会造成打桩时由于振动和土的隆起先打入桩的侧移或向上浮起,还有可能造成邻近建筑物的损坏,而墩基施工就没有此类弊端;四是墩基不但具有较高的竖向承载力,也可承受较大的水平荷载;五是墩基施工机具简单,在同样的地基条件下,采用墩基会比其他深基础经济;六是墩基施工产生的噪音小,对环境影响不大;七是因为墩身断面尺寸较大,便于检查墩底和侧面土质情况。

当然了,墩基除了上述优点外,还存在一些缺点,如:①质量要求很高,尤其是单墩承受荷载时,一旦墩出现质量事故就会对整个建筑物造成严重损害;②与其他类型基础比较,墩基通常需要进行较为详细的地质勘查工作;③墩基的深层开挖也会引起附近建筑物的损坏;④墩基的载荷试验较为复杂且价格不菲。

4.地下连续墙

地下连续墙(如图2.12)是深基础的一种,是利用各种挖槽机械,借助于泥浆的护壁作用,在地下挖出窄而深的沟槽,并在其内浇筑适当的材料而形成一道具有防渗(水)、挡土和承重功能的连续的地下墙体。地下连续墙近年来应用广泛,最初用于坝体防渗、水库地下截流,而后推广到挡土墙、地下结构的一部分或全部。另外,房屋的深层地下室、地下停车场、地下街、地下铁道、地下仓库、矿井等均可使用。从国内外的使用情况和习惯考虑,地下连续墙主要有如下几种类型:按槽孔的形式可以分为壁板式和桩排式两种;按开挖方式和机械分类,可分为抓斗冲击式、旋转式和旋转冲击式;按施工方法的不同可以分为现浇、预制和两者组合成墙等;按功能及用途分为做承重基础或地下构筑物的结构墙、挡土墙、防渗心墙、阻滑墙、隔震墙等;按墙体材料不同可分为钢筋混凝土、素混凝土、黏土、自凝泥浆混合墙体材料等。

图2.12 地下连续墙

地下连续墙的优点主要有以下几个方面:一是施工全盘机械化,速度快、精度高,并且振动小、噪声小,适用于城市密集建筑群及夜间施工。二是具有多功能用途,如防渗、截水、承重、挡土、防爆等,由于采用钢筋混凝土或素混凝土,强度可靠、承压力大。三是对开挖的地层适应性强,在我国除熔岩地质外,可适用于各种地质条件,无论是软弱地层或在重要建筑物附近的工程中,都能安全地施工。四是可以在各种复杂的条件下施工,如广州白天鹅宾馆基础施工,地下连续墙呈腰鼓状,两头狭中间宽,形状虽复杂也能施工。五是开挖基坑无需放坡,土方量小,浇混凝土无需支模和养护,并可在低温下施工,降低成本、缩短施工时间。六是用触变泥浆保护孔壁和止水,施工安全可靠,不会引起水位降低而造成周围地基沉降,保证施工质量。七是可将地下连续墙与“逆做法”施工结合起来,地下连续墙为基础墙,地下室梁板做支撑,地下部分施工可自上而下与上部建筑同时施工,将地下连续墙筑成挡土、防水和承重的墙,形成一种深基础多层地下室施工的有效方法。

当然了,除了上述优点外,地下连续墙还有部分缺点,如:一是每段连续墙之间的接头质量较难控制,往往容易形成结构的薄弱点;二是墙面虽可保证垂直度,但比较粗糙,尚需加工处理或做衬壁;三是施工技术要求高,无论是制槽机械选择、槽体施工、泥浆下浇筑混凝土、接头、泥浆处理等环节,均应处理得当,不容疏漏;四是制浆及处理系统占地较大,管理不善易造成现场泥泞和污染。