1.7.7 大雄宝殿

大雄宝殿

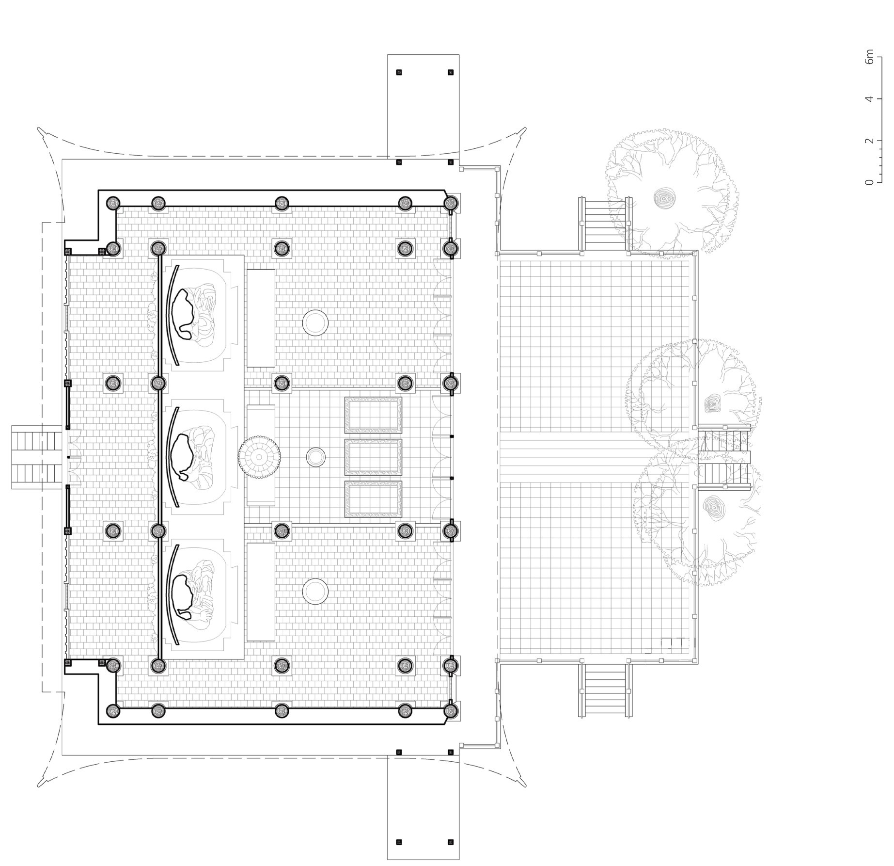
殿身分心槽加副阶周匝,通面阔五间计24.06米,进深四间计16米,后檐明次间再出副阶,使殿身平面呈“凸”字形;殿身前置月台。建筑南北置斜廊与南北廊庑连接,斜廊独立设置,卷棚顶。斜廊及月台为宋代建筑遗风。殿身重檐歇山顶,后檐副阶为单坡卷棚顶;屋面覆盖绿琉璃瓦。山花以绿琉璃砖拼装成云水莲花图样。殿堂式构架,草架为穿斗式,用生起、侧脚之制。

斗栱:下檐明次间置平身科四攒,上檐明次间置平身科三攒,下檐稍间不置平身科。两山仅二、三间下檐施平身科三攒,上檐施平身科二攒。下檐施七踩三昂斗栱,昂为琴面昂。上檐施九踩四昂斗栱,左右出45°斜昂,昂为象鼻昂。柱头科及角科翘、昂用材大于平身科。内檐斗栱用九踩四翘品字科,隔架科用三踩单翘品字科,上承雀替。

墙体及木装修:山墙为砖墙;前檐明次间置隔扇门,稍间为砖墙上置槛窗;后檐明间置壸门,稍间置壸窗。殿内柱头、梁、枋、斗栱、天花遍施彩画。

台基及地面:台基为须弥座,前出月台,正面石砌双阶七级垂带踏跺一道。台面墁铺方形石板,四周及台基前檐勾栏现大部不存。殿内墁以金砖,明间前槽地面,镶嵌琉璃花砖。

大雄宝殿实景(一)

大雄宝殿实景(二)

大雄宝殿平面图

大雄宝殿仰视图

大雄宝殿正立面图

大雄宝殿背立面图

大雄宝殿侧立面图

大雄宝殿横剖面图

大雄宝殿纵剖面图

大雄宝殿隔扇门立面

雄宝殿隔扇门详图

大雄宝殿槛窗详图

大雄宝殿槛窗立面

大雄宝殿槛窗花饰大样及断面详图

大雄宝殿栱垫板彩画详图

大雄宝殿天花彩画详图(一)

大雄宝殿天花彩画详图(二)

大雄宝殿梁枋彩画详图

大雄宝殿金柱雀替详图

大雄宝殿隔架科斗栱详图

大雄宝殿檐廊雀替详图

大雄宝殿翼形栱详图(一)

大雄宝殿翼形栱详图(二)

大雄宝殿内檐斗栱详图

大雄宝殿下檐平身科斗栱详图

大雄宝殿下檐柱头科斗栱详图

大雄宝殿下檐角科斗栱详图

大雄宝殿上檐平身科斗栱详图

大雄宝殿上檐柱头科斗栱详图

大雄宝殿上檐柱头科、平身科及内檐斗栱详图

大雄宝殿上檐角科斗栱详图

大雄宝殿上檐角科及内檐转角斗栱详图

大雄宝殿下檐前檐斗栱侧视

大雄宝殿上檐前檐斗栱

大雄宝殿后檐斗栱

大雄宝殿后檐角科斗栱

大雄宝殿下檐前檐斗栱正视

大雄宝殿梁枋、木雕、彩画

大雄宝殿天花

大雄宝殿内檐局部

大雄宝殿内檐斗栱及装饰

大雄宝殿山花

大雄宝殿下檐戗脊天王

大雄宝殿下檐戗脊仙人及走兽

大雄宝殿戗脊天王

大雄宝殿上檐翼角套兽

大雄宝殿次间隔扇

大雄宝殿稍间槛窗

大雄宝殿壸窗

大雄宝殿壸门

大雄宝殿内檐斗栱及天花