1.7.1 总体布局
总体布局

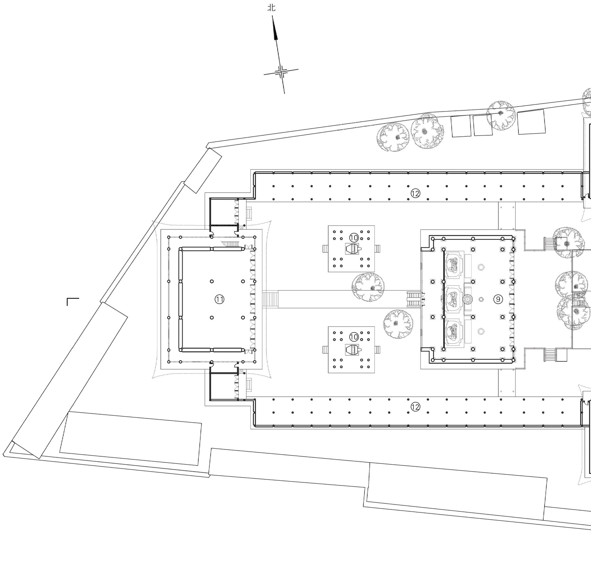
报恩寺建筑群依山就势,沿东西轴线展开三进院落。一进院落依次为山门及天王殿,院中置金水桥,桥北为钟楼;二进院落主体为大雄宝殿,南北分置华严藏与大悲殿;三进院落主体为万佛阁,阁前南北分置碑亭,并在外围置廊庑;二、三进院落以大雄宝殿及两侧斜廊分隔。院落东西长270余米,南北宽100余米,建筑面积3 500余平方米,现占地面积2.5公顷。山门前为寺前广场,上立经幢和石狮。

群山环抱中的报恩寺

报恩寺总平面图

报恩寺建筑群平面图

报恩寺建筑群横剖面图

报恩寺建筑群纵剖面图