1
中国传统家具榫卯结构
1.6.2 二、建筑榫卯结构与家具榫卯结构的联系

二、建筑榫卯结构与家具榫卯结构的联系

纵观历史提供的资料,家具与建筑的关系是十分密切的。人类自从有了生活空间便开始向大自然索取生活用具,随着社会前进、生活空间的改善,生活所需要的家具也不断变化。在人类生活需求的发展中,家具的样式不断丰富,使用形式也多样化,“就地打造”“配套使用”等新的创意日渐出现。可以说,家具与建筑自从被人们掌握开始,就互相依靠、互相伴随、互相促进,在为人类服务的前提下,为满足人类生活需求,不断创造居住空间——建筑和样式新颖的家具。而家具与建筑,又在不断满足人们需求的过程中,创造出独具民族特色的建筑文化与家具文化。

图3-4 河姆渡出土最早榫卯图

自远古时期随着木结构建筑的出现,人类脱离了穴居生活,家具随之得到发展。传统家具榫卯结构与传统家具的发展演变过程密切相关。榫卯结构是中国古代匠人发明的一种独特且巧妙的连接方式。这种连接形式在木结构建筑体系和小木作家具中大量存在,拼接和组装形式千变万化。

追溯历史,在距今7 000余年的浙江余姚河姆渡遗址第一文化层出土的木构件是目前发现最早的榫卯连接的构件(图3-4),当时都是以石作工具凿出整齐的榫卯。随着夏、商时期青铜冶炼技术的兴盛,出现了铜斧、铜凿、铜铲,使得当时的家具初具规模。战国中期和晚期,冶铁业有了很大的发展(图3-5),铁器的广泛传播使得铁质的手工业工具逐渐代替了青铜工具。明代午荣编著的《鲁班经》中记载,春秋时期的梓匠(也就是木工)使用铁锯、铁斧、铁钻、铁凿、铁铲、铁刨制作家具。非常精细的榫卯做法出现于棺、椁、墓之中,据考察,春秋时期榫的形式就已出现了银锭榫、格角榫和燕尾榫,还有十字搭接榫、闭口贯通榫、闭口不贯通榫、开口不贯通榫等。

图3-5 战国木构榫卯

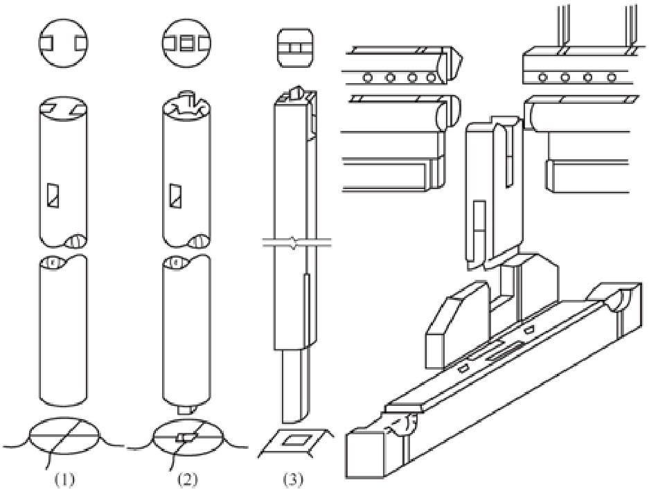
发展至宋代,传统大木作和小木作进入一个定型时期。宋《营造法式》中记载并规范了部分榫卯,书中给出大木构架中几种相关榫卯图示(图3-6、图3-7),此外,大量的建筑斗拱分件图也可看作此时榫卯发展的记录,但是书中并没有给出关于榫卯连接的详细尺寸,最多也就提及对榫卯的宽度要求“入柱卯减厚之半”和长度要求“两头至柱心”。宋代高型家具出现后,家具在造型结构方面由于受建筑梁柱的影响,突出变化是由梁柱式的框架结构代替了隋唐时期的箱型壸门结构,家具结构由复杂趋向简单,但造型日趋复杂,框架结构的连接方式使得榫卯制作形式从简单向复杂变化,对接合部位的力学性能提出新的要求。简单地说,高度的增加使得力臂增大,因此需要强度更高的材料才能承受荷载。其次,大凡强度较高的木材都脆性较大,对加工的精确性要求较高,榫卯必须做到适当的公差配合。

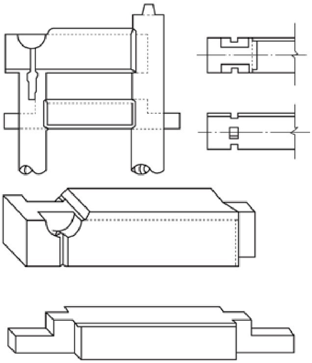
由宋至清,木构架的演进过程加快,很多构件做法发生了较大变化。元代的榫卯连接和宋代的还比较接近,但是节点做法也日趋简化,而清代梁柱直接连接的做法逐渐成为主流(图3-8),其间清工部的《工程做法则例》是又一部官方颁布的、较为系统全面的建筑规范类文献,与《营造法式》类似,榫卯的文字记载仍然不多,但是对一些常用榫卯等都做了规定。中国传统家具和建筑在结构上的同构性不仅体现在梁柱结构与框架结构的同源上,而且在于许多榫卯结构的形式亦有相似性。这一时期,硬木材料被广泛使用在家具中,榫卯结构强度随着材料性能的提高而提高,开始使用暗榫,斜接、隐藏所有的榫卯接合以减少接合的痕迹,直至近代几乎全用暗榫。其优点是美观,不影响木纹的整体效果;缺点是容易产生虚榫,即眼深榫短,或眼大榫小,用胶来填塞,影响接合强度和耐久性。

图3-6 《营造法式》柱额普拍枋榑连接榫卯

图3-7 《营造法式》合柱鼓卯图

图3-8 清代梁柱榫卯构件(1)

图3-8 清代梁柱榫卯构件(2)

图3-8 清代梁柱榫卯构件(3)

图3-8 清代梁柱榫卯构件(4)

图3-8 清代梁柱榫卯构件(5)

图3-8 清代梁柱榫卯构件(6)

现代榫卯连接的方式除了在结构上牢固可靠之外,本身也是立体构成的艺术,体现出几何的美学。现代家具的榫卯接合形式较为简单,大多采用开放性系统,主要依靠胶黏剂的作用,并使用各种嵌榫,外露的榫卯结构则成为装饰的元素。经过工匠不断的试验与改良,榫卯结构设计更加合理。