1
建筑力学
1.2.4.1 4.1 线应变
4.1 线应变

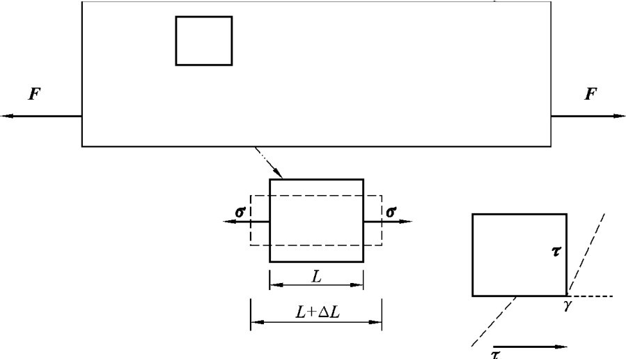
如图1-22所示,构件受到一对轴向力的作用发生拉伸变形。假设构件由许多微小的正六面体(单元体)组成,构件的整体变形就可以看成是单元体累积的结果。ΔL为单元体的绝对伸长变形量,根据线应变的概念可得

L ΔLε= (1-4)

线应变以伸长为正,缩短为负。

图1-22