1
房屋建筑学(第4版)
1.4.1.2 14.2 工厂总平面图设计
14.2 工厂总平面图设计

14.2.1 工厂总平面图设计的要求

一个工厂由许多建筑物和构筑物组成。 生产车间是工厂生产的一个管理单位,它一般由4个部分组成:①生产工段,是加工产品的主体部分;②辅助工段,是为生产工段服务的部分;③库房部分,是存放原料、材料、半成品、成品的地方;④行政办公生活用房。 每一幢厂房不一定都包括上述4个部分,其组成应根据生产的性质、规模、总平面布置等因素来确定,故进行工厂总平面图设计应满足以下要求:

①根据全厂的生产工艺流程、交通运输、卫生、防火、风向、地形、地质等条件确定建筑物、构筑物的相对位置。

②合理地组织人流和货流,避免交叉和迂回。

③合理布置地上和地下的各种工程管线。

④优化厂区绿化。

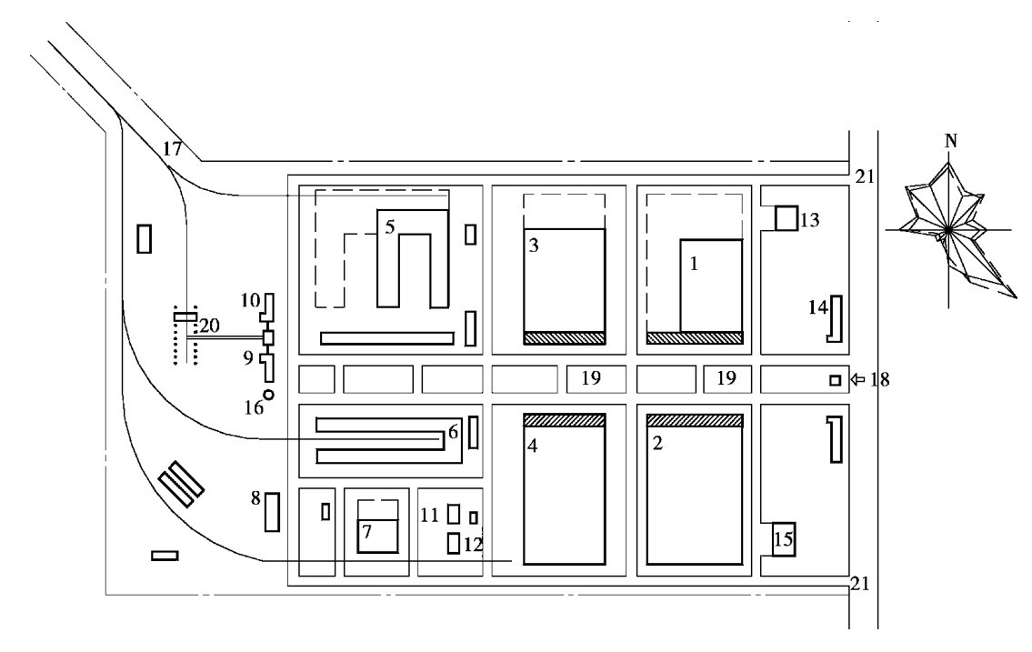
工厂总平面图包括生产区和厂前区两部分(图14.19),在生产区中布置主要生产厂房和辅助建筑、动力建筑、露天和半露天的原料堆场、成品仓库、水塔、泵房等;在厂前区布置行政办公楼、传达室、门卫等。

图14.19 某机械厂总平面布置图

1—辅助车间;2—装配车间;3—机械加工车间;4—冲压车间;5—铸工车间;6—锻工车间;7—总仓库;8—分仓库;9—锅炉房;10—煤气发生站;11—氧气站;12—压缩空气站;13—食堂;14—厂部办公楼;15—车库;16—烟囱;17—火车货运出入口;18—厂区大门人流出入口;19—车间生活间;20—露天堆场;21—汽车货运出入口

14.2.2 影响总平面布置的因素

(1)人流与货流的影响

一个厂房在总平面图中的位置,应便于与其他厂房的联系,与场区道路、铁路有直接的联系。

(2)地形的影响

地形坡度的大小对厂房的平面形状有直接影响,如图14.20所示中的地形是一个两边高中间低的谷地,把厂房平面布置成L形则可减少土石方量,缩短工期,降低造价。 因此在山区或坡度变化大的地区,更应使厂房的平面形状与地形相适应,尽量平行于等高线布置。

(3)风向的影响(图14.21)

图14.20 平面形式与地形相适应

在炎热地区,为加强通风,厂房的宽度不宜过大,主导风向与建筑短轴的夹角宜采用0°~45°。 II形、Ш形平面的开口朝向迎风面,并在侧墙上开设大门和窗户以便组织穿堂风。 在寒冷地区,为避免风对室内气温的影响,厂房的长边应平行于冬季主导风向,并在面对主导风向的墙上尽量少开或不开门窗。

此外,总平面布置应紧凑,注意节约用地;建筑物外形尽量规整,并与厂区扩建方向一致,避免浪费。

图14.21 厂房方位与风向