1
房屋建筑学(第4版)
1.3.9.6 9.6 电梯与自动扶梯
9.6 电梯与自动扶梯

为上下运行方便,在多层和高层建筑中,常设有电梯。

9.6.1 类型

按使用性质可分为:客用电梯,供人们在建筑中的联系;货用电梯,主要用于搬运货物及设备;消防电梯,在发生火灾等紧急情况下安全疏散人员和消防人员紧急救援使用。 在客用电梯中还有一种观赏电梯,即在竖向运行之中,通过透明的轿厢,观赏外部景观,多用于大型公共建筑之中。

9.6.2 电梯的组成

(1)电梯井道

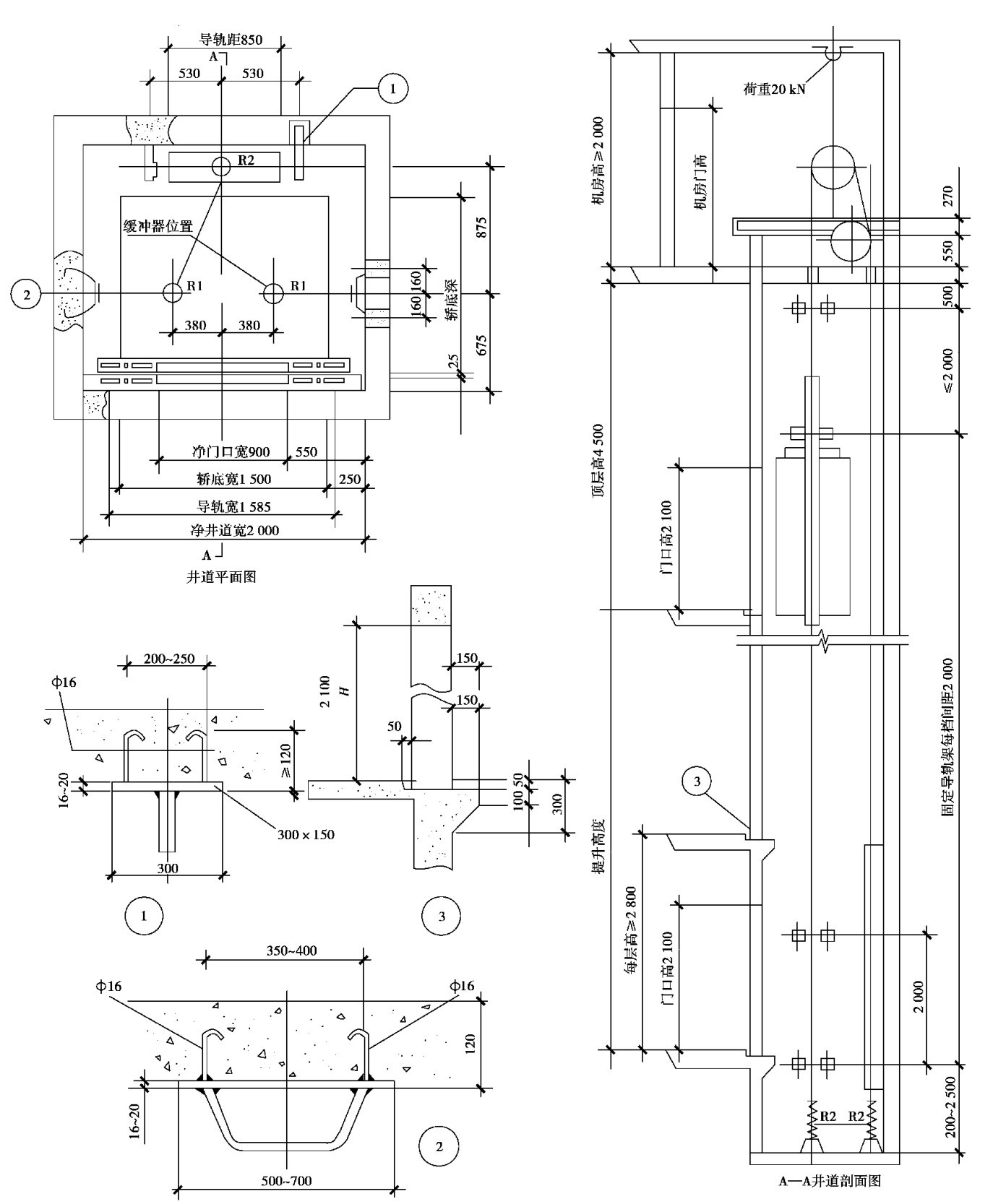
电梯井道是电梯运行的通道。 井道内包括出入口、电梯轿厢、导轨、导轨撑架、平衡锤及缓冲器等。 根据使用要求可选用相关定型井道尺寸,配置各种实用轿厢。 为满足消防和抗震设计要求,井道多采用钢筋混凝土墙。 当建筑物顶层净高小于4500mm时,电梯井道需高出建筑物。 因为轿厢架、轿厢吊索等设备还必须有一定的空间高度及长度,才能使轿厢停在规定高度,保证正常使用。 故顶层井道高度应大于等于4500mm。 如图9.47和图9.48所示。

图9.47 电梯分类与井道平面

1—电梯箱;2—导轨及撑架;3—平衡重

(2)井道地坑

井道地坑指建筑物最底层平面以下部分的井道,其高度H≥1.4m,作为轿厢下降时必备的缓冲器所需的空间。

(3)电梯机房

一般设在电梯井道的顶部。 其平面尺寸根据设备尺寸及平面布置、使用、维修所需空间而定,一般沿井道平面任意两个相临方向伸出。 其高度一般为2.5~3.0m。 防火要求同井道。

(4)电梯门及轿厢

电梯门指电梯井壁在每层楼面留出的门洞而设置的专用门。 其装修与电梯厅墙面装修应统一考虑,达到协调统一。 一般采用大理石或金属装修。 轿厢指载人、运货的厢体。轿厢门和每层专用门应全部封闭,以保证安全。 门为双扇推拉门,宽度一般取值800~1500mm,开启方式一般为中分推拉式或旁开双折推拉式。 轿厢电井壁导轨和导轨支架支承,固定通过牵引轮、平衡锤,使轿厢上下升降安全运行。 电梯运行速度视使用要求而定:消防电梯大于等于2m/s;货运电梯在2m/s以内;食物电梯在1.5m/s以内;客运电梯在1m/s~1.75m/s之间。

9.6.3 自动扶梯

自动扶梯适用于商场、宾馆、车站、码头、空港等人流量大且集中的场所,由电动机械牵引。 梯段踏步连同扶手同步运行,可正逆运行。 其运行垂直高度为0~20m,速度为0.45~0.75m/s,坡度一般取30°、35°。 其载运量较大,一般为4000~13500人次/小时,如图9.49所示。

图9.48 电梯构造

图9.49 自动扶梯示意图