1
房屋建筑学(第4版)
1.3.7.4 7.4 其他材料的墙体构造
7.4 其他材料的墙体构造

7.4.1 烧结多孔砖墙体构造

(1)烧结多孔砖类型

烧结多孔砖种类很多,主要有DM系列和KP1型系列,形状尺寸如图7.31~图7.34所示。

在实际使用时,为选到符合模数的墙体,还应配以实心砖,配套使用。

(2)烧结多孔砖墙厚

DM型系列:外墙厚度为200、250、300、350、400mm,承重墙厚度为200、250、300mm;非承重墙厚度为100、150、200mm;复合夹芯墙厚度为360、390mm。

KP1系列:外墙厚度为240、370mm;内墙厚度为120、240mm;复合夹芯墙厚度为405mm。

外墙厚度的取值应符合当地保温、隔热和节能要求。

图7.31 DM1⁃1砖型用于240厚墙体

图7.32 DM2⁃2砖型

图7.33 DM3⁃1,DM3⁃2砖型

图7.34 DM2⁃1,DM2⁃2砖型

(3)烧结多孔砖的结构构造

1)基础

①地面以下或室内防潮层以下的基础不得用多孔砖砌筑,应用实心砖或其他基础材料。

②置于基础中的构造柱脚配筋与柱身纵筋相同。

2)墙身、柱

①多孔砖砌体应分皮错缝搭砌

模数多孔砖:上下皮搭砌一般为90mm,个别不得小于40mm;

KP1多孔砖:上下皮搭砌一般为115mm,个别不得小于53mm。

②砌体灰缝宽:10mm+2mm

③承重的独立多孔砖柱,截面尺寸不应小于:

模数多孔砖:290mm×390mm;

KP1多孔砖:240mm×365mm。

当梁搁置在多孔砖柱上时,梁垫应与柱截面大小相同。

④多孔砖墙身可预留竖槽(不得临时手工凿打),但不许留水平槽(经结构验算认可者除外)。

3)构造柱

①构造柱的最小截面

模数多孔砖:180mm×190mm;

KP1多孔砖:240mm×180mm。

②墙与构造柱连接的马牙槎高

模数多孔砖:100mm或200mm;

KP1多孔砖:100mm或300mm。

③不得用构造柱代替跨度大于6.6m进深梁的支承柱,而应在该梁的支座处设置承重柱,并应对此组合墙体进行约束弯矩验算。

④楼、电梯间的四角均应设置构造柱。

⑤构造柱施工应按扎筋、砌墙、支模、浇注混凝土的顺序进行,与之联结的圈梁必须现浇。砌墙时应在各层柱底(圈梁上)和该层二次浇灌段的下端留出清除模板内杂物的洞口。 浇灌前,必须将杂物清除完,并立即将洞口封闭。

4)水平配筋、水平带

①水平配筋、水平带沿层高宜均匀布置。

②水平配筋、水平带宜交圈,可在门窗口处截断,无交圈需要时,钢筋应锚入构造柱内,无构造柱时应伸入与该墙段相交的墙体内300mm。

③钢筋直径:水平配筋≤6mm,砂浆带≤8mm,混凝土带≤10mm。

④水平配筋应设在≥M5的砂浆缝中。

⑤砂浆配筋带应用≥M5的砂浆砌筑,砂浆配筋带高度

模数多孔砖:40mm;

KP1多孔砖:37mm。

⑥混凝土带高度

模数多孔砖:90、40mm;

KP1多孔砖:90、37mm。

⑦除带高37mm的水平带底部墙面砌一皮普通实心砖外,其他带高的底部应先铺10mm厚砂浆层堵住多孔砖的洞眼。

5)圈梁

①圈梁兼作过梁或梁垫时应按计算配筋。

②采用板平圈梁时,必须采用留有锚固筋头的预应力混凝土空心板,预制楼板板端伸入板平圈梁≥45mm,并应将板内主筋锚固在圈梁内,其长度≥120mm。

③采用板平圈梁时应采用硬架支模方法,施工顺序为砌墙、硬架支模、放置圈梁下部的钢筋、吊装楼板、放置圈梁上部的钢筋、浇捣混凝土。

④圈梁宜连续地设在同一水平面上,并形成封闭状态;当圈梁被门窗洞口截断时,应在洞口上部增设相同截面的附加圈梁。 附加圈梁与圈梁的搭接长度不应小于其中到中垂直间距的两倍且不得小于1m。

6)板的拉接

圈梁接点图中均表示了板端拉接筋,预制板端的拉接和板侧的拉接。

7)多孔砖墙

多孔砖墙体存在应力集中部位,都应进行局部抗压计算和采取相应的构造措施。

8)门窗过梁

因多孔砖与普通砖不同,故门窗过梁应分别按模数多孔砖和KP1多孔砖的尺寸综合考虑。 净跨为0.6~2.4m,截面为矩形、L形的各式组合过梁可按图集选用。

7.4.2 砌块墙构造

砌块墙是指利用在预制厂生产的块材所砌筑的墙体,其优点是利用素混凝土或工业废料和地方材料,制作方便,施工简单,具有较大的灵活性,同时明显减少耕地的破坏和节约能源。砌块的材料及类型很多,目前我国各地广泛采用的材料有混凝土、加气混凝土、各种工业废料、粉煤灰、煤矸石、石渣等,本书主要以混凝土空心砌块为主进行讲解。

(1)承重混凝土空心小砌块的规格

承重混凝土空心小砌块的规格详图如图7.35所示。 适用于6层及以下的住宅。

图7.35 承重混凝土空心小砌块

(2)承重混凝土空心小砌块的排列组合

砌块的排列组合主要由三部分组成:

①各种开间的窗下墙排块(内承重墙的原则类似)。

②2.70m和2.80m两种层高的剖面排块。

③窗间墙及阴阳角排块,这两部分的排块是根据各种开间、进深尺寸进行排列组合,所得各种尺寸基本上能满足设计要求。

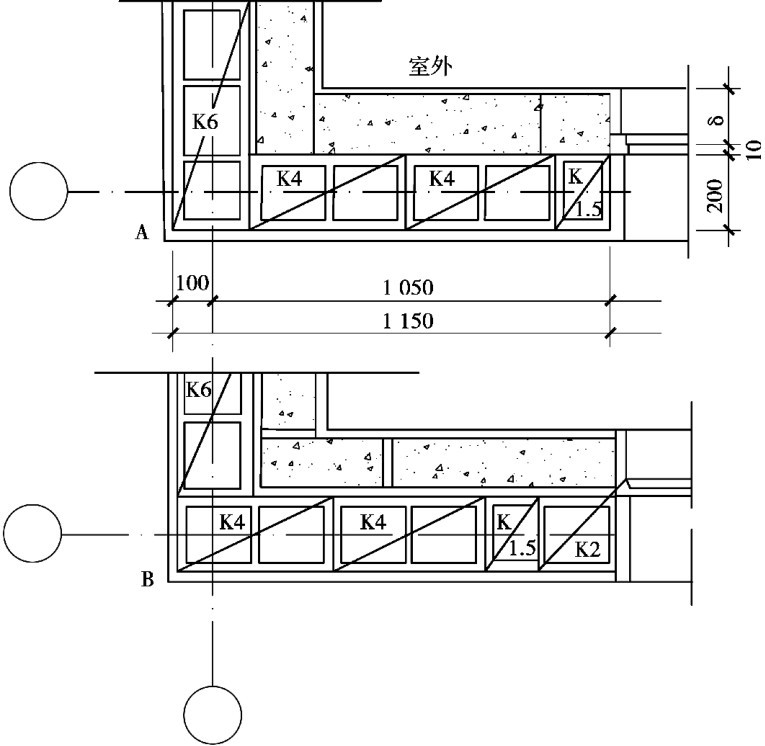
经排列组合,混凝土小型空心砌块规格,在多层住宅建筑中最多6种规格基本能满足外墙及承重墙的使用要求,即:590×190×190、390×190×190、290×190×190、190×190×190、140×190×190、90×190×190,其中590×190×190均用于内外墙“丁”字形节点,“L”形节点及“十”字形节点,大部分为标准砌块390×190×190。 如设计经周密考虑,140×190×190规格可以避免(单位均为mm)。

图7.36~图7.38介绍了几种排列组合方法。

图7.36 窗间墙排列

图7.37 阴角排列

图7.38 墙体及洞口排列

(3)承重空心小砌块的热工指标

承重空心小砌块热工指标详见表7.16。

表7.16 外墙外保温热工指标选用

(4)承重空心小砌块的结构构造与建筑构造

插筋与拉接筋的构造见图7.39,板缝与圈梁的构造见图7.40。

图7.39 插筋与拉接筋详图

图7.40 板缝与圈梁详图