1
房屋建筑学(第4版)
1.3.7.3 7.3 砖墙体构造
7.3 砖墙体构造

至今砖墙在民用建筑中仍大量使用,主要因为其自身优点有很多:生产方面的取材容易,制造简便;功能方面有一定的保温、隔热、隔声、防火、防冻效果;承重方面有一定的承载能力;施工方面操作简单,不需大型设备。当然也存在不少缺点:施工速度慢,劳动强度大;自重大,所占面积大,尤其是大量使用的烧结普通砖与农田土。 鉴于此种情况,为保护农田,克服烧结普通砖资源不足的问题,减轻建筑荷重,降低成本,走建筑工业化道路,砖墙材料的改革势在必行。

7.3.1 砖墙材料

砖墙主要由砖和胶结料砂浆两种材料组成。

砖的种类很多。 按组成材料分为烧结普通砖、灰砂砖,页岩砖、煤矸石砖,水泥砖及各种工业废料砖,如粉煤灰砖、炉渣砖等;按生产形状分为实心砖、多孔砖、空心砖等。 常用砖规格及强度等见表7.14。

(1)砖

烧结普通砖全部规格统一,称为标准砖。 其规格尺寸为240mm×115mm×53mm,每块标准砖质量约为25N。 以10mm灰缝组合时,长宽厚之比为4∶2∶1。 砌筑时以砖宽度加灰缝的倍数为模数,即115+10=125mm。 与我们现行《建筑模数协调统一标准》模数制不协调,给设计和施工造成一定困难,故在使用中,应注意这一特征。

烧结普通砖、烧结多孔砖的强度是根据标准试验方法测试的抗压强度,以强度等级来表示,单位为N/ mm2,强度等级有5级:MU30、MU25、MU20、MU15、MU10。

(2)砂浆

砂浆是砌体的胶结材料。 砖块经砂浆砌筑成墙,砂浆应将砖之间缝隙填平、密实,便于砖块承受的荷载能逐层均匀传递,同时砂浆标号一般应大于砖块标号,这是由于砂浆本身密实性小于砖块,同时利于抗震的要求。 砂浆除起嵌缝、传力作用外,还能提高防寒、隔热和隔声的能力。 砌筑砂浆除要有一定强度外,还应具备适当稠度和保水性,便于施工。

表7.14 常用砌墙砖的种类及规格

常用砌筑砂浆有水泥砂浆、水泥石灰砂浆、石灰砂浆三种。 水泥砂浆强度高,由水泥、砂加水拌和而成,属水硬性材料,可塑性及保水性较差,适应砌筑潮湿环境下的砌体,如地下室、基础等。 水泥石灰砂浆,也称为混合砂浆,由水泥、石灰膏、砂加水拌和而成,既有较高的强度,也有较好的可塑性和保水性,故广泛用于地上砌体中。 石灰砂浆由石灰膏、砂加水拌和而成,由于石灰膏为塑性掺合料,所以其可塑性很好,但强度较低,属气硬性材料,遇水强度就降低,故适宜地面以上次要建筑的砌体。

砂浆的强度等级是用龄期为28d的标准立方试块,以N/ mm2为单位的抗压强度来划分的,强度等级划分为5个级别:M15、M10、M7.5、M5、M2.5。

7.3.2 砖墙组砌方式

砖墙组砌时的关键是错缝搭接,使上下每匹砖的垂直缝交错,保证砖墙的整体性。 如果垂直缝在一条线上,即形成通缝,在荷载作用下,必使墙体的稳定性和强度降低。 砖墙组砌如图7.12所示。

图7.12 砖墙组砌名称与错缝

在砖墙的组砌中,把砖的长方向垂直于墙面砌筑的砖称为丁砖,把砖的长度平行墙面砌筑的砖称为顺砖。 上下匹之间的水平灰缝称横缝,左右两块砖之间的垂直缝称竖缝。 要求丁砖和顺砖交替砌筑,灰浆饱满,横平竖直。 烧结普通砖墙常用的组砌方式主要有如图7.13所示的几种。

7.3.3 墙的砌筑厚度与尺寸

烧结普通砖墙的厚度是按半砖的倍数确定的。 如半砖墙、一砖墙、一砖半墙、两砖墙等,相应的实际尺寸为115mm、240mm、365mm、490mm等,习惯上以它们的标志尺寸来称呼,如12墙、24墙、37墙、49墙,也可采用3/4砖墙,实际厚度为178mm,通常称为18墙。 墙厚与砖规格的关系如图7.14所示。

由于烧结普通实心砖最小单位为115mm砖宽加上10mm灰缝,共计125mm,而我国现行的《建筑模数协调统一标准》的基本模数为100mm,房屋的开间、进深采用3M的倍数,故在设计中会出现不协调现象,因砍砖过多会影响砌体强度。 调整灰缝范围很小,故墙体长度小于1m(如窗间墙、门垛)时,设计时应使其符合砖模数,如240、365、490、615、740、865、990等。 墙段长度超过1m时,可不再考虑砖模数。

门窗洞口位置和墙段尺寸应满足结构需要的最小尺寸。 为了避免应力集中在小墙段上而导致墙体的破坏,对转角处的墙段和承重窗间墙尤应注意。 图7.15为多层房屋窗间墙宽度限值,可供设计时参考。

图7.13 砖墙组砌方式

图7.14 墙厚与砖规格的关系

图7.15 多层房屋窗间墙宽度限值

在抗震设防地区,砖墙的局部尺寸应符合现行《建筑抗震设计规范》,具体尺寸见表7.15。

7.3.4 砖墙的细部构造

砖砌墙体由多种构件组成。 为保证墙体的耐久性,满足各构件的使用功能要求及墙体与其他构件的连接,应在相应的位置进行构造处理,这就是砖墙的细部构造,主要包括:散水、排水沟、勒脚、门窗洞口、墙身加固及变形缝等。

表7.15 房屋的局部尺寸/m

注:非承重外墙尽端至门窗洞边的宽度不得小于1m。

(1)散水、排水沟

为防止雨水对建筑物墙基的侵蚀,常在外墙的四周用多种建筑材料将地面做成向外倾斜的坡面,以便将地面雨水等排至远处,这一坡面称为散水;将雨水等有组织地导向地下排水井等而在建筑物四周设置的沟称为排水沟。

1)散水

散水的做法很多,有素土夯实砖铺,块石、碎石、三合土、灰土、混凝土等。 宽度一般为600~1000mm,厚度为60~80mm,坡度一般不小于3%。 当屋面排水为自由落水时,散水宽度应比屋面檐口宽出200mm,但在软弱土层,湿陷性黄土层地区,散水宽度一般应大于等于1500mm。 由于建筑物的自沉降,外墙勒脚与散水施工时间的差异,在勒脚与散水交接处,应留有缝隙,缝内填沥青砂嵌缝连接,以防渗水。 散水整体面层为防止温度应力及散水材料干缩造成的裂缝,在长度方向每隔6~12m做一道伸缩缝并在缝中填沥青砂,如图7.16。

图7.16 散水构造做法

2)排水沟

一般采用明沟,但不适用于软土层和湿陷性黄土层地区,如图7.17。

图7.17 明沟构造做法

(2)勒脚

勒脚是外墙接近室外地面的部分。 其高度一般指室内地坪与室外地面的高差部分。 现在大多将其提高到底层窗台。 它起着保护墙身、增加比例效果和美观的作用。由于砌体墙本身存在很多微孔,极易受到地表水和土壤水的渗入,致使墙身受潮冻融破坏,饰面发霉、脱落,加之外力的碰撞,雨雪的不断侵蚀,使勒脚造成损坏,如图7.18。

图7.18 墙身受潮示意

故在构造上应争取防护措施,选用耐久性高、防水性能好的材料。 做法中结合建筑造型确定其高矮、色彩。勒脚常用的做法有:

1)坚固材料勒脚

采用天然石料,如条石、蘑菇条石、混凝土等坚固耐久的材料代替砖砌外墙,高度可砌筑至室内地坪或按设计用于潮湿地区、高标准建筑或有地下室的建筑,如图7.19(a)。

2)抹灰类勒脚

可采用20~25mm厚1∶3水泥砂浆抹面、1∶2水泥石子(根据立面设计确定水泥和石子种类及颜色)水刷石或斩假石等抹面。 此法多用于一般建筑,如图7.19(b)。

3)贴面勒脚

可用人工石材或天然石材贴面,如水磨石板、陶瓷面砖、花岗石、大理石等。 贴面勒脚耐久性强,装饰效果好,多用于标准较高的建筑,如图7.19(c)。

图7.19 勒脚

(3)墙身防潮

因墙体位于基础之上,部分墙身与土壤层接触,且本身又是多孔材料构成,常受到有地表水和地潮的侵袭,致使墙身受潮,饰面层脱落,降低其坚固耐久性,影响室内环境卫生。 故需在勒脚处做好墙身防潮,如图7.20。 其构造方式有水平防潮和垂直防潮两种。

1)水平防潮

水平防潮是对建筑物内外墙体沿勒脚处设水平方向的防潮层,以隔绝地下潮气等对墙身的影响。

水平防潮层设置位置一般有两种:当室内地面垫层为混凝土等密实不透水材料时,应设在垫层范围之内,即低于室内地坪60mm处,如图7.20(a)所示;当室内地面垫层为透水性材料时(如砖、碎石等),其位置应平齐或高于室内地面60mm处,如图7.20(b)所示。

图7.20 墙身防潮层位置

①防潮层的常规做法有三种:

油毡防潮层:先抹20mm水泥砂浆找平层,上铺一毡二油。 此种做法防水效果好,有一定韧性延伸性,能抵抗地基微小变形,但降低了上下砌体之间的黏结力,削弱了墙体的整体性,故不适应于下端按固定端考虑的砌体及抗震设防地区。 同时油毡易老化,使用年限一般20年左右,长期使用将失去防潮作用,故目前已较少采用。

②防水砂浆防潮层:采用1∶2水泥砂浆加3%~5%的防水剂,厚度为20~25mm或用防水砂浆砌筑2~4匹砖作防潮层,能克服油毡防潮层缺点,适用于抗震设防地区和一般的砖砌体中,但因其属脆性材料,自身干缩性和抗压强度弱,容易开裂及压碎,故不适用于地基会产生微小变形的建筑中,如图7.21(c)所示。

图7.21 勒脚水平防潮层

③细石混凝土防潮层:采用60mm厚C15~C20细石混凝土,内配3Φ6Ⅰ级钢筋,其防潮和抗裂性极好,并与砌体紧密合为一体,故适用于整体刚度要求较高的建筑中,如图7.21(d)所示。

2)垂直防潮

当室内地坪出现高差或室内地坪低于室外地面时,为避免室内高地坪房间或室外地面填土中的潮气侵入墙身,不仅要按地坪高差的不同在墙身设置两道水平防潮层外,对有高差部分的垂直墙面在填土一方沿墙设置防潮层。 做法是在两道水平防潮层之间的垂直墙面上,先用水泥砂浆抹面,再涂冷底子油一道,垫沥青两道(或用防水砂浆抹面处理),如图7.21(c)所示。

(4)窗洞口构造

1)门窗过梁

当墙体上开设门窗洞口时,为了承受洞口上部砌体传来的各种荷载,并把这些荷载传给洞口两侧的墙体,常在门窗洞口上设置横梁,即门窗过梁。

过梁的形式较多,常见的有砖拱过梁、钢筋过梁和钢筋混凝土过梁三种。

①砖拱过梁。

砖拱过梁有平拱和弧拱两种,是我国传统做法(如图7.22)。 将立砖和侧砖相间砌筑,使灰缝上宽下窄相互挤压便形成了拱的作用。 平拱高度不小于240mm,灰缝上部宽度不大于20mm,下部不小于5mm,拱两端下部伸入墙内20~30mm,中部的起拱高度约为跨度L的1/50,受力后拱体下落时,落成为水平。 弧拱的适宜跨度L为1.0~1.8m,弧拱高度不小于120mm,其余同平拱砌筑方法,由于起拱高度大,跨度也相应增大。 当拱高为(1/12~1/8)L时,跨度L为2.5~3.0m;当拱高为(1/5~1/6)L时,跨度L为3.0~4.0m。 砖拱过梁的砌筑砂浆标号不低于Μ10级,砖标号不低于MU7.5级才能保证过梁的强度和稳定性。 砖拱过梁节约钢材和水泥,但施工麻烦,整体性较差,不宜用于上部有集中荷载、振动较大、地基承载力不均匀以及地震区的建筑。

图7.22 砖拱过梁

②钢筋砖过梁。

钢筋砖过梁是在砖缝里配置钢筋,形成可以承受荷载的加筋砖砌体。 半砖厚墙采用2根Φ6钢筋,24墙放置4根 Φ6钢筋,放在洞口上部的砂浆层内,砂浆层为1∶3水泥砂浆30厚,钢筋两边伸入支座长度不小于240mm,并加弯钩,也可以将钢筋放入洞口上部第一皮和第二皮砖之间。 为使洞口上的部分砌体和钢筋构成过梁,常在相当于1/4跨度的高度范围内(不少于五皮砖),用不低于Μ5级砂浆砌筑(图7.23)。

图7.23 钢筋砖过梁

钢筋砖过梁适用于跨度不大于1.5m,上部无集中荷载的洞口上。 它施工方便,整体性好,墙身为清水墙时,建筑立面易于获得与砖墙统一的效果。

③钢筋混凝土过梁。

当门窗洞口较大或洞口上部有集中荷载时,常采用钢筋混凝土过梁,它坚固耐用,施工简便,目前被广泛采用。 钢筋混凝土过梁有现浇和预制两种,梁高及配筋由计算确定。 为了施工方便,梁高应与砖皮数相适应,以方便墙体连续砌筑,故常见梁高为60mm、120mm、180mm、240mm,即60mm的倍数。 梁宽一般同墙厚,梁两端支承在墙上的长度每边不少于240mm,以保证足够的承压面积。 过梁断面形式有矩形和L形,矩形多用于内墙和混水墙,L形多用于外墙和清水墙,在寒冷地区,为了防止过梁内壁产生冷凝水,可采用L形过梁或组合式过梁(图7.24)。

图7.24 钢筋混凝土过梁

为简化构造,节约材料,可将过梁与圈梁、悬挑雨篷、窗楣板或遮阳板等结合起来设计。 如在南方炎热多雨地区,常从过梁上挑出300~500mm宽的窗楣板,既保护窗户不淋雨,又可遮挡部分直射太阳光(图7.24(f))。

2)窗台

当室外雨水沿窗向下流淌时,为避免雨水聚积窗洞下部,并沿窗下框向室内渗透污染室内,常在窗洞下部靠室外一侧设置一泄水构件——窗台。 窗台应向外形成一定坡度,以利排水。

窗台有悬挑窗台和不悬挑窗台两种。 悬挑窗台常采用顶砌一皮砖或将一砖侧砌并悬挑60mm,也可预制混凝土窗台。 窗台表面用1∶3水泥砂浆抹面做出坡度,挑砖下缘粉出滴水,以防止雨水沿滴水槽口下落,污染外墙(图7.25)。

图7.25 窗台形式

3)窗套和腰线

窗套是由带挑檐的过梁、窗台和窗边挑出立砖构成,外抹水泥砂浆后,可再刷白灰浆或作其他装饰。 腰线是指过梁和窗台形成的上下水平线条,外抹水泥砂浆后刷白灰浆或作其他装饰(图7.26)。

图7.26 窗套与腰线

(5)檐部做法

由于檐部做法涉及屋面的部分内容,这里只作一些粗略的介绍。

1)挑檐板

挑檐板的做法有预制钢筋混凝土板和现浇钢筋混凝土板两种。 挑出尺寸不宜过大,一般以不大于500mm为宜。

2)女儿墙

女儿墙是墙身在屋面以上的延伸部分,其厚度可以与下部墙身一致,也可以使墙身适当减薄。 女儿墙的高度取决于屋面上人不上人,不上人高度应不小于800mm,上人高度应不小于1300mm。

3)斜板挑檐

斜板挑檐是由女儿墙和挑檐板,另加斜板共同构成的屋檐做法,其尺寸应符合前两种做法的规定。

(6)墙身加固构造

如果墙体受到集中荷载、开洞过长以及地震等因素影响,致使墙体稳定性有所下降,这时,须考虑对墙体采取加固措施。

1)增设门垛和壁柱

当洞口开在两墙转角处或丁字墙交接处时,为了便于门框的安装和墙体的稳定性,须在门洞靠墙转角部位或丁字交接的一边设置门垛,门垛宽度同墙厚,长度一般为120 mm或240mm,如图7.27(a)(b)所示。

当墙体的窗间墙上出现集中荷载,而墙厚又不足以承受其荷载;或当墙体的长度和高度超过一定限度并影响墙体稳定性时,通常在墙体局部适当位置增设凸出墙面的壁柱来提高墙体刚度。 壁柱尺寸一般为120mm×370mm、240mm×370mm、240mm×490mm等,以砖模数为准,如图7.27(c)所示。

图7.27 门垛、壁柱

2)增设圈梁和构造柱

在设计要求中已详述。

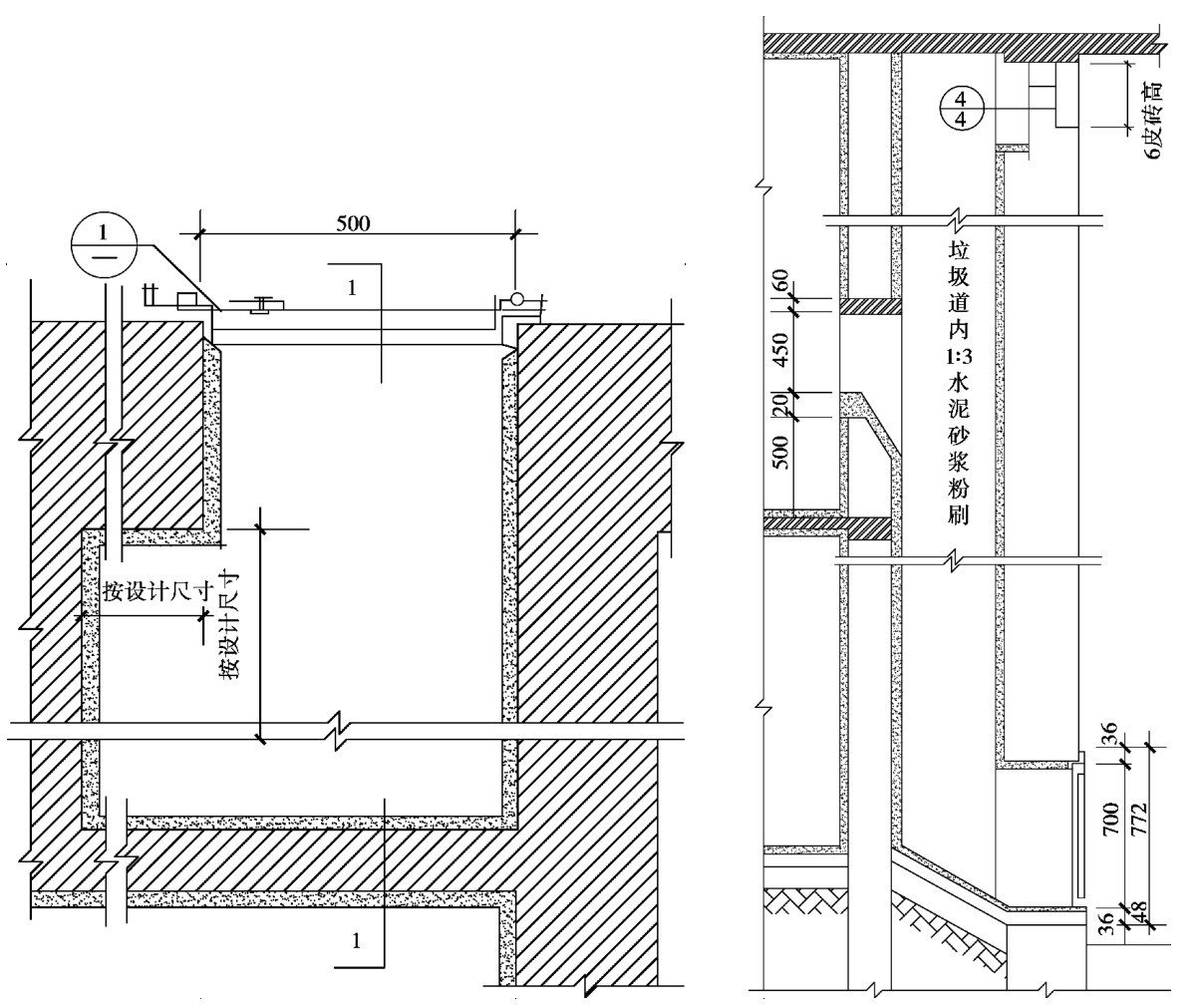
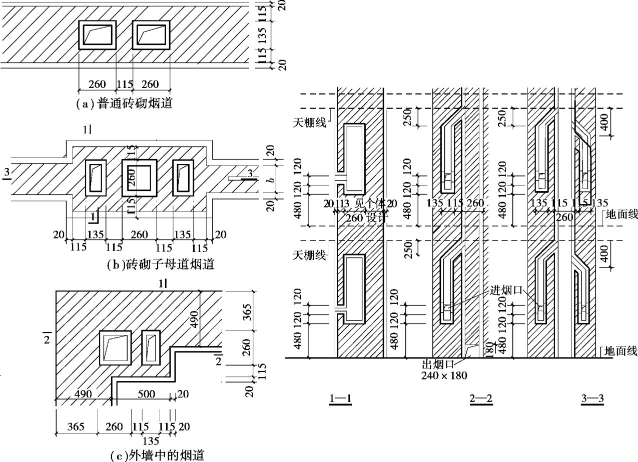
(7)烟道、通风道和垃圾道

在住宅或其他民用建筑中,为了排除炉灶的烟气或其他污浊空气,常在墙内设置烟道和通风道,在楼梯间设置垃圾道。

烟道和通风道分为现场砌筑和预制构件进行拼装两种做法。

砖砌烟道和通风道的断面尺寸应根据排气量来决定,但不应小于120mm×120mm。 烟道和通风道除单层房屋,均应有进气口和排气口。 烟道的排气口在下,距楼板1m左右较合适;通风道的排气口应靠上,距楼板底300mm较合适。 烟道和通风道不能混用,以避免串气(图7.28)。 混凝土烟风道,一般为每层一个预制构件,上下拼接而成,其形状如图7.29。

垃圾道亦分为现场砌筑或预制构件进行拼装两种做法。 其断面尺寸应根据垃圾量及清理周期来决定,但住宅一般不应小于500mm×600mm;其他民用建筑为600mm×600mm~600mm×1000mm,其做法及断面形状如图7.30。 目前住宅建筑设计中已较少采用。

图7.28 砖砌烟道

图7.29 通风道

图7.30 垃圾道构造详图