1
房屋建筑学(第4版)
1.3.2.1 2.1 使用部分的平面设计
2.1 使用部分的平面设计

建筑物使用部分的各类房间,是构成建筑物的基本单元,单个房间的设计是建筑平面设计的基础。

2.1.1 主要房间的设计

(1)房间的分类和设计要求

①从房间的功能要求来分类有:

a.生活用房:居住建筑中的起居室、卧室等;

b.工作学习用房:各类建筑中的办公室、值班室,学校的教室、实验室等;

c.公共活动用房:商场的营业厅,剧院、电影院的观众厅、休息厅等。

一般说来,生活、工作和学习用房要求安静,少干扰,由于人们在其中停留时间相对较长,因此希望能有较好的朝向;公共活动用房的主要特点是人流比较集中,进出频繁,因此人们活动和通行的组织比较重要,特别是人流的疏散问题较为突出。 对使用房间进行分类,有助于平面组合中对不同房间进行分组和功能分区。

②对房间平面设计的要求主要有:

a.房间的面积、形状和尺寸要满足室内使用活动和家具、设备合理布置的要求;

b.门窗的大小和位置,应考虑出入方便,疏散安全,采光通风良好;

c.房间的构成应使结构布置合理,施工方便,也要有利于房间之间的组合,所用材料要符合相应的建筑标准;

d.室内空间以及顶棚、地面、各个墙面和构件细部,要考虑人们的使用和审美要求。

(2)房间的面积

主要使用房间面积的大小,是由房间内部活动特点、使用人数的多少、家具设备的数量和布置方式等多种因素决定的,例如住宅的起居室、卧室面积相对较小;剧院、电影院的观众厅,除了人多、座椅多外,还要考虑人流迅速疏散的要求,所需的面积就大。

为了深入分析房间内部的使用要求,我们把一个房间内部的面积,根据它们的使用特点分为以下几个部分:

①家具或设备所占面积;

②人们在室内的使用活动面积(包括使用家具及设备时,近旁所需的面积);

③房间内部的交通面积。

图2.2为教室和住宅卧室中室内使用面积分析示意图。

图2.2 教室及卧室中室内使用面积分析示意图

影响房间面积大小的因素概括起来有以下几点:

1)容纳人数

从图2.2中我们看出房间面积大小与使用要求有关。 无论是家具设备所需的面积还是人们活动及交通面积,都与房间的规模及容纳人数有关。 如设计一个教室,就必须首先弄清教室的规模,容纳多少学生上课、布置多少课桌椅;确定餐厅的面积大小则主要取决于就餐人数及就餐方式;而图书馆的书库面积大小决定于藏书的册数等。 一般说来,规模大、容纳人数多的房间,面积也需要大些。

在实际工作中,房间面积的确定主要是依据我国有关部门及各地区制订的面积定额指标。根据房间的容纳人数及面积定额就可以得出房间的总面积。 应当指出:每人所需的面积除面积定额指标外,还需要通过调查研究并结合建筑物的标准综合考虑。 表2.1是部分民用建筑房间面积定额参考指标。

表2.1 部分民用建筑房间面积定额参考指标

有些建筑的房间面积指标未作规定,使用人数也不固定,如展览室、营业厅等,这就要求设计人员根据设计任务书的要求,对同类型、规模相近的建筑进行调查研究,充分掌握使用特点,结合经济条件,通过分析比较得出合理的房间面积。

2)家具设备及人们使用活动面积

任何房间为满足使用要求,都需要合理布置一定数量的家具、设备。 如卧室中的床、桌椅、衣柜等;陈列室中的展板、陈列台、陈列柜等;教室中的课桌椅、黑板、讲台等;卫生间中的大小便器、洗脸盆等。 这些家具、设备的数量和布置方式以及人们使用它们所需的活动面积,直接影响房间使用面积的大小。

(3)房间的形状

民用建筑常见的房间形状有矩形、方形、多边形、圆形等。 在具体设计中,应从使用要求、结构形式、经济条件、美观等方面综合考虑,选择合适的房间形状。 一般民用建筑的房间形状常采用矩形,其主要原因如下:

①矩形平面体型简单,墙体平直,便于家具布置和设备的安排,使用上能充分利用室内有效面积,有较大的灵活性。

②矩形平面结构布置简单,便于施工。 一般的民用建筑,常采用墙体承重的梁板构件布置。 以中小学教室为例,矩形平面的教室由于进深和面宽较大,如采用预制构件,结构布置方式通常是横墙承重,即纵墙搁梁,楼板支承在大梁和横墙上,这种方式有利于统一构件类型,简化施工工序,提高经济效益。 对于面积较小的房间,则结构布置更为简单,可将同一长度的板直接支承在横墙或纵墙上。

③矩形平面便于统一开间、进深,有利于平面及空间的组合。 如学校、办公楼、旅馆等建筑常采用矩形房间沿走道一侧或两侧布置,统一的开间和进深使建筑平面布置紧凑,用地经济。当房间面积较大时,为保证良好的采光和通风,常采用沿外墙长向布置的组合方式。

当然,矩形也不是唯一的平面形式。 就中小学教室而言,在满足视听及通行要求的条件下,也可采用方形及六角形平面(图2.3)。 方形教室的优点是进深加大,长度缩短,外墙减少,交通线路也相应缩短,同时,方形教室缩短了最后一排的视距,视听条件有所改善,但为了保证水平视角的要求,前排两侧均不能布置课桌椅。

图2.3 教室的平面形式及课桌椅的布置

对于一些有特殊功能要求的房间如影剧院的观众厅、体育馆的比赛大厅等,则应根据其特殊的使用要求而采用合适的形状。 观众厅或比赛大厅的平面形状一般有矩形、钟形、扇形、圆形、多边形等多种形状(图2.4)。

图2.4 影剧院观众厅和体育馆比赛大厅的平面形状及剖面示意

图2.5 某小学平面图

房间形状的确定,不仅仅取决于功能、结构和施工条件,也要考虑房间的空间艺术效果。 在空间组合设计中,常常将圆形、多边形及不规则形状的房间与矩形房间组合在一起,形成强烈的对比,丰富建筑造型。 如图2.5所示的某小学平面图,教室、音乐教室、阅览室等采用六角形平面,使整个建筑显得生动活泼,富有朝气。

(4)房间的尺寸

房间尺寸是指房间的面宽和进深,而面宽常常是由一个或多个开间组成。 在初步确定了房间的面积和形状之后,确定合适的房间尺寸便是一个重要问题了。 房间的平面尺寸一般应从以下几方面进行综合考虑:

1)满足家具设备布置及人们活动要求

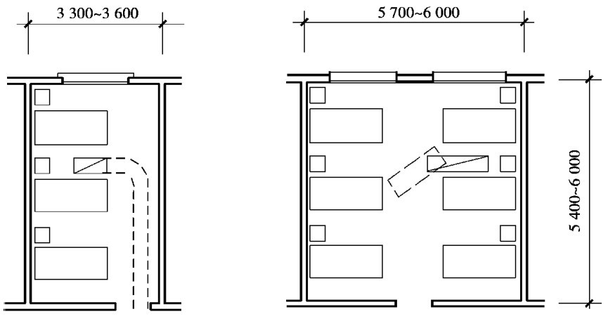
如卧室的平面尺寸应考虑床的大小、家具的相互关系、床位布置的灵活性。 主要卧室要求床两个方向都可布置,因此开间尺寸应保证床横放后剩余的墙面还能开一扇门,常取3.30m;深度方向应考虑横竖两个床中间再加一个床头柜或衣柜,常取3.90~4.50m。 小卧室考虑床竖放以后能开一扇门或放床头柜,开间尺寸常取2.70~3.00m(图2.6)。 医院病房主要是满足病床的布置及医护活动的要求,3~4人的病房开间尺寸常取3.30~3.60m,6~8人的病房开间尺寸常取5.70~6.00m(图2.7)。

图2.6 卧室的开间和进深

图2.7 病房的开间和进深

2)满足视听要求

有的房间如教室、会堂、观众厅等的平面尺寸除满足家具设备布置及人们活动要求外,还应保证有良好的视听条件。 为使前排两侧座位不致太偏,后面座位不致太远,必须根据水平视角、视距、垂直视角的要求,充分研究座位的排列,确定合适的房间尺寸。

从视听的功能考虑,教室的平面尺寸应满足以下的要求(图2.8):

①为防止第一排座位距黑板太近(垂直视角太小易造成学生近视),第一排座位距黑板的距离必须≥2.00m,以保证垂直视角大于等于45°。

②为防止最后一排座位距黑板太远(视距过大影响学生的视觉和听觉),后排距黑板的距离不宜大于8.50m。

③为避免学生过于斜视而影响视力,水平视角(即前排边座与黑板远端的视线夹角)应≥30°。 按照以上要求,并结合家具设备布置、学生活动要求、建筑模数协调统一标准的规定,中学教室平面尺寸常取6.30×9.00(m)、6.60×9.00(m)、6.90×9.00(m)等。

图2.8 教室布置及有关尺寸

a≥2000mm;b小学>850mm,中学>900mm,c>600mm;d小学≤8000mm,中学≤8500mm;e>120mm;f>550mm

3)有良好的天然采光

民用建筑除少数特殊要求的房间如演播室、观众厅等以外,均要求有良好的天然采光。 一般房间多采用单侧或双侧采光,因此,房间的深度常受到采光的限制。 为保证室内采光的要求,一般单侧采光时进深不大于窗上口至地面距离的2倍,双侧采光时进深可较单侧采光时增大一倍。 图2.9为采光方式对房间进深的影响。

图2.9 采光方式对房间进深的影响

4)有合适的比例

相同面积的房间,因面宽和进深尺寸的不同而形成不同的相互比例。 比例得当的房间,常常是使用方便而且视觉观感好的,而比例失调如面宽较小而进深过大的房间,则常常是既不好用也不美观的。 一般说来,房间的比例在1∶1~1∶2为宜,能控制在1∶1.5左右为最好。

5)结构布置经济合理

一般民用建筑常采用墙体承重的梁板式结构和框架结构体系。 房间的开间、进深尺寸应尽量使构件标准化,同时使梁板构件符合经济跨度要求。 较经济的开间尺寸是不大于4.20m,钢筋混凝土梁较经济的跨度是不大于9.00m。 对于由多个开间组成的大房间,如教室、会议室、餐厅等,应尽量统一开间尺寸,减少构件类型。

6)符合建筑模数协调统一标准

为提高建筑工业化水平,必须统一构件类型,减少构件规格,这就需要在房间的开间和进深上采用统一的模数,作为协调建筑构件尺寸的基本标准。 按照建筑模数协调统一标准的规定,房间的开间和进深一般宜采用2n M、3n M(n为自然数)。

(5)房间的门窗设置

房间门的作用是供人出入和各房间交通联系,有时也兼采光和通风。 窗的主要功能是采光、通风,同时门窗也是外围护结构的组成部分。 因此,门窗设计是一个综合性的问题,它的大小、数量、位置及开启方式,会直接影响到房间的通风和采光、家具的布置、房间面积的有效利用、人流活动及交通疏散、建筑外观及经济性等各个方面。

1)门的宽度及数量

房间中门的最小宽度,是由通过人流多少及需要搬进房间的家具设备的大小决定的。 一般单股人流通行的最小宽度取550~600mm,一个人侧身通行需要300mm宽。 门的最小宽度一般为700mm,常用于住宅中的厕所、浴室。 住宅中卧室门的宽度常取900mm,这样的宽度可使一个携带物品的人方便地通过,也能搬进床、柜等尺寸较大的家具(图2.10)。 厨房、阳台的门宽可取800mm,这些较小的门窗开启时可以少占室内的使用面积,对于住宅这类平面要求紧凑的建筑,显得尤其重要。 住宅入户门考虑家具尺寸增大的趋势,常取1000mm。 普通教室、办公室等的门应考虑一人正常通行,另一人侧身通行,常采用1000mm。

当房间面积较大,使用人数较多时,单扇门宽度小,不能满足通行要求,应相应增加门的宽度或数量。 当门宽大于1000mm时,为了开启方便和少占使用面积,应根据使用要求采用双扇门或多扇门。 双扇门的宽度可为1200~1800mm,四扇门的宽度可为2400~3600mm。

图2.10 门宽度示意图

按照《建筑设计防火规范》(GB50016—2014)的要求,公共建筑内房间的疏散门数量经计算确定且不应少于2个。 对于一些大型公共建筑如影剧院的观众厅、体育馆的比赛大厅等,由于人流集中,为保证紧急情况下人流迅速、安全地疏散,所有内门、外门、楼梯和走道的各自总净宽度,应根据疏散人数按每100人的最小疏散净宽度规定计算确定。

2)窗的面积

为获取良好的天然采光,保证房间有足够的照度值,房间必须开窗。 窗户面积大小主要根据房间的使用要求、房间面积及当地日照情况等因素来考虑。 不同使用要求的房间对采光要求不同。 设计时可根据窗地面积比(窗洞口面积之和与房间地面面积之比)进行窗口面积的估算,也可先确定窗口面积,然后按表2.2中规定的窗地面积比值进行验算。

当然,采光要求也不是确定窗口面积的唯一因素,还应结合通风要求、朝向、建筑节能、立面设计、建筑经济等因素综合考虑。 南方地区气候炎热,可适当增大窗口面积以争取通风量,寒冷地区为防止冬季热量从窗口过多散失,在保证采光要求下可适当减小窗口面积。 有时,为了取得一定立面效果,窗口面积可根据造型设计的要求统一考虑。

表2.2 民用建筑采光等级表

注:∗表示采光不足部分应补充人工照明。

3)门窗位置

房间门窗位置直接影响到家具布置、人流交通、采光、通风等。 因此,合理地确定门窗位置是房间设计的又一重要环节。

①门窗位置应尽量使墙面完整,便于家具设备布置和合理组织人流通行。 图2.11分别表示观众厅、集体宿舍和卧室门的位置。

②门窗位置应有利于采光通风。 窗口在房间中的位置决定了光线的方向及室内采光的均匀性。 图2.12为普通教室开设的侧窗。 其中图(a)、(b)三个窗相对集中,窗间设小柱或小段实墙,光线集中在课桌区内,暗角较小,采光均匀。 图(c)窗均匀布置在每个相同开间的中部,当窗宽不大时,窗间墙较宽,在墙后形成较大阴影区,影响该处桌面亮度。

房间的自然通风由门窗来组织,门窗在房间中的位置决定了气流的走向,影响到室内通风效果。 因此,门窗位置应尽量使气流通过活动区,加大通风范围,并应尽量使室内形成穿堂风。图2.13为门窗位置对气流的影响。

图2.11 房间门的位置关系图

图2.12 教室侧窗的布置

图2.13 门窗平面位置对气流组织的影响

③门的位置应方便交通,利于疏散。 在使用人数较多的公共建筑中,为便于人流交通和紧急情况下人们迅速、安全地疏散,门的位置必须与室内走道紧密配合,使通行线路便捷。

④门窗的开启方向一般有外开和内开,大多数房间的门均采用内开方式,以防止门开启时影响室外的人行交通。对于公共建筑中面积超过60m2,且容纳人数超过50人的房间,如观众厅、候车厅、营业厅、合班教室等,为确保安全疏散,这些房间的门必须向外开。

有的房间由于平面组合的需要,几个门的位置比较集中,并且经常需要同时开启,这时要注意协调几个门的开启方向,防止门开启时相互碰撞和妨碍人们通行(图2.14)。 为避免窗扇开启时占用室内空间,大多数的窗采用外开方式或推拉开启方式。

图2.14 门的相互位置关系

2.1.2辅助房间的设计

民用建筑除了主要使用房间以外,还有很多辅助性房间。 不同类型的建筑有不同的辅助用房,而其中厕所、盥洗室、浴室、厨房是最为常见的。 辅助用房设计往往不为人们所重视,而它们又是不可缺少的服务性房间,是建筑设计中不可忽视的一部分。

辅助使用房间的设计原理和方法与主要使用房间基本相同。 但由于在这类房间中大都布置有较多的管道、设备,因此,房间的大小及布置较多地受到设备尺寸的影响。

(1)厕所设计

厕所可分为专用厕所和公用厕所。

1)厕所设备及数量

厕所卫生设备主要有大便器、小便器、洗手盆、污水池等。

大便器有蹲式和坐式两种,可根据建筑标准及使用习惯分别选用。 蹲式大便器使用卫生,便于清洁,适用于使用频繁的公共建筑如学校、医院、办公楼、车站等。 而标准较高的坐式大便器则适合在宾馆、敬老院等使用人数少或者老年人使用的建筑中采用。

小便器有小便斗和小便槽两种。 图2.15为厕所设备及组合所需的尺寸。

卫生设备的数量及小便槽的长度主要取决于使用人数、使用对象、使用特点。 经过实际调查和经验总结,一般民用建筑每一个卫生器具可供使用的人数可参考表2.3。

表2.3 部分建筑厕所设备参考指标

注:一个小便器折合0.6m长的便槽。

图2.15 厕所设备及组合尺寸

2)厕所的布置

厕所的平面形式可分为两种:一种是公共厕所;另一种是专用厕所。 公共厕所应设置前室,用以改善通往厕所的走道和过厅的卫生条件,并有利于厕所的隐蔽。 前室既可男女分设,也可合用,前室内一般设有洗手盆及污水池,为保证必要的使用空间,前室的深度应不小于1.5~2.0m。 专用厕所由于使用的人少,通常是盥洗、浴室、厕所三个部分组成一个卫生间,例如在住宅、旅馆等建筑中就是如此。 图2.16为住宅卫生间的平面布置实例,图2.17为旅馆客房卫生间布置实例,图2.18为公共卫生间布置实例。

图2.16 住宅卫生设备及布置方式

图2.17 旅馆客房布置实例

图2.18 公共卫生间布置实例

(2)浴室、盥洗室设计

浴室和盥洗室的主要设备有洗脸盆、污水池、淋浴器、浴盆等。 除此之外,公共浴室还有更衣室,其中主要设备有挂衣钩、衣柜、更衣凳等。 设计时可根据使用人数确定卫生器具的数量(见表2.4),同时结合设备尺寸及人体活动所需的空间尺寸进行房间布置。 图2.19、图2.20分别表示浴室设备及其组合尺寸。

表2.4 浴室、盥洗室设备个数参考指标

(3)厨房设计

这里主要讲住宅、公寓内每户使用的专用厨房,而食堂、餐厅、饭店等的厨房,其基本原理和设计方法与家用厨房是基本相同的,不同之处在于使用人数多,面积更大,设备更多,技术要求也更为复杂。 家用厨房的主要设备有灶台、案台、洗涤池、储藏设施及排烟装置等,从使用情况来看,家用厨房包括厨房、餐厅合用和厨房、餐厅分开两种情况。

图2.19 洗脸盆、浴盆设备及组合尺寸

图2.20 沐浴设备及组合尺寸

厨房设计应解决好采光和通风、储藏设施、排水等问题。

厨房的布置形式有单排、双排、L形、U形等几种,图2.21为厨房布置的几种形式。

图2.21 厨房的几种布置形式