目录

  • 第一单元/表现技法概述
    • ● 第一课时/建筑设计表现技法的定义与意义
    • ● 第二课时/建筑设计表现技法的形式与内容
    • ● 第三课时/建筑设计表现技法的发展趋势
    • ● 第四课时/建筑设计表现技法的价值评判
    • ● 第五课时/学习方法和学习任务
  • 第二单元/手绘造型基础
    • ● 第一课时/正投影图及阴影的绘图原理
    • ● 第二课时/轴测图的绘制与表现
    • ● 第三课时/透视图的成图原理及分类
    • ● 第四课时/一点透视图的绘制与表现
    • ● 第五课时/两点透视图的绘制与表现
    • ● 第六课时/斜面的透视
    • ● 第七课时/圆的透视与细部透视
    • ● 第八课时/三点透视与鸟瞰图
    • ● 第九课时/镜像透视与透视阴影
  • 第三单元/色彩基础与工具运用
    • ● 第一课时/色彩学基础知识
    • ● 第二课时/表现图中的色彩运用
    • ● 第三课时/水彩水粉的色彩特点
    • ● 第四课时/马克笔的色彩特点
    • ● 第五课时/彩色铅笔的色彩特点
    • ● 第六课时/喷绘表现
  • 第四单元/建筑手绘训练
    • ● 第一课时/钢笔线条训练/线与面的表达
    • ● 第二课时/建筑草图绘制方法/构图落幅
    • ● 第三课时/建筑配景的基础练习
    • ● 第四课时/建筑光影与材质表现
  • 第五单元/单幅效果图表现
    • ● 第一课时/铅笔/彩色铅笔效果图绘制与表现
    • ● 第二课时/钢笔效果图绘制/线条训练
    • ● 第三课时/钢笔/马克笔效果图表现
    • ● 第四课时/效果图的后期处理
  • 第六单元/建筑方案总体表现
    • ● 第一课时/建筑设计方案快题表现
    • ● 第二课时/标书设计
    • ● 第三节/展板设计
  • 第七单元/作品赏识
    • ● 第一节/名家作品欣赏
    • ● 第二节/学生优秀手绘作业评析
      • ● 20级学生优秀作业]
        • ● 正投影表现作业
        • ● 轴测效果图
        • ● 一点透视图
    • ● 第三节/学生毕业设计作品评析
  • 第八单元/课程总结
    • ● 第一节/课程组织总结
    • ● 第二节/教学团队介绍
    • ● 第三节/教师课堂示范作品展示
    • ● 第四节/参赛项目
第八课时/三点透视与鸟瞰图


学习目标

研究透视作图法,灵活运用建筑设计的平面图、立面图,准确、快速地绘制建筑空间的立体效果图。


学习重点

理解透视图形成的原理,掌握三点透视的绘制原理、方法和步骤,掌握建筑室内外环境特征表达与透视形态的选择。


学习建议

从理解透视投影原理,简单的形体透视出发,由浅入深,由易到难,熟练掌握各种实用的建筑透视图作图方法和技巧。



三点透视:

视点从低处往高处望或从高处往低处看一立方体时,构成立方体的三组平行线均与画面不平行,透视图有三个消失点,这就是倾斜透视也称为三点透视。











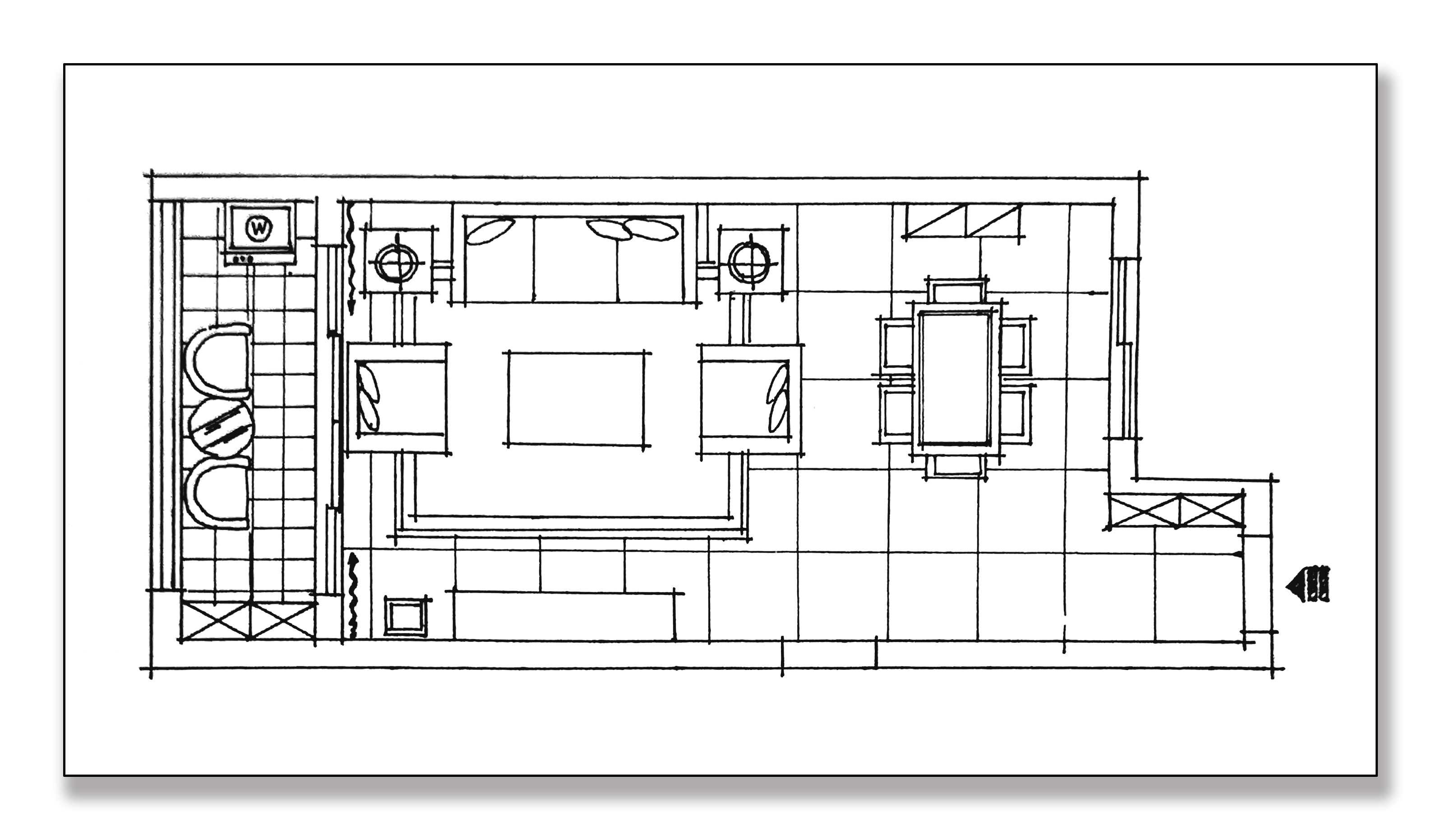
建筑室内鸟瞰图的表现过程


例题一










建筑室内鸟瞰图的表现过程


例题二



建筑室内鸟瞰图的表现过程


例题三



建筑室内鸟瞰图的表现过程


例题四








建筑室内鸟瞰图的表现过程


例题五









网格法制作鸟瞰透视图


网上拓展资源:

建筑效果图阴影,马克笔表现。(视频节选自风暴手绘)