目录

  • 1 Revit 基础知识
    • 1.1 Revit功能及特点
    • 1.2 界面功能介绍
    • 1.3 设置中国样板
    • 1.4 新建、保存文件
    • 1.5 常规设置
    • 1.6 项目设置
    • 1.7 视图浏览
  • 2 标高
    • 2.1 创建标高
    • 2.2 编辑标高
  • 3 轴网
    • 3.1 创建轴网
    • 3.2 编辑轴网
  • 4 墙体的绘制和编辑
    • 4.1 绘制基本墙
    • 4.2 编辑墙体
  • 5 门窗楼板
    • 5.1 门创建与编辑
    • 5.2 窗创建与编辑
    • 5.3 楼板-1F和F1、F2
    • 5.4 楼板和F1、F2层视频
  • 6 玻璃幕墙
    • 6.1 添加玻璃幕墙
    • 6.2 幕墙网格、竖挺
  • 7 楼梯、扶手、洞口、坡道
    • 7.1 楼梯
    • 7.2 楼梯编辑
    • 7.3 洞口
    • 7.4 坡道
  • 8 屋顶
    • 8.1 拉伸屋顶
    • 8.2 迹线屋顶
  • 9 柱梁结构构件
    • 9.1 柱梁结构构件
    • 9.2 平面结构柱 、建筑柱
  • 10 内建模型
    • 10.1 内建模型-雨蓬玻璃及支撑构件的创建
    • 10.2 内建模型- 雨蓬工字钢梁的创建和编辑
    • 10.3 族的创建
  • 11 场地
    • 11.1 地形表面
    • 11.2 建筑地坪
    • 11.3 地形子面域(道路)
    • 11.4 场地构件
  • 12 第十二章:渲染和漫游
    • 12.1 构件材质设置
    • 12.2 布置相机视图
    • 12.3 渲染
    • 12.4 使用3ds Max渲染的导出设置
    • 12.5 漫游
窗创建与编辑


5.3    窗编辑-定义窗台高

 

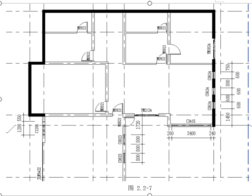
本案例中窗台底高度不全一致, 一次在插入窗后需要手动调整窗台高度。几个窗的底高度值为 “C0624-250mm、C3415-900mm、C0823-400mm、C1206-1900mm。调整方法如下:

l 方法一:选择“固定窗 C0823:C0823”,右键“选择全部实例-在视图中可见”设置属性面板,修改 底高度值为 400,如图 5.3-8。

l 方法二:切换至立面视图,选择窗,移动临时尺寸界线,修改临时尺寸标注值。 进入项目浏览器,鼠标单击“立面(建筑立面),双击“东立面”从而进入东立面视图。 在东立面视图中如图 5.3-9 选择“固定窗 C0823: C0823”,移动临时尺寸控制点至“-1F“标高线,修改 临时尺寸标注值为“400”后按“Enter”键确认修改。

l 同样方法,编辑其他窗的底高度。编辑完成后的地下一层窗如图 5.3-10 所示,保存文件。

 

 5.3-8                                5.3

 

 

 5.3-10


 

5.4   插入和编辑门窗

编辑体后首层门窗方法 5.2 详述

1、 接前览器下双“F1层楼层。


                                      图 5.4-12

2    


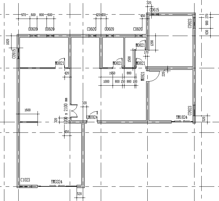
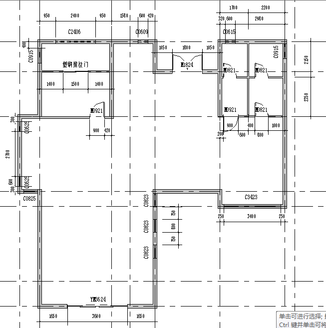
2、 编辑窗台高:在平面视图中选择窗,单击“属性”按钮打开“图元属性”对话框,设置参数“底高 ”参数值,调整窗户的窗台高。各窗的窗台高为:C2406 -1200mm、C0609-1400mm、C0615-900mm、 C0915-900mm、 C3423-1OOmm、 C0823-1OOmm、C0825-150mm. C0625-300mm。


                 插入和编辑二层门窗

编辑完成二层平面内外墙体后,即可创建二层门窗。

① 在项目浏览器一“楼层平面”一双击“F2”,进入楼层平面。

② 单击“建筑”一“门”命令,在类型选择器中选择“移门:YM3324”、“装饰木门 -M0921”、

“装饰木门-M0821”、“LM0924”、“YM1824:YM3267”、“门一双扇平开 1200X2lOOmm”按图所示位置


 

 




 

 

移动光标到墙体上单击放置门,并编辑临时尺寸按图 2.4-35 所示尺寸位置精确定位。

③编辑窗台高:在平面视图中选择窗,设置属性,设置参数“底高度”参数值,调整窗户的窗台高。

各窗的窗台高为窗台高:C0609-1700mm、C0615-850mm. C0923-1OOmm.C1023-1OOmm. C0915-900mm.