-
1 讲稿
-
2 教学视频
4.4 无抗震设防要求时框架结构构件设计
4.4.1框架的一般构造要求
1. 钢筋混凝土框架的混凝土强度等级不低于C20;纵向钢筋可采用HRB400级、HRB500级钢筋混凝土;箍筋一般采用HRB400级或HRB335级钢筋。
2. 混凝土保护层:应根据框架所处的环境类别确定。例如,环境类别为一类时,框架梁和框架柱的纵向受力钢筋的混凝土保护层厚度不小于20mm,如果混凝土强度等级不大于C25时,保护层厚度应不小于25mm。
3. 框架梁柱应分别满足受弯构件和受压构件的构造要求;地震区的框架还应满足抗震设计要求。
4. 配筋形式:框架柱一般采用对称配筋,柱中全部纵向钢筋配筋率不宜大于5%,最小配筋率为0.6%,框架梁一般不采用弯起钢筋抗剪。
4.4.2梁、柱节点构造要求
1. 框架梁
(1)梁纵向钢筋的构造要求
梁纵向受拉钢筋的数量除按计算确定外,还必须考虑温度、收缩应力所需要的钢筋数量,以防止梁发生脆性破坏和控制裂缝宽度。纵向受拉钢筋的最小配筋率不应小于0.2和0.45ft/fy二者较大值。同时为防止超筋梁,不当考虑受压钢筋时,纵向受拉钢筋的最大配筋率不应超过上限值。
沿梁全长顶面和底面应至少各配置两根纵向钢筋,钢筋的直径不应小于12mm。框架梁的纵向钢筋不应与箍筋、拉筋及预埋件等焊接。
(2)梁箍筋的构造要求
沿框架梁全长应设置箍筋。非抗震设防中,箍筋的直径、间距及配筋率等要求与一般梁相同。
2. 框架柱
(1)柱纵向钢筋的构造要求
框架柱一般为小偏受压构件,通常采用对称配筋。非抗震设防中,柱的全部纵向钢筋配筋率应符合下列规定。中柱、边柱和角柱纵向钢筋最小配筋率不应小于0.5%。框支柱纵向钢筋最小配筋率不应小于0.7%。同时柱截面每一侧配筋率不小于0.2%,柱中全部钢筋配筋率不宜大于5%。
(2)柱箍筋的构造要求
非抗震设防时,框架柱截面周边箍筋应为封闭箍筋,箍筋间距不应大于400mm,且不应大于构件截面短边尺寸和最小纵筋直径的15倍;箍筋直径不应小于最大纵筋直径的1/4,且不应小于6mm;当柱中全部纵筋钢筋配筋率超过3%时,箍筋直径不应小于8mm,箍筋间距不应大于最小纵筋直径的10倍,且不应大于200mm箍筋末端应做成135°弯钩且弯钩末端平直段长度不应小于10倍纵筋直径。当柱每边纵筋多于3根时,应设置复合箍筋。
常见的柱配筋形式如图4-22。

3. 框架节点的构造要求
构件连接节点是框架设计的一个重要组成部分。只有通过构件之间的相互连接,结构才能成为一个整体。现浇框架的梁柱连接节点都做成刚性节点。梁柱节点处于剪压复合受力状态,为了保证节点具有足够的受剪承载力,防止节点产生剪切脆性破坏,必须在节点内配置足够数量的水平箍筋。节点内的箍筋除应符合上述框架柱箍筋的构造要求外,其箍筋间距不宜大于250mm;对四边有梁与之相连的节点,可仅沿节点周边设置矩形箍筋。
在节点处,柱的纵向钢筋应连续穿过中间层节点,梁的纵向钢筋的搭接和锚固长度应符合下列要求。
顶层中节点柱纵向钢筋和边节点柱内侧纵向钢筋应伸至柱顶;当从梁底边计算的直线锚固长度不小于
时,可不比水平弯折,否则应向柱内或梁、板内水平弯折,当充分利用纵向钢筋的抗拉强度时,其锚固段弯折前的竖向投影长度不应小于0.5
,弯折后的水平投影长度不小于12倍的柱纵向钢筋直径。此处,
为受拉钢筋基本锚固长度。
顶层端节点处,在梁宽范围以内的柱外侧纵向钢筋可与梁上部纵向钢筋搭接,搭接长度不应小于1.5
;在梁宽范围以外的柱纵向钢筋可伸入现浇板内,其伸入长度与伸入梁内的相同。当柱外侧纵向钢筋的配筋率大于1.2%时,伸入梁内的柱纵向钢筋宜分批截断,其截断点之间的距离不宜小于20倍的柱纵向钢筋直径。
梁上部纵向钢筋伸入端节点的锚固长度,直线锚固时不应小于
,且伸过柱中心线的长度不宜小于5倍的纵向钢筋直径;当柱截面尺寸不足时,梁上部纵向钢筋应伸至节点对边并向下弯折,锚固段弯折前的水平投影长度不应小于0.4
,弯折后竖直投影长度应取15倍的梁纵向钢筋直径。
当计算中不利用梁下部纵向钢筋的强度时,其伸入节点内的锚固长度应取不小于12倍的梁纵向钢筋直径。当计算中充分利用梁下部钢筋的抗拉强度时,梁下部纵向钢筋可采用直线方式或向上90°弯折方式锚固与节点内,直线锚固时的锚固长度不应小于
;弯折锚固时,锚固段的水平投影长度不应小于0.4
,竖直投影长度应取15倍的梁纵向钢筋直径。
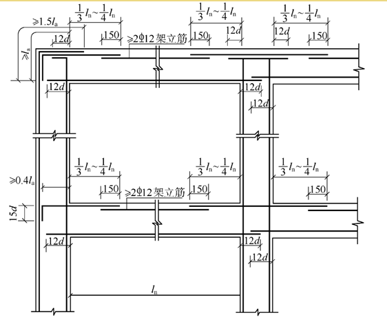
另外,梁支座截面上部纵向受拉钢筋应向跨中延伸至(1/4~1/3)
(
为梁的净跨)处,并与跨中的架立筋(不少于2φ12)搭接,搭接长度可取150mm,如图所示4-23。

图4-23框架梁、柱纵向钢筋在节点区的锚固要求
附件:16G101平法图集:
16G101-1(框架梁板)平法清晰版.pdf(下载附件 33.31 MB)
16G101-2 (楼梯)平法清晰版.pdf(下载附件 15.44 MB)

