(一)排程
到目前为止,一直假设生产能力需求计划知道订单应当何时在工作中心开始加工。多数订单要经过多个工作中心加工,因此必须计算订单在每个工作中心的开始时间和完工时间,这样最好的交货期才能得到保证。这个过程叫做排程(scheduling),排程是计划事件发生的时间表。生产计划排程是车间作业计划的一个重要输出。
排程的目的是满足交货期和最有效地使用生产资源。排程包括建立完成产品需要的每项作业的开始和结束日期。为制定一个可靠的进度计划,计划人员必须了解所涉及的每个工作中心的产品工艺、所需产能和可用产能、相互抵触的工作,以及生产提前期等。
(二)排程方法
1、前向排程
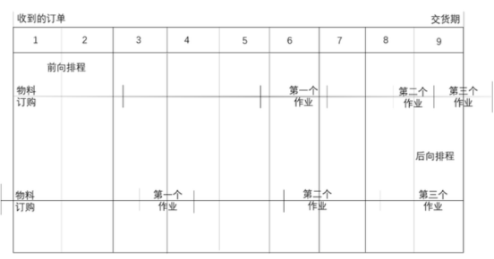
前向排程(forward scheduling)假定部件的物料釆购和作业排程开始于订单接收的时刻,而不管交货期是什么时候,作业从这一天开始向后安排。下图的第一行即说明了这种方法。
结果是产品在交货期前完成,通常会产生库存堆积。这种方法用于决定产品的最早交货期。
前向排程用于计算完成一项任务需要多长时间。这种方法用于为用户确定承诺日期及计算落后于计划的订单能否赶上进度等目的。

2、后向排程
如上图第二行所示,工艺路线上的最后一项作业最先排定,并安排在交货期那天完成。从最后一项作业开始倒排先前的作业。
后向排程(backward scheduling)根据产品的需要安排物料的可用性,与物料需求计划系统所用逻辑相同。这会减少在制品库存,然而由于系统中缺少松弛时间,顾客服务工作可能会受到影响。
后向排程用于确定订单必须于什么时候开始加工。由于其能够降低库存,因此被广泛使用按库存生产情况下。
3、无限负荷(infinite loading)
也如上图所示。假定执行作业1、2、3的工作中心在需要时产能可用。无限负荷没有考虑车间其他订单可能会争抢使用这些工作中心产能的情况,它假设有无限的产能可供使用。
4、有限负荷(finite loading)
假定任何工作中心的可用产能都有明确的限制。如果由于其他车间订单的存在,则该工作中心就没有足够的可用产能,该订单就必须安排在不同的时间段。下图说明了这一情况。

在上图所示的前向排程示例中,第1个作业和第2个作业不能在它们需要进行的时候分别在它们的工作中心进行,因为在它们需要内所需产能不可用。这些作业必须重新安排到较晚的时间段。同样,在后向排程的例子中,第2个和第1个作业在该执行时却不能执行,必须重新安排到较早的时间段内。
(三)非制造业的排程计划
对于所有的行业而言,处理诸如资源计划、需求平衡,以及可用产能与需要产能等问题,都会是一项挑战。例如,在运输行业里,都必须对车队的运输和路线做出计划,以便在把总成本降低到最小的同时,还要确保及时送达货物,减少停车检修和非生产性时间(如空车返还)等。
在卫生保健行业里,各个机构必须将可用产能(如医生、护士、技师、手术室、病房等)与动态的产能需求(如病人、急救车、大型创伤等)加以平衡。尽管可以对其中一些制定计划,如接待上级检查和而每年体检量等,但大多数负荷却是来自无法计划的事件,如疾病类型和自然灾害等,而且它们也难以预测。
许多医院,已经通过考察以往历史上每月的病人人数来预测发展趋势和季节性,以便更好地对产能做出计划。它们还对时间进行了研究,借以确定某些工作的标准,如实验室检验时间/手术准备时间等,以此来确定某些特殊资源的可用产能。
在服务行业中,资源计划也很关键,如零售业、食品业、航空业等。对服务人员的计划安排,常常以星期、天或小时为单位来进行,依据的是对于顾客最可能什么时候需要提供服务的预测。在这种情况下,产能的主要部分是人力资源,但也包括设备、工具和时间。有些行业,如航空业和运输业,还要考虑对员工工作时间的限制,如每天不得超过一定的小时数。
在服务行业中,公司可以通过灵活使用员工,如对员工进行多项培训,使用兼职工,或通过使用自动化设备等方法,来优化资源和增加产能。一些非紧急的工作,如清洁和保养等,可以安排在没有客户需求或需求很少的期间,让员工进行。一家广受欢迎的食品连锁店制定了自己的计划,包括工间休息时间,预测需要准备多少食物,什么时间需要停止烘烤食物,以及向顾客提供样品供尝试等。
对工厂订单进行排程有很多种方法,但是所有的方法都要求理解前向排程和后向排程,以及无限负荷和有限负荷。
后向排程(backward scheduling)过程讲解
后向排程,也叫倒排程(back sheduling),用于确定订单必须于什么时候开始加工。由于其能够降低库存,因此被广泛使用按库存生产情况下。进行倒排程时需要知道每个订单的以下信息:
数量和交货期。
作业顺序和需要的工作中心。
每个作业的准备时间和加工时间。
排队、等待和搬运时间。
工作中心可用产能(额定产能或实际产能)。
需要的信息从以下资料中获得:
排程过程如下: