任务3 绘制厨房立面图
-
1 任务预期
-
2 视频:绘制厨房立面图
-
3 绘制厨房立面图课...
-
4 临时文件保存及存...
-
5 绘制图纸
上一节
下一节
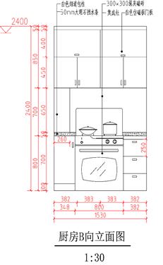
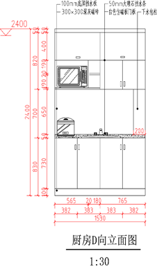
厨房作为家庭生活中的重要场所,现代人的厨房,除了完成煮饭功能外,已经成为全新的家庭沟通中心。故现代装修设计中厨房的设计装修早已成为不能忽略的部分。
厨房的设计中应满足使用者的需求,以人体工程学原理为依据,以方便、实用为原则,兼顾美观与收纳,最大限度的降低使用者的劳动强度,提高效率。
厨房设计中除橱柜、必要的厨电外,安全与环保等指标也成为其重要的内容。
通过本课程内容的学习:
• 进一步养成图层绘图的良好习惯,进一步掌握不同图纸图幅与比例间的关系
• 能看懂立面施工指导性图纸,理解各图纸间的关系
• 熟悉厨房橱柜、厨房家俱的常规尺寸、高度与人体操作间的关系,并能合理布置厨房
• 能根据原始结构图、平面布置图、地面铺装图以及天花图等图纸,绘制出与之配套的厨房装饰立面图
• 熟悉立面图绘制流程,能规范地绘制出厨房立面图
• 能规范绘制家居厨房装饰立面图纸




