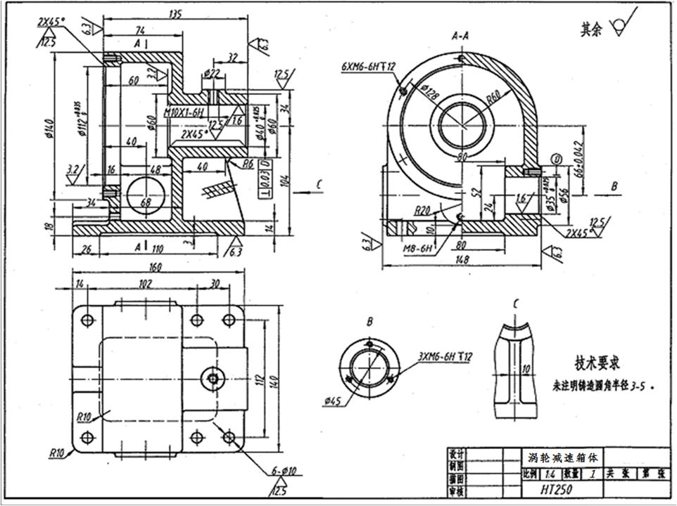
涡轮蜗杆减速箱
-
1 任务导学
-
2 课前练兵
-
3 新知讲授
-
4 小试牛刀
-
5 思政课堂
-
6 拓展资源
上一节
下一节
| 学习目标 | 知识目标 | 根据识读零件图的步骤,识读零件图。 | ||
| 技能目标 | 能够使用形体分析法和线面分析法,分析较为复杂的零件结构。 | |||
| 素养目标 | 培养科学严谨的制图精神。 | |||
| 课前预习 | ||||
| 学习建议 | 涡轮减速箱零件图中采取了哪些表达方式? | |||
| 课前测试 | ||||

