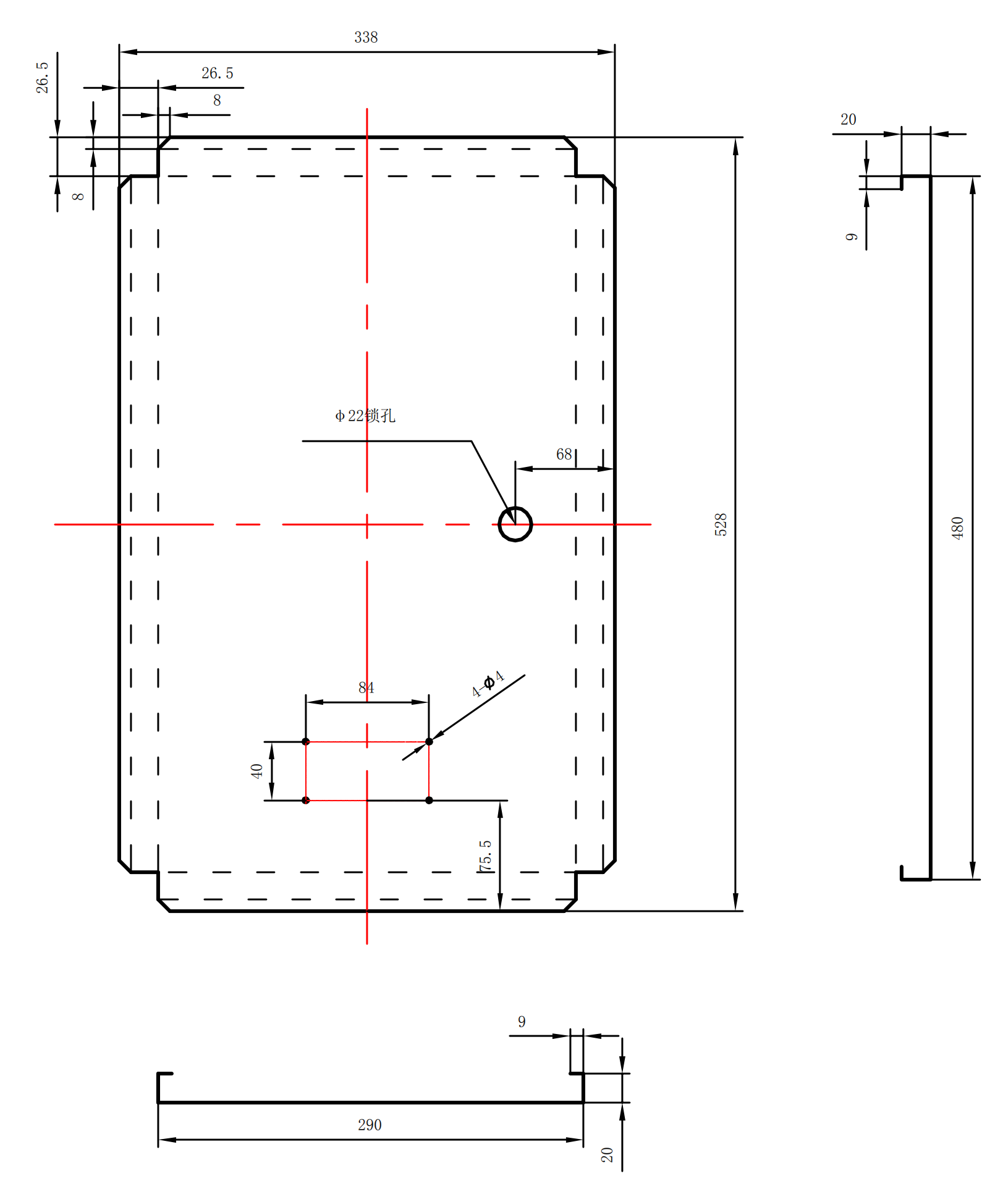
任务12 盘它就对了
-
1 任务要点
-
2 操作视频
上一节
下一节
学习要点
l 矩形、圆、直线等草图绘制命令
l 基体法兰/薄片命令
l 边线法兰命令
相关知识
l 基体法兰/薄片:基体法兰是新钣金零件的第一个特征(基体法兰特征是从草图生成的)。基体法兰特征被添加到 SOLIDWORKS 零件后,系统就会将该零件标记为钣金零件。您可以使用基体法兰/薄片来插入薄片而不将其合并到现有零件,从而在现有钣金零件中生成实体。对于薄片来说,系统会自动将薄片特征的深度设置为钣金零件的厚度。至于深度的方向,系统会自动将其设置为与钣金零件重合,从而避免实体脱节。
l 边线法兰:可添加法兰到一条或多条线性边线,以及调整角度、位置等。可创建比其附加到的边线更长的边线法兰。您也可以在非平面的面的非线性(圆形)边线上创建边线法兰。
任务延展

1、基体法兰/薄片


2、拉伸切除

3、镜向

4、边线法兰

5、镜向

6、基体法兰/薄片


练练手


