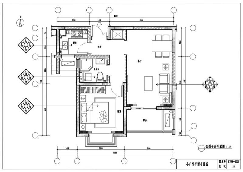
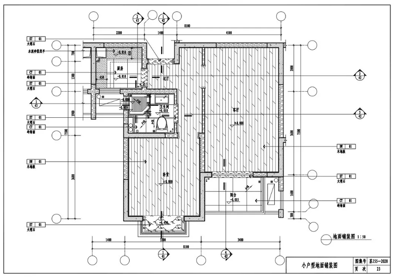
知识拓展:小户型深度图样(现代风格)装饰施工图纸赏析
-
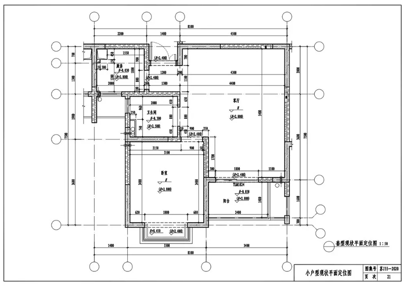
1 小户型定位图
-
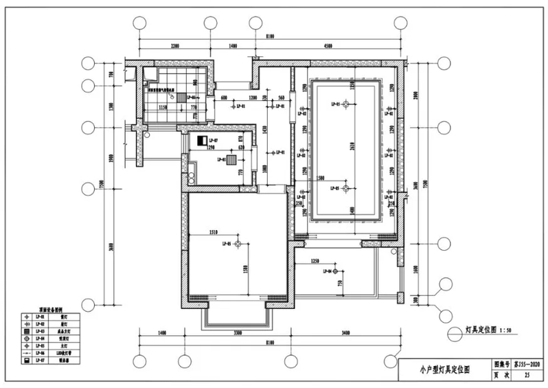
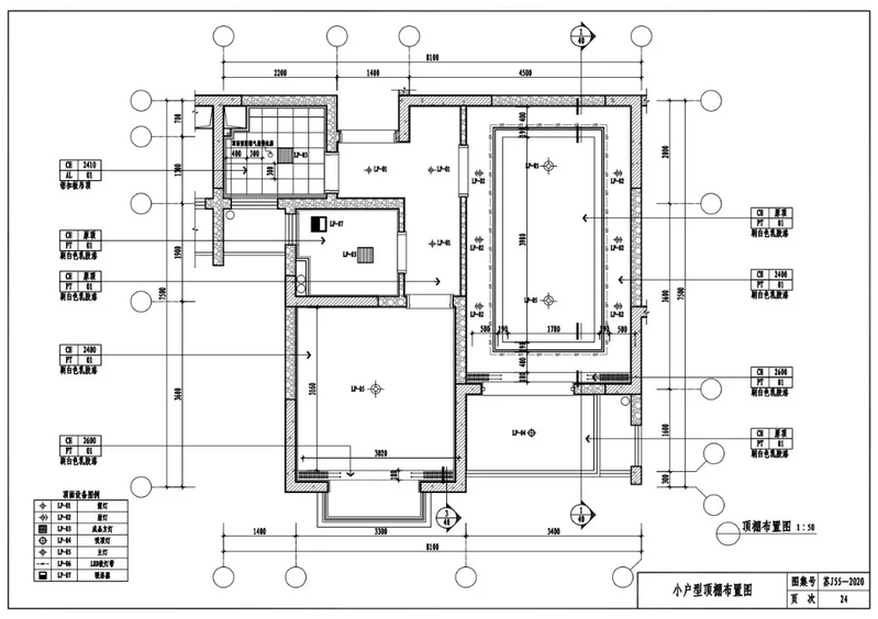
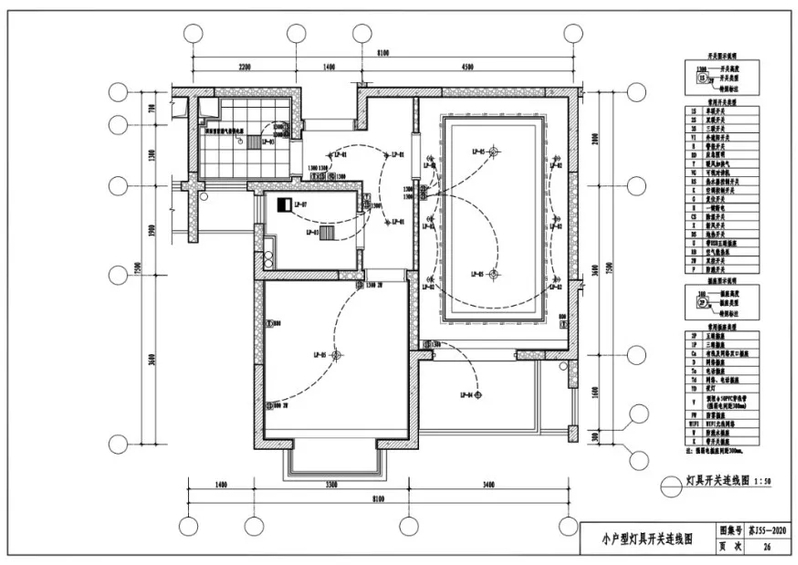
2 小户型顶棚、开关...
-
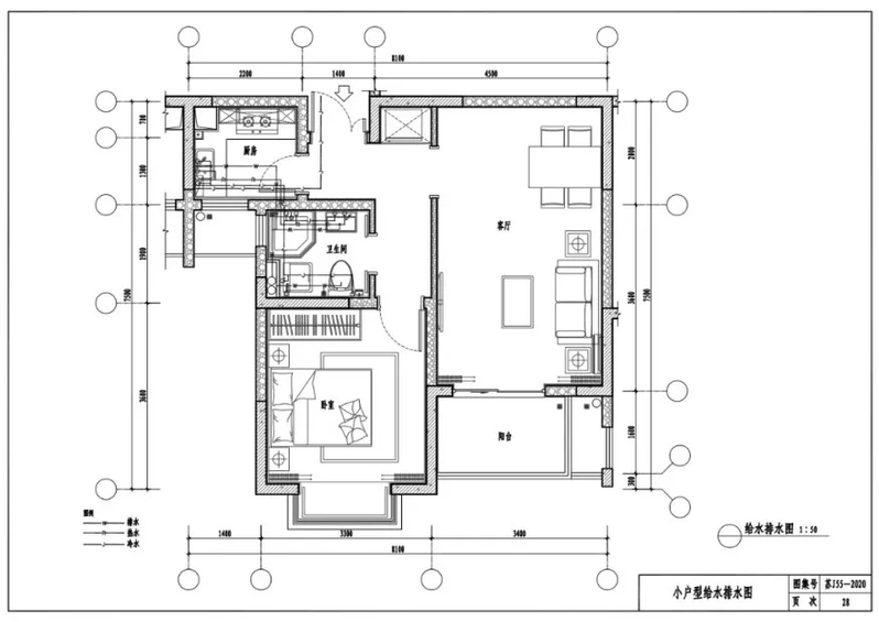
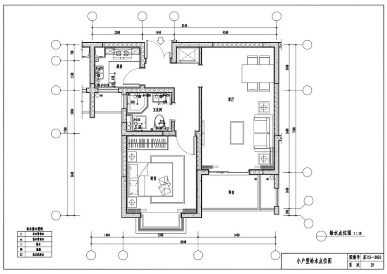
3 小户型给水排水图
-
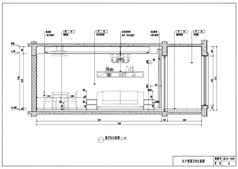
4 小户型客厅立面图
-
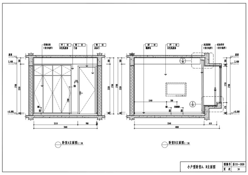
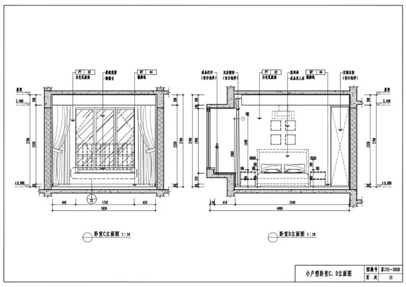
5 小户型卧室立面图
-
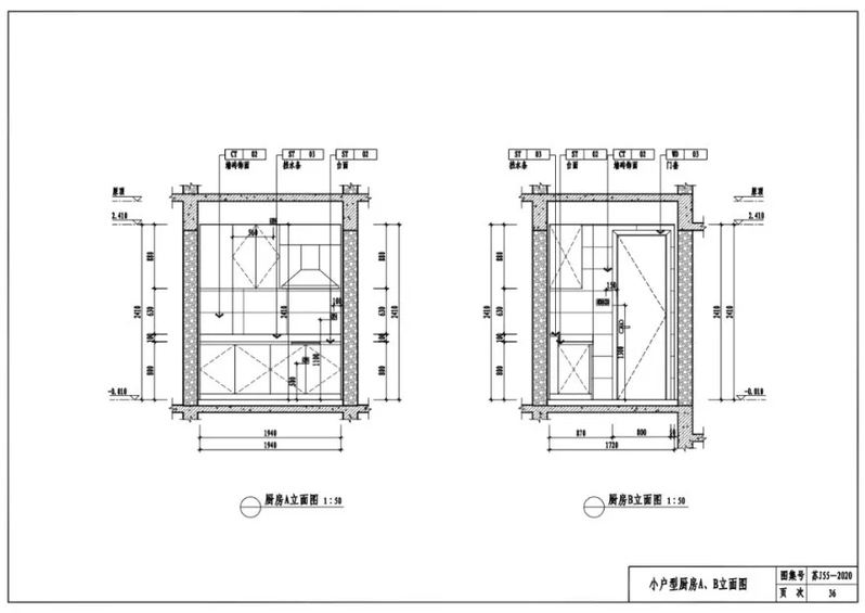
6 小户型厨房立面图
-
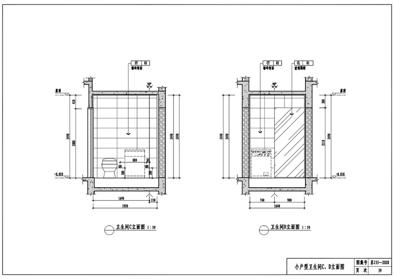
7 小户型卫生间立面图
-
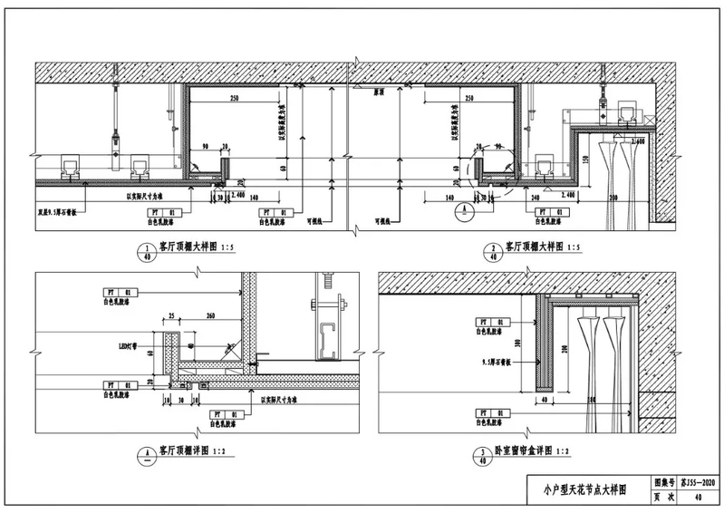
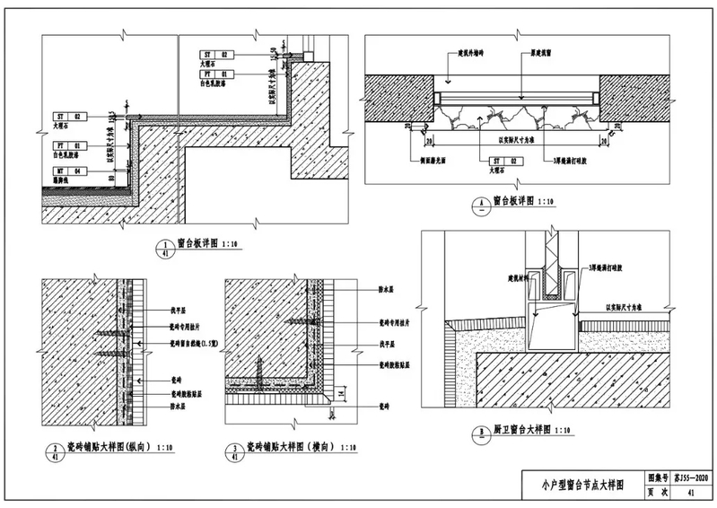
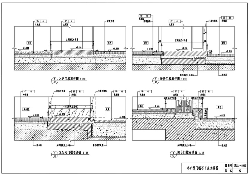
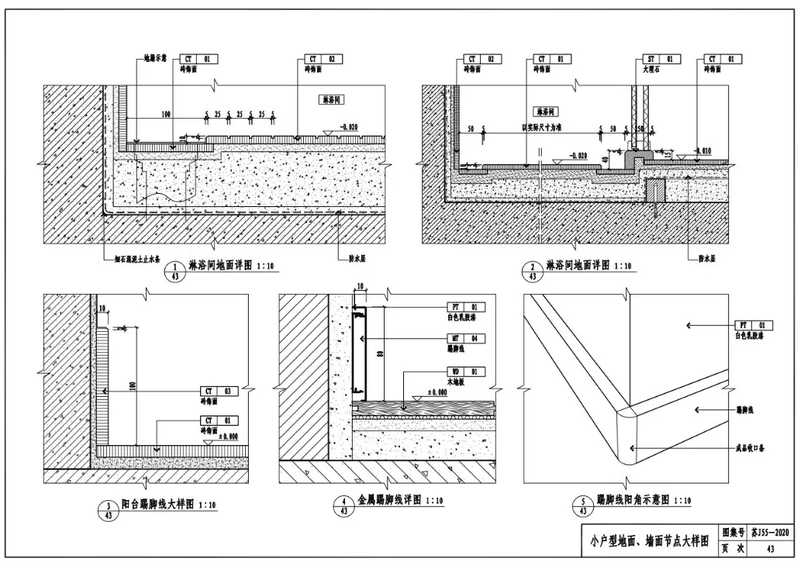
8 小户型节点大样图
-
9 小户型装饰材料终...
上一节
下一节




























