任务二 轴承座的三维建模
上一节
下一节
任务二 轴承座的三维建模
下面的建模任务仍然是根据工程图进行三维建模,主要考验学习者的工程图读图能力及建模能力,零件本身并不复杂,建模使用的命令也无太多技巧,所以前提是能读懂图纸。
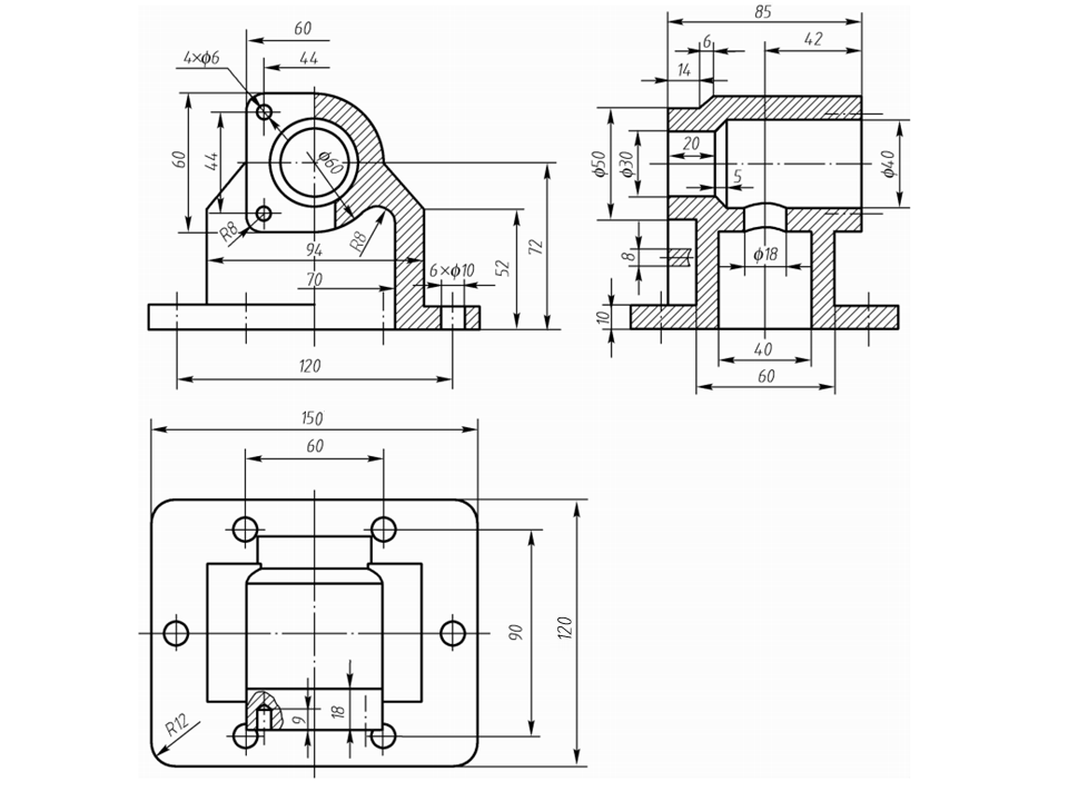
本任务通过二维工程图的方式下达(未给出图框及标题栏),要求按如图所示的尺寸完成轴承座的三维建模。建模完成后将模型着色为红色,同时以轴测图视图输出为.jpg图片文件。

图 轴承座工程图
下面结合Creo软件详细讲解轴承座的三维建模过程。
任务二 轴承座的三维建模中的两个练习的学习。
<练习1>
<练习2>
【任务二 轴承座的三维建模】课件
小资料:

