项目五 制作工程施工图图纸
可运用正在学的CAD软件进行基本绘图操作,绘制室内设计平面图.立面图.顶面图.电路图等全套施工图。
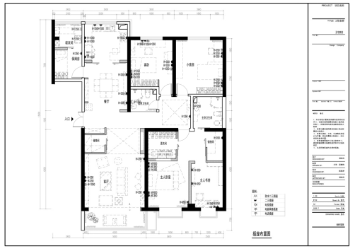
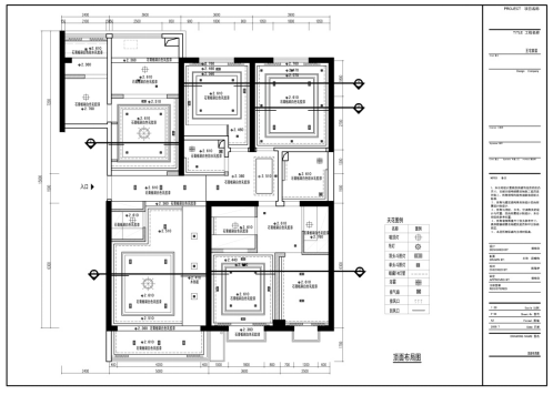
课题1 制作平面布置图
1.1总平面布置(平面方案布置图)
原始平面图
(1)正确画出土建结构框架,柱网。
(2)正确标出轴线,分轴尺寸,总长尺寸,若上下或左右轴线相同,只留上或左轴线。当建筑图没有提供轴线时,要增加轴线自编号。
(3)图中标明功能区名称,地面主要材质,字体原则上应标注在图中,但亦可根据实际情况将字体标注在图外或尺寸标注之内,注意引线尽量避免与其他图墙线.尺寸线相交,以及引线过长。
(4)标出相对地面标高及坡度走向。
(5)平面图中的图例,要根据不同性质的空间,选用图库中的规范图例。
(6)家居必须标出各个空间的平面面积,图标图纸名称后面标注该套间的建筑外框面积或实用面积。
(7)在进行创意样板房制作时,要在平面的右下角加上本单元原建筑平面小样,方便业主对照。

平面布置图
(8)图标须按比例标出层数和空间比例字样。
(9)准备一张半透明的描图纸打印的天花平面图覆盖此平面上,以方便核对灯位及灯光设置的对应。
(10)指北针的标注需清晰.准确地放在图框右上角。
注:设计师要清楚其设计单位的座向,这很重要。要避免一些自然环境中不利因素对人体造成的伤害,并有效利用一些自然通风及日照采光等天然资源。
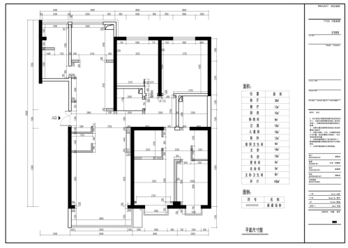
课题2 制作地面布置图
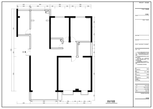
1.2平面尺寸定位图(平面开线图)
(1)图例规范:分别标出剪力墙.原有间墙.新建间墙.玻璃间墙,既方便设计师从不同表示方法中一眼看出哪些墙身能进行拆改,亦方便工程预算。
(2)应标明新建墙体厚度及材质,标出起间位置及尺寸。这是图纸深化阶段必须体现的,尺度功能使用是否合理,是按图施工的重要依据(原有墙体不须标注尺寸)。
(3)标明平面完成地面的高度,为立面.施工图及以后的施工操作提供看图的便利(用专用符号标高)。
(4)标明预留门洞尺寸,先将门洞预留,避免以后施工中不必要的凿墙。常用门洞规范:入口大门宽度为900~1200~1500mm,高度为2100~2400mm;普通房门宽度为800~900nlm,高度为2100~2400mm;卫生间门宽度为650~800 mm ,高度为2100~2400mm,超规范尺寸应作明确标注。在大型项目门型较多时,要独立制定门表,并将各种门的代号(D 1,D2等等)标注在图纸上。

平面尺寸定位图
(5)标明预留管井及维修口位置.尺寸,为装修设计的合理性打下基础。
(6)保留原有平面小图,便于施工单位核对需拆除的墙身及核算施工成本。
(7)图纸上要注明:“现场间墙放线需由设计师审核确认”。现场与图纸始终存在着误差,现场间墙放线结束由设计师审核再确认,可将出错率降至最低。
(8)间墙平面图往往是建筑模数应用的根本保证,设计组应派专员进行间墙验线的复核工作,以确定实际模数应用的精确性。
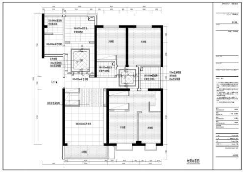
课题3 制作地面布置图
1.3地花平面图
(1)用不同的图例表示出不同的材质,并在图面空位上列出图例表。
(2)标出材质名称.规格尺寸.型号及处理方法。
(3)标出起铺点,确定起铺方法及依据,注意地面石.波打线.地脚线应该尽量做到对线对缝(特殊设计除外)。
(4)标出材料相拼间缝大小.位置。
(5)标出完成面标高(用专用标高符号)。
(6)地面铺砌形式可参照图库的地花.波打铺砌方法。

(7)地面材质铺砌方法.规格应考虑出材率,尽量做到物尽其用。
(8)特殊地花的造型须加索引指示,另做放大详图,并配比例格子放线详图,以方便订货。
(9)当出现有造型的地面拼花时要注明:“现场地花放线需由没计师审核确认”。
(10)地花图的技术含量最高,甚至会影响墙身铺贴的材料应片].在审地花图时,应与大样对照审
课题4 制作顶面布置图
2.1天花平面布置图(主要表示天花标高.材质.各设备内容等)
(1)天花表面处理方法.主要材质.天花平面造型。
(2)天花灯具布置形式。
(3)空调的主机及出回风位置.排气设备位置。
(4)窗帘盒位置及做法。
(5)消防卷闸位置。
(6)伸缩缝.检修口的位置,文字注明其装修处理方式。
(7)中庭.中空标高位置。
(8)根据特定的智能系统资料,给天花安装的设备定位。
(9)消防系统设施(背景音箱.喷淋.烟感.通道指示牌——这里只表示安装在天花上的指示牌)位置。
(10)以地面为基准标出天花各标高(用专用标高符号)。
(11)造型的天花须标出施工大样索引和剖切方向。
2.2天花安装尺寸施工图(主要表示天花造型尺寸,各设置坐标位置)
(1)天花平面造型。
(2)天花灯具布置形式及标出主要灯具布置定位.灯孔距离(以孔中心为准)。
(3)标出造型天花的尺寸。
(4)空调的主机及出回风位置.排气设备位置。
(5)窗帘盒位置。
(6)消防卷闸位置。
(7)伸缩缝.检修口的位置及距离。
(8)中庭.中空位置。
(9)当出现有特殊天花造型时要注明:“现场天花放线需由设计师审核确认”。
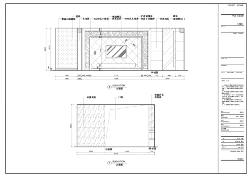
课题5 制作立面图
立面图类(根据平面利用投影原理绘制立面)
(1)根据土建所提供的建筑资料及现场实际情况画出整个空间,包括空间的间墙厚度.门窗位置.天花楼板的厚度.梁的位置及大小,标明空间所在位置轴线。

(2)根据平面图画出各空间墙身的主要造型,在图的下方或图中标出造型尺寸。
(3)尽量在同一张图纸上画齐同一空间内的各个立面,并于右下角插入该空间的分平面图,让看图者清晰了解该立面所处的位置。
(4)当一个空间需要用多张立面图完成时,所有的立面比例要统一,并且编号尽量按顺时针方向排列。
(5)单面墙身不能在一个立面完全表达出来时,应优先选择造型工艺最简单的地方用折断符号在同一个地方断开,并用直线连接两段立面。
(6)在立面的左侧标出立面的总尺寸及大的分尺寸。
(7)在立面的上方或右侧标注材料的位置.编号及名称(较长的立面可以在下方标注材料);标高用标高专用符号。
(8)立面要根据天花平面画出其造型剖面(若天花造型低于墙身立面造型的顶点时,为不影响立面饰面的如实反映,天花造型轮廓用虚线表示)。
(9)立面的暗装灯具用点划线表示,门的开启符号用虚线表示。
(10)图纸布置要比例合适.饱满,序号应按顺时针方向编排。
(11)标出剖面.大样索引(索引为双向)。
(12)注意线形的运用——前粗后细。
(13)立面图的常用比例为1:20,1:25,1:30,1:50。
(14)立面编号用圈框着的英文大写字母表示。
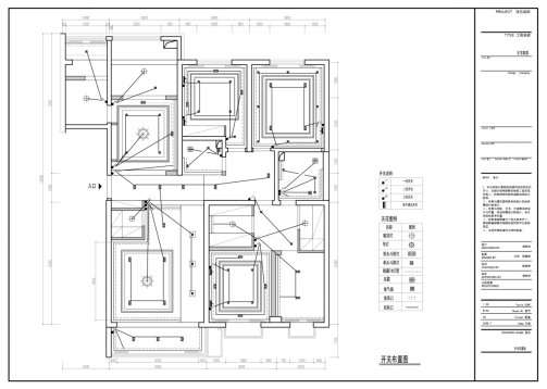
课题6 制作电路布置图
4.1开关平面图(家居平面使用)

(1)电器说明及系统图放在开关平面图的前面。
(2)根据平面.立面.天花光源所示的位置画出电气结线图。
(3)普通开关的通常高度为1 300mm,在图标上方应注明开关的高度(以开关中线为准)。
(4)用点划线表示,注意线路结线要与灯具图例有明显的区分。
(5)感应开关.电脑控制开关的位置要注意其使用说明及安装方式。
(6)开关的位置选择要从墙身及摆设品作综合的考虑,尤其是长期裸露的开关位,其位置的美观性要详加考虑(要与立面图对应)。
(7)开关横放和竖排都应按实际使用再作调整,与墙体达到美观协调。
4.2插座平面图
(1)在平面图上用图例标出各种插座,并标出各自的高度及离墙尺寸。
(2)普通插座(如床头灯.角几灯.清洁备用插座及备用预留插座)高度通常为3 00mm。
(3)台灯插座高度通常为750mm。
(4)电视.音响设备插座通常高度为500~600mm(以所选用的家具为依据)。
(5)冰箱.厨房预留插座通常高度为1 400mm。
(6)分体空调插座的高度通常为2300~26。0mm,交楼标准板房高度为2500mm,通常安装在天花底以下200mm位,如做暗装空调,高度须按此处造型高度另定。
(7)若预留的插座附近有开关时,应说明与此位置的开关高度相同,统一为1 400mm。
(8)弱电部分插座(如电视接口.宽带网接口.电话线接口),高度和位置与插座相同。
(9)平面家具摆设应以浅灰色细线表示。

(10)强弱电分管分组预埋,请参见强弱电施工用料规范。
课题7 制作水路布置图
给排水平面图
(1)给排水说明放在给排水平面图前面。 .
(2)按国家给排水设计相关规定进行编写设计规范。
(3)根据平面标出给水口,排水口位置及高度,根据所选用的洁具.厨具定出标高(操作台面的常规度为780~80Omm;明档收银台面为1 050~110Omm,较方便操作,特殊设计除外)。
(4)地漏的位置要注意原有排水管位置,要考虑排水效果。
(5)要标出空调的排水走向。
(6)给排水位的设定要注意原有建筑所提供的水管位置,要注意考虑去水位的坡度及地面填充台高度标注。
(7)若因设计所需改动的排污位置,要充分考虑好排污斜度及现实可行性,再作出肯定的修改措施。
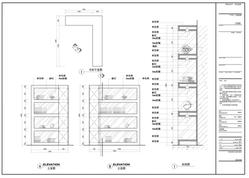
课题8 制作详图
大样图类
(1)天花墙身剖面根据平.立面方案画出剖面,详细标注尺寸.材料编号.材质及做法。
(2)独立造型和家具等需在同一图纸内画出平面.立面.侧立面.剖面及节点大样,必要时画立体轴测图。

(3)有特殊造型的地花.立面.天花均要画局部放线图及大样图。
(4)若非本图剖切图,其立面及施工图均须双向索引。
(5)大样图比例采用常用比例(如1:20.1:1 0.1:5.1:2.1:1)。
(6)剖面及节点标注编号等用英文小写字母表示。相对标高使用专用符号。
(7)留意所有的剖切符号方向均要与其剖面大样图相一致。

