《居住空间室内设计》任务三
上一节
下一节
•题目
•某别墅室内设计
•要求
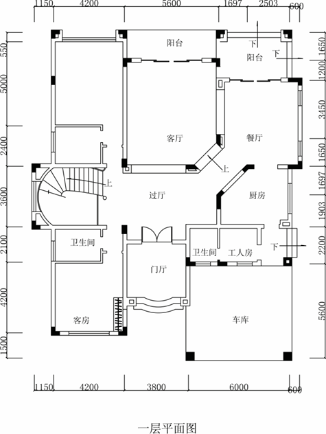
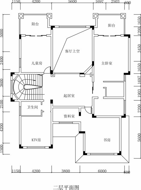
•某别墅平面如图,请完成其室内设计,该别墅业主全家4人,含业主夫妇,小孩一位,老人一位,另有其保姆一位,业主职业由学生自己拟定,必须设计客厅、餐厅、厨房、主卧室、老人房、儿童房和书房。其他空间由设计者按空间情况和业主的职业,爱好决定设计风格不限。
•图纸
•要求电脑绘图;
•内容为首层平面,二层平面各一个,客厅、主卧室或其他空间立面不少于4个;
•门厅正立面一个;
•详图不少于2个(可画装饰柜,过廊栏杆,衣柜及门等;要绘制彩色效果图两个,角度自定;
•天花图一个(一层或二层);
•效果图不少于6张。
•时间
课内18学时。



