《居住空间室内设计》任务一
上一节
下一节
•题目
•普通公寓式住宅室内设计
•教学目的
•1.熟悉公寓式住宅的组成和各组成部分的设计要点
•2.熟悉住宅室内设计图的内容和画法
•条件与要求
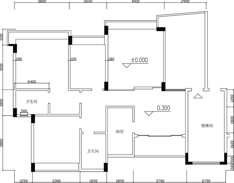
• 平面如附图,净高2.8米,家庭主要成员为一对夫妻和一个上小学的小孩,业主职业由学生假定。请完成该住宅的室内设计,其中的一间次卧室可以视需要改成工作室或赋予它其他用途。
•图纸
•1.徒手或借用工具绘制草图,确定方案;
•2.平面图(地面、顶棚)2张,立面图4张;
•3. 效果图4张,表现技法不限。
•时间
•课内9课时。
•提示
•1.利用课余时间参观若干个样板房。
•2.注意组织好图面,力求主次分明,疏密得当。


