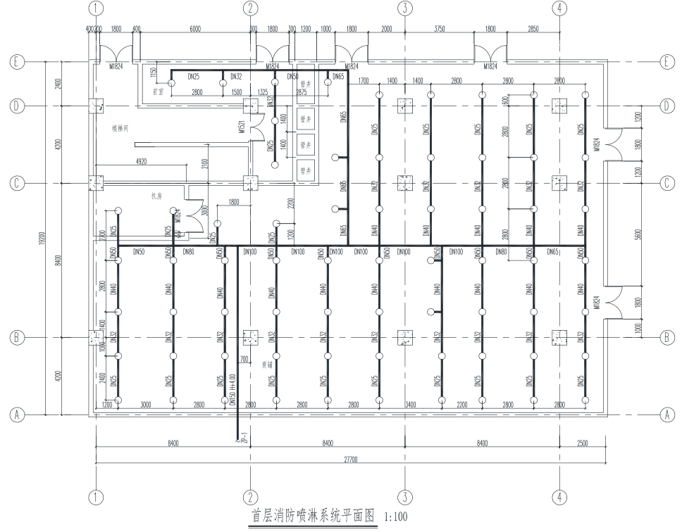
子任务四 绘制消防喷淋平面图
-
1 学习视频
-
2 学习素材
-
3 拓展知识
上一节
下一节
一、自动喷水灭火系统设计规范
二、项目图纸



