-
1 课堂内容
-
2 红双鱼川菜餐厅
-
3 宋·川菜,广州
-
4 雁舍· 四季
-
5 北京红色经典主题...
-
6 深圳的人民公社餐...
-
7 天津东方红红色经...
-
8 课后知识拓展
一、【PPT讲解】
中式餐饮空间设计
1. 风格和特征
我国传统的餐饮模式中,中式餐厅是宾馆、饭店和老字号特色饭店的主要餐饮场所,使用频率较高。中式餐厅是以品尝中国菜肴、领略中华文化和民俗为目的,故在环境整体风格上应体现中华文化的精髓。中式餐厅的装饰风格、室内特色以及家具与餐具、灯饰与工艺品,甚至服务人员的服装等都应围绕文化与民俗展开设计创意与构思。

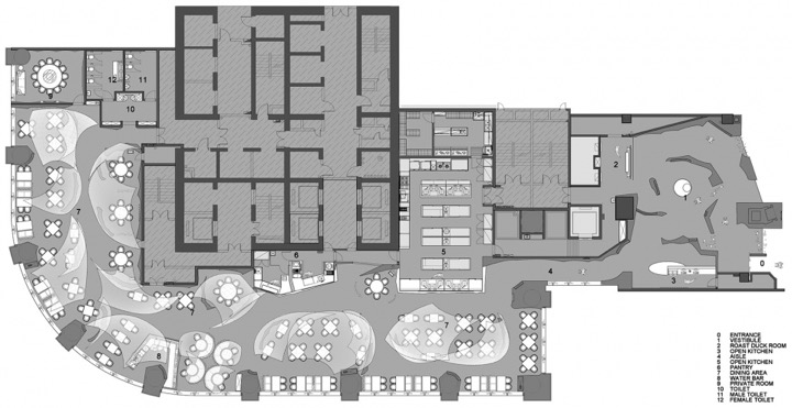
2. 平面布局与空间特色
中式餐厅的平面布局可以分为两种类型,以宫廷、皇家建筑空间为代表的对称式和以中国江南园林为代表的自由与规格相结合的布局。
宫廷式:这种布局采用严谨的左右对称方式,在轴线的一端常设主宾席和礼仪台;该布局方式显得隆重热烈,适合于举行各种盛大喜庆宴席、布局空间开敞、场面宏大,与这种布局方式相关联的装饰风格与细部采用或简或繁的宫廷作法。
园林式:这种布局采用园林的自由组合的特点,将室内的某一部分结合休息区处理成小桥流水,而其余各部分结合园林的漏窗与隔扇,将靠窗或靠墙的部分进行较为通透的二次分隔,划分出主要就餐区与若干次要就餐区。
3. 家具与风格
中式餐厅的家具一般选取中国传统的家具形式,尤以明代家具的形式居多,除了直接运用传统家具的形式以外,也可以将传统家具进行简化、提炼。保留其神韵,这种经过简化和改良的现代中式家具,在大空间的中式餐厅中得到了广泛应用。而正宗的明清式样的家具则更多的应用于小型雅间当中。

4. 照明与灯具
中式餐厅的照明设计应在保证环境照明的同时,更加强调不同就餐区域进行局部重点照明。进行重点照明的方法有两种。
(1)采用与环境照明相同的灯具进行组合,形成局部密集,从而产生重点照明。这种方法常常应用于空间层高偏低的中式餐厅。
(2)采用中式宫灯进行重点照明,这种方法常结合顶棚造型,将灯具组合到造型中,适合于较高的空间,以及较为地道的中式餐厅。

5. 装饰品与装饰图案
(1)传统吉祥图案的运用。吉祥图案包括龙、凤、麒麟、鹤、鱼、鸳鸯等动物图案和松、竹、梅、兰、菊、荷等植物图案,以及它们之间的变形组合图案等。
(2)中国字画的运用。

二、【章节测试】通过观看视频,完成章节测试。请简要阐述视频案例中的设计特色



















































