-
1 中餐厅
-
2 西餐厅
-
3 茶室
-
4 甜品店
-
5 咖啡厅
-
6 知识拓展
一、【教学内容】
·DINING SPACE·餐饮空间
中式餐厅 or 西式餐厅 or 茶室 or 甜品店 or 咖啡厅
专题一——中式餐厅
How much do you know about Chinese restaurant space?
二、【案例讲解】
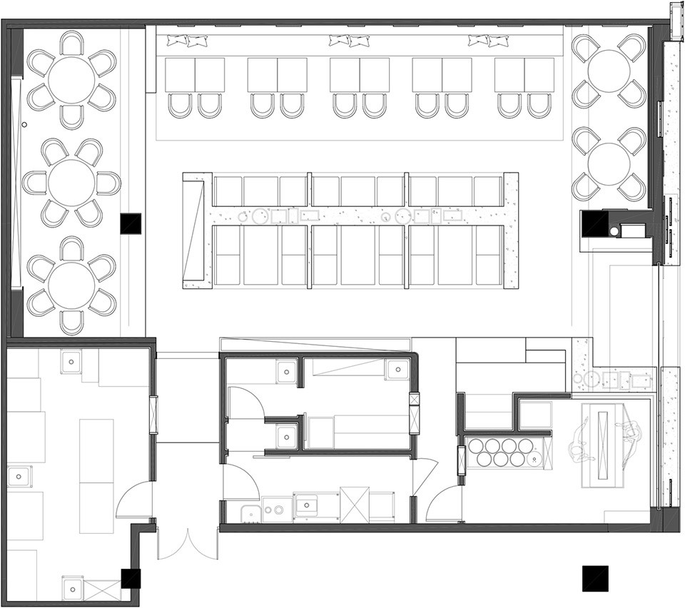
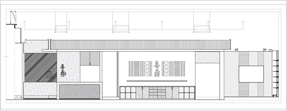
1.喜鼎.饺子中式餐厅空间设计
所属类别: 餐饮空间
设计团队: 刘恺+睿集设计团队案例面积: 200㎡
设计时间: 2015年05月
建成时间: 2015年08月
建成地点: 大连
材料信息: 藤编、GRC倒模、质感涂料、金属雕刻
本案是国内连锁水饺品牌旗下的高端餐饮品牌:喜鼎饺子的全国首家旗舰店。业主委托睿集设计旨在打破现有连锁品牌固有的快餐化大众化品牌印记,创造与众不同的体验式餐饮休闲空间。

该店铺整体门头较宽广,为设计师提供了较为理想的设计环境。在门头设计上,睿集设计采用大面积水泥质感的灰色浮雕面墙面处理,墙面的浮雕花纹根据藤编图案1:1开模制作成,浮雕藤编图案还有一种化石感,从而加深了时间印记,饺子是一个古老传统的食物,这个点使它和化石感的浮雕面有种隐喻的呼应。设计师结合金属雕刻的渐变几何图案格栅,与入口处白色大理石台面相呼应,充分的展示整体门头效果;入口处开敞式明档设计,体现其新鲜、手作、朴素的品牌精髓。



内部空间风格则作为门头整体简洁、大气风格的延续,为通透整体的一个空间。中央为卡座区域,设计师使用大面积的天花格栅镂空造型,在空间上进行视觉化分区。配合错落有致的吊灯与圆弧型墙面,增添空间的趣味性与可读性。入口处形象墙上的喜鼎LOGO与饺子立体拼图,均为设计师的匠心独具,加上藤编材质台面贴面与手作藤编框的加入,更增添简朴风味。餐厅的风格布局以舒适为导向,以小型聚会为诉求的消费者,环境清幽,餐厅灯具设计也以点光重点照明为主,整体雅致、简约。为消费者打造了错落,更具层次感的体验功空间。更有风格鲜明的海洋元素设计区域,为该店铺主打产品提供点睛之笔。



细腻精致与质朴,睿集设计通过简单、古朴的藤编元素与运用与材料的搭配,体现了喜鼎东方传统的现代化诠释,项目不仅是该品牌终端风格的新尝试,也是其品牌终端形象的一次大胆的探索和突破,种种体验变得直接而与众不同。







案例来源:谷德设计网 https://www.gooood.cn
二、【资料分享】
以下实际的设计案例资料大家可在线观看并下载使用

























































































